Verkocht OV

Molenring 47 2741 MX Waddinxveen

119m2
Wonen
5
Kamers
362m2
Perceel
1980
Bouwjaar
Ruime en goed onderhouden hoekwoning in de rustige Oostpolderwijk

In een fijne en rustige straat van de populaire “Oostpolderwijk” staat deze keurig uitgevoerde hoekwoning. Het huis vormt het rechterdeel van een kleinschalig blokje van drie woningen en is altijd met veel zorg onderhouden. De afwerking is netjes, het sanitair modern, en de fraaie badkamer is echt een blikvanger.

De woning telt momenteel drie slaapkamers, maar met een kleine aanpassing zijn er eenvoudig vijf te realiseren. Op de begane grond vind je een gezellige woonkeuken aan de voorzijde en een tuingerichte woonkamer aan de achterzijde. Deze beide ruimtes vormen samen een fijne en lichte leefruimte, waar je direct voelt. De zonnige achtertuin met stenen berging is keurig aangelegd en biedt volop privacy. Aan de voorzijde beschik je over een diepe tuin met eigen parkeerplek. Deze fijne hoekwoning staat op een perceel van 181 m2 en heeft een Gebruiksoppervlakte (wonen) van circa 119 m2.

Begane grond
Ruime hal met moderne en uitgebreide meterkast, toilet met fonteintje en een tegelvloer met vloerverwarming die mooi is doorgelegd naar de woonkamer en keuken. De wanden zijn strak gestuukt en geven de ruimte een verzorgde uitstraling.

De woonkamer is licht en ruim opgezet en staat in open verbinding met de keuken, gescheiden door een gezellige eetbar. De keuken bevindt zich aan de voorzijde en biedt genoeg plek voor een eethoek. Hij is netjes onderhouden en voorzien van diverse inbouwapparatuur, zoals een inductiekookplaat, afzuigkap, vaatwasser en koel-vriescombinatie. In de keuken is er voldoende ruimte voor een (extra) eethoek en tussen de keuken en de woonkamer is nog een handige trapkast aanwezig. Vanuit de woonkamer stap je zo de zonnige (middag-, en avondzon), keurig aangelegde achtertuin in.

Eerste verdieping
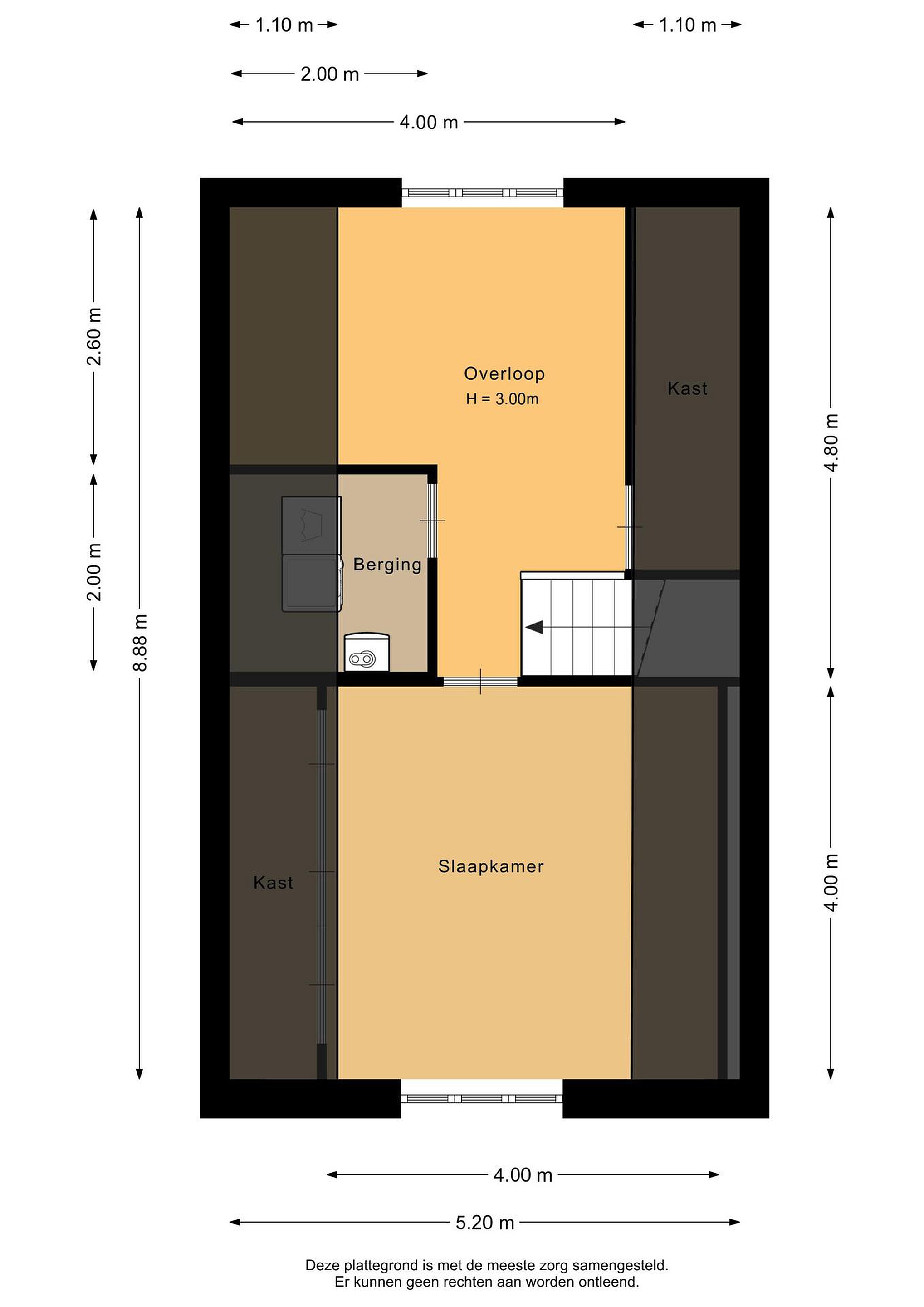
De overloop en trapopgang zijn netjes afgewerkt en geven toegang tot twee ruime (voorheen drie) slaapkamers en de luxe badkamer. De slaapkamer aan de voorzijde meet ca. 4,20 x 3,00 m en die aan de achterzijde ca. 5,15 x 2,70 m. Beide kamers zijn voorzien van rolluiken en laminaatvloeren. De badkamer is vergroot en luxe uitgevoerd met een royale inloopdouche, dubbele wastafel met meubel, tweede toilet, vloerverwarming en inbouwverlichting.

Tweede verdieping
Hier vind je nog eens twee kamers en een afgescheiden technische-, en wasruimte. Eén van de kamers doet nu dienst als thuiskantoor, maar is ook prima geschikt als werk-, sport- of logeerkamer. De slaapkamer aan de voorzijde heeft een afmeting van circa 2,90 x 4,00 m. Onder de schuine kap is op meerdere plekken praktische bergruimte aanwezig.

Details
De woning ligt in een kindvriendelijke en groene woonwijk, dichtbij het winkelcentrum, sportvoorzieningen en openbaar vervoer. Via de A12 en A20 ben je bovendien snel de Randstad uit. Op loopafstand ligt het Warnaarplantsoen met de kinderboerderij, en wie van natuur houdt, kan zijn hart ophalen bij het Bentwoud en de Reeuwijkse Plassen – ideaal voor een mooie fiets- of wandeltocht.
De huidige eigenaren zijn erg zuinig op hun huis geweest en hebben het onderhoud altijd uitgevoerd. Onderstaande opsomming geeft hiervan een mooi beeld:

2020
- Zolder: wasruimte gebouwd, extra groep geplaatst, schotten afgewerkt en verlichting vernieuwd
- Nieuwe gordijnen op begane grond en eerste verdieping
- Kruipruimte geïsoleerd
- Vaatwasser, keukenkraan en stopcontact in trapkast vernieuwd
- Buiten: voegwerk opnieuw gedaan (incl. schuur) en zonwering vervangen
2021
- Zolder: kunststof kozijnen en gordijnen op maat geplaatst
2024
- Dakgoot gerepareerd
- Koelkast vervangen
- Verlichting en stopcontact schuur vernieuwd
2025
- Regenpijp zijkant huis gerepareerd
- Badkamerkranen vervangen
Overig
- Glasvezel door KPN aangelegd

Neem gerust een kijkje bij de uitgebreide fotopresentatie en de plattegronden (2D en 3D) op deze website. Enthousiast geworden? Bel ons dan voor een bezichtiging – we laten je dit huis graag in alle rust zien.

Deze vrijblijvende objectinformatie is met de meeste zorg samengesteld, maar voor de juistheid daarvan kunnen wij geen aansprakelijkheid aanvaarden. Ook kan aan de vermelde gegevens geen enkel recht worden ontleend. Alle informatie is enkel en alleen bedoeld voor de presentatie van het object en niet meer dan een uitnodiging tot het doen van een bod. Eventueel bijgevoegde plattegronden zijn slechts indicatief.

Lees meer

Kenmerken

Overdracht

Prijs per m2
€ 3.782
Aangeboden sinds
18 november 2025
Status
Verkocht onder voorbehoud
Aanvaarding
In overleg

Bouw

Soort woonhuis
Eengezinswoning, hoek woning
Soort bouw
Bestaande bouw
Bouwjaar
1980
Soort dak
Zadeldak
Staat van onderhouden binnen
Goed
Staat van onderhouden buiten
Goed

Oppervlakte en inhoud

Perceeloppervlakte
362 m2
Inhoud van de woning
412 m3
Oppervlakte externe bergruimte
6 m2

Indeling

Aantal kamers
5
Aantal slaapkamers
4
Aantal woonlagen
3
Voorzieningen
Tuin, schuur/berging, ventilatie, rolluiken, kabel-tv, glasvezel, buitenzonwering

Buitenruimte

Balkon
Nee
Schuur/berging
Ja

Maandlasten berekenen

De maandlasten voor je woning bestaan uit meer dan alleen de hypotheeklasten. Hieronder vind je een overzicht van de bijkomende kosten en lasten. Zo weet je precies wat je huis per maand gaat kosten. En met de handige vergelijkers kun je ook nog eens snel de beste deals sluiten!

  • Kaart
  • Streetview