Verkocht OV

Molenring 115 2741 MZ Waddinxveen

124m2
Wonen
5
Kamers
125m2
Perceel
1980
Bouwjaar
Deze aantrekkelijke gezinswoning biedt heerlijk veel ruimte. Door de uitgebouwde entree is het ruim binnenkomen. De zitkamer met woonkeuken heeft een gezamenlijk oppervlak van ongeveer 40,00m2 en er zijn 4 prima formaat slaapkamers op de verdiepingen. De woning kent een speelse indeling op alle woonlagen en is goed onderhouden. Door diverse verduurzaming beschikt de woning over energielabel A. Wonen aan de Molenring betekent wonen in een rustige, kindvriendelijke buurt op korte afstand van winkelcentrum Gouweplein en nabij tal van voorzieningen.
Begane grond
Je komt de woning binnen in een ruime hal. Hier bevindt zich direct rechts het toilet en de meterkast met moderne groepenkast heeft hier ook zijn plek. Het toilet (vernieuwd in 2009) is verzorgd, heeft een staand closet en fontein en is gedeeltelijk betegeld.
De trap naar de verdieping is afgesloten met een deur, waardoor warmteverlies naar boven beperkt wordt. Links daarvan is de deur naar de woonkamer.
De woonkamer bevindt zich aan de voorzijde van het huis. Vanuit het zitgedeelte kijk je leuk vrij uit over de straat. Er is een praktische trapkast in een hoek van de woonkamer aanwezig. De L-vormig opgestelde keuken bevindt zich aan de achterzijde. Een korte muur met daarin een opening geeft de afscherming tussen zitgedeelte en keukendeel. De keuken is geplaatst in 2008 en is voorzien van diverse apparatuur. Recent is de vaatwasser en koel-/vriescombinatie vervangen. Verder beschikt de keuken over een keramische kookplaat, afzuigschouw, oven en magnetron.
Er is een kleine hal gemaakt naar de tuindeur toe. Daarmee is er een handige plek om jassen en schoenen kwijt te kunnen bij binnenkomst via de achterom en blijft de warmte in de wintermaanden in huis. De begane grondvloer is grotendeels voorzien van vloerverwarming. Deze functioneert als bijverwarming.

Eerste verdieping
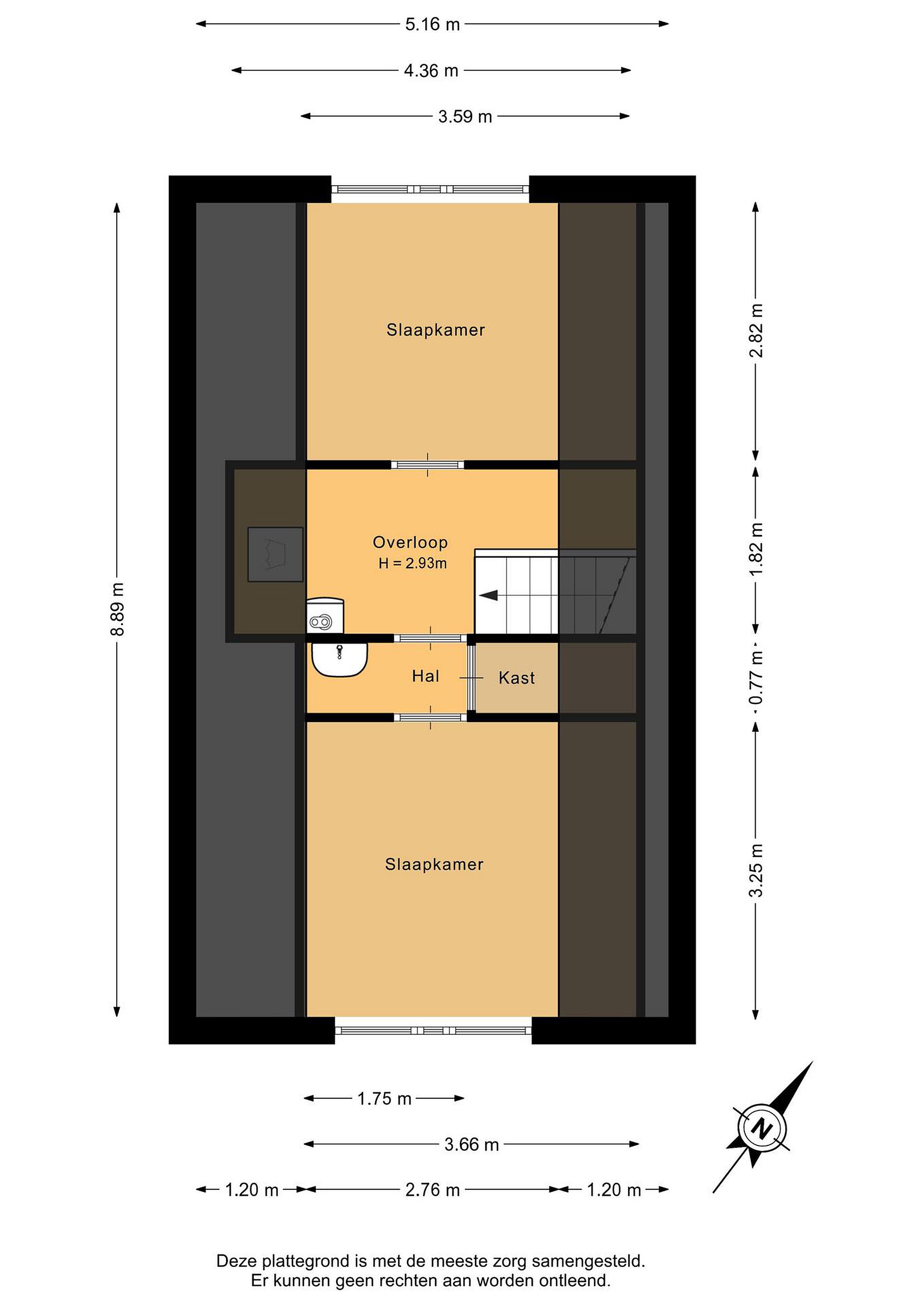
In het midden van deze verdieping is er een ruime overloop met de open trap naar de tweede verdieping. De van oorsprong 2 slaapkamers aan de achterzijde zijn samengevoegd tot 1 grote masterbedroom. Deze heeft dan ook een oppervlakte van circa 19,00m2. De slaapkamer aan de voorzijde is ook heerlijk ruim en heeft een vaste inbouwkast. Bovendien kun je vanuit deze kamer naar het heerlijk zonnige dakterras. Alle raamkozijnen zijn op deze verdieping voorzien van rolluiken, zodat de kamers goed verduisterd kunnen worden. Bovendien houdt het warmte buiten op zomerse dagen.
De moderne, geheel betegelde badkamer is centraal geplaatst en in 2015 vernieuwd. Er is een breed meubel met daarop twee aparte wastafels en boven de wastafels hangt een spiegelkast met verlichting. Verder beschik je hier over een douchecabine, een vrij hangend closet en designradiator.

Tweede verdieping
De tweede verdieping is bij dit type woning ook net anders dan bij de meeste woningen. In het midden bevindt zich de voorzolder met de technische ruimte. Er is op deze plek een wasmachineaansluiting, de cv-combiketel is hier geplaatst en de mechanische ventilatie-unit. Heel praktisch is de wastafel die hier gemaakt is.
Er zijn twee slaapkamers op deze verdieping. Het oppervlak waarbij de stahoogte meer dan 1,50 meter is, bedraagt respectievelijk 7,80m2 en 9,00m2. De grote ramen zorgen voor veel lichtinval en ventilatiemogelijkheid. Onder de schuine kap is op meerdere plekken praktische bergruimte aanwezig.

Tuin
De tuin is verzorgd aangelegd en bied in de zomer een mix van zon en schaduw. Een groot deel is voorzien van klinkerbestrating en er zijn ook borders met beplanting. Achter in de tuin staat een vrijstaande stenen berging, welke is voorzien van elektra. Aan de achtergevel van het huis is een zonnescherm aanwezig en ook een buitenkraan ontbreekt niet. Natuurlijk is er ook een achterom aanwezig.
De voortuin heeft een combinatie van siertegels en beplanting. Ook hier is een buitenkraan aanwezig en er is een stopcontact aangebracht.

Details
Geheel voorzien van dubbel glas.
Daken na geïsoleerd, zowel het platte dak als het schuine dak.
Bodemisolatie in kruipruimte aangebracht.
Voorzien van 11 zonnepanelen, geplaatst in 2023.
Energielabel A.
Schilderwerk buitenzijde uitgevoerd in 2025 (balkonhek in 2020).
Kozijnen op tweede verdieping uitgevoerd in kunststof.
Groepenkast vernieuwd en uitgebreid in 2023.
Woning voorzien van diverse zonwering; hand bediend zonnescherm en een rolluik op begane grond en drie rolluiken op de eerste verdieping.
Badkamer vernieuwd in 2015.
De woning beschikt over betonnen vloeren op alle drie de woonlagen.
De begane grondverdieping is uitgevoerd met vloerverwarming, welke functioneert als bijverwarming.

Aanvaarding: in overleg, indicatie juli 2026.

Ligging:
Deze woning ligt aan een rustige weg in de Oostpolderwijk met slechts aan een zijde van de straat bebouwing, waardoor je hier veel vrijheid ervaart. Het winkelcentrum Gouweplein, gezondheidscentrum, een basisschool en middelbare school zijn op loopafstand bereikbaar. Ook het treinstation is maar een klein stukje lopen of fietsen en dat geldt ook voor diverse sportvoorzieningen. Vanuit de woonwijk is er een goede en snelle verbinding met de snelwegen A12 en A20 en ben je snel in Gouda. Er is openbare parkeergelegenheid voor de deur.

Afmetingen:
Entree    2,93/1,54 x 2,44m ( 5,60m2)
Woonkamer    5,16/4,19 x 5,17m (23,70m2)
Keuken  5,16 x 3,82m  (17,00m2)
Hal achterzijde  2,02 x 1,50m  ( 2,75m2)
Slaapkamer 1 5,16 x 3,71m  (19,15m2)
Slaapkamer 2 4,21 x 2,96m  (13,40m2)
Dakterras   3,14 x 2,78m ( 8,70m2)
Badkamer 2,08 x 2,07m  ( 4,30m2)
Slaapkamer 3   3,25 x 2,76m ( 9,00m2)
Slaapkamer 4   2,82 x 2,76m ( 7,80m2)
Tuin 9,65 x 5,32m (51,00m2)
Berging   2,88 x 2,22m ( 6,40m2)

Deze vrijblijvende objectinformatie is met de meeste zorg samengesteld, maar voor de juistheid daarvan kunnen wij geen aansprakelijkheid aanvaarden. Ook kan aan de vermelde gegevens geen enkel recht worden ontleend. Alle informatie is enkel en alleen bedoeld voor de presentatie van het object en niet meer dan een uitnodiging tot het doen van een bod. Eventueel bijgevoegde plattegronden zijn slechts indicatief.

Lees meer

Kenmerken

Overdracht

Prijs per m2
€ 3.629
Aangeboden sinds
14 april 2026
Status
Verkocht onder voorbehoud
Aanvaarding
Per datum

Bouw

Soort woonhuis
Eengezinswoning, tussen woning
Soort bouw
Bestaande bouw
Bouwjaar
1980
Soort dak
Zadeldak
Staat van onderhouden binnen
Goed
Staat van onderhouden buiten
Goed

Oppervlakte en inhoud

Perceeloppervlakte
125 m2
Inhoud van de woning
429 m3
Oppervlakte externe bergruimte
6 m2
Oppervlakte gebouwgebonden buitenruimten
8 m2

Indeling

Aantal kamers
5
Aantal slaapkamers
4
Aantal woonlagen
3
Voorzieningen
Tuin, schuur/berging, ventilatie, rolluiken, buitenzonwering

Buitenruimte

Balkon
Nee
Schuur/berging
Ja

Maandlasten berekenen

De maandlasten voor je woning bestaan uit meer dan alleen de hypotheeklasten. Hieronder vind je een overzicht van de bijkomende kosten en lasten. Zo weet je precies wat je huis per maand gaat kosten. En met de handige vergelijkers kun je ook nog eens snel de beste deals sluiten!

  • Kaart
  • Streetview