Verkocht OV

Meerval 28 2742 NJ Waddinxveen

119m2
Wonen
4
Kamers
185m2
Perceel
2020
Bouwjaar
Strakke en moderne hoekwoning (2020), - duurzaam, licht en met verrassend grote tuin

Welkom bij deze strak afgewerkte en moderne hoekwoning in de geliefde wijk Park Triangel. Deze woning is lekker luxe uitgevoerd en toekomstbestendig dankzij de warmtepomp. Deze pomp stuurt de vloerverwarming én vloerkoeling aan en wordt mede gevoegd door de 11 zonnepanelen. Het energielabel van de woning is een A+++. Door de ligging aan zowel de voor- als zijkant naast een parkeerterrein heb je hier veel privacy en een ruimtelijk gevoel, zonder directe inkijk van buren.

Met een woonoppervlakte van ca. 119 m2, een inhoud van ca. 450 m3 en een perceel van ca. 185 m2 biedt deze woning alle ruimte die je zoekt. Zie jij jezelf hier al wonen? Neem gerust contact met ons op, want we laten je dit prachtige en duurzame huis graag zien!
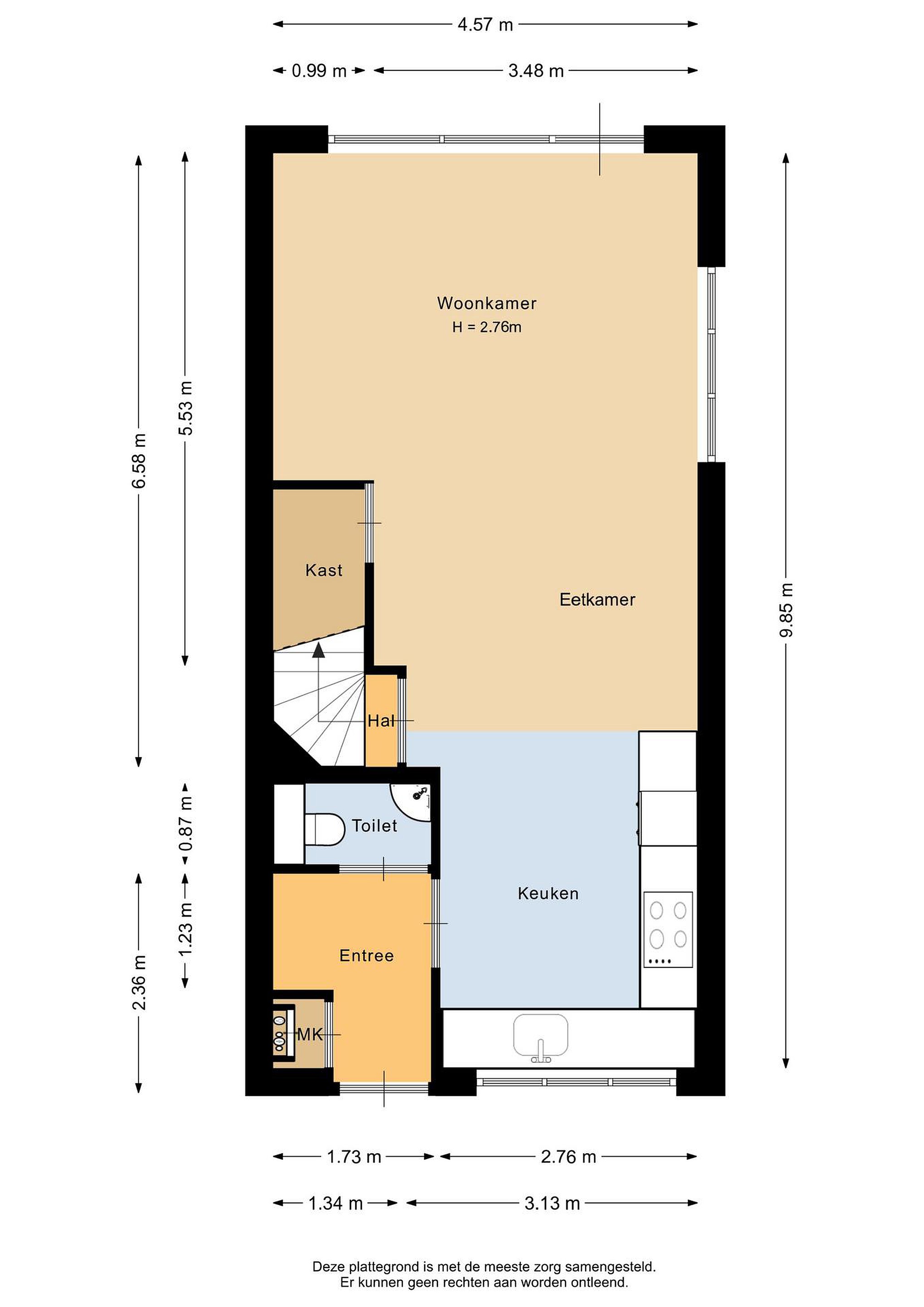
Begane grond
Binnenkomen in een lichte en stijlvolle woonruimte

Je komt binnen via de voortuin, waar de verzorgde entree direct de nette uitstraling van het huis laat zien. In de hal vind je de meterkast en het moderne toilet met zwevend closet. De pvc-vloer ligt in een visgraad motief en loopt door tot in de keuken en woonkamer. De woonkamer valt meteen op door de fijne lichtinval. Dankzij het extra zijraam en de strakke afwerking voelt de ruimte open en rustig aan. De deur van de hal en die van de trapopgang zijn uitgevoerd in zwart hout en trapkast is afgewerkt met hout/zwart kleurig wandpaneel. Ook de raamkozijnen zijn in het zwart uitgevoerd.

De keuken ligt aan de voorzijde en is modern uitgevoerd in een praktische hoekopstelling met een luxe werkblad en alle benodigde inbouwapparatuur, zoals een inductie kookplaat, 60 cm bakoven, koel/vriescombinatie en een vaatwasser. De begane grond en de verdieping zijn dus voorzien van vloerverwarming én vloerkoeling, wat bijdraagt aan een comfortabel binnenklimaat, elk seizoen.

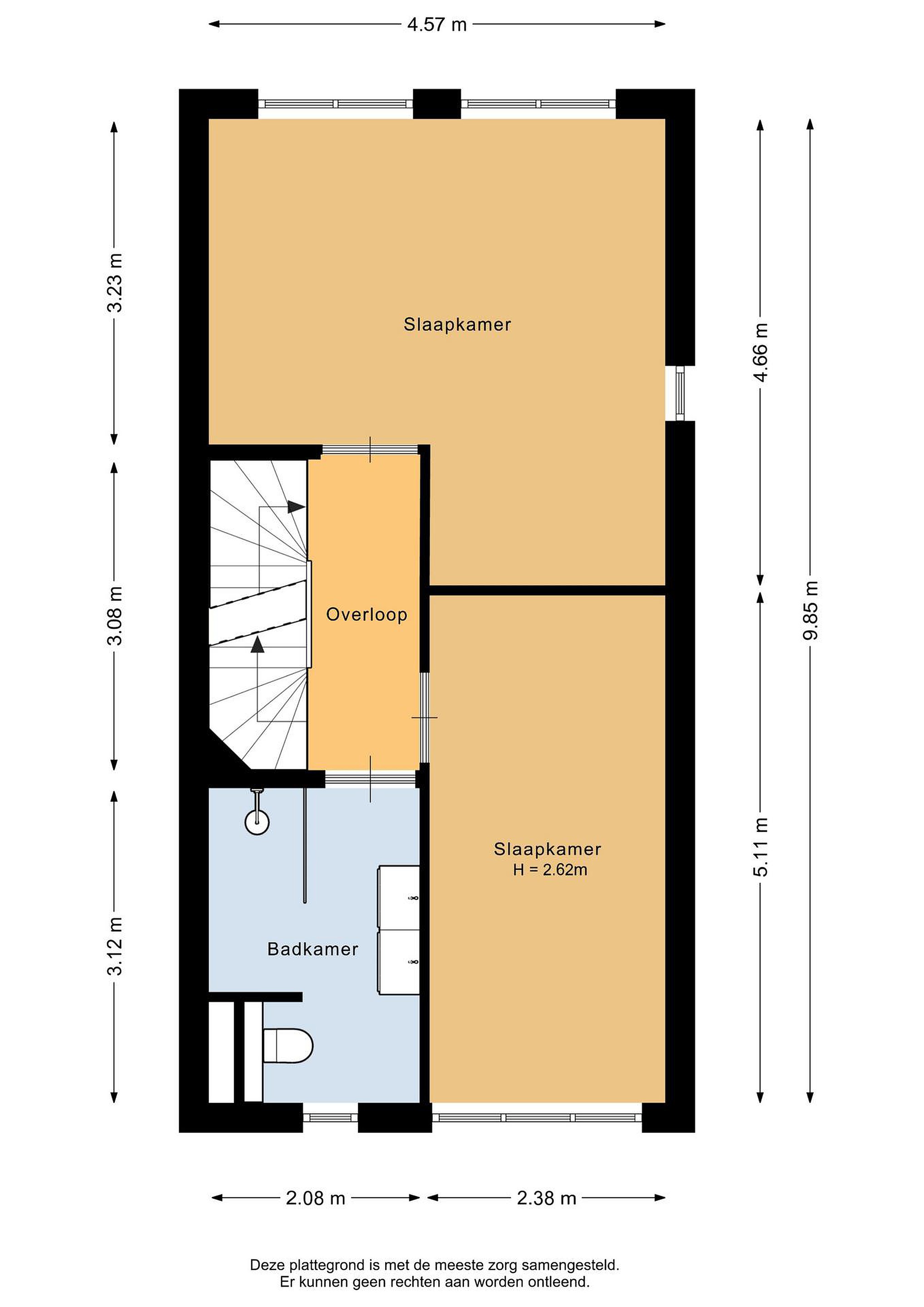
Eerste verdieping
Twee verdiepingen vol comfort en leefruimte

Via de keurige vaste trap met renovatietreden, toegang tot de verdieping. Op de eerste verdieping bevinden zich twee ruime slaapkamers van circa 457 x 323/466 en 238 x 511 cm groot. Beide kamers zijn strak afgewerkt met een moderne pvc-vloer. De eerstgenoemde kamer heeft een extra kozijn in de zijgevel. De badkamer is luxe uitgevoerd met een ruime inloopdouche, tweede toilet en een stijlvol wastafelmeubel met bijpassende verlichte spiegel. De ruimte is tot bovenaan betegeld en tussen het toilet de inloopdouche is een lage wand gemetseld.

Tweede verdieping
De tweede verdieping is nu als open ruimte, in gebruik als “master bedroom” en biedt zeker nog een optie voor een extra kamer. Ook deze ruimte is weer perfect afgewerkt zodat je er niets aan hoeft te doen. De huidige eigenaren hebben er zelf nog een thuiswerkplek ingericht. Op deze verdieping vind je ook een aparte technische ruimte met de warmtepompinstallatie, mechanische ventilatie en aansluitingen voor wasmachine en droger.

Tuin
Tuin met grote veranda — het hele jaar door genieten

De achtertuin is 7,5 meter x 10,3 meter groot, fraai aangelegd en biedt veel privacy door de vrije ligging naast parkeerterreinen aan de zijkant. De grote veranda maakt dit echt een buitenruimte waar je het hele jaar door kunt zitten, of het nu tijdens lange zomeravonden is of op een frisse herfstdag. De tuin beschikt verder over een houten berging en een achterom richting het parkeerterrein. Ook via de zijtuin is er toegang in of uit de tuin.

Details
Meerval 28 ligt in het nieuwe gedeelte van Park Triangel, dicht bij de nieuwe school die nu in aanbouw is. Je woont hier op korte afstand van diverse voorzieningen zoals winkelcentrum Gouweplein, scholen, kinderopvang, sportvoorzieningen en het grote speelwandelpark. Met de A12 en A20 op enkele minuten rijden ben je ook zo in Rotterdam, Utrecht of Den Haag.

Belangrijk om te weten
- Hoekwoning gebouwd in 2020
- Strakke, moderne afwerking
- Woonoppervlakte ca. 119 m2
- Inhoud ca. 450 m3
- Perceeloppervlakte ca. 185 m2
- volledig gasloos verwarmingssysteem
- Vloerverwarming en vloerkoeling
- 11 zonnepanelen
- Energielabel A+++
- Grote veranda en veel privacy door vrije ligging
- Parkeren direct voor of aan de zijkant van het huis.
- Oplevering in overleg

Bijzonderheden: Deze vrijblijvende objectinformatie is met de meeste zorg samengesteld, maar voor de juistheid daarvan kunnen wij geen aansprakelijkheid aanvaarden. Ook kunnen aan de vermelde gegevens geen rechten worden ontleend. Alle informatie is uitsluitend bedoeld voor de presentatie van het object en geldt als uitnodiging tot het doen van een bod. Eventueel bijgevoegde plattegronden zijn slechts indicatief.


Lees meer

Kenmerken

Overdracht

Prijs per m2
€ 4.958
Aangeboden sinds
17 november 2025
Status
Verkocht onder voorbehoud
Aanvaarding
In overleg

Bouw

Soort woonhuis
Eengezinswoning, hoek woning
Soort bouw
Bestaande bouw
Bouwjaar
2020
Soort dak
Zadeldak
Staat van onderhouden binnen
Uitstekend
Staat van onderhouden buiten
Uitstekend

Oppervlakte en inhoud

Perceeloppervlakte
185 m2
Inhoud van de woning
450 m3
Oppervlakte externe bergruimte
6 m2

Indeling

Aantal kamers
4
Aantal slaapkamers
3
Aantal woonlagen
3
Voorzieningen
Tuin, schuur/berging, ventilatie, glasvezel, dakraam

Buitenruimte

Balkon
Nee
Schuur/berging
Ja

Maandlasten berekenen

De maandlasten voor je woning bestaan uit meer dan alleen de hypotheeklasten. Hieronder vind je een overzicht van de bijkomende kosten en lasten. Zo weet je precies wat je huis per maand gaat kosten. En met de handige vergelijkers kun je ook nog eens snel de beste deals sluiten!

  • Kaart
  • Streetview