Verkocht

Land Voor Water 92 2742 PG Waddinxveen

120m2
Wonen
4
Kamers
100m2
Perceel
2018
Bouwjaar
Modern, luxe afgewerkt én instapklaar – met serre, dakkapel, airco en tuin op het westen

Welkom bij Land voor Water 92, een jonge en goed onderhouden eengezinswoning (bouwjaar 2018) met een woonoppervlakte van ca. 120 m2 inclusief dakkapel. Deze woning is tot in de puntjes verzorgd, voorzien van moderne voorzieningen en beschikt over maar liefst drie ruime slaapkamers, een luxe badkamer, een serre (2025), airconditioning én een onderhoudsvriendelijke tuin op het westen. Dit is zo’n woning waar je alleen nog maar je meubels hoeft neer te zetten: instapklaar, sfeervol en comfortabel.

De woning ligt in een rustige, kindvriendelijke en geliefde woonwijk met parkeergelegenheid direct voor de deur. Daarnaast is de woning duurzaam uitgerust met zonnepanelen (3 stuks), (elektrische) screens/zonwering en energielabel A.
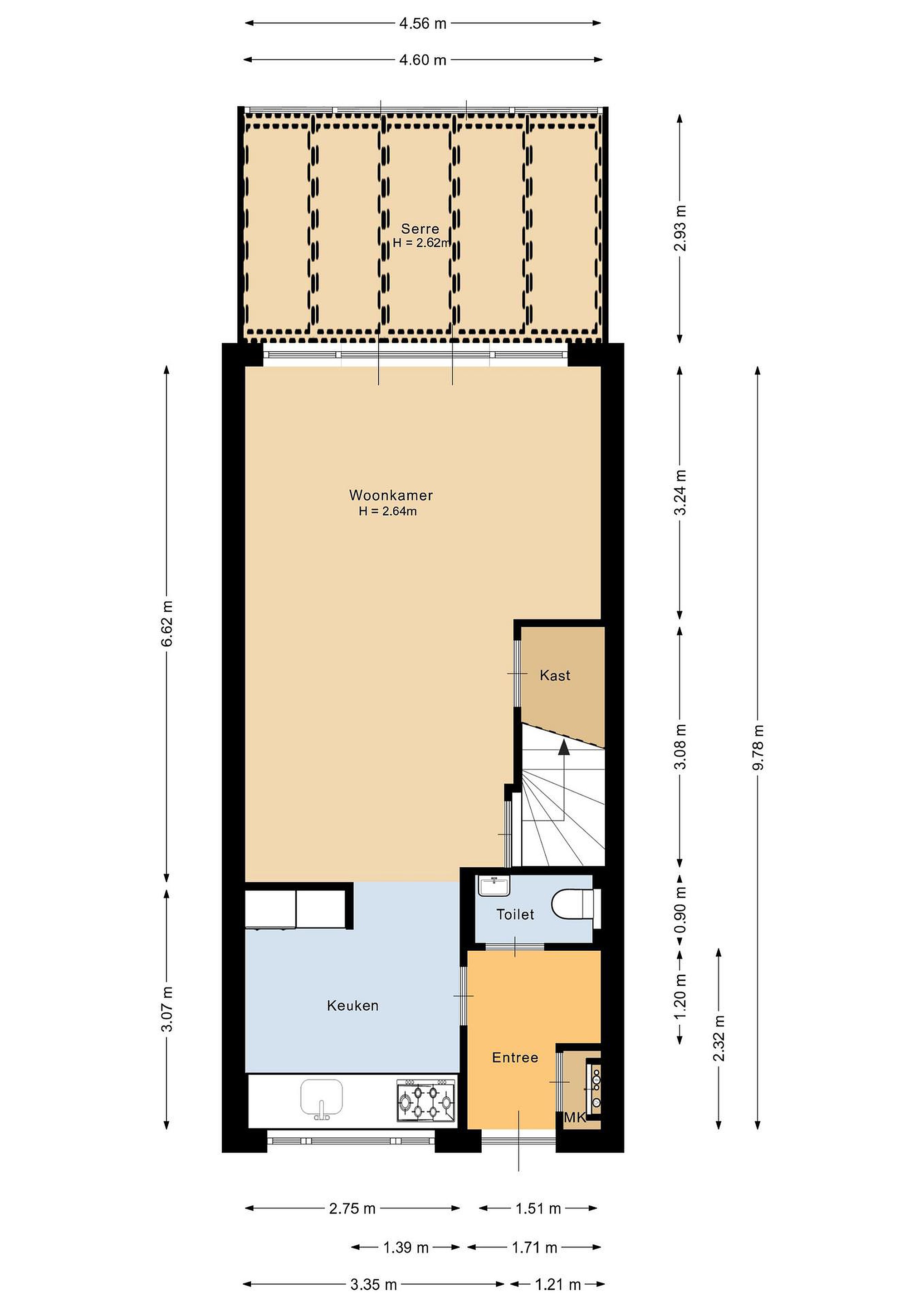
Begane grond
Via de nette voortuin bereik je de entree van de woning. De hal is voorzien van een modern afgewerkt toilet met fontein, uitgevoerd in dezelfde luxe stijl als de badkamer op de verdieping. Vanuit de hal stap je de woonkamer binnen, waar direct de warme en eigentijdse sfeer opvalt. De ruimte is strak en stijlvol afgewerkt en beschikt over een fraaie ingebouwde cinema-wand met sfeerhaard, waardoor dit dé plek is om te ontspannen. De vloer loopt naadloos door over de begane grond en zorgt samen met de vloerverwarming voor een rustige, moderne basis.

Aan de voorzijde bevindt zich de keuken, een nette en praktische ruimte met Siemens-inbouwapparatuur, een 5-pits gaskookplaat, een Klarstein-afzuigkap, vaatwasser en een prettig uitzicht over de straat. Doordat de eethoek en de keuken subtiel worden gescheiden door een wand, voelt de woonkamer heerlijk ruim en toch gezellig ingedeeld.

In 2025 is aan de achterzijde een volledige serre geplaatst: een schitterende uitbreiding van glas, elektrisch te bedienen en voorzien van inbouwspots. Hierdoor is een extra leefruimte ontstaan die comfortabel te gebruiken is in alle seizoenen, zowel in de zomer als in de winter. De openslaande deuren vanuit de woning richting de achtertuin/serre zijn bovendien voorzien van een hor

Eerste verdieping
De eerste verdieping biedt een verzorgde en praktische indeling met aan de achterzijde de royale hoofdslaapkamer. Deze kamer beslaat de volledige breedte van de woning en voelt daardoor ruim en prettig aan. De afwerking is netjes en modern, met een doorlopende laminaatvloer en grote raampartijen die zorgen voor veel licht. Rolluiken en horren dragen bij aan extra wooncomfort aan de eerste verdieping.

Aan de voorzijde bevindt zich de tweede slaapkamer, eveneens licht en strak afgewerkt. Deze ruimte is ideaal als kinder- of werkkamer en vormt een mooie aanvulling op de woonmogelijkheden.

De badkamer, ook aan de voorzijde gelegen, heeft een moderne uitstraling met warme tegeltonen en een strakke afwerking. De ruimte is ingericht met een ligbad, een inloopdouche met regendouche, een zwevend toilet en een wastafelmeubel met twee kranen, waardoor de wastafel praktisch in gebruik is voor meerdere personen. Dankzij de mechanische ventilatie en de nette afwerking is dit een comfortabele en onderhoudsvriendelijke badkamer.

Tweede verdieping
De tweede verdieping vormt een volwaardige woonlaag die voor veel woningen in deze wijk echt het verschil maakt. In 2023 is hier een royale dakkapel geplaatst, waardoor een grote derde slaapkamer is ontstaan met volop licht en ruimte. Het dakkapel is bovendien voorzien van een elektrisch bedienbaar rolluik, wat zorgt voor extra comfort, verduistering en isolatie. Dankzij de aanwezige airconditioning voelt het hier in elk seizoen aangenaam. De verdieping is daarnaast afgewerkt met een pvc-vloer

Daarnaast vind je op deze verdieping een aparte berging/waskamer met de aansluiting voor de wasmachine en droger. Vanaf hier is ook de vliering bereikbaar, ideaal voor extra opbergruimte.

Tuin
De achtertuin ligt op het westen, waardoor je vanaf de middag tot in de avond kunt genieten van de zon. De tuin is onderhoudsvriendelijk ingericht en voorzien van elektrische zonwering/screens, een buitenkraan, elektra en een houten schuur met stroomaansluiting. Via de praktische achterom is de tuin gemakkelijk bereikbaar. De serre vormt een natuurlijke overgang tussen binnen en buiten, waardoor de ruimte het hele jaar door prettig te gebruiken is.

Details
- Woonoppervlakte ca. 120 m2
- Bouwjaar 2018
- Perceeloppervlakte ca. 100 m2
- Serre (2025), elektrisch bedienbaar, voorzien van inbouwspots
- Dakkapel geplaatst in 2023
- Airconditioning op de tweede verdieping
- 3 zonnepanelen
- Energielabel A
- Luxe badkamer met ligbad, inloopdouche met regendouche, zwevend toilet en wastafelmeubel met twee kranen
- Praktische wasruimte en extra opbergruimte op de zolder + vliering
- Elektrische zonwering/screens en elektrische rolluiken bij de slaapkamer
- Ingebouwde cinema-wand in de woonkamer
- Vloerverwarming begane grond
- Onderhoudsvriendelijke tuin op het westen
- Parkeren direct voor de deur
- Betreft momenteel BPD koopstart, maar wordt zonder erfpacht en dus als volle eigendom/eigen grond geleverd;

Locatie
De woning bevindt zich in de jonge en populaire woonwijk Triangel, een rustige en kindvriendelijke omgeving met veel groen en brede straten. Voorzieningen zoals supermarkten, scholen, kinderopvang, speeltuinen en het station Waddinxveen Triangel liggen op korte afstand.

Dankzij de centrale ligging zijn Gouda, Rotterdam, Zoetermeer en Utrecht snel bereikbaar via de N451, A12 en A20. Ook wandel- en fietsroutes, sportfaciliteiten en parken liggen dichtbij, waardoor het een fijne plek is voor zowel gezinnen als werkenden.

Benieuwd of dit jouw nieuwe thuis kan worden? Plan gerust een bezichtiging, we leiden je graag rond.

Deze vrijblijvende objectinformatie is met de meeste zorg samengesteld, maar voor de juistheid daarvan kunnen wij geen aansprakelijkheid aanvaarden. Ook kan aan de vermelde gegevens geen enkel recht worden ontleend. Alle informatie is enkel en alleen bedoeld voor de presentatie van het object en niet meer dan een uitnodiging tot het doen van een bod. Eventueel bijgevoegde plattegronden zijn slechts indicatief.

Lees meer

Verkoopgeschiedenis

Aangeboden sinds
9 maart 2026
Verkoopdatum
25 mei 2026
Looptijd
3 maanden

Kenmerken

Overdracht

Prijs per m2
€ 4.492
Aangeboden sinds
9 maart 2026
Status
Verkocht
Aanvaarding
In overleg

Bouw

Soort woonhuis
Eengezinswoning, tussen woning
Soort bouw
Bestaande bouw
Bouwjaar
2018
Soort dak
Zadeldak
Staat van onderhouden binnen
Uitstekend
Staat van onderhouden buiten
Uitstekend

Oppervlakte en inhoud

Perceeloppervlakte
100 m2
Inhoud van de woning
481 m3
Oppervlakte externe bergruimte
5 m2
Oppervlakte gebouwgebonden buitenruimten
14 m2

Indeling

Aantal kamers
4
Aantal slaapkamers
3
Aantal woonlagen
3
Voorzieningen
Tuin, schuur/berging, ventilatie, airconditioning

Buitenruimte

Balkon
Nee
Schuur/berging
Ja

Maandlasten berekenen

De maandlasten voor je woning bestaan uit meer dan alleen de hypotheeklasten. Hieronder vind je een overzicht van de bijkomende kosten en lasten. Zo weet je precies wat je huis per maand gaat kosten. En met de handige vergelijkers kun je ook nog eens snel de beste deals sluiten!

  • Kaart
  • Streetview