Verkocht

Land Voor Water 18 2742 PG Waddinxveen

163m2
Wonen
5
Kamers
151m2
Perceel
2019
Bouwjaar
Mag het een beetje meer zijn?

Met deze woning aan het Land voor Water koop je een royaal huis met een oppervlakte van ruim 164 m2, een speelse indeling van de woonkamer en keuken én een eigen privéparkeerplaats. Dit fijne familiehuis beschikt over vier grote slaapkamers, een riante badkamer en een separaat tweede toilet. De zolder biedt bovendien de optie voor een extra kamer. De woning is gelegen in de nieuwbouwwijk ‘Triangel’ in Waddinxveen en is in 2019 opgeleverd aan de huidige eigenaar.
De nieuwe wijk Triangel ligt zeer strategisch ten opzichte van alle voorzieningen die je je maar kunt wensen. Zo vind je op loopafstand winkelcentrum Gouweplein, verschillende scholen, het NS-station en uitvalswegen naar de A12 en A20. Ideaal als je in de regio werkt! De wijk heeft een prachtig speel-wandelpark met speeleilanden waar kinderen snel een vriendje zullen vinden.

De tuinkamerwoning heeft een breedte van 5,70 meter en is georiënteerd op het zuidoosten, wat de kamer een heerlijk licht karakter geeft. De begane grond is voorzien van vloerverwarming met een fraaie PVC-vloer. De keurige achtertuin is diep en biedt een vrij uitzicht zonder belemmering van andere bebouwing. Via de achterom heb je toegang tot de privéparkeerplaatsen met gereserveerde, genummerde plekken. De keuken is middels schuifdeuren afgescheiden van de woonkamer; een unieke en gezellige indeling die je niet vaak tegenkomt!
Begane grond
Indeling:

Via de keurige voortuin, voorzien van vaste planten en een betegeld pad, bereik je de voordeur. Het metselwerk van de woning heeft een fraai, licht gemêleerd beeld en boven de entree bevindt zich een kleine overkapping met dakpannen. In de hal vind je de meterkast, een praktische trapkast, een moderne toiletruimte met zwevend toilet en de trapopgang naar de eerste verdieping. De hal geeft vervolgens toegang tot de keuken en, aan het uiteinde, tot de woonkamer.

De woonkamer heeft een oppervlakte van ongeveer 25 m2 en strekt zich uit over de volledige breedte van de woning. De vloer is afgewerkt met een pvc-vloer in houtlook design, uiteraard voorzien van comfortabele vloerverwarming. Dankzij de openslaande tuindeuren loop je zo de fijne tuin op het zuidoosten in. Deze is keurig aangelegd met een zonneterras, een gazon en verhoogde borders met vaste planten. Ook achter de berging is nog een gedeelte tuin aanwezig, waardoor de kliko’s altijd netjes uit het zicht staan. Via de achterom is er toegang tot het parkeerhof met de bijbehorende genummerde parkeerplaatsen. Op de achtergevel is bovendien een elektrisch zonnescherm gemonteerd.

De luxe keuken is opgesteld in een parallelopstelling en beschikt over een kunststof werkblad met veel werkruimte en zijdeglans witte kastfronten. Uiteraard is de keuken compleet uitgerust met hoogwaardige inbouwapparatuur, waaronder een inductiekookplaat, afzuigkap, combimagnetron, koelkast met vriezer en een vaatwasser.

Eerste verdieping
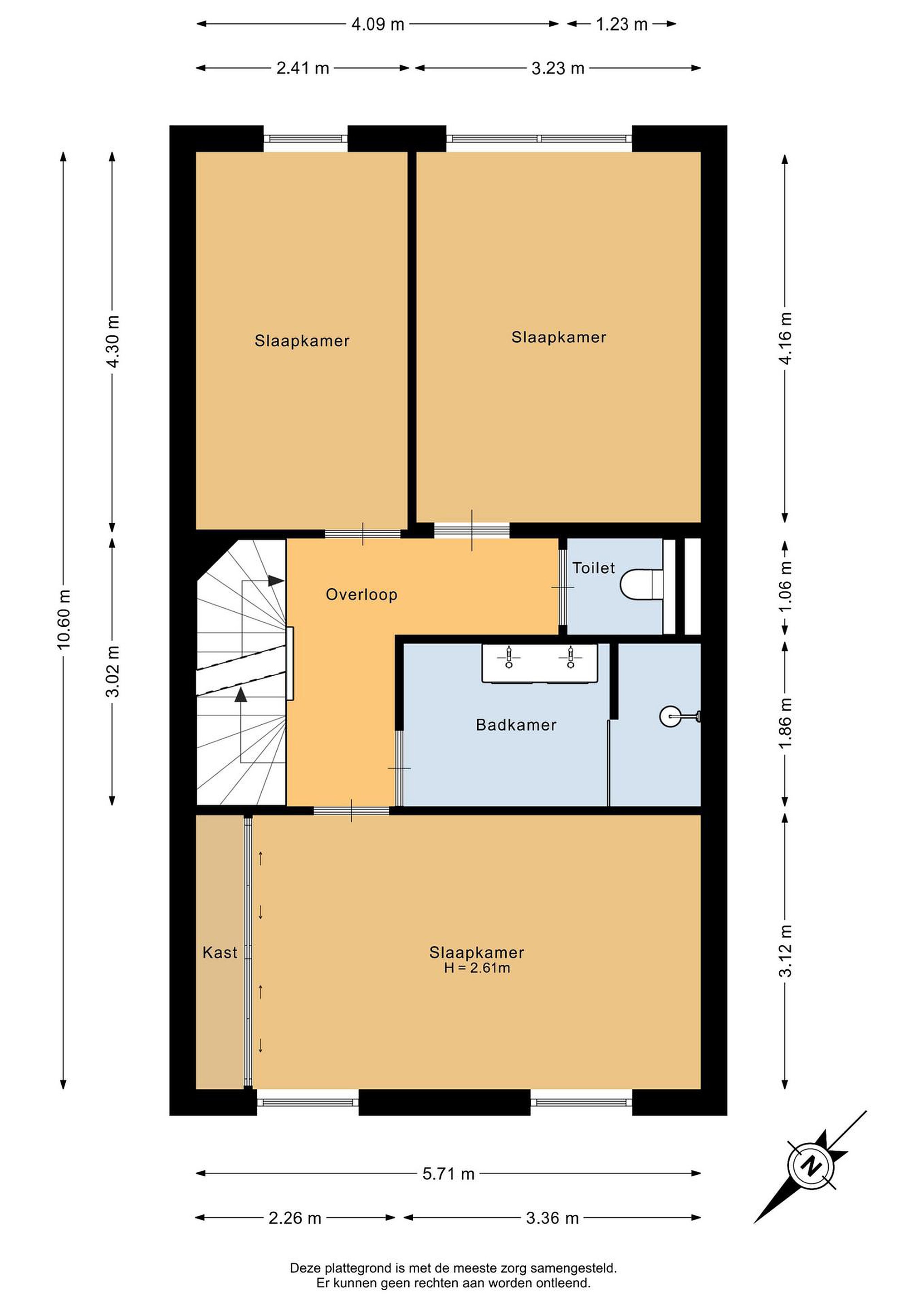
Via de vaste trap bereik je de eerste verdieping. Deze verdieping bestaat uit drie royale slaapkamers, een luxe badkamer en een separaat toilet. Net als de overloop zijn alle slaapkamers voorzien van een nette laminaatvloer. De slaapkamer aan de voorzijde is zeer ruim (ca. 571 x 312 cm) en beschikt over een praktische, vaste kastenwand. De beide slaapkamers aan de achterzijde hebben afmetingen van respectievelijk 241 x 430 cm en 323 x 416 cm. Deze kamers zijn hoogwaardig afgewerkt en extra voorzien van elektrische screens.

De luxe badkamer is volledig betegeld en zeer ruim van opzet. Je vindt hier een royale inloopdouche met Sunshower, een breed wastafelmeubel met dubbele kraan en een bijpassende wandspiegel. Naast dit meubel is er nog een tweede bergkast aanwezig voor al je handdoeken en verzorgingsproducten. De ruimte wordt mechanisch geventileerd, wat eenvoudig te bedienen is vanuit de badkamer zelf.

Tweede verdieping
De tweede verdieping is verrassend ruim en verdeeld in twee functionele ruimtes: een royale voorzolder en een volwaardige vierde slaapkamer. De voorzolder (ca. 407 x 571 cm) is dusdanig groot dat deze uitstekend als extra (werk)kamer kan worden ingericht. Momenteel bevindt zich hier de opstelling voor de wasmachine en wasdroger, de mechanische ventilatie-unit en de HR Intergas CV-ketel. Onder de schuine kap is slim gebruikgemaakt van de ruimte door het plaatsen van bergschotten. Aan de andere zijde bevindt zich de vierde slaapkamer van ca. 331 x 571 cm, welke netjes is afgewerkt met een laminaatvloer. Dankzij de hoge nok voelt deze verdieping zeer ruimtelijk aan.

Details
Bijzonderheden:
- Deze moderne woning ligt op een uitstekende locatie binnen de wijk en biedt alle comfort die je van een recent gebouwd huis mag verwachten.
- De woning beschikt over een eigen parkeerplaats die onderdeel uitmaakt van een Vereniging van Eigenaren (VvE).
- De servicekosten hiervoor bedragen circa € 13,45 per maand.
- Oplevering: In overleg, indicatie oktober 2026.

Disclaimer: Deze vrijblijvende objectinformatie is met de meeste zorg samengesteld, maar voor de juistheid daarvan kunnen wij geen aansprakelijkheid aanvaarden. Ook kunnen aan de vermelde gegevens geen rechten worden ontleend. Alle informatie is enkel en alleen bedoeld voor de presentatie van het object en is niet meer dan een uitnodiging tot het doen van een bod. Eventueel bijgevoegde plattegronden zijn slechts indicatief

Lees meer

Verkoopgeschiedenis

Aangeboden sinds
16 maart 2026
Verkoopdatum
11 mei 2026
Looptijd
2 maanden

Kenmerken

Overdracht

Prijs per m2
€ 4.104
Aangeboden sinds
16 maart 2026
Status
Verkocht
Aanvaarding
In overleg

Bouw

Soort woonhuis
Eengezinswoning, tussen woning
Soort bouw
Bestaande bouw
Bouwjaar
2019
Staat van onderhouden binnen
Uitstekend
Staat van onderhouden buiten
Uitstekend

Oppervlakte en inhoud

Perceeloppervlakte
151 m2
Inhoud van de woning
583 m3
Oppervlakte externe bergruimte
5 m2

Indeling

Aantal kamers
5
Aantal slaapkamers
4
Aantal woonlagen
3
Voorzieningen
Tuin, schuur/berging, ventilatie, glasvezel, dakraam

Buitenruimte

Balkon
Nee
Schuur/berging
Ja

Maandlasten berekenen

De maandlasten voor je woning bestaan uit meer dan alleen de hypotheeklasten. Hieronder vind je een overzicht van de bijkomende kosten en lasten. Zo weet je precies wat je huis per maand gaat kosten. En met de handige vergelijkers kun je ook nog eens snel de beste deals sluiten!

  • Kaart
  • Streetview