Verkocht OV

Hendrik Copijnstraat 13 2742 MM Waddinxveen

136m2
Wonen
5
Kamers
128m2
Perceel
2017
Bouwjaar
EEN HEERLIJKE GEZINSWONING OP EEN FIJNE PLEK IN DE TRIANGEL

Welkom aan de Hendrik Copijnstraat 13. Op een rustige en kindvriendelijke plek in de populaire wijk Triangel staat deze verrassend ruime eengezinswoning met maar liefst 136 m2 woonoppervlak. De woning beschikt over vier slaapkamers, een kunststof dakkapel, 14 zonnepanelen en een eigen parkeerplaats op het mandelige parkeerterrein achter de woning. Een complete gezinswoning waar ruimte, licht en wooncomfort samenkomen.

De ligging is bijzonder prettig: aan de voorzijde van de woning bevindt zich een groenstrook waardoor geen verkeer voor de deur langsrijdt. Dit zorgt voor een rustige en veilige woonomgeving met een vriendelijke sfeer in de straat. Tegelijkertijd woon je hier op korte afstand van winkels, scholen, openbaar vervoer en de uitvalswegen richting de grote steden. Een ideale combinatie van rust, ruimte en bereikbaarheid.
Begane grond
Via de voortuin bereik je de entree van de woning. In de hal bevinden zich de garderobe, de trapopgang naar de eerste verdieping en het moderne toilet met wandcloset en fonteintje.

Vanuit de hal betreed je de lichte doorzon woonkamer met open keuken. De keuken is aan de voorzijde van de woning gesitueerd en uitgevoerd in een lichte, moderne stijl. De keuken beschikt over diverse inbouwapparatuur, waaronder een combi-oven, inductiekookplaat, vaatwasser en een kokend waterkraan. De combi-oven en vaatwasser is van het merk AEG. In 2025 is de koel-vriescombinatie vernieuwd, voorzien van een no-frost systeem.

De keuken loopt naadloos over in het eetgedeelte waar voldoende ruimte is voor een royale eettafel voor zes personen. De gehele begane grond is afgewerkt met een houtlook PVC vloer en voorzien van vloerverwarming, wat zorgt voor een warm en comfortabel woonklimaat. Onder de trap bevindt zich een praktische trapkast, ideaal voor het opbergen van voorraad, schoonmaakspullen of andere huishoudelijke zaken.

De woonkamer ligt aan de achterzijde van de woning en is voorzien van dubbele openslaande deuren naar de tuin. Dankzij de aanwezige horren kan er in de zomer heerlijk worden geventileerd en ontstaat een fijne verbinding tussen binnen en buiten.

Eerste verdieping
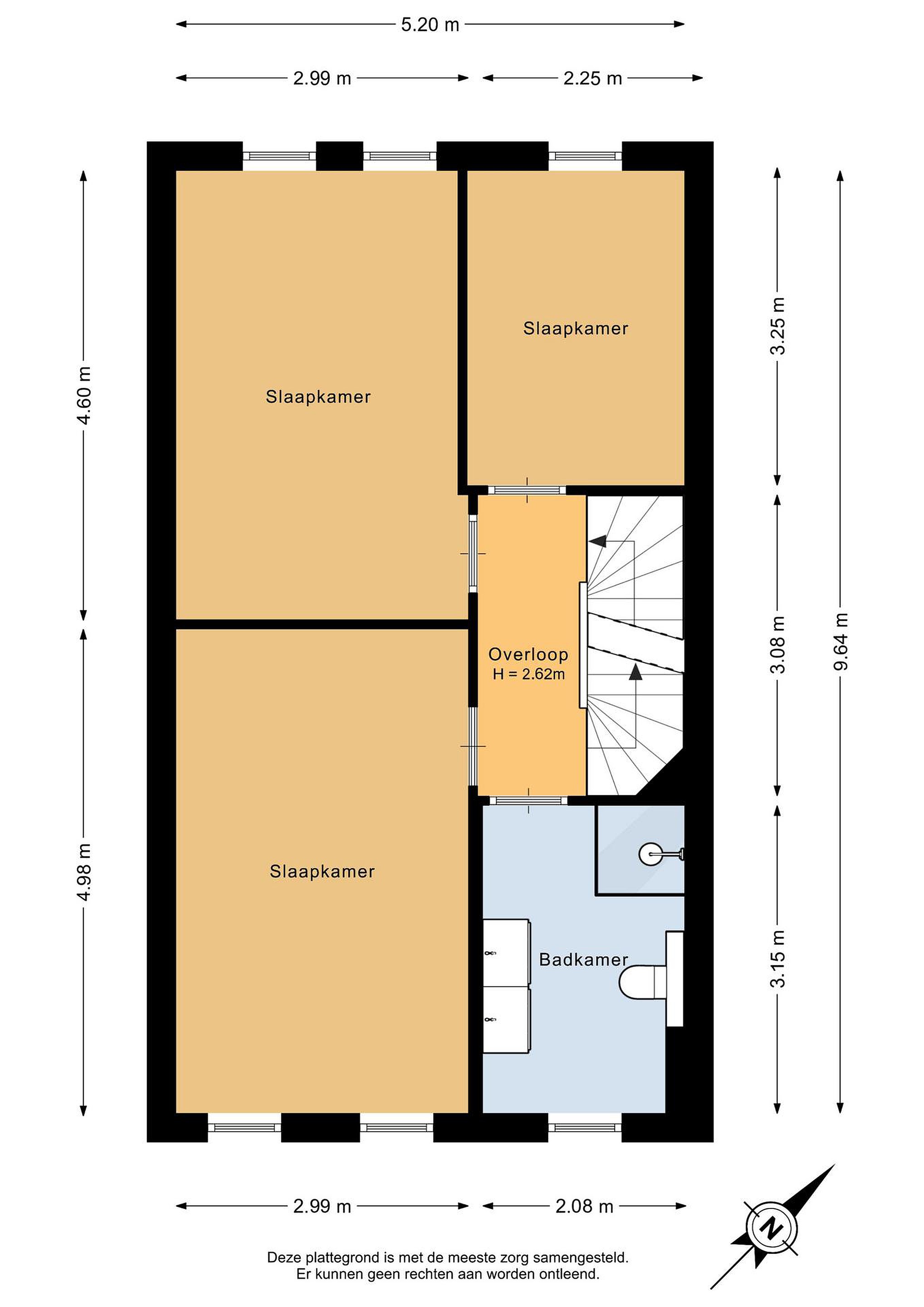
Via de trap bereik je de eerste verdieping met drie ruime slaapkamers en de badkamer. Aan de voorzijde van de woning bevindt zich de master bedroom. Deze kamer is royaal opgezet, voorzien van prettige raampartijen en beschikt over een hor.

De moderne en royaal opgezette badkamer is compleet ingericht met een inloopdouche, tweede toilet en een dubbele wastafel met meubel. Dankzij het aanwezige raam komt hier prettig daglicht binnen, iets wat zeker niet bij iedere woning voorkomt. Door de ruime opzet voelt de badkamer comfortabel en praktisch in gebruik. Daarnaast is de badkamer voorzien van mechanische ventilatie en een radiator.

Aan de achterzijde liggen nog twee slaapkamers, momenteel ingericht als kinderkamers. Deze kamers zijn eveneens goed bruikbaar als werk-, studie- of kleedkamer.

Tweede verdieping
De zolderverdieping is verrassend ruim en praktisch ingedeeld. Op de voorzolder bevinden zich de opstelplaats voor de wasmachine en droger, de mechanische ventilatie en de CV-ketel uit 2017 die recent (mei 2025) nog is gecontroleerd door een erkend bedrijf. De bewoners hebben de hoogte van de ruimte optimaal benut door een extra schot te creëren, waardoor er op een slimme manier extra opbergruimte is ontstaan.

Aan de achterzijde bevindt zich een kunststof dakkapel (2020) die over vrijwel de gehele breedte van de woning is geplaatst. Dit zorgt voor veel extra licht en ruimte. Hierdoor is een volwaardige vierde slaapkamer ontstaan die momenteel deels als werkplek wordt gebruikt. Op de zolder zijn bovendien elektrische screens aanwezig voor extra comfort.

Tuin
De achtertuin is maar liefst circa 12 meter diep en ligt op het noordwesten, waardoor de zon zich hier vanaf de middag laat zien en je tot in de avond heerlijk van het buitenleven kunt genieten. De tuin heeft een prettige combinatie van groen en bestrating, waardoor er ruimte is voor zowel een loungeplek als een eettafel.

Achterin de tuin staat een houten berging, ideaal voor het opbergen van fietsen en tuinspullen. Een groot pluspunt is dat de woning grenst aan een mandelig parkeerhof, waardoor je vrijer zit dan bij veel andere woningen. Hier bevindt zich tevens de eigen parkeerplaats.

Details
- Woonoppervlak circa 136 m2
- Bouwjaar 2017
- 4 volwaardige slaapkamers
- Kunststof dakkapel / HR beglazing (2020)
- 14 zonnepanelen
- Energielabel A
- Vloerverwarming op de begane grond
- Moderne keuken met o.a. AEG apparatuur en kokend waterkraan
- Nieuwe koel-vriescombinatie (2025)
- Eigen parkeerplaats op mandelig terrein
- Glasvezel aanwezig
- Dak-, vloer- en muurisolatie
- Kindvriendelijke en rustige woonomgeving
- Momenteel erfpacht, maar bij verkoop opgeheven; levering als volle eigendom (eigen grond).

Locatie en omgeving
De woning is gelegen in een prettig en rustig gedeelte van de populaire woonwijk Triangel in Waddinxveen. Deze jonge wijk staat bekend om haar ruime opzet, groene inrichting en kindvriendelijke karakter. In de directe omgeving zijn diverse speelvoorzieningen, brede straten en wandelroutes aanwezig, wat het een ideale plek maakt voor onder andere gezinnen. Voor dagelijkse voorzieningen hoef je niet ver te zoeken. Het winkelcentrum Gouweplein ligt op korte afstand en biedt een breed aanbod aan winkels, supermarkten, horeca en andere voorzieningen. Ook scholen, kinderopvang en sportverenigingen bevinden zich in de directe omgeving van de woning.

De bereikbaarheid is uitstekend. Het treinstation Waddinxveen Triangel ligt op circa 5 minuten afstand, waardoor je snel verbinding hebt met omliggende steden zoals Gouda en Alphen aan den Rijn. Daarnaast zijn de uitvalswegen A12 en A20 binnen enkele minuten bereikbaar. Hierdoor zijn steden als Rotterdam, Den Haag, Utrecht en Zoetermeer eenvoudig en snel te bereiken. Ook liefhebbers van natuur en recreatie zitten hier goed. In de omgeving bevinden zich diverse wandel- en fietsroutes richting het Groene Hart, waar je kunt genieten van rust, natuur en buitenleven.

Kortom: een moderne woning op een uitstekende locatie, waar rust, bereikbaarheid en voorzieningen perfect samenkomen.

BEZICHTIGING INPLANNEN?
Bent u enthousiast geworden over deze woning en benieuwd naar de ruimte en het wooncomfort dat Hendrik Copijnstraat 13 te bieden heeft? Wij nodigen u van harte uit om de woning zelf te komen bekijken. Neem gerust contact met ons op om een bezichtiging in te plannen.

Deze vrijblijvende objectinformatie is met de meeste zorg samengesteld, maar voor de juistheid daarvan kunnen wij geen aansprakelijkheid aanvaarden. Ook kan aan de vermelde gegevens geen enkel recht worden ontleend. Alle informatie is enkel en alleen bedoeld voor de presentatie van het object en niet meer dan een uitnodiging tot het doen van een bod. Eventueel bijgevoegde plattegronden zijn slechts indicatief.

Lees meer

Kenmerken

Overdracht

Prijs per m2
€ 4.265
Aangeboden sinds
12 maart 2026
Status
Verkocht onder voorbehoud
Aanvaarding
In overleg

Bouw

Soort woonhuis
Eengezinswoning, tussen woning
Soort bouw
Bestaande bouw
Bouwjaar
2017
Soort dak
Zadeldak
Staat van onderhouden binnen
Uitstekend
Staat van onderhouden buiten
Uitstekend

Oppervlakte en inhoud

Perceeloppervlakte
128 m2
Inhoud van de woning
484 m3
Oppervlakte externe bergruimte
5 m2

Indeling

Aantal kamers
5
Aantal slaapkamers
4
Aantal woonlagen
3
Voorzieningen
Tuin, schuur/berging, buitenzonwering

Buitenruimte

Balkon
Nee
Schuur/berging
Ja

Maandlasten berekenen

De maandlasten voor je woning bestaan uit meer dan alleen de hypotheeklasten. Hieronder vind je een overzicht van de bijkomende kosten en lasten. Zo weet je precies wat je huis per maand gaat kosten. En met de handige vergelijkers kun je ook nog eens snel de beste deals sluiten!

  • Kaart
  • Streetview