Heggewinde 13 2742 DZ Waddinxveen

123m2
Wonen
4
Kamers
146m2
Perceel
1972
Bouwjaar
Deze praktische en royale hoekwoning ligt op een mooie plek in de wijk Groenswaard. De woning is zeer goed onderhouden, heeft een royale woonkamer en keuken van ongeveer 43m2 en er zijn nu 3 (of desgewenst 4) slaapkamers op de verdiepingen. De badkamer is voorzien van ligbad, douchecabine en tweede toilet. Verder is er een ruime zolder met dakkapel en veel opbergruimte. De zonnige tuin ligt op het zuiden.
Bij deze woning wordt optioneel een garage aangeboden. De vraagprijs voor deze garage bedraagt € 36.000,00 kosten koper.
Begane grond
Je komt deze woning binnen in een gang met aan de rechterzijde de toiletruimte met vrij hangend closet en fontein, vervolgens de moderne meterkast met 8 groepen en aparte kookgroep. Er is daarnaast plek om jassen op te hangen en de praktische vaste kast houdt het mooi opgeruimd.
Het zitgedeelte bevindt zich aan de voorzijde. Loop door naar de Z-vormige woonkamer en wauw, wat een plek! Dankzij de erker aan de voorzijde geniet je van extra licht en ruimte – en kijk je vrij uit over de straat. Da’s nét dat beetje meer sfeer waar je blij van wordt.. In de vloer van de begane grond is vloerverwarming aangebracht en zijn marmer vloertegels toegepast. Het plafond is gedeeltelijk verlaagd en voorzien van inbouwspots. De Z-vormige woonkamer heeft samen met de keuken een totaal vloeroppervlak van ongeveer 43m2.
De keuken bevindt zich aan de achterzijde en is U-vormig opgesteld. Door de grote raampartij met ramen tot op de vloer is er veel lichtinval vanaf deze zijde. De keuken beschikt over diverse apparatuur, zoals een vaatwasser, combi-oven, inductiekookplaat met afzuigschouw, close-in boiler en koelkast. De keuken is greeploos uitgevoerd en heeft een granieten werkblad. Zet een paar barkrukken aan het schiereiland, schuif erbij aan met een kop koffie en start je dag relaxed.
Een spiltrap geeft vanuit de woonkamer toegang tot de eerste verdieping.

Eerste verdieping
Op de eerste verdieping kun je alle kanten op. De grootste slaapkamer aan de voorkant – de masterbedroom – is echt riant en voelt als een luxe hotelkamer. Door de samenvoeging van twee kamers is er maar liefst zo’n 21m2 aan ruimte, compleet met kastenwand en een plafond met spots. Nooit meer stoeien met te weinig kledingruimte!
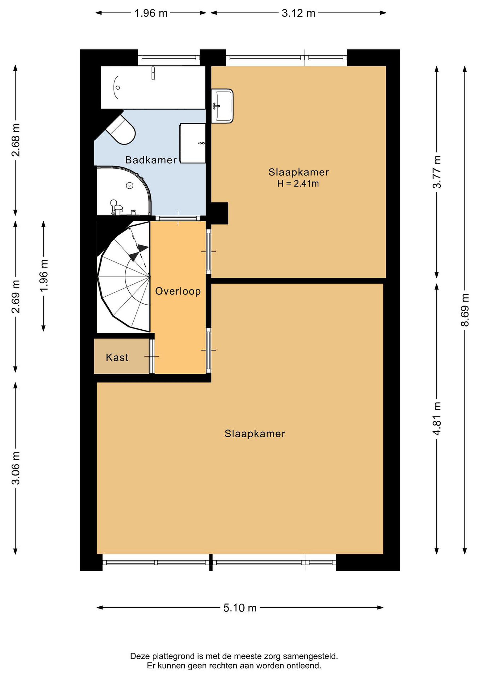
De kamer aan de achterkant heeft een eigen wastafel – ideaal voor de kinderen of gasten, zeker in de drukke ochtenden. Deze slaapkamer is bovendien voorzien van een elektrisch bediende screen.
De badkamer is heerlijk ruim. Spetteren in het ligbad, snel douchen in de cabine, tandenpoetsen bij de wastafel: zelfs met z’n allen kun je hier perfect uit de voeten. Extra pluspunt: elektrische vloerverwarming zorgt ook hier voor warme voeten en het tweede toilet is een slimme bonus.

Tweede verdieping
De tweede woonlaag heeft een ruime voorzolder, een slaapkamer en een royale opbergruimte. Op de voorzolder bevindt zich de omvormer van de zonnepanelen, CV-combiketel (bouwjaar 2016) en de wasmachineaansluiting. De vloer is heel praktisch voorzien van tegels. Aan de achterzijde is een brede dakkapel op het huis aanwezig. Deze dakkapel geeft licht en ruimte op de voorzolder en ook in de slaapkamer. Vanuit de slaapkamer geeft een deur toegang tot een flinke opbergruimte. En als dat nog niet genoeg is dan is er boven de slaapkamer bovendien een grote opbergvliering welke via een losse trap toegankelijk is.

Tuin
De tuin ligt op het zuiden en is daarmee de gehele dag zonnig. Aan de gevel van het huis is een elektrisch bediend zonnescherm bevestigd. De tuin is geheel voorzien van sierbestrating , er is een buitenkraan en achter in de tuin staat een stenen berging welke is voorzien van elektra. Er is een achterom aanwezig.

Garage:
De garage die bij de woning optioneel wordt aangeboden is rechtstreeks vanuit de tuin bereikbaar via een deur. Deze garage is voorzien van elektra en er is een elektrisch bediende sectionaaldeur geplaatst voor extra gebruiksgemak. Het garagedak is in 2010 vernieuwd.


Details
Achtergevel voorzien van kunststof kozijnen.
Voorgevel en dakkapel voorzien van houten kozijnen.
Schilderwerk voorzijde uitgevoerd in 2024, schilderwerk dakkapel 2025.
Platte dak van berging vernieuwd in 2005, de uitbouw voorzijde in 2019.
Op het dak zijn 6 zonnepanelen aanwezig.
Woning geheel voorzien van dubbel glas, dakisolatie en vloerisolatie;
Vloerverwarming op de begane grond;
Moderne groepenkast;
CV-combiketel bouwjaar 2016.
De woning heeft energielabel C.

Ligging:
Deze woning ligt aan een rustige straat in de wijk Groenswaard. waar alleen bestemmingsverkeer komt. Er zijn openbare parkeerplaatsen voor de deur. De woning ligt op loopafstand van winkelcentrum Groensvoorde en ook het KW-Plein met onder meer een supermarkt is op korte afstand. Schuin achter de woning ligt aan het eind van de straat een leuk speelveld voor de kinderen. Het treinstation Waddinxveen Noord is eveneens op loopafstand bereikbaar.

Afmetingen:
Woonkamer   7,07 x 3,59/5,10m (35,80m2)
Keuken    2,80 x 2,80m    ( 7,85m2)
Slaapkamer 1    5,10 x 4,81/3,06m (21,00m2)
Slaapkamer 2   3,77 x 3,12m   (11,75m2)
Badkamer      2,68 x 1,96m   ( 5,25m2)
Slaapkamer 3 4,30 x 3,08m    (12,25m2)
Garage     5,65 x 2,93m    (16,55m2)
Berging in tuin    3,24 x 2,15m   ( 7,75m2)
Achtertuin   9,65 x 5,45m    (45,00m2)

Deze vrijblijvende objectinformatie is met de meeste zorg samengesteld, maar voor de juistheid daarvan kunnen wij geen aansprakelijkheid aanvaarden. Ook kan aan de vermelde gegevens geen enkel recht worden ontleend. Alle informatie is enkel en alleen bedoeld voor de presentatie van het object en niet meer dan een uitnodiging tot het doen van een bod. Eventueel bijgevoegde plattegronden zijn slechts indicatief.

Lees meer

Kenmerken

Overdracht

Prijs per m2
€ 3.732
Aangeboden sinds
5 maart 2026
Status
Beschikbaar
Aanvaarding
In overleg

Bouw

Soort woonhuis
Eengezinswoning, hoek woning
Soort bouw
Bestaande bouw
Bouwjaar
1972
Soort dak
Zadeldak
Staat van onderhouden binnen
Goed
Staat van onderhouden buiten
Goed

Oppervlakte en inhoud

Perceeloppervlakte
146 m2
Inhoud van de woning
418 m3
Oppervlakte externe bergruimte
7 m2

Indeling

Aantal kamers
4
Aantal slaapkamers
3
Aantal woonlagen
4
Voorzieningen
Tuin, schuur/berging, ventilatie, glasvezel, buitenzonwering

Buitenruimte

Balkon
Nee
Schuur/berging
Ja

Maandlasten berekenen

De maandlasten voor je woning bestaan uit meer dan alleen de hypotheeklasten. Hieronder vind je een overzicht van de bijkomende kosten en lasten. Zo weet je precies wat je huis per maand gaat kosten. En met de handige vergelijkers kun je ook nog eens snel de beste deals sluiten!

  • Kaart
  • Streetview