Verkocht

Haverakker 6 2743 EJ Waddinxveen

98m2
Wonen
4
Kamers
113m2
Perceel
1985
Bouwjaar
Haverakker 6

Instapklaar wonen aan de singel: Uitgebouwde badkamer, kunststof dakkapellen én middels openslaande deuren naar de zonnige tuin op het zuidwesten!
Ben je op zoek naar een huis waar luxe en comfort centraal staan? En wil je wonen op een plek waar je vrij wegkijkt over het water? Dan is Haverakker 6 jouw nieuwe thuis. Deze woning combineert een sfeervolle maar moderne afwerking met een heerlijk rustige ligging. Met een energielabel (A) dat profiteert van maar liefst 8 zonnepanelen, kunststof dakkapellen, kunststof achterpui en een begane grond met vloerverwarming, is dit huis klaar voor de toekomst.
Begane grond
Luxe binnenkomst & Wonen De kwaliteit straalt er bij binnenkomst direct vanaf.
Via de overdekte entree kom je in de hal met een uitgebreide meterkast en een modern gerenoveerd toilet met hangend closet en fonteintje. De eyecatcher hier is de stoere stalen deur die toegang geeft tot de woonkamer. De woonkamer is een plaatje om te zien. De fraaie tegelvloer is over de gehele begane grond doorgelegd en voorzien van comfortabele vloerverwarming. De wanden en het plafond zijn strak gestuukt, wat zorgt voor een rustige en moderne basis. Aan de achterzijde zorgen de kunststof openslaande deuren voor een perfecte verbinding met de zonnige achtertuin. Heb je extra bergruimte nodig? Dan biedt de trapkast uitkomst.
Aan de voorzijde vind je de witte hoekkeuken met een kunststof werkblad. Terwijl je kookt op de 5-pits gaskookplaat (gas-op-glas), kijk je leuk weg over het slootje en het groen voor de deur. De keuken is verder compleet uitgerust met o.a. een vaatwasser en koelkast.

Eerste verdieping
Ruimte & Comfort op de verdieping
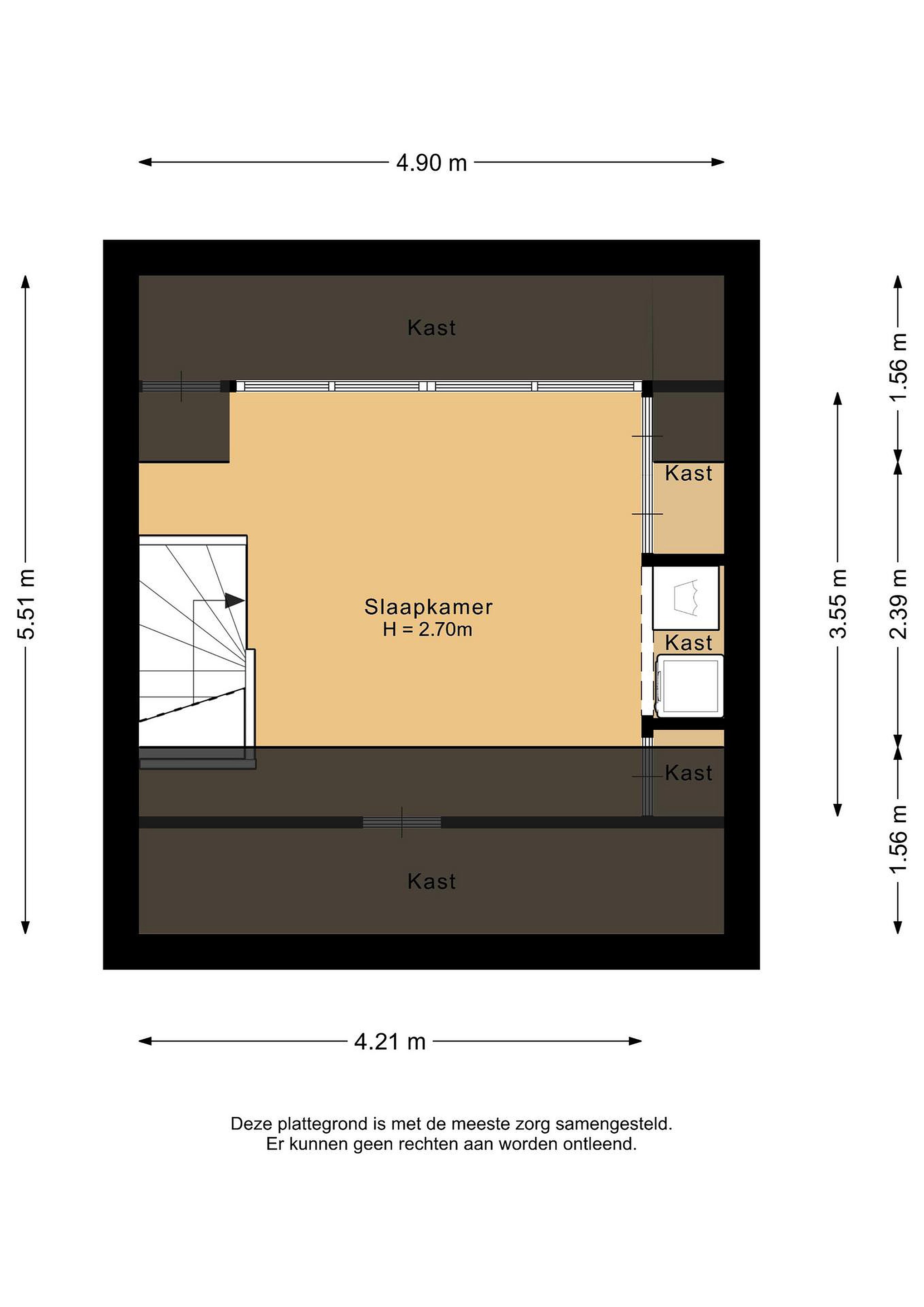
De eerste verdieping is voorzien van een nette laminaatvloer. Dankzij de beide dakkapellen is hier verrassend veel ruimte ontstaan. Aan de linkerzijde (achter) bevindt zich een royale, woningbrede slaapkamer met een kunststof dakkapel (2021). Deze is luxe uitgevoerd met inbouwspots en elektrische rolluiken – heerlijk voor de nachtrust. Aan de rechterzijde (voor) vind je de tweede ruime slaapkamer (voorheen twee kamers). Ook hier zorgt een kunststof dakkapel voor extra licht en ruimte, en zijn de schuine kanten slim benut met knieschotten.
De badkamer is een absoluut pluspunt: deze is uitgebouwd, volledig betegeld en strak gestuukt plafond. Je beschikt hier over pure luxe met zowel een ligbad als een aparte doucheruimte met (draaibare) glaswand. Een modern meubel, tweede toilet en mechanische ventilatie maken het geheel compleet.

Tweede verdieping
Zolder & Buitenleven
Via de vaste trap bereik je de afgetimmerde zolderverdieping. Ook hier is in een brede kunststof dakkapel geplaatst met inbouwspots, waardoor een volwaardige open zolderruimte is ontstaan. De wasmachine, droger en CV-opstelling zijn netjes weggewerkt in de achterwand.
De achtertuin ligt perfect op het zonnige zuidwesten en is fraai aangelegd. Over de volledige achterzijde is een grote berging gebouw met aan de zijkant een flinke overkapping. via de overkapping is er toegang tot de achterpoort, waarmee je in een tel op het parkeerterrein bent. De ligging aan het water aan de voorzijde geeft veel privacy omdat je geen directe overburen hebt.

Details
Locatie Je woont hier midden in de aantrekkelijke wijk Zuidplas, aan een rustig voetpad. Scholen, winkels en openbaar vervoer liggen op loop- of fietsafstand. Bovendien ben je met de auto zo op de uitvalswegen richting de grote steden.

De feiten op een rij:
- Bouwjaar 1985, gelegen op eigen grond;
- Duurzaam: voorzien van 8 zonnepanelen
- Geheel geïsoleerd, grotendeels HR++ glas
- Begane grond: strak gestuukt, stalen deur, tegelvloer mét vloerverwarming;
- Kunststof openslaande deuren naar de tuin;
- 3 nieuwe woningbrede kunststof dakkapellen, waarvan er één voorzien is van een elektrische rolluik;
- Luxe, uitgebouwde badkamer met ligbad, douche én toilet;
- Zonnige tuin op het zuidwesten en vrij uitzicht aan de voorzijde;
- Oplevering in overleg, medio april/mei 2026

Bijzonderheden: Deze woning is gebouwd in 1985 op een perceel eigen grond van 113 m2. De inhoud bedraagt 337 m3 en het gebruiksoppervlak (wonen, gemeten volgens NEN 2580) is circa 98 m2. We nodigen je van harte uit om de fotopresentatie van deze woning te bekijken, inclusief de 2D- en 3D-plattegronden op deze website of onze eigen site.

Ben je enthousiast geworden? Neem dan gerust contact met ons op voor een uitgebreide bezichtiging.

Disclaimer: Deze vrijblijvende objectinformatie is met de grootste zorg samengesteld, maar voor de juistheid ervan kunnen wij geen aansprakelijkheid aanvaarden. Aan de informatie kunnen geen rechten worden ontleend. Alle gegevens dienen uitsluitend ter presentatie van het object en vormen slechts een uitnodiging tot het doen van een bod. Eventuele plattegronden zijn indicatief.

Lees meer

Verkoopgeschiedenis

Aangeboden sinds
13 januari 2026
Verkoopdatum
13 maart 2026
Looptijd
2 maanden

Kenmerken

Overdracht

Prijs per m2
€ 4.592
Aangeboden sinds
13 januari 2026
Status
Verkocht
Aanvaarding
In overleg

Bouw

Soort woonhuis
Eengezinswoning, tussen woning
Soort bouw
Bestaande bouw
Bouwjaar
1985
Soort dak
Zadeldak
Staat van onderhouden binnen
Uitstekend
Staat van onderhouden buiten
Uitstekend

Oppervlakte en inhoud

Perceeloppervlakte
113 m2
Inhoud van de woning
337 m3
Oppervlakte externe bergruimte
9 m2
Oppervlakte gebouwgebonden buitenruimten
5 m2
Oppervlakte overige inpandige ruimten
5 m2

Indeling

Aantal kamers
4
Aantal slaapkamers
3
Aantal woonlagen
3
Voorzieningen
Tuin, schuur/berging, ventilatie, rolluiken, glasvezel, dakraam

Buitenruimte

Balkon
Nee
Schuur/berging
Ja

Maandlasten berekenen

De maandlasten voor je woning bestaan uit meer dan alleen de hypotheeklasten. Hieronder vind je een overzicht van de bijkomende kosten en lasten. Zo weet je precies wat je huis per maand gaat kosten. En met de handige vergelijkers kun je ook nog eens snel de beste deals sluiten!

  • Kaart
  • Streetview