Verkocht

H. Heijermanslaan 18 2741 ZJ Waddinxveen

103m2
Wonen
5
Kamers
147m2
Perceel
1965
Bouwjaar
Deze praktische eengezinswoning beschikt over een heerlijk ruime doorzon woonkamer, drie slaapkamers en badkamer op de eerste verdieping en een zolder met nog een extra slaapkamer en dakkapel. De woning is bijzonder netjes bewoond en zeer goed onderhouden. Er is een ruime, onderhoudsvriendelijke, zonnige tuin op het westen. De woning is geheel voorzien van dubbel glas en kruipruimte isolatie, het energielabel is C. Laat je verrassen en maak een afspraak om deze fijne gezinswoning te komen bekijken.
Begane grond
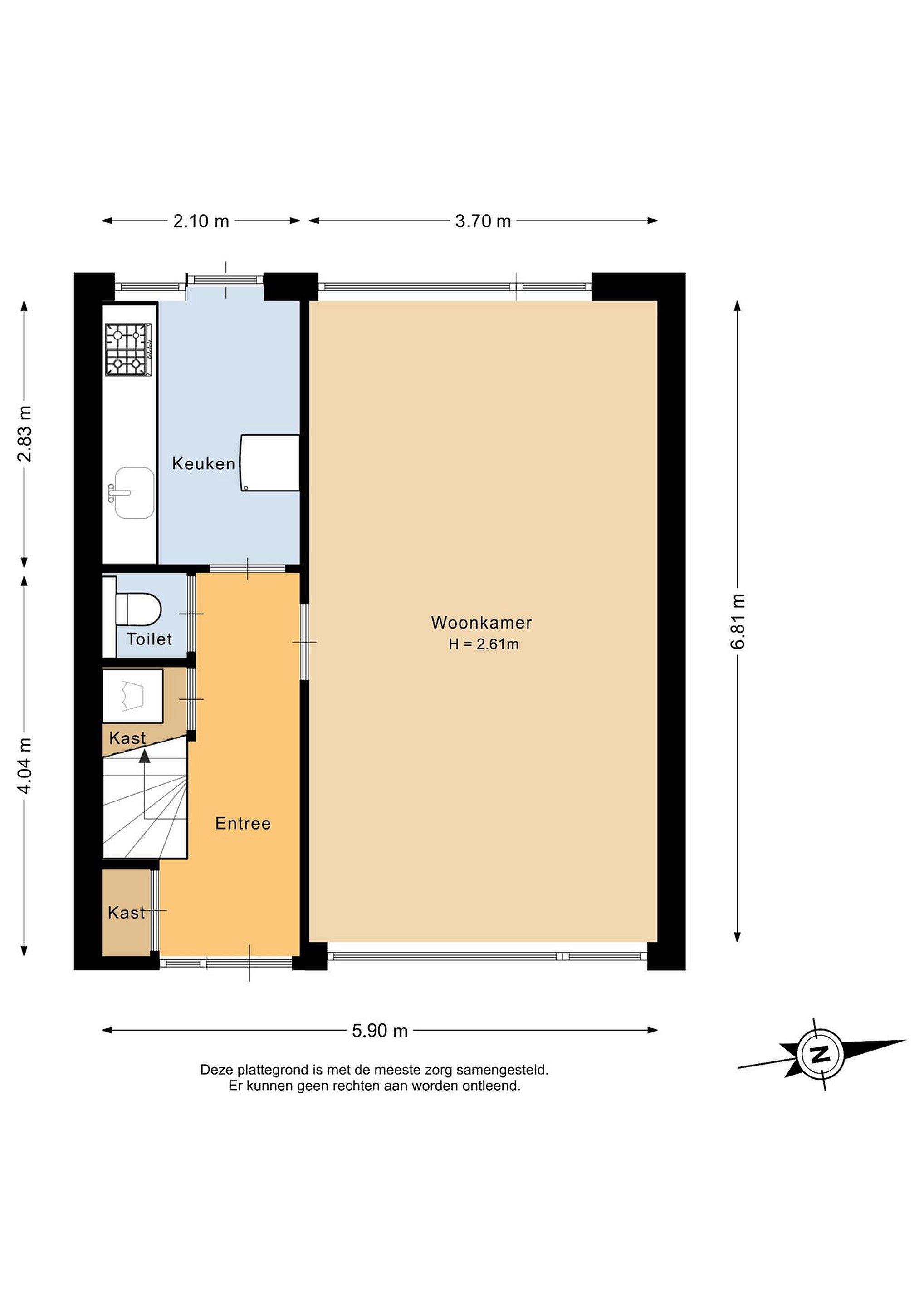
Je komt deze woning binnen in een gang met links de meterkast, dan de trapopgang naar de eerste verdieping, de trapkast met wasmachineaansluiting en het toilet. Het toilet is geheel betegeld en voorzien van vrij hangend closet. Vanuit de gang kun je doorlopen naar de woonkamer of naar de keuken.
De woonkamer beschikt over grote ramen, waardoor er veel lichtinval in de woning is. In het verleden is er een open keuken geweest, maar op enig moment is de muur teruggeplaatst en is de keuken apart gemaakt.
De keuken heeft aan twee zijden een rechte opstelling met veel opbergruimte en heeft in de vloer een elektrische vloerverwarming. Er is een vierpits gaskookplaat met afzuigschouw en combi-magnetron. De koel-/vrieskast wordt ter overname aangeboden. Vanuit de keuken geeft een deur toegang tot de tuin.

Eerste verdieping
Op de eerste verdieping zijn drie slaapkamers. Alle slaapkamers en de overloop zijn voorzien van laminaat. De plafonds zijn afgewerkt met gips. Op de overloop is een inbouwkast aanwezig.
De badkamer is geheel betegeld en beschikt over een doucheruimte, een wastafel, radiator en inbouwspots in het gestuukte plafond.


Tweede verdieping
Bovenaan de trap kom je op de overloop. Hier is lichtinval en ventilatiemogelijkheid door de aanwezigheid van een Velux dakraam. Achter knieschotten is opbergruimte en ook de cv-combiketel heeft hier zijn plek. Vanaf de overloop is er toegang tot twee kamers. De kleine kamer heeft eveneens een Velux dakraam en kan prima gebruikt worden als hobby/werkruimte. De royale slaapkamer is voorzien van een dakkapel aan de achterzijde en een dakraam aan de voorzijde.
De hele zolderverdieping biedt veel opbergruimte. Zo zijn er ook knieschotten in de slaapkamer en er is een bergvliering in de nok van het huis. Deze bergvliering is zowel bereikbaar vanuit de voorzolder en vanuit de slaapkamer door middel van een luik. Zo zijn alle plekken op zolder goed benut en helpt dit om het huis opgeruimd te houden.

Tuin
De verzorgde achtertuin ligt op het westen. Een groot deel is voorzien van antraciet kleurige tegels. In het midden zijn er enkele verhoogde borders met beplanting en een waterornament. Achterin de tuin staat de stenen berging met daarnaast een overkapping. In de tuin en in de schuur is elektra aanwezig. Aan de achtergevel van het huis is recent een nieuw zonnescherm geplaatst.
De voortuin is eveneens mooi verzorgd en voorzien van een verhoogde border en sierbestrating.

Details
De woning is geheel voorzien van dubbel glas.
De kruipruimte is voorzien van isolatiechips.
Energielabel C.
Schilderwerk buitenzijde uitgevoerd in juli 2024.
CV-combiketel Remeha CW4 geplaatst in 2008.
Begane grondvloer uitgevoerd in beton, tussenvloeren hout.
De muur tussen keuken en woonkamer is eenvoudig te verwijderen door de aanwezigheid van een draagbalk.
De woning is goed onderhouden en maakt een verzorgde indruk. 

Aanvaarding in overleg, indicatie mei 2026.

Ligging:
De woning ligt in een rustige straat in de Vondelwijk in Waddinxveen-Noord. Er is openbare parkeergelegenheid. In de afgelopen jaren is de straat gerenoveerd, waarbij alle bestrating is vernieuwd en het straatbeeld er verzorgd uitziet. Openbaar vervoer (trein- en busstation) is op circa 500 meter afstand aanwezig. Diverse basisscholen bevinden zich op korte afstand. Er zijn enkele buurtwinkelcentra op korte afstand, zoals Luifelbaan, KW-Plein en Groenswaard. Ook het Gouwebos is dichtbij, ideaal voor een heerlijke wandeling of om de hond uit te laten.

Deze vrijblijvende objectinformatie is met de meeste zorg samengesteld, maar voor de juistheid daarvan kunnen wij geen aansprakelijkheid aanvaarden. Ook kan aan de vermelde gegevens geen enkel recht worden ontleend. Alle informatie is enkel en alleen bedoeld voor de presentatie van het object en niet meer dan een uitnodiging tot het doen van een bod. Eventueel bijgevoegde plattegronden zijn slechts indicatief.


Lees meer

Verkoopgeschiedenis

Aangeboden sinds
13 februari 2026
Verkoopdatum
15 april 2026
Looptijd
2 maanden

Kenmerken

Overdracht

Prijs per m2
€ 3.680
Aangeboden sinds
13 februari 2026
Status
Verkocht
Aanvaarding
In overleg

Bouw

Soort woonhuis
Eengezinswoning, tussen woning
Soort bouw
Bestaande bouw
Bouwjaar
1965
Soort dak
Zadeldak
Staat van onderhouden binnen
Uitstekend
Staat van onderhouden buiten
Uitstekend

Oppervlakte en inhoud

Perceeloppervlakte
147 m2
Inhoud van de woning
365 m3
Oppervlakte externe bergruimte
7 m2

Indeling

Aantal kamers
5
Aantal slaapkamers
4
Aantal woonlagen
4
Voorzieningen
Tuin, schuur/berging, glasvezel, buitenzonwering, dakraam

Buitenruimte

Balkon
Nee
Schuur/berging
Ja

Maandlasten berekenen

De maandlasten voor je woning bestaan uit meer dan alleen de hypotheeklasten. Hieronder vind je een overzicht van de bijkomende kosten en lasten. Zo weet je precies wat je huis per maand gaat kosten. En met de handige vergelijkers kun je ook nog eens snel de beste deals sluiten!

  • Kaart
  • Streetview