Verkocht

Grondel 21 2742 NL Waddinxveen

132m2
Wonen
5
Kamers
120m2
Perceel
2020
Bouwjaar
Instapklare eengezinswoning in Engelse landhuisstijl – modern, uitgebouwd en met eigen parkeerplaats

Welkom bij deze charmante en instapklare woning aan de Grondel 21, gelegen in de geliefde en groene wijk Park Triangel. De architectuur is geïnspireerd op de sfeervolle Engelse landhuisstijl, maar van binnen geniet je van alle moderne luxe en comfort van nu.

Deze woning uit 2020 is met recht toekomstbestendig te noemen. Dankzij de eigen bodemwarmtepomp en de 11 zonnepanelen op het achterdak woon je hier uiterst duurzaam en comfortabel (Energielabel A+++). De pomp verzorgt niet alleen de verwarming via de vloer, maar kan in de zomer ook koelen. Met een woonoppervlakte van ca. 132 m2 en een slimme indeling biedt dit huis alle ruimte voor een (groeiend) gezin.

Zie jij jezelf hier al wonen? We laten je dit prachtige huis en de fijne woonomgeving graag zien!
Begane grond
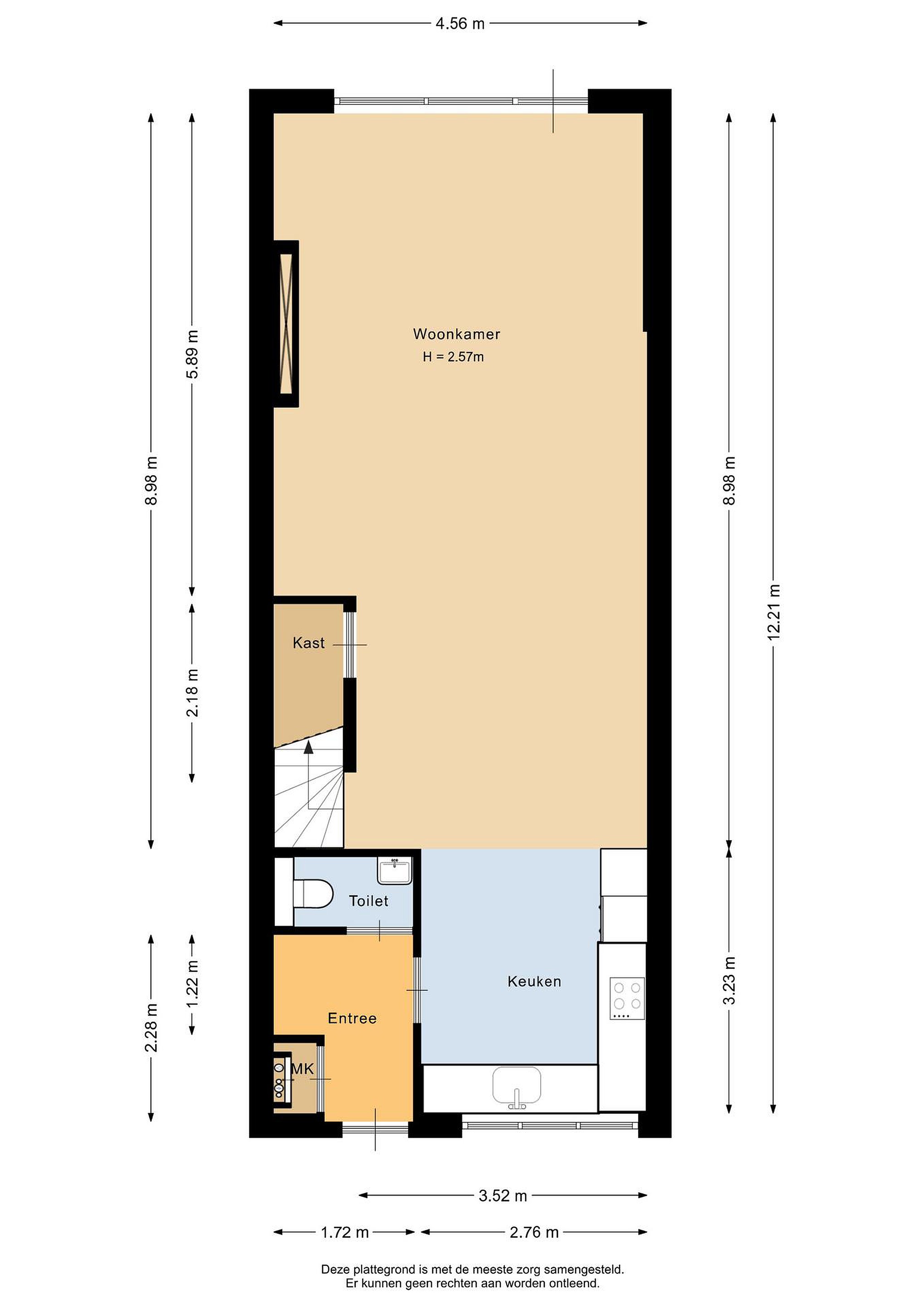
Binnenkomen in een lichte en luxe leefruimte: Je komt binnen via de voortuin in de hal met de meterkast en het moderne toilet met hangend closet. De gehele begane grond is voorzien van een fraaie pvc-vloer, die in visgraatmotief is gelegd en daarmee net dat extra chique tintje geeft. De deur van de hal naar de woonkamer is fraai uitgevoerd in het zwart met grote glaspanelen.

De woonkamer is aan de achterzijde flink vergroot door een 2,40 meter uitbouw, waardoor er een heerlijk royale zithoek is ontstaan. Dankzij de grote raampartijen en de deur naar de achtertuin valt er aangenaam veel licht naar binnen. Verder zijn er inbouwspots aangebracht in de uitbouw en is de tv ingebouwd in een zogenaamde Cinewall. Onderin deze kast is een sfeervolle elektrische haard geplaatst.

Aan de voorzijde bevindt zich de moderne open keuken in een praktische L-opstelling. Deze luxe keuken is van alle gemakken voorzien, waaronder een inductiekookplaat, combi-magnetron, vaatwasser en een koel-/vriescombinatie. De afwerking van de gehele begane grond is om door een "ringetje te halen".

Eerste verdieping
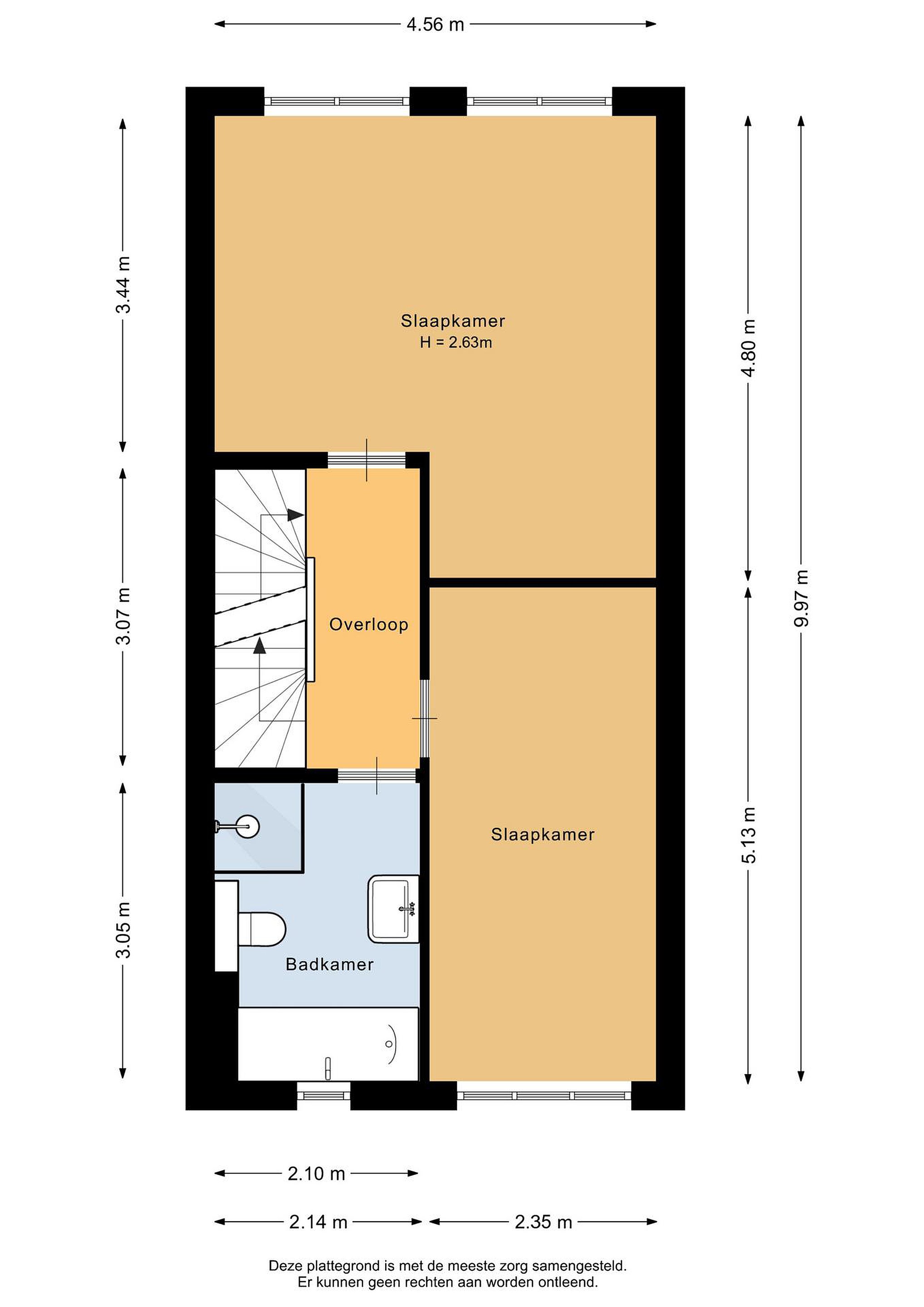
Twee verdiepingen vol woonplezier en extra kamers: Op de eerste verdieping vind je twee goed bemeten slaapkamers. De hoofdslaapkamer aan de achterzijde is woningbreed en daardoor heerlijk ruim, met afmetingen van ca. 456 x 480 cm. De slaapkamer aan de voorzijde meet ca. 235 x 513 cm. De overloop en beide kamers zijn voorzien van een nette laminaatvloer. De badkamer is luxe uitgevoerd en volledig betegeld, voorzien van een ligbad, een inloopdouche, een tweede toilet en een wastafel.

Tweede verdieping
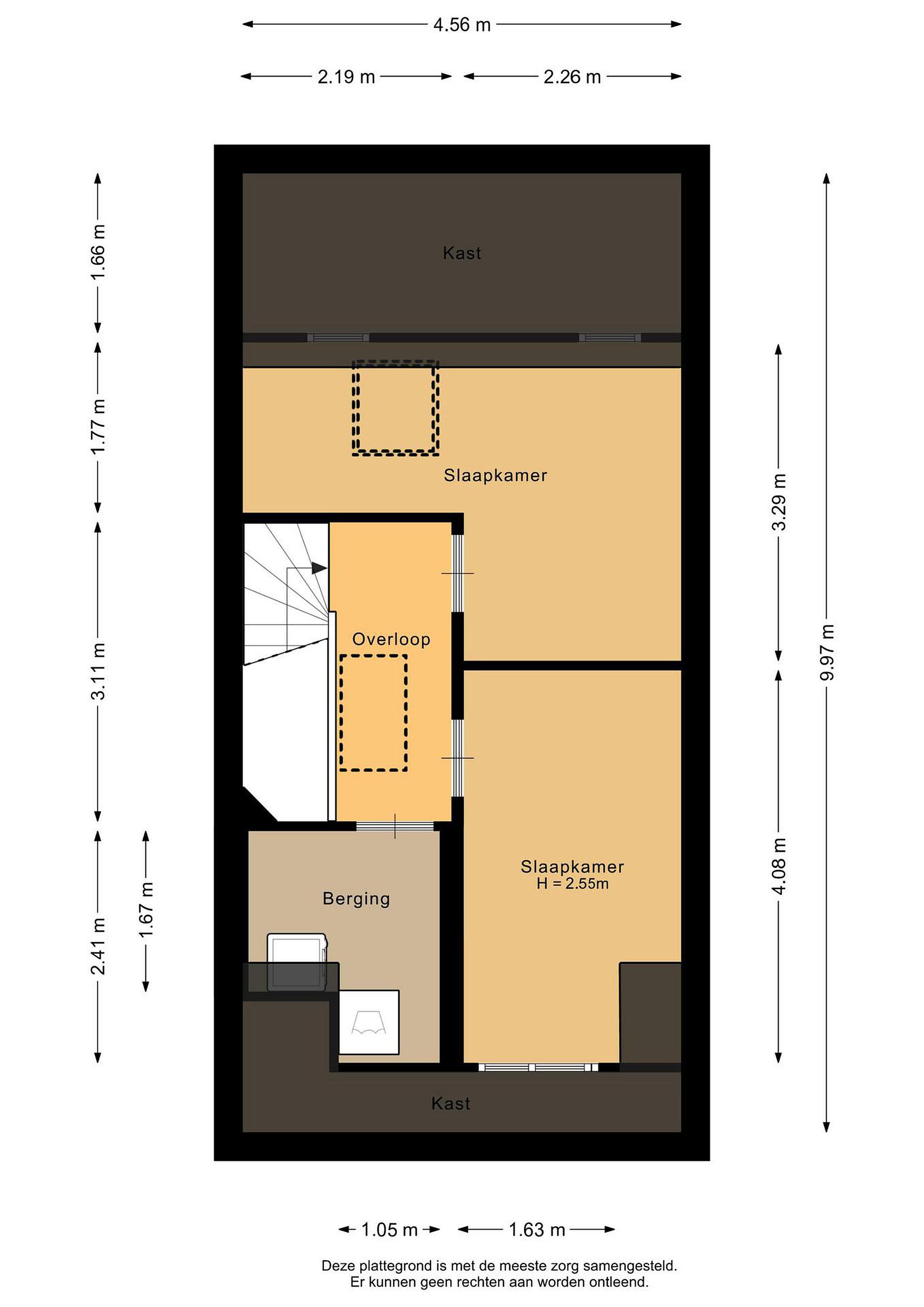
De tweede verdieping is dankzij de dakkapel aan de voorzijde getransformeerd tot een volwaardige woonlaag met twee extra slaapkamers (456 x 329 cm en 226 x 4,08 cm groot). Ook deze ruimte is weer perfect afgewerkt, zodat je er direct in kunt. Op deze verdieping bevindt zich tevens de technische ruimte met de opstelling voor de bodemwarmtepomp, warmwaterboiler en de aansluitingen voor de wasmachine en droger. Boven deze verdieping is een grote bergvliering gerealiseerd, welke middels een vlizotrap bereikbaar is.

Tuin
Tuin en parkeren: gemak rondom huis: De achtertuin is gelegen op het noordoosten en is keurig aangelegd. Direct aan de woning grenst een heerlijk zonneterras, gevolgd door een gazon van (kunst)gras en een tweede terras achterin de tuin. Het geheel is omzoomd door een houten erfafscheiding en beschikt over een praktische berging voorzien van elektra.

Dankzij de diepe afmeting van circa 11,4 x 4,9 meter geniet je hier in de zomer de gehele dag van de zon: in de ochtend op het terras bij de woning en tot in de avonduren op het tweede terras achterin.

Via de achterom bereik je het mandelige binnenterrein, waar je de beschikking hebt over een eigen parkeerplaats.

Details
De ligging: De Grondel 21 ligt in het nieuwe gedeelte van Park Triangel dicht bij de nieuwe school die nu in aanbouw is. Je woont hier op korte afstand van diverse voorzieningen zoals winkelcentrum Gouweplein, scholen, kinderopvang, sportvoorzieningen en het grote speel- en wandelpark. Met de A12 en A20 op enkele minuten rijden ben je ook zo in Rotterdam, Utrecht of Den Haag.

Belangrijk om te weten
- Bouwjaar: 2020
- Woonoppervlakte: ca. 132 m2 (na uitbouw en dakkapel)
- Inhoud: ca. 490 m3
- Perceel: 118 m2
- Duurzaamheid: Volledig gasloos met een bodemwarmtepomp (verwarming én koeling)
- Zonnepanelen: 11 panelen op het achterdak
- 4 ruime slaapkamers
- Bergvliering met vlizotrap
- Luxe extra's: Uitbouw van 2,40 meter, PVC- vloer gelegd in een visgraatmotief, Cinewall met elektrische haard en dakkapel
- Parkeren: Eigen parkeerplaats op het achtergelegen mandelige terrein
- Garantie: SWK garantie vanuit de nieuwbouw is nog van toepassing

Ben jij op zoek naar een ruime woning, gelegen in een enorm leuke en moderne woonwijk? Maak dan snel een afspraak voor een bezichtiging! De oplevering is in overleg met de verkopers. Indicatie juni/juli 2026, maar is gekoppeld aan oplevering van de nieuwbouwwoning van verkoper.

Bijzonderheden: Deze vrijblijvende objectinformatie is met de meeste zorg samengesteld, maar voor de juistheid daarvan kunnen wij geen aansprakelijkheid aanvaarden. Ook kan aan de vermelde gegevens geen enkel recht worden ontleend. Alle informatie is enkel en alleen bedoeld voor de presentatie van het object en niet meer dan een uitnodiging tot het doen van een bod. Eventueel bijgevoegde plattegronden zijn slechts indicatief.

Lees meer

Verkoopgeschiedenis

Aangeboden sinds
23 februari 2026
Verkoopdatum
22 april 2026
Looptijd
2 maanden

Kenmerken

Overdracht

Prijs per m2
€ 4.545
Aangeboden sinds
23 februari 2026
Status
Verkocht
Aanvaarding
In overleg

Bouw

Soort woonhuis
Eengezinswoning, tussen woning
Soort bouw
Bestaande bouw
Bouwjaar
2020
Soort dak
Zadeldak
Staat van onderhouden binnen
Uitstekend
Staat van onderhouden buiten
Uitstekend

Oppervlakte en inhoud

Perceeloppervlakte
120 m2
Inhoud van de woning
489 m3
Oppervlakte externe bergruimte
6 m2

Indeling

Aantal kamers
5
Aantal slaapkamers
4
Aantal woonlagen
4
Voorzieningen
Tuin, schuur/berging, ventilatie, glasvezel, dakraam

Buitenruimte

Balkon
Nee
Schuur/berging
Ja

Maandlasten berekenen

De maandlasten voor je woning bestaan uit meer dan alleen de hypotheeklasten. Hieronder vind je een overzicht van de bijkomende kosten en lasten. Zo weet je precies wat je huis per maand gaat kosten. En met de handige vergelijkers kun je ook nog eens snel de beste deals sluiten!

  • Kaart
  • Streetview