Dorpstraat 14 2742 AJ Waddinxveen

192m2
Wonen
6
Kamers
200m2
Perceel
2001
Bouwjaar
Welkom aan de Dorpstraat 14

Aan de karakteristieke Dorpstraat in Waddinxveen staat deze verrassend ruime en uitstekend onderhouden twee-onder-een-kapwoning. Al bij aankomst valt op dat de woning met zorg is bewoond, wat onder meer terug te zien is in het strakke buitenschilderwerk. Wat deze woning echter echt bijzonder maakt, is de combinatie van een royale leefruimte en een duurzame visie op de toekomst. De woning is namelijk volledig aardgasvrij en voorzien van zonnepanelen, waardoor de energiekosten tot een minimum beperkt blijven.

Bij binnenkomst wordt u verwelkomd in een sfeervolle woonkamer aan de voorzijde. De routing leidt u op natuurlijke wijze naar de achterzijde van het huis, waar de riante woonkeuken het kloppend hart van de woning vormt. Deze keuken in landelijke stijl is van alle gemakken voorzien en biedt meer dan genoeg ruimte om uitgebreid te tafelen met het gezin of vrienden. Direct aangrenzend vindt u de praktische bijkeuken met de aansluitingen voor het witgoed, die bovendien binnendoor toegang biedt tot de garage.

De indrukwekkende woonoppervlakte van maar liefst 192 m2 zet zich voort op de bovenliggende verdiepingen. De eerste verdieping beschikt over drie ruim opgezette slaapkamers en een lichte badkamer die via de overloop bereikbaar zijn. Een vaste trap brengt u naar de zolderverdieping, waar door de plaatsing van twee dakkapellen nog eens twee volwaardige slaapkamers zijn gecreëerd. Voor de spullen die u niet dagelijks nodig heeft, biedt de bergvliering – bereikbaar via een vlizotrap – de nodige extra opslagruimte.

Niet alleen binnenshuis, maar ook buiten is alles tot in de puntjes verzorgd. De achtertuin is gunstig gelegen op het westen, waardoor u hier tot laat op de dag van de zon kunt genieten. Voor wie zich zorgen maakt over parkeergelegenheid: naast de eigen garage ligt er direct achter de woning een openbaar parkeerterrein waar u en uw bezoek altijd moeiteloos de auto kwijt kunnen. Het resultaat is een instapklaar en toekomstbestendig familiehuis op een centrale,
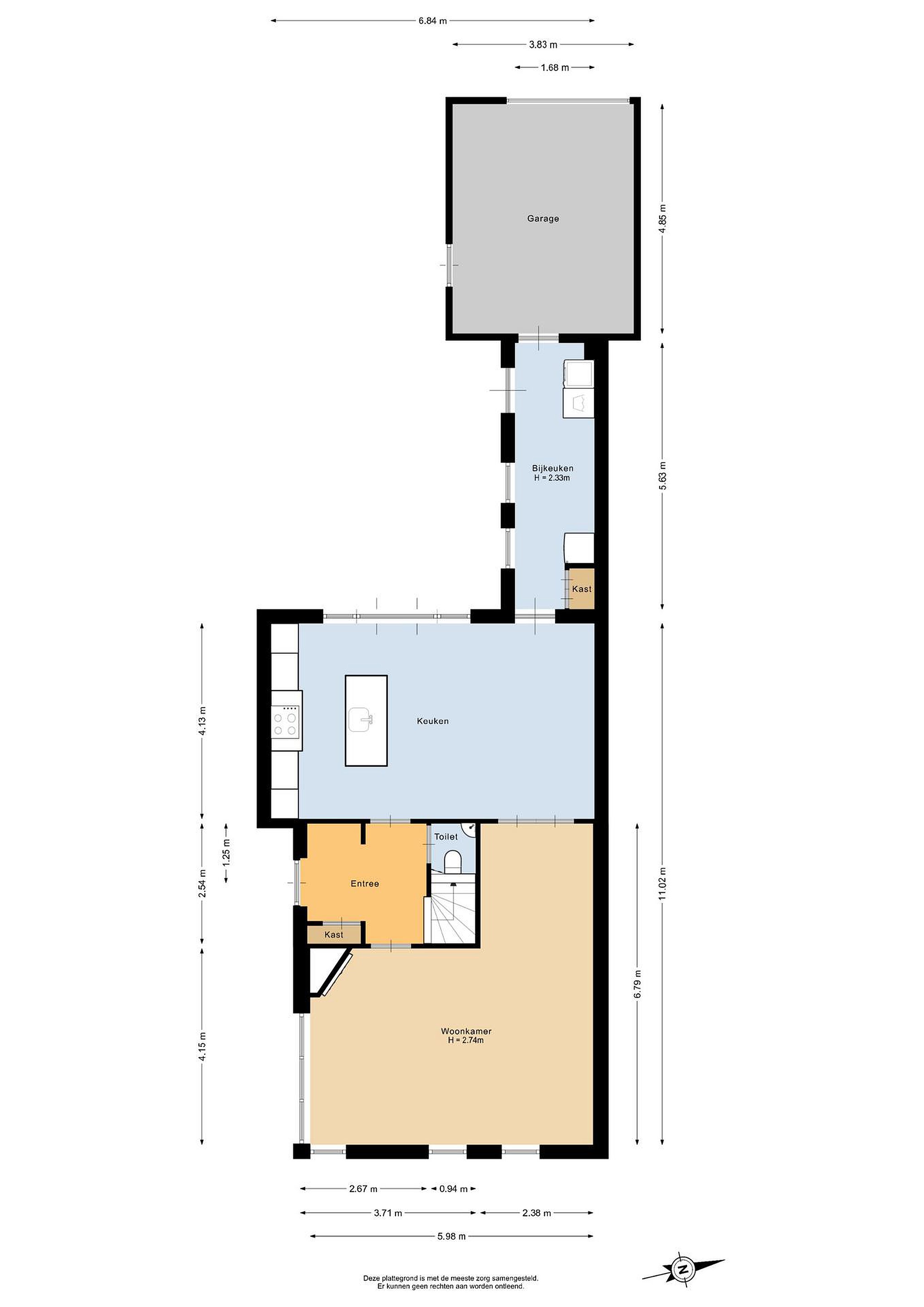
Begane grond
Uw ontvangst bij Dorpstraat 14 begint bij de overdekte entree aan de zijgevel, die direct toegang biedt tot een royale hal. Hier vindt u niet alleen de trapopgang en een volledig betegeld toilet, maar ook een praktische garderoberuimte en de uitgebreide meterkast. Vanuit de hal stapt u de sfeervolle woonkamer binnen, waar de fraaie houten vloer direct een gevoel van warmte geven terwijl u uitkijkt over de levendige Dorpstraat.

Via karakteristieke openslaande deuren bereikt u de ruime woonkeuken, die dankzij de plavuizenvloer en de landelijke opstelling een robuust karakter heeft. Het vormt het hart van deze ruimte, geflankeerd door hoogwaardige inbouwapparatuur zoals een inductiekookplaat onder een fraaie schouw, koelkast, vriezer en vaatwasmachine. De openslaande deuren aan de achterzijde verbinden het binnenleven naadloos met de tuin. Praktisch gemak is te vinden in de aangrenzende bijkeuken, die naast de wasaansluitingen ook een directe doorgang biedt naar de opvallend brede garage van 3,80 meter.


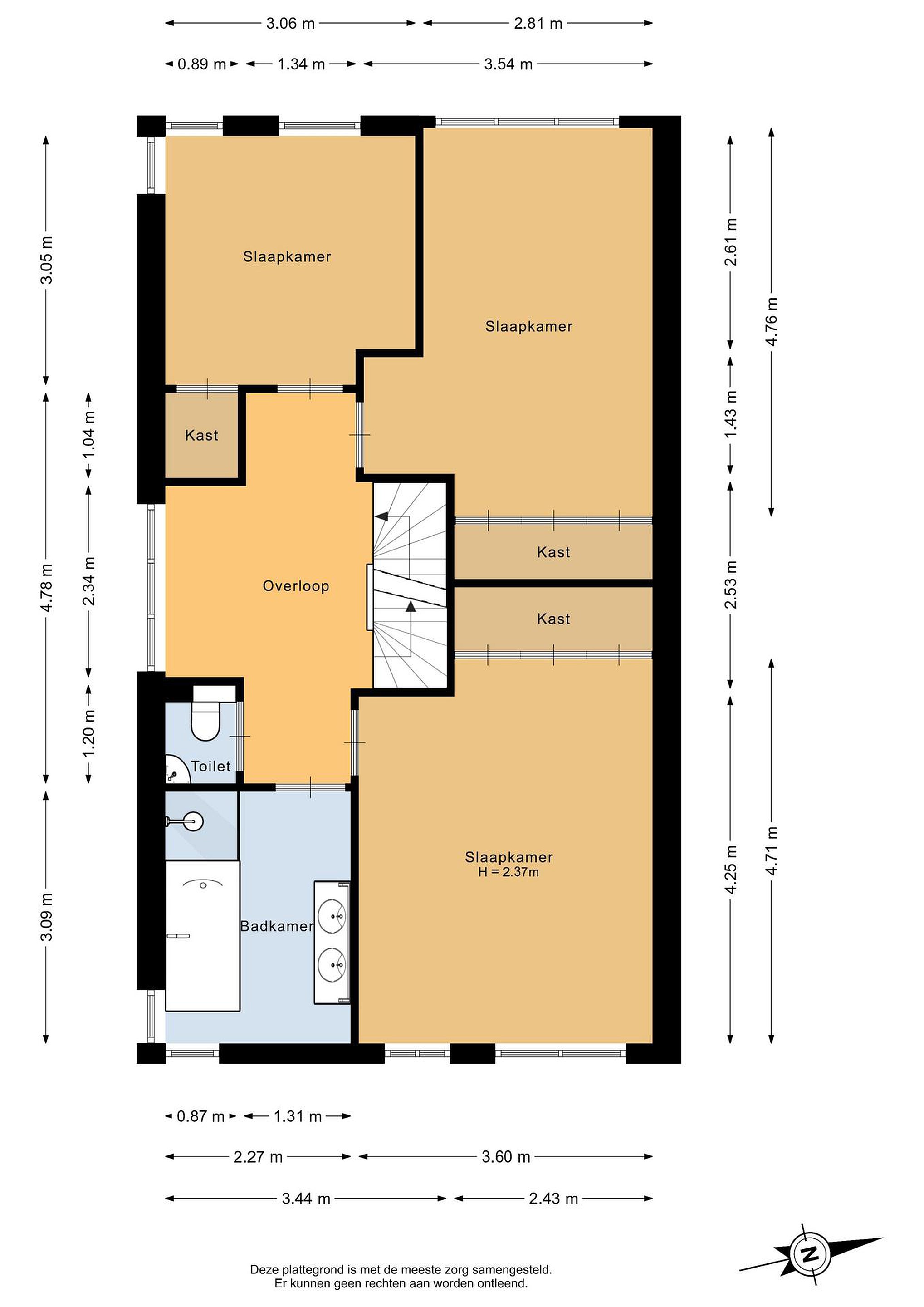
Eerste verdieping
De overloop op de eerste verdieping is een lichte, aangename ruimte dankzij de gunstige lichtinval vanuit het zuiden. Aan de voorzijde van de woning bevindt zich de hoofdslaapkamer, die is uitgerust met een royale vaste kastenwand. Direct daarnaast ligt de badkamer, een volledig betegelde ruimte waar u de keuze heeft tussen een ontspannen bad of een snelle douche bij de dubbele wastafel. Het tweede toilet op deze verdieping is separaat gesitueerd, wat extra comfort biedt. Aan de rustige achterzijde van de woning zijn nog twee volwaardige slaapkamers gelegen.

Tweede verdieping
De vaste trap brengt u naar de tweede verdieping, waar de overloop direct verrast door de extra bergruimte achter de trap. Dankzij de dakkapellen aan zowel de voor- als achterzijde zijn hier twee zeer ruime slaapkamers gecreëerd. Onder de schuine kap is bovendien slim gebruikgemaakt van de ruimte met extra knieschotten voor opslag. Voor de spullen die u niet dagelijks nodig heeft, biedt de bovengelegen bergvliering tot slot nog de nodige extra vierkante meters aan bergruimte.

Een aparte ruimte voor de verwarmingsinstallatie en warmwatervoorziening is netjes achter een wand weggewerkt. Bij de bijzonderheden leest u hier meer over.

Details
Wonen met karakter en comfort aan de Dorpstraat
Wanneer u aan de achterzijde van de Dorpstraat 14 uw auto gratis parkeert en via de achterom uw eigen perceel betreedt, ervaart u direct de rust. De achtertuin, sfeervol aangelegd met gebakken klinkers en gunstig gelegen op het zonnige westen, vormt een heerlijk verlengstuk van de woning. De degelijke erfafscheiding aan de straatzijde zorgt voor de nodige privacy, terwijl de onderhoudsvriendelijke voor- en zijtuin met een klassiek laag ijzeren hekwerk het verzorgde karakter van het geheel onderstrepen. Hier woont u aan de oudste en meest karakteristieke winkelstraat van Waddinxveen, met alle levendigheid binnen handbereik en het comfort van een eigen, rustige buitenruimte.

De locatie is met recht ideaal te noemen voor het hele gezin. Of u nu kiest voor het openbaar vervoer of de auto, met het treinstation op korte afstand en een snelle verbinding naar de A12 en A20 bent u altijd vlot onderweg. Voor de dagelijkse boodschappen wandelt u in enkele minuten naar het nabijgelegen winkelcentrum (Gouweplein). Ook voor kinderen en sportliefhebbers is de omgeving perfect; diverse speelvoorzieningen, scholen en een breed scala aan sportverenigingen — van hockey en voetbal tot het zwembad — bevinden zich in de directe nabijheid. Zowel het basisonderwijs als de middelbare school zijn binnen tien minuten fietsen bereikbaar.
Binnen in de woning wordt de historische charme van de straat gecombineerd met de modernste technieken op het gebied van duurzaamheid. De sfeervolle woonkamer met zijn warme houten vloer nodigt uit tot ontspanning, terwijl de uitstekende staat van onderhoud direct opvalt. Het buitenschilderwerk is recent uitgevoerd in 2023 en 2024 en de houten gevelkozijnen zijn praktisch uitgevoerd met draaikiepramen. Comfort staat hier centraal dankzij een doordacht verwarmingssysteem dat bestaat uit vloerverwarming op de volledige begane grond en de verdiepingsvloeren, aangevuld met aangename wandverwarming in de woonkamer en badkamer.

Dat deze woning klaar is voor de toekomst, bewijst het indrukwekkende energielabel A+. Dankzij de installatie van een luchtwarmtepomp in 2022, een zonneboiler voor het warme water en maar liefst 26 zonnepanelen is de woning nagenoeg zelfvoorzienend. Dit resulteert in een extreem laag energieverbruik, wat bij het huidige gebruik van vier personen neerkomt op slechts 245 kWh aan ingekochte elektra per jaar. Deze combinatie van een toplocatie, een hoogwaardig afwerkingsniveau en minimale energielasten maakt de Dorpstraat 14 tot een unieke kans in de huidige markt.

De oplevering vindt plaats in overleg, waarbij een overdracht op korte termijn tot de mogelijkheden behoort.

Lees meer

Kenmerken

Overdracht

Prijs per m2
€ 4.115
Aangeboden sinds
26 maart 2026
Status
Beschikbaar
Aanvaarding
In overleg

Bouw

Soort woonhuis
Eengezinswoning, twee-onder-een-kap woning
Soort bouw
Bestaande bouw
Bouwjaar
2001
Soort dak
Zadeldak
Staat van onderhouden binnen
Goed
Staat van onderhouden buiten
Goed

Oppervlakte en inhoud

Perceeloppervlakte
200 m2
Inhoud van de woning
744 m3
Oppervlakte overige inpandige ruimten
21 m2

Indeling

Aantal kamers
6
Aantal slaapkamers
5
Aantal woonlagen
3
Voorzieningen
Tuin, kabel-tv, glasvezel, buitenzonwering

Buitenruimte

Balkon
Nee
Schuur/berging
Nee

Maandlasten berekenen

De maandlasten voor je woning bestaan uit meer dan alleen de hypotheeklasten. Hieronder vind je een overzicht van de bijkomende kosten en lasten. Zo weet je precies wat je huis per maand gaat kosten. En met de handige vergelijkers kun je ook nog eens snel de beste deals sluiten!

  • Kaart
  • Streetview