De Visserhoeve 37 2743 JK Waddinxveen

101m2
Wonen
5
Kamers
127m2
Perceel
1990
Bouwjaar
Welkom aan De Visserhoeve 37, een plek waar de drukte van alledag vervaagt. Deze vriendelijke woonstraat in de wijk 'Zuidplas '90' grenst direct aan een uitgestrekt speelveld, wat het tot een ideale en veilige thuishaven maakt voor een gezin. Tegelijkertijd hoeft u de wijk niet uit voor de dagelijkse boodschappen: de winkels liggen hier letterlijk om de hoek.

De woning zelf, gebouwd in 1990, bewijst dat degelijkheid de tand des tijds doorstaat. De uitbouw heeft extra ruimte gecreëerd en in de op het zuiden gelegen achtertuin vindt u een overkapping met een sfeervolle haard – perfect voor die gezellige avonden, ongeacht het seizoen.

Op het gebied van duurzaamheid en comfort is er de afgelopen jaren niet stilgezeten. De basis is solide met muur-, vloer- en dakisolatie en hardhouten kozijnen met dubbele beglazing. Recente investeringen, waaronder de plaatsing van 8 zonnepanelen, een nieuwe cv-installatie en een vervangen meterkast in 2024, en het buitenschilderwerk van 2025, maken dit plaatje compleet. Het resultaat: een energielabel A.

Deze woning, gebouwd op 127 m2 eigen grond, biedt u 101 m2 woonoppervlak om een nieuw hoofdstuk te beginnen. Een huis dat zijn zaken op orde heeft, zodat u zich kunt richten op wonen.
Begane grond
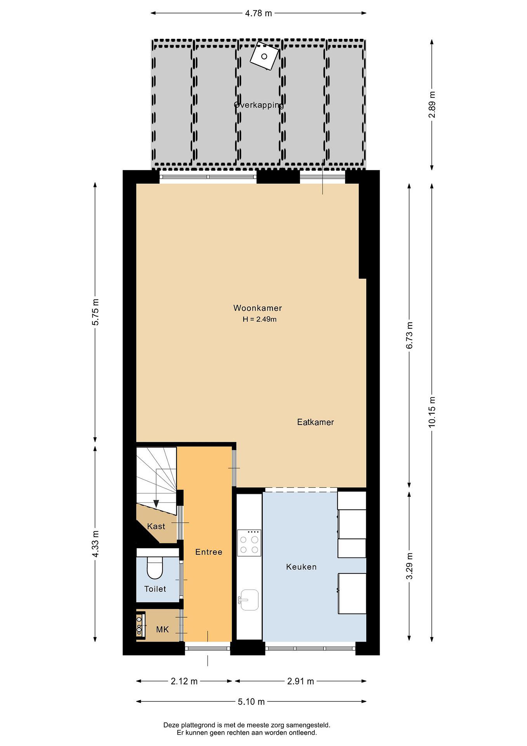
Begane grond: De entree/hal geeft toegang tot de woonkamer en de eerste verdieping. In de hal bevindt zich ook het moderne toilet met hangend closet en fonteintje, een praktische trapkast en de nieuwe meterkast met 9 groepen en 3 aardlekschakelaars).

Vanuit de hal kom je in de uitgebouwde woonkamer. Het woonhuis heeft een indeling als “tuinkamerwoning”, wat betekent dat de woonkamer zich aan de tuinzijde bevindt en daardoor veel daglichtinval heeft. Hier vandaan is er ook toegang tot de zonnige tuin op het zuiden.

De keuken is gelegen aan de voorzijde. De keuken heeft aan beide zijden ene rechte opstelling en is voorzien van apparatuur, waaronder een inductie kookplaat (1 jaar oud), afzuigkap (1 jaar oud), vaatwasmachine en oven. De koelkast is eventueel ter overname.

Eerste verdieping
Eerste verdieping: Op deze verdieping bevinden zich drie ruime slaapkamers en de luxe badkamer. De eerste en tweede genoemde slaapkamers bevinden zich aan de achterzijde. Beiude kamers zijn voorzien van een dakkapel. De derde kamer bevindt zich aan de voorzijde.

De badkamer is geheel betegeld en voorzien van een ligbad, wastafel met meubel en vrijhangend toilet.

Tweede verdieping
Zolder verdieping: Overloop met opstelplaats voor de wasmachine en droger en de cv-installatie. De cv installatie is een Intergas Xtreme 30 CW 4 en geplaatst in 2024. Daarnaast is er een mooie zolderkamer met dakkapel aan de voorzijde. Van de dakkapel is dit jaar de dakbedekking vervangen. Aan de achterzijde is een groot Velux dakraam geplaatst.

Details
Deze woning op De Visserhoeve 37 ligt aan een rustig woonerf, ideaal voor gezinnen. De ligging combineert het beste van twee werelden: de basisschool en de winkels liggen op korte afstand, en een groot speelveld bevindt zich in de directe nabijheid. Zelfs het voortgezet onderwijs is met de fiets snel en veilig bereikbaar. Bovendien bent u van hieruit snel op de uitvalswegen naar de snelwegen in de Randstad.

Wat de buitenruimte betreft, is de voortuin vernieuwd in 2023 en deels bestraat met een brede border en is een buitenkraan naast de voordeur aangebracht, altijd handig. De achtertuin is heerlijk ruim en voorzien van een lichte overkapping met dakpanelen die ervoor zorgen dat er genoeg daglicht in de tuin en daarmee ook in de woning valt. De tuin is grotendeels bestraat, wat het onderhoud tot een minimum beperkt – u kunt dus meer tijd besteden aan ontspannen dan aan wieden.

Het betreft hier een uitgebouwde woning waar de afgelopen tijd al de nodige aandacht aan is besteed. Zo is het schilderwerk van de buitenkozijnen in 2025 uitgevoerd, zijn alle Velux dakramen 3 jaar geleden vervangen en is de cv-installatie in 2024 nog vervangen.

De oplevering van de woning vindt plaats in overleg, maar voorkeur is medio maart 2026.

Deze vrijblijvende objectinformatie is met de meeste zorg samengesteld, maar voor de juistheid daarvan kunnen wij geen aansprakelijkheid aanvaarden. Ook kan aan de vermelde gegevens geen enkel recht worden ontleend. Alle informatie is enkel en alleen bedoeld voor de presentatie van het object en niet meer dan een uitnodiging tot het doen van een bod. Eventueel bijgevoegde plattegronden zijn slechts indicatief.

Lees meer

Kenmerken

Overdracht

Prijs per m2
€ 4.406
Aangeboden sinds
6 november 2025
Status
Beschikbaar
Aanvaarding
In overleg

Bouw

Soort woonhuis
Eengezinswoning, tussen woning
Soort bouw
Bestaande bouw
Bouwjaar
1990
Soort dak
Zadeldak
Staat van onderhouden binnen
Goed
Staat van onderhouden buiten
Goed

Oppervlakte en inhoud

Perceeloppervlakte
127 m2
Inhoud van de woning
353 m3
Oppervlakte externe bergruimte
7 m2
Oppervlakte gebouwgebonden buitenruimten
14 m2

Indeling

Aantal kamers
5
Aantal slaapkamers
4
Aantal woonlagen
3
Voorzieningen
Tuin, schuur/berging, kabel-tv, glasvezel, dakraam

Buitenruimte

Balkon
Nee
Schuur/berging
Ja

Maandlasten berekenen

De maandlasten voor je woning bestaan uit meer dan alleen de hypotheeklasten. Hieronder vind je een overzicht van de bijkomende kosten en lasten. Zo weet je precies wat je huis per maand gaat kosten. En met de handige vergelijkers kun je ook nog eens snel de beste deals sluiten!

  • Kaart
  • Streetview