Verkocht

Burgemeester Trooststraat 80 2741 TS Waddinxveen

96m2
Wonen
4
Kamers
106m2
Perceel
1929
Bouwjaar
Wonen aan de Burgemeester Trooststraat!

Zoek je een huis met karakter, ruimte en een heerlijke tuin? Aan de Burgemeester Trooststraat in Waddinxveen bieden we je deze toffe, uitgebouwde woning aan. De ligging is top: een gezellige tuin op het zonnige zuiden en direct daarachter een fijn speelveld waar de kids veilig kunnen ravotten en voetballen. Nieuwsgierig? Check de foto’s op deze site en plan direct een bezichtiging. Je bent van harte welkom!

Ruimte met mogelijkheden
Dankzij de grote dakopbouw heb je boven echt de ruimte. Momenteel vind je daar een royale master bedroom (ruim 16 m2) en een flinke voorzolder (bijna 14 m2). Die voorzolder tover je trouwens heel makkelijk om tot extra slaapkamer, waardoor je in totaal maar liefst 4 goeie kamers hebt.
De badkamer en keuken zijn modern en van alle gemakken voorzien. Bovendien is er de laatste jaren flink geïnvesteerd in onderhoud en comfort. Denk aan strak laminaat op de begane grond, HR++ glas in de woonkamer (achter) en achter-slaapkamer, kruipruimte-isolatie en fris schilderwerk. Ook de radiatoren en verwarmingsbuizen in de woonkamer zijn vernieuwd. Je stapt hier dus in een goed onderhouden huis!
Begane grond
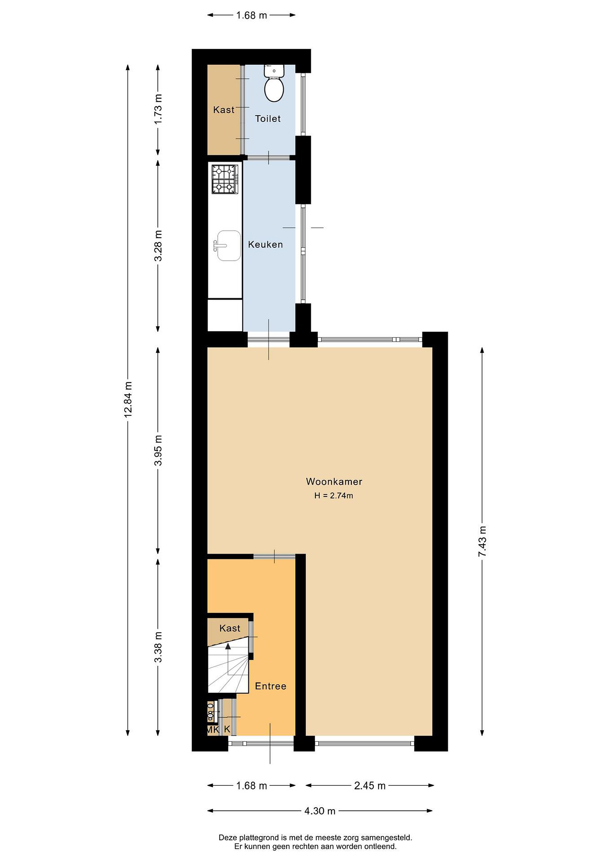
Binnenkomst in de hal met garderobe, meterkast (7 groepen, moderne installatie met dubbele aardlek) en de trap naar boven. De lichte doorzonwoonkamer (ca. 25,5 m2) voelt heerlijk ruim aan; de zithoek kijkt uit op de tuin en aan de voorzijde heb je alle plek voor een gezellige eettafel.

Aan de achterzijde vind je de uitgebouwde keuken en het toilet. Alles is strak afgewerkt met glad gestuukte wanden en een mooie laminaatvloer. In de uitbouw is slim gebruikgemaakt van de ruimte met vaste kasten voor extra bergruimte. Hier hangt ook de goed onderhouden Vaillant HR Solide cv-ketel (2011) en vind je de aansluitingen voor je wasmachine en droger.

De keuken zelf is modern en (op de koelkast en gasplaat na) volledig vernieuwd. Met een afmeting van ca. 495 x 170 cm en flink wat kastruimte kun je hier als kookliefhebber prima uit de voeten!

Eerste verdieping
Via de overloop heb je toegang tot twee fijne slaapkamers en de trap naar de zolder. Tussen de kamers in is een grote kastenwand gebouwd, dus aan bergruimte heb je hier geen gebrek. De badkamer is "strak en modern" ingericht met een inloopdouche, een breed wastafelmeubel en een tweede toilet.

Tweede verdieping
Tweede verdieping (de opbouw): Deze extra woonverdieping is keurig afgewerkt met laminaat en glad gestukte wanden. De slaapkamer is heerlijk ruim (ca. 415 x 400 cm) en ook op de voorzolder (ca. 415 x 335 cm) vind je onder de schuine kap nog een extra ingebouwde bergkast.

Details
Buitenleven & Locatie
De achtertuin ligt ideaal op het zuiden en is voorzien van nieuwe schuttingen, een achterom en een houten berging. Je woont hier super centraal: op slechts 10 minuten lopen sta je in het nieuwe winkelcentrum. Scholen (zoals het Coenecoop College), de kinderboerderij, sportclubs en het openbaar vervoer liggen allemaal om de hoek. Bovendien ben je via de uitvalswegen zo in Utrecht, Rotterdam of Den Haag.

Kortom: Zoek je een betaalbare jaren ’30 woning met een fijne tuin die je zonder grote verbouwing kunt betrekken? Dan is dit je kans!

Bijzonderheden:
Dit karakteristieke jaren '30 huis (bouwjaar 1929) staat op een perceel van 106 m2, heeft een inhoud van circa 330 m3 en een woonoppervlakte van 96 m2.

Deze vrijblijvende objectinformatie is met de meeste zorg samengesteld, maar voor de juistheid daarvan kunnen wij geen aansprakelijkheid aanvaarden. Ook kunnen aan de vermelde gegevens geen rechten worden ontleend. Alle informatie is uitsluitend bedoeld voor de presentatie van het object en geldt als uitnodiging tot het doen van een bod. Eventueel bijgevoegde plattegronden zijn slechts indicatief.

Lees meer

Verkoopgeschiedenis

Aangeboden sinds
2 maart 2026
Verkoopdatum
1 mei 2026
Looptijd
2 maanden

Kenmerken

Overdracht

Prijs per m2
€ 3.906
Aangeboden sinds
2 maart 2026
Status
Verkocht
Aanvaarding
In overleg

Bouw

Soort woonhuis
Eengezinswoning, tussen woning
Soort bouw
Bestaande bouw
Bouwjaar
1929
Soort dak
Zadeldak
Staat van onderhouden binnen
Goed
Staat van onderhouden buiten
Goed

Oppervlakte en inhoud

Perceeloppervlakte
106 m2
Inhoud van de woning
335 m3
Oppervlakte externe bergruimte
5 m2
Oppervlakte overige inpandige ruimten
8 m2

Indeling

Aantal kamers
4
Aantal slaapkamers
3
Aantal woonlagen
3
Voorzieningen
Tuin, schuur/berging, ventilatie, buitenzonwering

Buitenruimte

Balkon
Nee
Schuur/berging
Ja

Maandlasten berekenen

De maandlasten voor je woning bestaan uit meer dan alleen de hypotheeklasten. Hieronder vind je een overzicht van de bijkomende kosten en lasten. Zo weet je precies wat je huis per maand gaat kosten. En met de handige vergelijkers kun je ook nog eens snel de beste deals sluiten!

  • Kaart
  • Streetview