Verkocht

Alexanderstraat 31 5583 BH Waalre

78m2
Wonen
5
Kamers
197m2
Perceel
1955
Bouwjaar
Instapklare, volledig gerenoveerde hoekwoning met 4 slaapkamers, ruime tuin én parkeren op eigen terrein in het geliefde Aalst!

Ben je op zoek naar een leuke, sfeervol afgewerkte woning waar je zó in kunt? Dan is deze charmante en volledig gemoderniseerde hoekwoning precies wat je zoekt. De woning combineert het karakter van bouwjaar 1955 met het comfort en de afwerking van nu. Met maar liefst vier slaapkamers, een ruime en zonnige achtertuin, airconditioning, zonnepanelen en parkeren op eigen terrein biedt deze woning alles voor comfortabel wonen.

De woning ligt in een rustige woonomgeving in Aalst (gemeente Waalre), op korte afstand van het gezellige dorpscentrum met winkels, horeca en voorzieningen. Daarnaast bevinden natuurgebieden (Tongelreep), uitvalswegen en de stad Eindhoven zich op korte afstand.
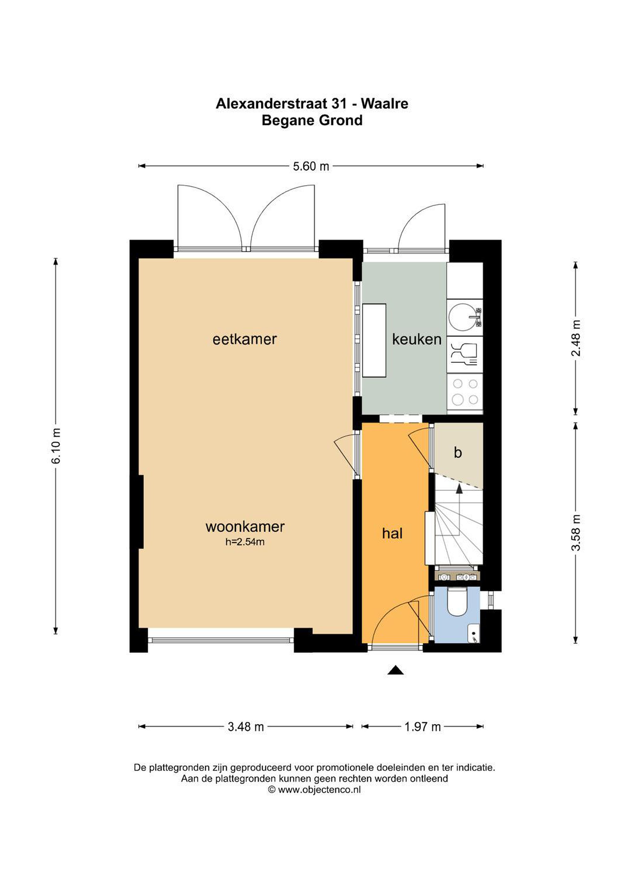
Begane grond
Via de verzorgde voortuin bereik je de entree van de woning. De hal is afgewerkt met een fraaie laminaatvloer die drempelloos doorloopt over de gehele begane grond. Hier bevinden zich de moderne meterkast, de trapopgang en een stijlvolle toiletruimte met hangend closet, inbouwreservoir en fonteintje.

De lichte, tuingerichte woonkamer vormt een fijne leefruimte met een prettige sfeer en veel daglicht. De grote raampartij en openslaande tuindeuren zorgen voor een mooie verbinding met het terras en de achtertuin. Dankzij de airconditioning op de begane grond geniet je hier het hele jaar door van een aangenaam binnenklimaat.

Aan de achterzijde bevindt zich de moderne keuken in praktische dubbele wandopstelling, waardoor je beschikt over veel werk- en bergruimte. De keuken is compleet uitgerust met diverse inbouwapparatuur, waaronder een kookplaat, afzuigkap, vaatwasser, koelkast, oven en een close-in boiler. Het raam tussen woonkamer en keuken zorgt voor een open en ruimtelijk gevoel.

Eerste verdieping
De eerste verdieping biedt drie slaapkamers, waarvan twee ruime en één compacte kamer – ideaal als kinder-, werk- of hobbykamer.

De luxe en volledig betegelde badkamer is modern afgewerkt en voorzien van:
- een comfortabele douche
- een wastafelmeubel
- een tweede toilet
- een designradiator
- een spiegelkast

De verdieping is afgewerkt met strak stucwerk en een lichte laminaatvloer.

Tweede verdieping
Via een vaste trap bereik je de volwaardige tweede verdieping. Hier bevindt zich een ruime vierde slaapkamer, perfect als master bedroom, logeerkamer of werkruimte.

Op de overloop vind je daarnaast:
- de aansluitingen voor wasapparatuur
- de cv-installatie
- de omvormer van de zonnepanelen
- een airconditioning unit

Onder de schuine kap zijn praktische knieschotten geplaatst, ideaal voor extra bergruimte.

Tuin
De woning beschikt over een fraai aangelegde voor- en achtertuin met sierbestrating en groen. De zonnige achtertuin biedt volop ruimte voor een comfortabele zithoek en is volledig omheind.

Achterin de tuin staat een praktische berging en via de zijkant van het perceel bereik je de achterom en de ruime oprit. De oprit biedt parkeergelegenheid op eigen terrein en is bovendien voorzien van een laadpunt voor een elektrische of plug-in hybride auto.

Details
Kenmerken
- Instapklare, volledig gerenoveerde hoekwoning
- Perceel: ca. 197 m2
- Woonoppervlakte: ca. 79 m2
- Maar liefst 4 slaapkamers
- Airconditioning op begane grond en tweede verdieping (koelen en verwarmen)
- Zonnepanelen aanwezig
- Moderne keuken en badkamer
- Ruime achtertuin met berging en achterom
- Parkeren op eigen terrein met laadpunt
- Op korte afstand van het dorpscentrum van Aalst
- Rustige woonomgeving met natuur en voorzieningen nabij


Kortom: een verrassend ruime, sfeervolle en energiezuinige woning op een fijne locatie. Een perfecte combinatie van comfort, rust en dorps wonen.
Plan snel een bezichtiging en laat je verrassen door de ruimte en afwerking van deze leuke woning!

Lees meer

Verkoopgeschiedenis

Aangeboden sinds
17 maart 2026
Verkoopdatum
27 april 2026
Looptijd
één maand

Kenmerken

Overdracht

Prijs per m2
€ 5.592
Aangeboden sinds
17 maart 2026
Status
Verkocht
Aanvaarding
In overleg

Bouw

Soort woonhuis
Eengezinswoning, hoek woning
Soort bouw
Bestaande bouw
Bouwjaar
1955
Staat van onderhouden binnen
Goed
Staat van onderhouden buiten
Goed

Oppervlakte en inhoud

Perceeloppervlakte
197 m2
Inhoud van de woning
289 m3
Oppervlakte externe bergruimte
8 m2

Indeling

Aantal kamers
5
Aantal slaapkamers
4
Aantal woonlagen
3
Voorzieningen
Tuin, schuur/berging, airconditioning

Buitenruimte

Balkon
Nee
Schuur/berging
Ja

Maandlasten berekenen

De maandlasten voor je woning bestaan uit meer dan alleen de hypotheeklasten. Hieronder vind je een overzicht van de bijkomende kosten en lasten. Zo weet je precies wat je huis per maand gaat kosten. En met de handige vergelijkers kun je ook nog eens snel de beste deals sluiten!

  • Kaart
  • Streetview