J.p. van der Bildtstraat 2 9077 SK Vrouwenparochie

286m2
Wonen
6
Kamers
431m2
Perceel
1800
Bouwjaar
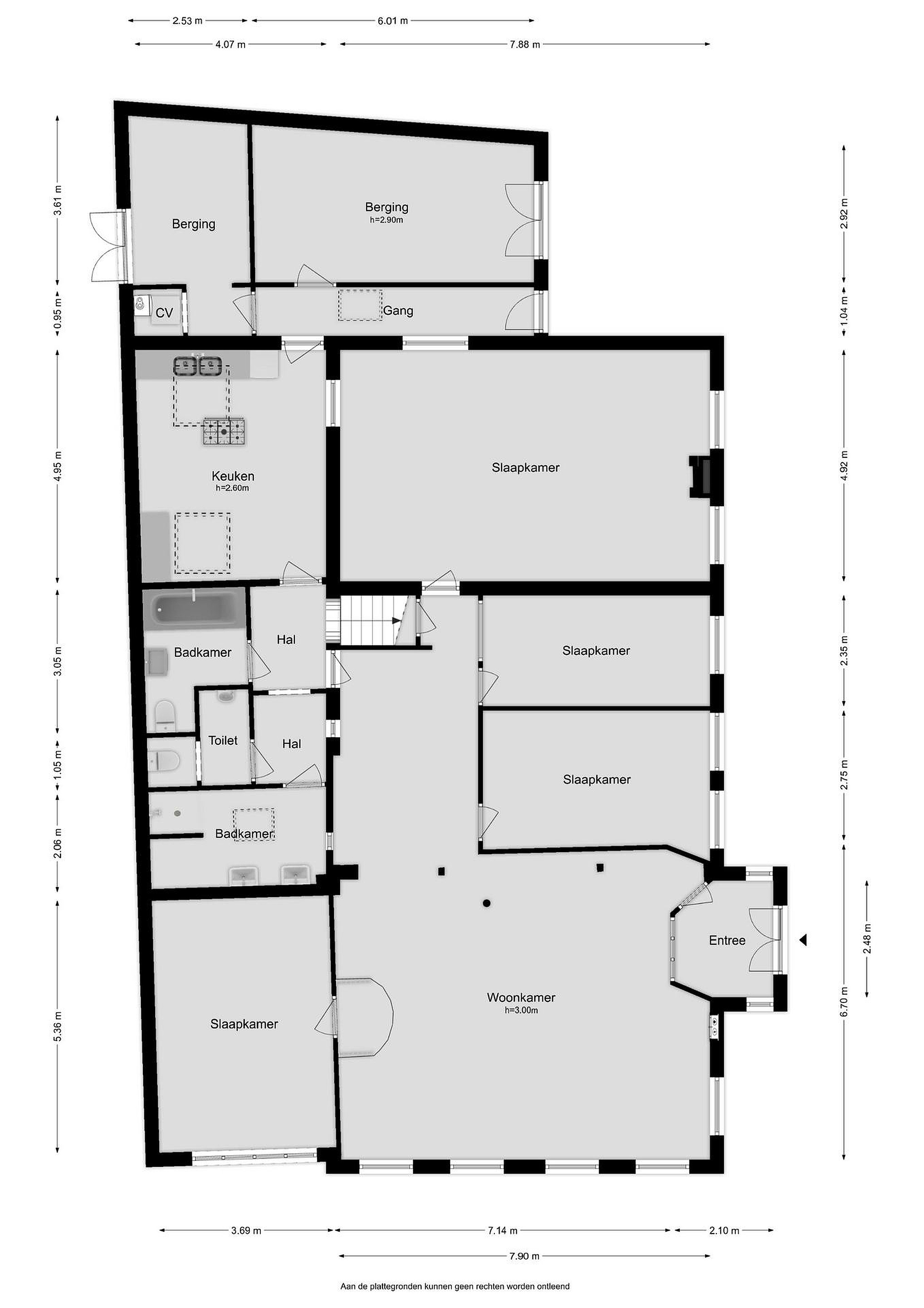
Deze royale en karakteristieke vrijstaande woning, voormalig pand "De Groene Papegaai", is gelegen op een ruim perceel van 431 m2. De woning heeft 8 slaapkamers, waarvan 3 op de begane grond, 2 badkamers op de begane grond, een ruime berging en een zonnige tuin op het noordoosten. De woning is goed onderhouden en is in 2024 voorzien van kunststof kozijnen met HR ++ beglazing en geschikt voor vele doeleinden, met ruime parkeergelegenheid en bushalte op loopafstand. De woning is gelegen aan de brede doorgaande weg in Vrouwenparochie, nabij de Friese Waddenkust, op slechts een paar minuten afstand van Sint-Annaparochie, waar voldoende voorzieningen te vinden zijn. Wie uniek wil wonen, grijp hier uw kans!
Indeling:
Begane Grond: Entree, hal met meterkast, royale living met pelletkachel, 3 slaapkamers, gesloten keuken met 6-pits gasstel, witgoedopstelling, toilet met fontein, badkamer met jacuzzi, wastafel, toilet, badkamer met inloopdouche, dubbele wastafel, bijkeuken met cv ketel, bergruimte.
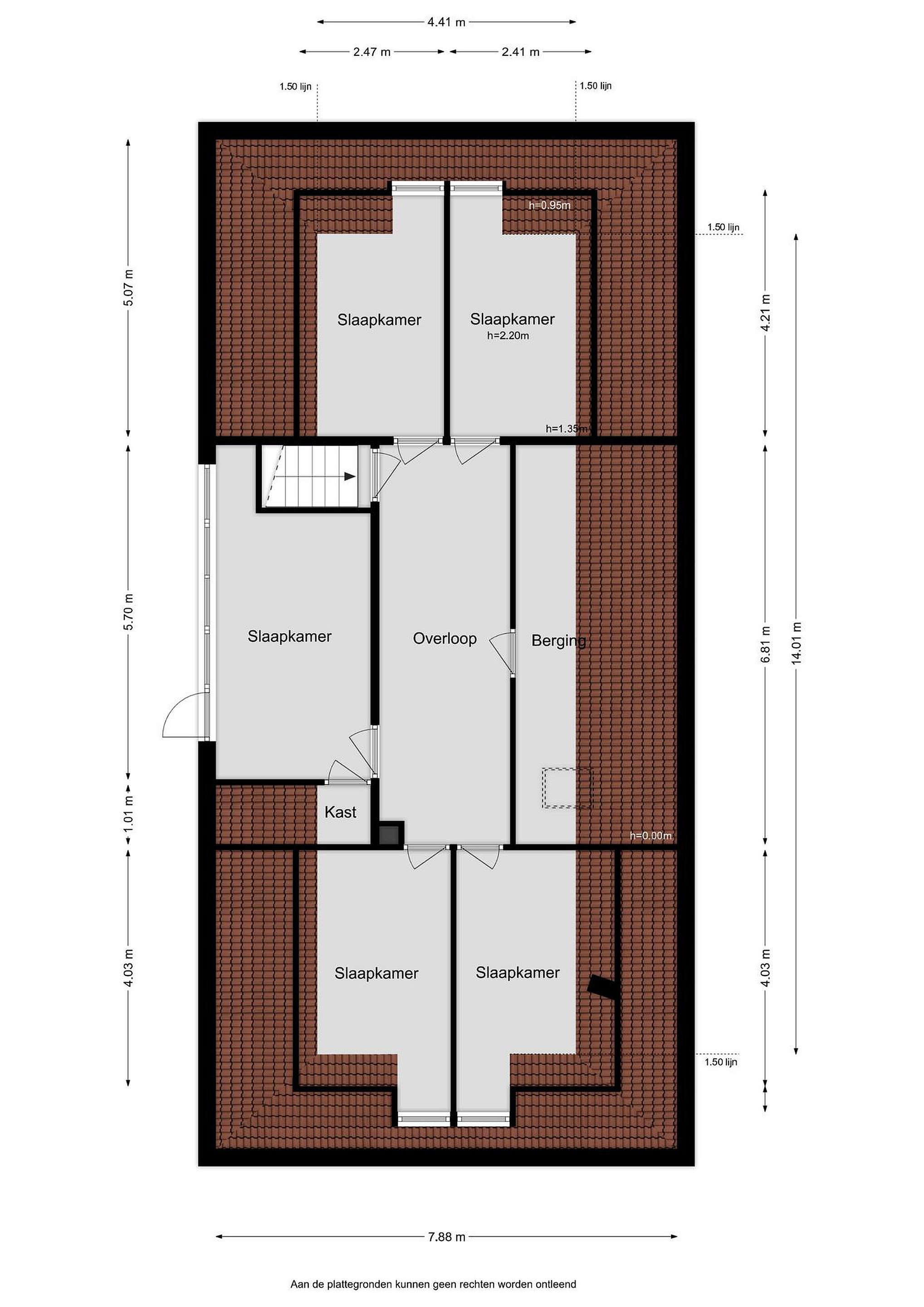
Eerste verdieping: Overloop, 5 slaapkamers, bergruimte.
Lees meer

Kenmerken

Overdracht

Prijs per m2
€ 1.731
Aangeboden sinds
3 december 2025
Status
Beschikbaar
Aanvaarding
In overleg

Bouw

Soort woonhuis
Eengezinswoning, vrijstaande woning
Soort bouw
Bestaande bouw
Bouwjaar
1800
Soort dak
Schilddak
Staat van onderhouden binnen
Goed
Staat van onderhouden buiten
Goed

Oppervlakte en inhoud

Perceeloppervlakte
431 m2
Inhoud van de woning
1247 m3
Oppervlakte overige inpandige ruimten
38 m2

Indeling

Aantal kamers
6
Aantal slaapkamers
5
Aantal woonlagen
2
Voorzieningen

Buitenruimte

Balkon
Nee
Schuur/berging
Nee

Maandlasten berekenen

De maandlasten voor je woning bestaan uit meer dan alleen de hypotheeklasten. Hieronder vind je een overzicht van de bijkomende kosten en lasten. Zo weet je precies wat je huis per maand gaat kosten. En met de handige vergelijkers kun je ook nog eens snel de beste deals sluiten!

  • Kaart
  • Streetview