Verkocht

De Bongerd 6 7251 CD Vorden

86m2
Wonen
4
Kamers
170m2
Perceel
1964
Bouwjaar
In rustige woonwijk nabij speelveldjes en groenvoorzieningen gelegen TUSSENWONING met aangebouwde berging, achtertuin en achterom. Deze comfortabele woning is aan de achterzijde uitgebouwd en in 2018 gemoderniseerd.

Ideale ligging nabij de rand van het dorp, treinstation, winkels en scholen.
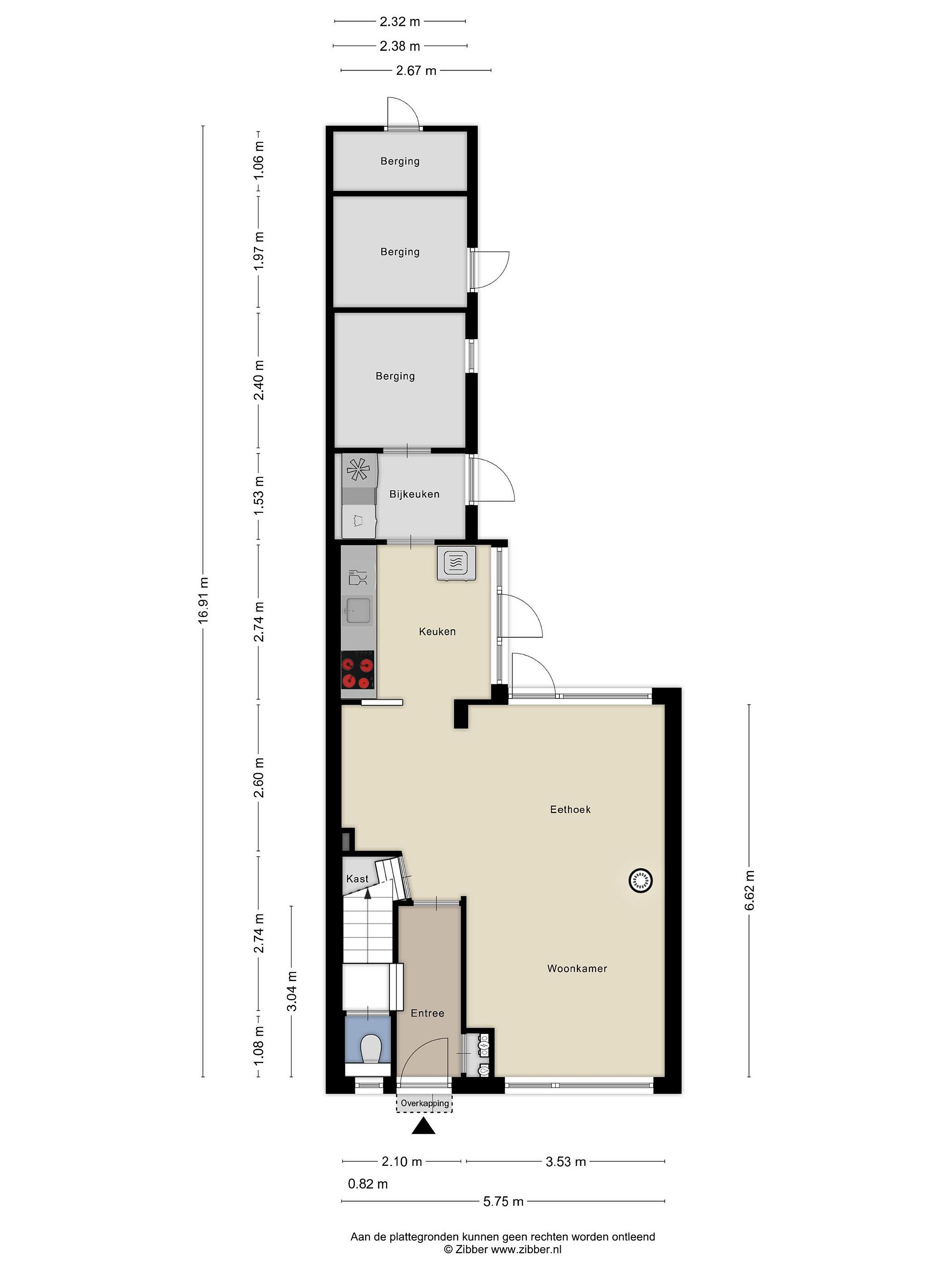
Begane grond
Begane grond: entree, hal, meterkast, toiletruimte met hangend closet. L-woonkamer met rookanaal en tuindeur naar achtertuin/terras. Keuken in lichte kleurstelling en met inbouwapparatuur waaronder inductiekookplaat, afzuigkap, vaatwasser, koelkast en combi-magnetron.
Bijkeuken met achter-entree. Binnendoorgang naar aangebouwde berging. Via buitenom bereikbare berging/fietsenschuur en houtopslag.
1e Verdieping: overloop, 3 slaapkamers, badkamer met douche en wastafel. Separate toiletruimte met hangend closet en fonteintje.
2e Verdieping: middels vlizotrap bereikbare bergzolder.

Details
Bouwjaar 1964
Inhoud ca. 327 m3
Woonoppervlakte ca. 86 m2
Totale perceeloppervlakte 170 m2
Verbouwd / gemoderniseerd in 2018
CV-installatie met Remeha ketel bouwjaar 2018.
Woning is grotendeels geïsoleerd en voorzien van HR++ beglazing
In 2018 dakisolatie aangebracht
Spouwmuren in 2023 na-geisoleerd met EPS spouwparels
10 zonnepanelen (2021)
Airconditioning geplaatst in 2024, (koelen en verwarmen)
Energielabel B

Lees meer

Verkoopgeschiedenis

Aangeboden sinds
6 januari 2026
Verkoopdatum
30 april 2026
Looptijd
4 maanden

Kenmerken

Overdracht

Prijs per m2
€ 4.058
Aangeboden sinds
6 januari 2026
Status
Verkocht
Aanvaarding
In overleg

Bouw

Soort woonhuis
Eengezinswoning, tussen woning
Soort bouw
Bestaande bouw
Bouwjaar
1964
Soort dak
Zadeldak
Staat van onderhouden binnen
Goed
Staat van onderhouden buiten
Goed

Oppervlakte en inhoud

Perceeloppervlakte
170 m2
Inhoud van de woning
327 m3
Oppervlakte externe bergruimte
7 m2
Oppervlakte overige inpandige ruimten
5 m2

Indeling

Aantal kamers
4
Aantal slaapkamers
3
Aantal woonlagen
3
Voorzieningen
Tuin, schuur/berging, ventilatie, airconditioning, rookkanaal

Buitenruimte

Balkon
Nee
Schuur/berging
Ja

Maandlasten berekenen

De maandlasten voor je woning bestaan uit meer dan alleen de hypotheeklasten. Hieronder vind je een overzicht van de bijkomende kosten en lasten. Zo weet je precies wat je huis per maand gaat kosten. En met de handige vergelijkers kun je ook nog eens snel de beste deals sluiten!

  • Kaart
  • Streetview