Verkocht OV

De Steenkamp 61 3781 VS Voorthuizen

112m2
Wonen
5
Kamers
188m2
Perceel
1971
Bouwjaar
Wat een mooie, verzorgde HOEKWONING met vrijstaande garage en aangebouwde fraaie overkapping op een vrije locatie gelegen! De woning is ook echt letterlijk op de hoek van de straat gesitueerd waardoor je veel privacy en vrijheid ervaart. De woning is gelegen aan breed opgezette straat met veel groen. Maar ook aan de achterzijde is de woning vrij gelegen door het gesitueerde plein waar de garages aan gelegen zijn. Aan de zijkant van een woning is er nog een zij-entree gerealiseerd. Handig! In 2019 is de gehele begane grond van de woning vernieuwd met nieuwe keuken, een pelletkachel en vloerverwarming. In de loop der jaren is ook bodemisolatie, HR ++, HR beglazing en spouwisolatie aangebracht waardoor de woning voorzien is van energielabel B! Op de verdiepingen zijn 4 ruime slaapkamers en een fijne badkamer. Een woning om zo te betrekken! Ik neem je graag mee!

Bij aankomst valt mij meteen de vrije, groene ligging op. Ik kan gemakkelijk parkeren naast de woning en uiteraard heb je ook een eigen parkeergelegenheid in de garage mocht je dat willen. Ik kan de woning gemakkelijk bereiken via de zij-ingang, maar ik loop eerst naar de voordeur aan de voorzijde van de woning. Mij valt meteen de mooie zwarte kozijnen en voordeur op. Het voorraam is ook enigszins verdiept wat de woning een speels karakter geeft. De voortuin is ook ruim en heel verzorgd ingericht. Hier kijk je leuk over de straat! Bij binnenkomst valt mij meteen op dat ik een moderne, frisse woning binnenstap. In de hal is ruimte voor de jassen en schoenen en hier is ook de toegang naar de verzorgde toiletruimte, voorzien van een hangend toilet met fonteintje. Door een mooie zwarte deur met veel glas kom ik in de woonkamer. Een heerlijke lichte ruimte met veel raampartijen en een gezellige inrichting! Het zitgedeelte is aan de voorzijde gesitueerd en is voorzien van een groot zijraam met uitzicht op de mooie boom die aan de zijkant van de woning staat. De woonkamer is voorzien van een open inbouwkast waar de tv ook is geïnstalleerd. Verder is midden in de ruimte een stoere pelletkachel waar je vanuit de keuken en de woonkamer van kan genieten. De keuken is in 2019 ook geheel aangepakt en opengebroken. Zo is er een fijne open ruimte ontstaan! Een leuk detail is dat de stoere stalen balken nog in het zicht zijn gelaten en dat geeft juist karakter aan de ruimte. Bij de eettafel zijn de dubbele tuindeuren naar de achtertuin en deze geven ook weer dat extra fijne daglicht. De keuken zelf is prachtig! Een ruime opstelling met een spoeleiland waar je ook fijn aan kan zitten. Een matzwarte keuken met alle inbouwapparatuur aanwezig. Echt een eyecatcher! Bij de keuken is nog een handige bergkast voor al je provisie. De gehele ruimte is voorzien van vloerverwarming en een mooie pvc-vloer. Naast de bergkast is een deur naar de trapopgang, deze is dus mooi afgesloten en niet zichtbaar vanuit de woonkamer en de keuken.

Op de eerste verdieping is een ruime overloop met 3 goede slaapkamers, deels ook voorzien van inbouwkasten. De “game-kamer” is nog extra voorzien van een deur naar het balkon. Er is ook nog een aparte ruime bergkast aanwezig, vanuit de overloop te bereiken. Zoals je wel op de foto kunt zien kan op de 2 grootste kamers gemakkelijk een tweepersoonsbed staan. De badkamer is aan de voorzijde van de woning gelegen en deze is voorzien van een grote inloopdouche met glazen wand. Ook is er een grote wastafelmeubel met 2 kranen, een designradiator en een 2e toilet aanwezig. Een goede ruimte!

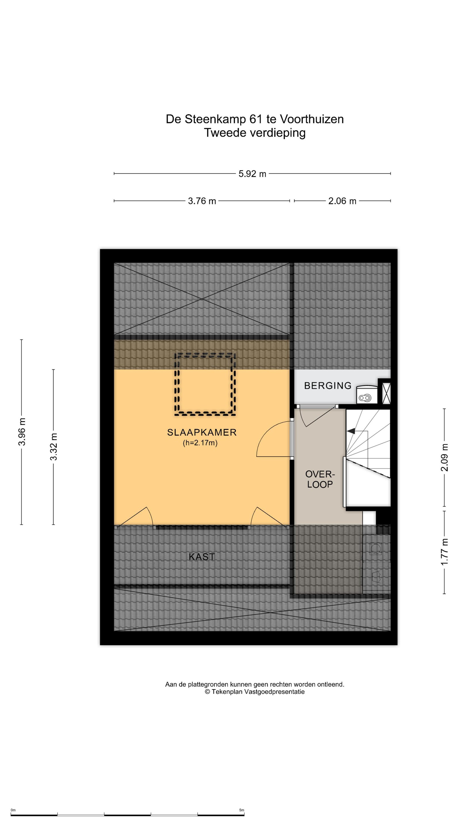
Via een open vaste trap komen we op de eerste verdieping. Via een overloop waar ook de wasmachine en droger gesitueerd zijn komen we in de 4e ruime slaapkamer. Ook hier kan met gemak een tweepersoonsbed staan en deze kamer is voorzien van een groot dakraam. Op zowel de eerste en tweede verdieping zijn airco’s aanwezig. Fijn!

Op naar buiten waar ik een gezellige, goed ingerichte tuin in loop. Ook hier hoef je eigenlijk niets meer te doen! De tuin is voorzien van een mooie grasmat, goede schuttingen en fijne bestrating. Het valt me op hoe vrij je hier in de tuin kan zitten. Aan de achterzijde, naast de garage, is een mooie overkapping met kap gerealiseerd. Ook is hier een extra deur naar de achterzijde geplaatst. Een heerlijke plek om te loungen lijkt me zo. Vanuit de tuin is uiteraard ook de garage te bereiken. Als ik naar de achtergevel kijkt, valt me hier ook weer de mooi zwart geschilderde kozijnen mij op. Deze woning is van binnen- en van buiten echt een plaatje en daarbij ook nog eens echt goed ingedeeld.

De woning is gelegen aan de rand van het gezellige dorp Voorthuizen met alle voorzieningen in de buurt. Voor (kleine) kinderen is het een fijne en veilige buurt met verschillende speelmogelijkheden. Wil je naar de stad zoals Apeldoorn of Amersfoort; je bent met 3 minuten op de snelweg A1. Het centrum zelf is voorzien van vele leuke winkels en gezellige restaurantjes. Kom je het dorp verkennen, dan kan ik 20 september aanraden omdat dan ook de jaarlijkse Floralia optocht plaats vindt! Deze optocht komt zelfs door de straat.

Ik vertel je graag alles over de woning en de woonomgeving en ik laat het je uiteraard graag ook zien. Je bent van harte welkom!





Lees meer

Kenmerken

Overdracht

Prijs per m2
€ 4.866
Aangeboden sinds
18 september 2025
Status
Verkocht onder voorbehoud
Aanvaarding
In overleg

Bouw

Soort woonhuis
Eengezinswoning, hoek woning
Soort bouw
Bestaande bouw
Bouwjaar
1971
Soort dak
Zadeldak
Staat van onderhouden binnen
Goed
Staat van onderhouden buiten
Goed

Oppervlakte en inhoud

Perceeloppervlakte
188 m2
Inhoud van de woning
409 m3
Oppervlakte externe bergruimte
20 m2
Oppervlakte gebouwgebonden buitenruimten
1 m2

Indeling

Aantal kamers
5
Aantal slaapkamers
4
Aantal woonlagen
3
Voorzieningen
Tuin, glasvezel, airconditioning, rookkanaal, dakraam

Buitenruimte

Balkon
Nee
Schuur/berging
Nee

Maandlasten berekenen

De maandlasten voor je woning bestaan uit meer dan alleen de hypotheeklasten. Hieronder vind je een overzicht van de bijkomende kosten en lasten. Zo weet je precies wat je huis per maand gaat kosten. En met de handige vergelijkers kun je ook nog eens snel de beste deals sluiten!

  • Kaart
  • Streetview