Verkocht

Professor van der Waalslaan 16 2251 GH Voorschoten

100m2
Wonen
5
Kamers
166m2
Perceel
1961
Bouwjaar
Deze uitgebouwde eengezinswoning met diepe en zonnige achtertuin van ca. 82m2 op het noordwesten is gelegen in een kindvriendelijke wijk nabij het gezellige dorpscentrum van Voorschoten met haar winkels en horecagelegenheden.
Deze fijne woning dient wel gemoderniseerd te worden.

Verder ligt deze woning gunstig t.o.v. recreatiegebied Vlietland, het station van Voorschoten, scholen, (sport) verenigingen en uitvalswegen.

Heb je interesse in deze woning en zou je deze graag willen bezichtigen? Maak dan een afspraak via ons kantoor!
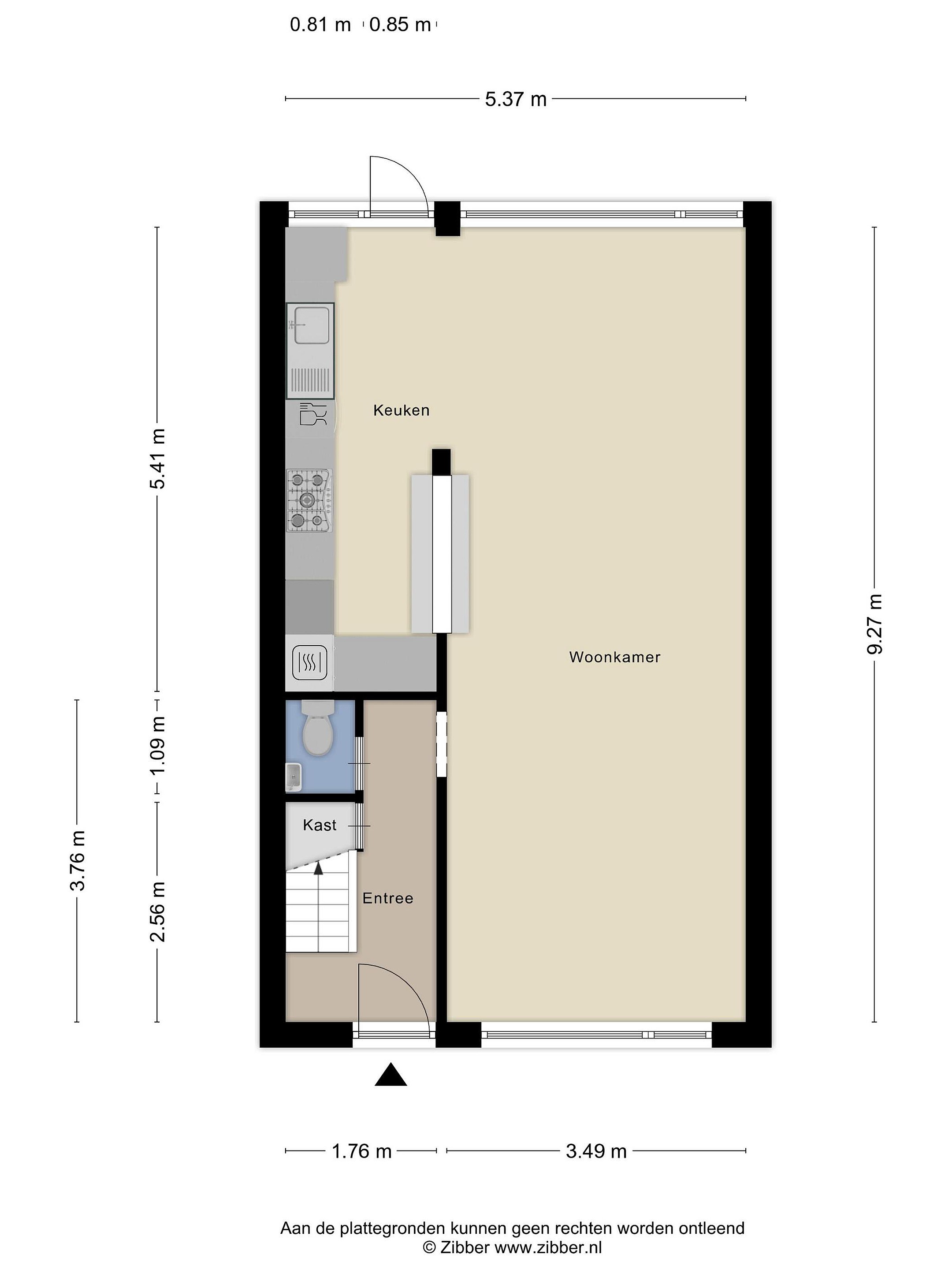
Begane grond
Begane grond: voortuin, entree, gang met trapkast en toilet.
De ruime doorzon woonkamer is uitgebouwd en heeft veel lichtinval. Via de halfopen keuken loopt u de zonnige tuin in. Achter in de tuin staat een handige berging voor uw tuingereedschap.





Eerste verdieping
Overloop met bergkast. Aan de voorzijde bevindt zich een slaapkamer met vaste kast en de badkamer met douche en wastafel. Aan de achterzijde is een grote slaapkamer met vaste kast en een kleinere slaapkamer.

Tweede verdieping
Overloop met opstelling van de cv-ketel. Slaapkamer met dakkapel en bergruimte. Een dakkapel plaatsen aan de voorzijde is mogelijk.

Details
- Woonoppervlakte circa 100 m2
- Perceeloppervlakte circa 166 m2
- Fijne en goede ligging
- Verwarming door middel van Nefit cv-ketel
- Energielabel D
- Bouwjaar circa 1961
- Oplevering in overleg
- Ouderdoms-/materiaalclausule en asbestclausule zijn van toepassing

Lees meer

Verkoopgeschiedenis

Aangeboden sinds
11 november 2025
Verkoopdatum
4 mei 2026
Looptijd
6 maanden

Kenmerken

Overdracht

Prijs per m2
€ 5.164
Aangeboden sinds
11 november 2025
Status
Verkocht
Aanvaarding
In overleg

Bouw

Soort woonhuis
Eengezinswoning, tussen woning
Soort bouw
Bestaande bouw
Bouwjaar
1961
Soort dak
Zadeldak
Staat van onderhouden binnen
Redelijk
Staat van onderhouden buiten
Redelijk

Oppervlakte en inhoud

Perceeloppervlakte
166 m2
Inhoud van de woning
356 m3
Oppervlakte externe bergruimte
7 m2

Indeling

Aantal kamers
5
Aantal slaapkamers
4
Aantal woonlagen
3
Voorzieningen
Tuin, schuur/berging, buitenzonwering

Buitenruimte

Balkon
Nee
Schuur/berging
Ja

Maandlasten berekenen

De maandlasten voor je woning bestaan uit meer dan alleen de hypotheeklasten. Hieronder vind je een overzicht van de bijkomende kosten en lasten. Zo weet je precies wat je huis per maand gaat kosten. En met de handige vergelijkers kun je ook nog eens snel de beste deals sluiten!

  • Kaart
  • Streetview