Verkocht

Westerzicht 315 4385 BB Vlissingen

103m2
Wonen
4
Kamers
182m2
Perceel
1975
Bouwjaar
Ruimte, mogelijkheden en een fijne ligging. Maak van deze woning jouw droomhuis!

Ben je op zoek naar een woning waarin je al je woonwensen kunt realiseren? Dan is deze ruim opgezette woning aan de Westerzicht precies wat je zoekt. De woning is gedateerd en verdient modernisering, maar biedt dankzij de praktische indeling, verrassende ruimtes en royale tuin een fantastische basis om helemaal naar eigen smaak te verbouwen.

Kenmerken
De woning beschikt over ca. 103 m2 woonoppervlakte, verdeeld over drie verdiepingen, en heeft een inhoud van ca. 401 m3. Gelegen op een perceel van 173 m2 is dit een ideale woning voor starters of gezinnen die op zoek zijn naar een huis met potentie en die de woning naar eigen smaak willen moderniseren.
De woning is voorzien van een slaapkamer én een tweede badkamer op de begane grond. Aan de achterzijde is een aanbouw geplaatst en op de verdieping zijn twee dakkapellen gerealiseerd, waardoor extra leefruimte is ontstaan op beide woonlagen. De woning is grotendeels voorzien van dubbele beglazing met HR-glas en de cv-installatie is in 2022 vervangen. Aan de voorzijde bevindt zich een eigen parkeerplaats, ideaal om de auto op eigen terrein te parkeren.

Locatie
De woning is rustig gelegen op een autoluw hofje in de kindvriendelijke wijk Westerzicht in Vlissingen. Deze groene woonwijk is ruim opgezet met diverse speel- en wandelmogelijkheden in de directe omgeving. Op korte afstand vind je voorzieningen zoals supermarkten, basisscholen, openbaar vervoer en sportfaciliteiten. De ligging is bovendien gunstig ten opzichte van de uitvalswegen richting Middelburg en de rest van Walcheren. Wie graag buiten is, bereikt binnen enkele minuten de mooie natuur- en recreatiegebieden én natuurlijk het Vlissingse strand en de boulevard. Ook het stadscentrum van Vlissingen met al haar voorzieningen, ligt op korte afstand.

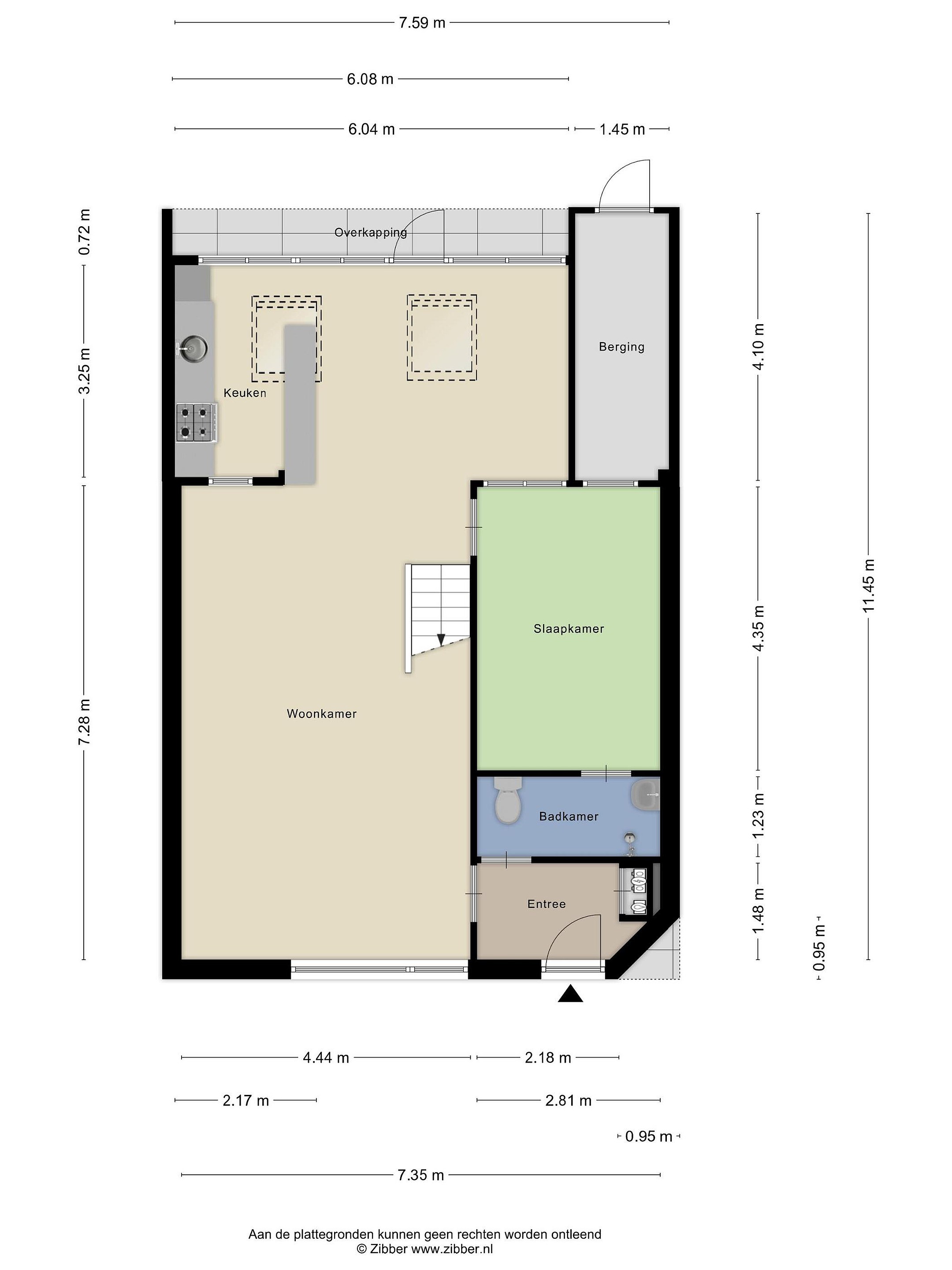
Begane grond
Je komt de woning binnen in de hal met meterkast en toegang tot de woonkamer en de badkamer op de begane grond. De woonkamer voelt door de vide ruimtelijk aan en heeft een oppervlakte van ca. 32 m2. Hier bevindt zich tevens de open trapopgang naar de verdieping.
Aan de achterzijde is in aanbouw de keukenruimte gerealiseerd, die tevens toegang biedt tot de tuin. De keuken is deels uitgevoerd met inbouwapparatuur, waaronder een oven, koelkast en gaskookplaat. Daarnaast vind je op de begane grond een fijne slaapkamer van ca. 12 m2 en een badkamer, voorzien van een douche, toilet en wastafel.

Eerste verdieping
De vide geeft de overloop een open karakter. Hier bevinden zich twee slaapkamers met een oppervlakte van ca. 13,5 m2 en 9,6 m2. Beide slaapkamers zijn voorzien van een dakkapel. De badkamer heeft een oppervlakte van ca. 4 m2 en is uitgerust met een douche, toilet en wastafel.

Tweede verdieping
Via een vlizotrap bereik je de praktische zolder. Hier staat de cv-ketel (Nefit, 2022) en is extra bergruimte beschikbaar.

Tuin
De ruime tuin op het noorden biedt volop mogelijkheden. Dankzij de vrije achterom is de tuin goed bereikbaar en de aanwezige berging zorgt voor extra opslagruimte. De inpandige berging is ideaal voor fietsen of voorraad en beschikt bovendien over een wasmachine- en drogeraansluiting.

Dit is een woning met potentie, ruimte en vrijheid om helemaal te maken zoals jij dat wilt. Maak snel een afspraak om de mogelijkheden zelf te komen bekijken!

Tot ziens aan de Westerzicht!
Lees meer

Verkoopgeschiedenis

Aangeboden sinds
2 december 2025
Verkoopdatum
12 maart 2026
Looptijd
3 maanden

Kenmerken

Overdracht

Prijs per m2
€ 2.427
Aangeboden sinds
2 december 2025
Status
Verkocht
Aanvaarding
In overleg

Bouw

Soort woonhuis
Eengezinswoning, hoek woning
Soort bouw
Bestaande bouw
Bouwjaar
1975
Soort dak
Tentdak
Staat van onderhouden binnen
Goed
Staat van onderhouden buiten
Goed

Oppervlakte en inhoud

Perceeloppervlakte
182 m2
Inhoud van de woning
401 m3
Oppervlakte externe bergruimte
5 m2
Oppervlakte gebouwgebonden buitenruimten
5 m2
Oppervlakte overige inpandige ruimten
9 m2

Indeling

Aantal kamers
4
Aantal slaapkamers
3
Aantal woonlagen
3
Voorzieningen
Tuin, schuur/berging, glasvezel

Buitenruimte

Balkon
Nee
Schuur/berging
Ja

Maandlasten berekenen

De maandlasten voor je woning bestaan uit meer dan alleen de hypotheeklasten. Hieronder vind je een overzicht van de bijkomende kosten en lasten. Zo weet je precies wat je huis per maand gaat kosten. En met de handige vergelijkers kun je ook nog eens snel de beste deals sluiten!

  • Kaart
  • Streetview