Verkocht OV

Gerbrandystraat 78 4384 NJ Vlissingen

116m2
Wonen
5
Kamers
513m2
Perceel
1930
Bouwjaar
Sfeervolle jaren ’30-woning met karakter, ruimte en gigantische tuin!

Op een fijne locatie in Vlissingen staat deze charmante jaren ’30-woning: een huis vol karakter, sfeervolle details en verrassend veel leefruimte. Denk aan glas-in-loodramen, een sfeervolle erker, een mansardekap en een heerlijke lichtinval. Bovendien beschikt het perceel over een unieke, extra grote tuin! Een ideale gezinswoning met volop mogelijkheden. Kom kijken en wie weet wordt u de nieuwe trotse eigenaar.

Kenmerken
De woning beschikt over ca. 116 m2 woonoppervlakte, verdeeld over twee verdiepingen, en heeft een inhoud van ca. 433 m3. Gelegen op een royaal perceel van in totaal 513 m2 is dit een ideale woning voor wie op zoek is naar sfeer en ruimte. Dankzij meerdere percelen is een riante tuin ontstaan. De woning is grotendeels voorzien van kunststof kozijnen met HR++-beglazing. Daarnaast zijn deels rolluiken en deels screens aanwezig. De woning beschikt over energielabel D.

Locatie
De woning ligt aan de Gerbrandystraat in Vlissingen, op een rustige en groene locatie in een kindvriendelijke wijk. Alle dagelijkse voorzieningen, scholen, winkels en sportfaciliteiten vindt u op korte afstand, terwijl het bruisende centrum én de boulevard met strand en zee binnen enkele minuten bereikbaar zijn. Hier woont u comfortabel en rustig, met het beste van Vlissingen binnen handbereik. De ligging is bovendien gunstig ten opzichte van de uitvalswegen richting Middelburg en de rest van Walcheren. Achter de woning is een parkeerplaats aanwezig, ideaal voor het parkeren van uw auto.

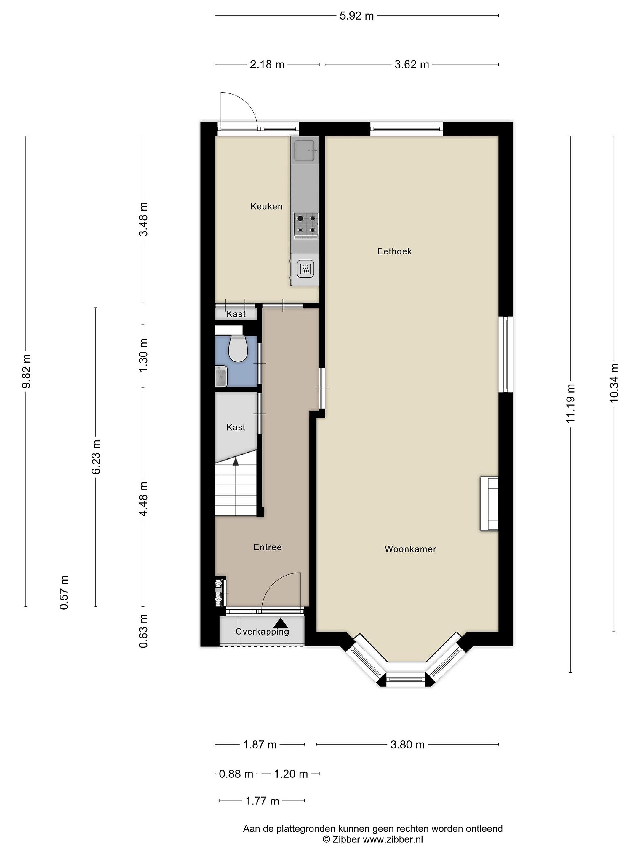
Begane grond
U komt de woning binnen via de ruime hal met meterkast, kelderkast, toilet en trapopgang naar de eerste verdieping. Het toilet is netjes uitgevoerd met een hangtoilet en fonteintje.
Vanuit de hal bereikt u de sfeervolle woonkamer met een oppervlakte van ca. 40 m2. De royale leefruimte met erker, glas-in-loodramen en elektrische haard vormt een warm en uitnodigend geheel. Dankzij de vele raampartijen valt er veel daglicht binnen. De keuken (ca. 7,5 m2) is voorzien van een nette keukenopstelling met inbouwapparatuur en praktische vaste kastruimte. Vanuit de keuken is er directe toegang tot de tuin.

Eerste verdieping
De eerste verdieping biedt vier ruime slaapkamers, ideaal voor grotere gezinnen of thuiswerkers. Eén van de slaapkamers aan de voorzijde heeft toegang tot een charmant, pittoresk balkon. De badkamer, gelegen in het midden van de verdieping, is uitgevoerd met ligbad, douche, toilet en wastafel. Daarnaast zijn op de overloop een praktisch washok met aansluitingen voor huishoudelijke apparatuur en een vaste kast aanwezig.

Tweede verdieping
Via een vlizotrap vanaf de overloop is de zolderverdieping bereikbaar. Deze zolder biedt volop bergruimte en beschikt over de cv-installatie (Intergas, 2015). Dankzij de hoogte en oppervlakte is dit een ideale plek voor opslag.

Tuin
Echte blikvanger is de gigantische tuin, vergroot door meerdere percelen. Deze groene, royale tuin biedt volop ruimte en bezonningsmogelijkheden, ideaal om als tuinliefhebber van elk seizoen te genieten. Daarnaast beschikt het perceel over een grote stenen berging van ca. 17,8 m2, ideaal voor fietsen, hobby’s of opslag. Ook is er een moestuin met tuinkas aanwezig. De vrije achterom komt uit op een parkeerplaats: praktisch en comfortabel!

Heeft u interesse in deze sfeervolle woning en wilt u ontdekken wat deze woning u te bieden heeft? Kom dan snel bezichtigen! Tot ziens aan de Gerbrandystraat 78.
Lees meer

Kenmerken

Overdracht

Prijs per m2
€ 3.185
Aangeboden sinds
10 december 2025
Status
Verkocht onder voorbehoud
Aanvaarding
In overleg

Bouw

Soort woonhuis
Eengezinswoning, half vrijstaande woning
Soort bouw
Bestaande bouw
Bouwjaar
1930
Soort dak
Mansardedak
Staat van onderhouden binnen
Goed
Staat van onderhouden buiten
Goed

Oppervlakte en inhoud

Perceeloppervlakte
513 m2
Inhoud van de woning
433 m3
Oppervlakte externe bergruimte
21 m2
Oppervlakte gebouwgebonden buitenruimten
2 m2
Oppervlakte overige inpandige ruimten
6 m2

Indeling

Aantal kamers
5
Aantal slaapkamers
4
Aantal woonlagen
3
Voorzieningen
Tuin, balkon, schuur/berging, rolluiken, glasvezel, buitenzonwering

Buitenruimte

Balkon
Ja
Schuur/berging
Ja

Maandlasten berekenen

De maandlasten voor je woning bestaan uit meer dan alleen de hypotheeklasten. Hieronder vind je een overzicht van de bijkomende kosten en lasten. Zo weet je precies wat je huis per maand gaat kosten. En met de handige vergelijkers kun je ook nog eens snel de beste deals sluiten!

  • Kaart
  • Streetview