Verkocht

Van Blankenheimstraat 3 3132 VA Vlaardingen

93m2
Wonen
4
Kamers
146m2
Perceel
1958
Bouwjaar
In kindvriendelijke woonwijk gelegen compleet gerenoveerde 4 kamer eengezinswoning met grote aangelegde tuin op het zuiden.

De woning ligt aan de rand van Vlaardingen, in de groene "Westwijk" nabij natuurgebied De Broekpolder. Volop recreatiemogelijkheden in de directe nabijheid zoals Krabbeplas, Zuidbuurt en Delfland.

Het centrum, scholen en sportcentra bevinden zich op loopafstand. Goede bereikbaarheid met het openbaar vervoer en snelle doorstroom naar de snelwegen.

In 2018 is bijna alles in deze woning vernieuwd: kunststof kozijnen en voordeur, luxe radiatoren, alle binnendeuren, keuken, badkamer, laminaatvloeren en CV-ketel. De woning is voorzien van energielabel A!

Voor de exacte indeling en indicatieve maatvoering verwijzen wij je graag door naar de plattegronden.

Indeling:

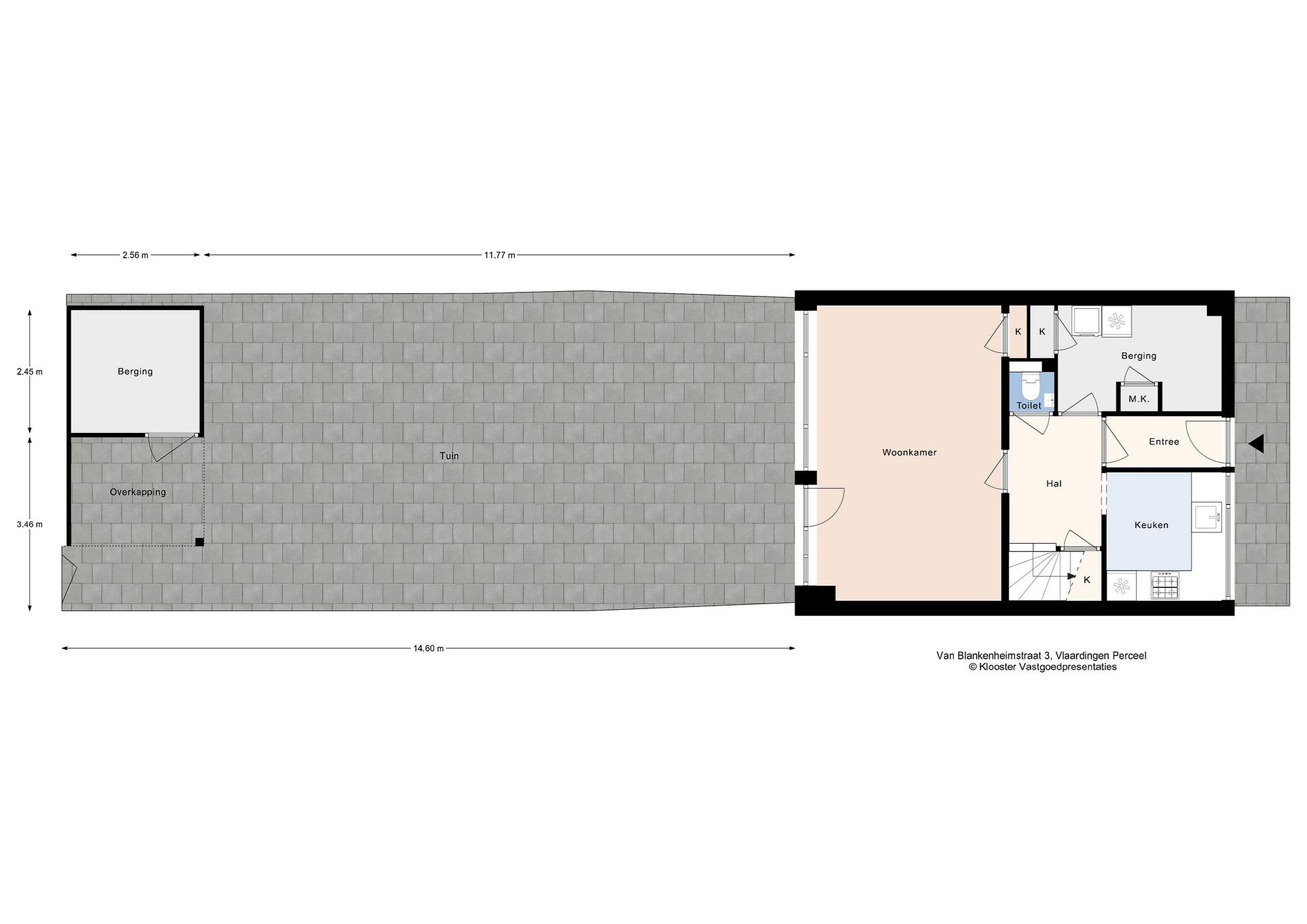
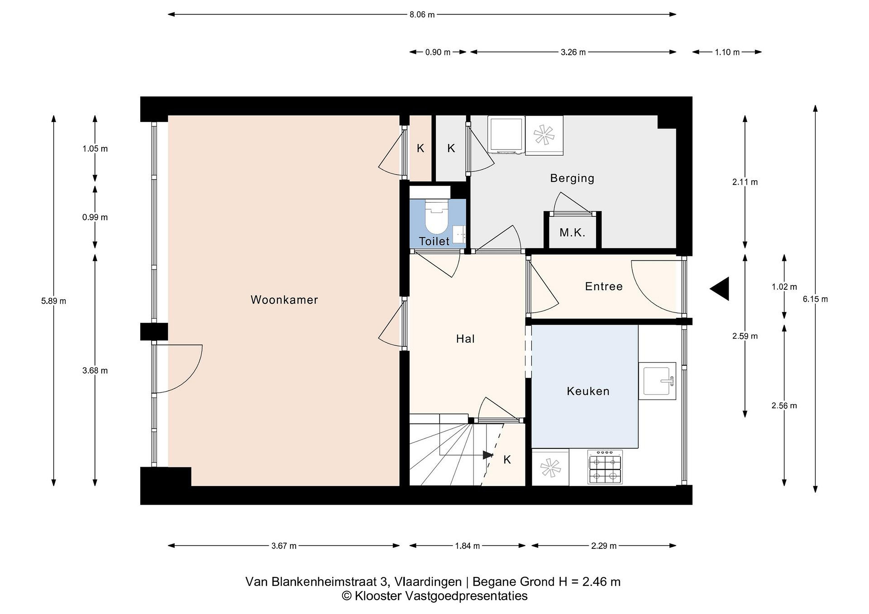
Begane grond:
Entree naar de centrale hal met toegang tot de keuken, bijkeuken, woonkamer en toilet.
In de hal bevindt zich ook een ruime kast en de trapopgang naar boven. De bruine vloertegels lopen door naar de keuken en bijkeuken.

De strakke witte keuken is voorzien van Bosch apparatuur: gasstel, oven, grote koelkast, magnetron.

In de betegelde en vergrote bijkeuken vind je de meterkast en de kast met CV-ketel (Remeha 2018).

Het toilet is geheel betegeld en voorzien van een zwevend closet met fonteintje.

De woonkamer is voorzien van een laminaatvloer, steenstrips op de muren en een gestuct plafond.
Kantel/kiepdeur naar mooi aangelegde tuin met niveauverschil.
Achter in de tuin staat een houten schuur met aangebouwde loungeruimte. Via de achteruitgang bereik je een doorgaande weg met voldoende parkeergelegenheid.

Verdieping:
Vanuit de ruime overloop is er toegang naar 3 slaapkamers en de badkamer. Ook op deze verdieping overal kunststof kozijnen en kantel/kiepramen. De slaapkamers aan de tuinzijde zijn daarnaast ook voorzien van een elektrisch rolluik. Op de gehele verdieping ligt een mooie laminaatvloer.

De geheel betegelde badkamer heeft een (inloop)douchecabine, grote wasbak, zwevend toilet en moderne handdoekradiator.

Het dak is in 2020 geïsoleerd, evenals de gevel aan de straatkant (zowel boven als beneden).

Bijzonderheden:
- Bouwjaar 1958
- Eigen grond, perceeloppervlakte 146 m2
- Woonoppervlakte ca.93 m2
- Overal kunststof kozijnen met triple glas (2018)
- Energielabel A
- Keuken en badkamer uit 2018
- Dak geïsoleerd in 2020
- Gevels voorzijde woning geïsoleerd in 2020
- Mooie grote tuin, aangelegd in 2020
- CV ketel Remeha Tzerra uit 2018
- Ouderdoms – en asbestclausule worden in de koopakte opgenomen
- Oplevering in overleg

Je kunt een bezichtiging aanvragen door op funda het contactformulier in te vullen. Er wordt dan contact met je opgenomen om de afspraak te maken.

De vermelde informatie is van algemene aard en is niet meer dan een uitnodiging om de woning te bezichtigen of om in onderhandeling te treden. Hoewel deze tekst en plattegrond met zorg zijn samengesteld zijn wij niet aansprakelijk voor eventuele onjuistheden. De toegepaste Meetinstructie (NEN 2580) sluit verschillen in meetuitkomsten niet volledig uit, door bijvoorbeeld interpretatieverschillen, afrondingen of beperkingen bij het uitvoeren van de meting. Aan de inhoud van deze informatie kunnen geen rechten worden ontleend.


Lees meer

Verkoopgeschiedenis

Aangeboden sinds
17 maart 2026
Verkoopdatum
12 mei 2026
Looptijd
2 maanden

Kenmerken

Overdracht

Prijs per m2
€ 4.301
Aangeboden sinds
17 maart 2026
Status
Verkocht
Aanvaarding
In overleg

Bouw

Soort woonhuis
Eengezinswoning, tussen woning
Soort bouw
Bestaande bouw
Bouwjaar
1958
Soort dak
Plat dak
Staat van onderhouden binnen
Goed
Staat van onderhouden buiten
Goed

Oppervlakte en inhoud

Perceeloppervlakte
146 m2
Inhoud van de woning
310 m3
Oppervlakte externe bergruimte
6 m2
Oppervlakte gebouwgebonden buitenruimten
2 m2

Indeling

Aantal kamers
4
Aantal slaapkamers
3
Aantal woonlagen
2
Voorzieningen
Tuin, schuur/berging, rolluiken, kabel-tv

Buitenruimte

Balkon
Nee
Schuur/berging
Ja

Maandlasten berekenen

De maandlasten voor je woning bestaan uit meer dan alleen de hypotheeklasten. Hieronder vind je een overzicht van de bijkomende kosten en lasten. Zo weet je precies wat je huis per maand gaat kosten. En met de handige vergelijkers kun je ook nog eens snel de beste deals sluiten!

  • Kaart
  • Streetview