Verkocht

Zirkoon 3 5912 SW Venlo

148m2
Wonen
5
Kamers
244m2
Perceel
1998
Bouwjaar
Ruime uitgebouwde twee-onder-een-kapwoning met praktijkruimte, 4 slaapkamers en eigen oprit in Venlo-Zuid.
In een rustige, kindvriendelijke straat ligt deze uitstekend onderhouden en verrassend ruime twee-onder-een-kapwoning met hoekligging. De woning is aan de achterzijde over de volle breedte uitgebouwd en beschikt over maar liefst vier slaapkamers, een multifunctionele praktijk-/kantoorruimte, nieuwe badkamer en toiletruimte, een fraai aangelegde tuin én een eigen oprit. Met 8 zonnepanelen, airconditioning en een hybride warmtepomp is dit bovendien een comfortabel en toekomstgericht woonhuis. Scholen, winkels en speelvoorzieningen bevinden zich op loopafstand. Het centrum van Venlo, VieCuri Medisch Centrum en diverse uitvalswegen zijn snel en eenvoudig bereikbaar.

Indeling:

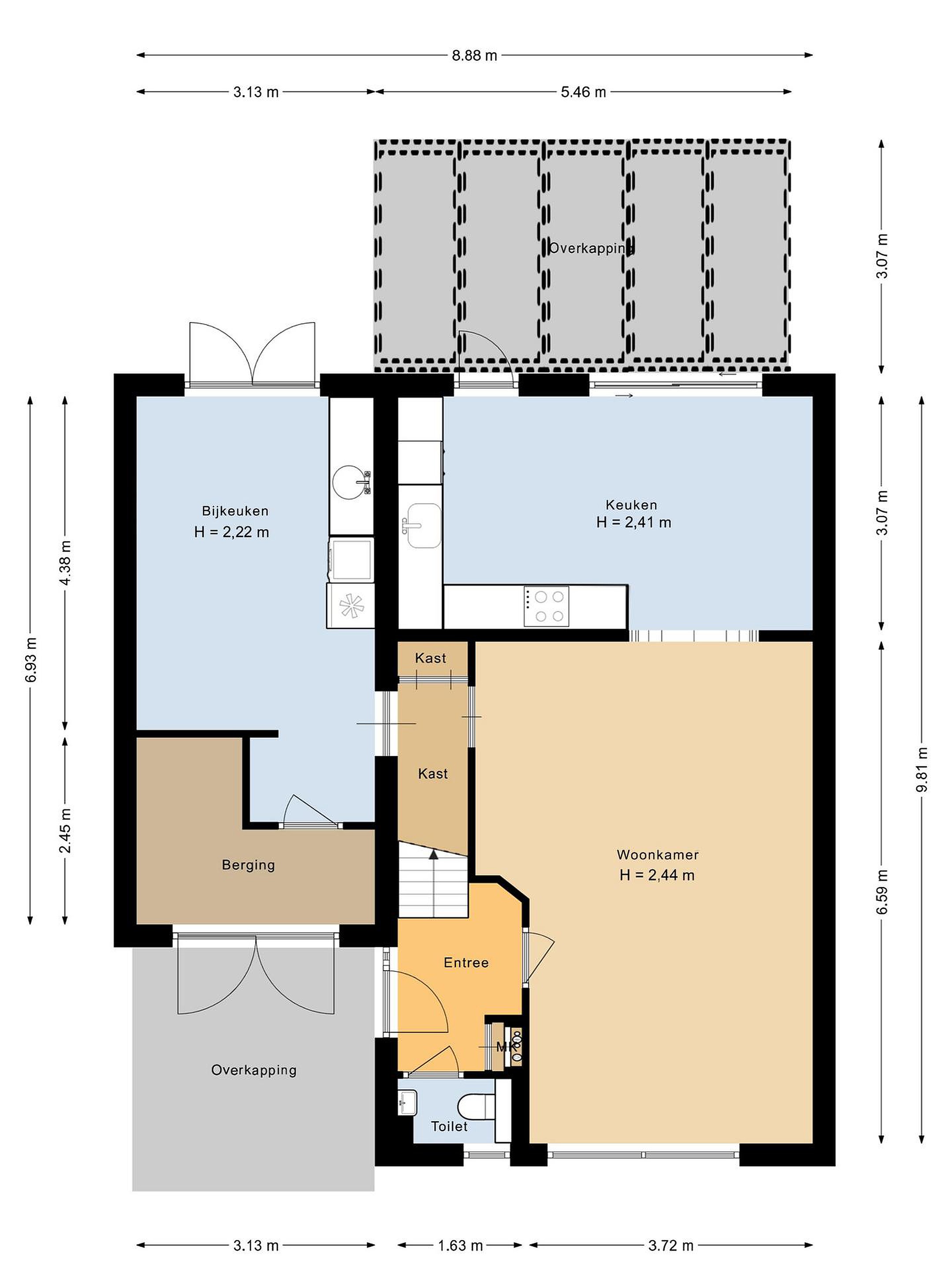
Begane grond
De overdekte entree geeft toegang tot de hal (ca. 6m2) met garderobe, meterkast, trapopgang en de recent vernieuwde toiletruimte. Deze moderne ruimte is deels betegeld en voorzien van een zwevend closet, fontein, radiator en mechanische ventilatie.
De woonkamer is ruim opgezet (ca. 27m2) met een gezellige zithoek aan de voorzijde en uitzicht op de voortuin. Een airco-unit zorgt hier voor zowel verkoeling als verwarming en het venster is voorzien van een zonnescreen. Aan de achterzijde is de woning over de volledige breedte uitgebouwd, wat resulteert in een royale leefkeuken (ca. 17m2) met veel lichtinval. Grote schuifpuien en een loopdeur verbinden binnen moeiteloos met het overdekte terras.
De moderne keuken in hoekopstelling is voorzien van een natuurstenen werkblad en achterwand en beschikt over diverse inbouwapparatuur, waaronder een grote inductiekookplaat (2025), afzuigkap, vaatwasser, hoge koelkast en combi oven-magnetron (2025). Inbouwspots zorgen voor sfeervolle verlichting. De begane grond is afgewerkt met een lichte PVC-vloer in houtlook.
Via een portaal met inbouwkast is de voormalige garage bereikbaar. Deze is opgesplitst in een praktische berging voor fietsen en tuingereedschap (ca. 6m2) met dubbele deuren naar de oprit, en een volledig geïsoleerde en afgewerkte multifunctionele ruimte. Deze ruimte (ca. 16m2) beschikt over openslaande tuindeuren, een pantry met wateraansluiting en kastruimte, aansluitingen voor wasmachine en droger en inbouwspots. Ideaal als praktijkruimte, kantoor aan huis of hobbyruimte.

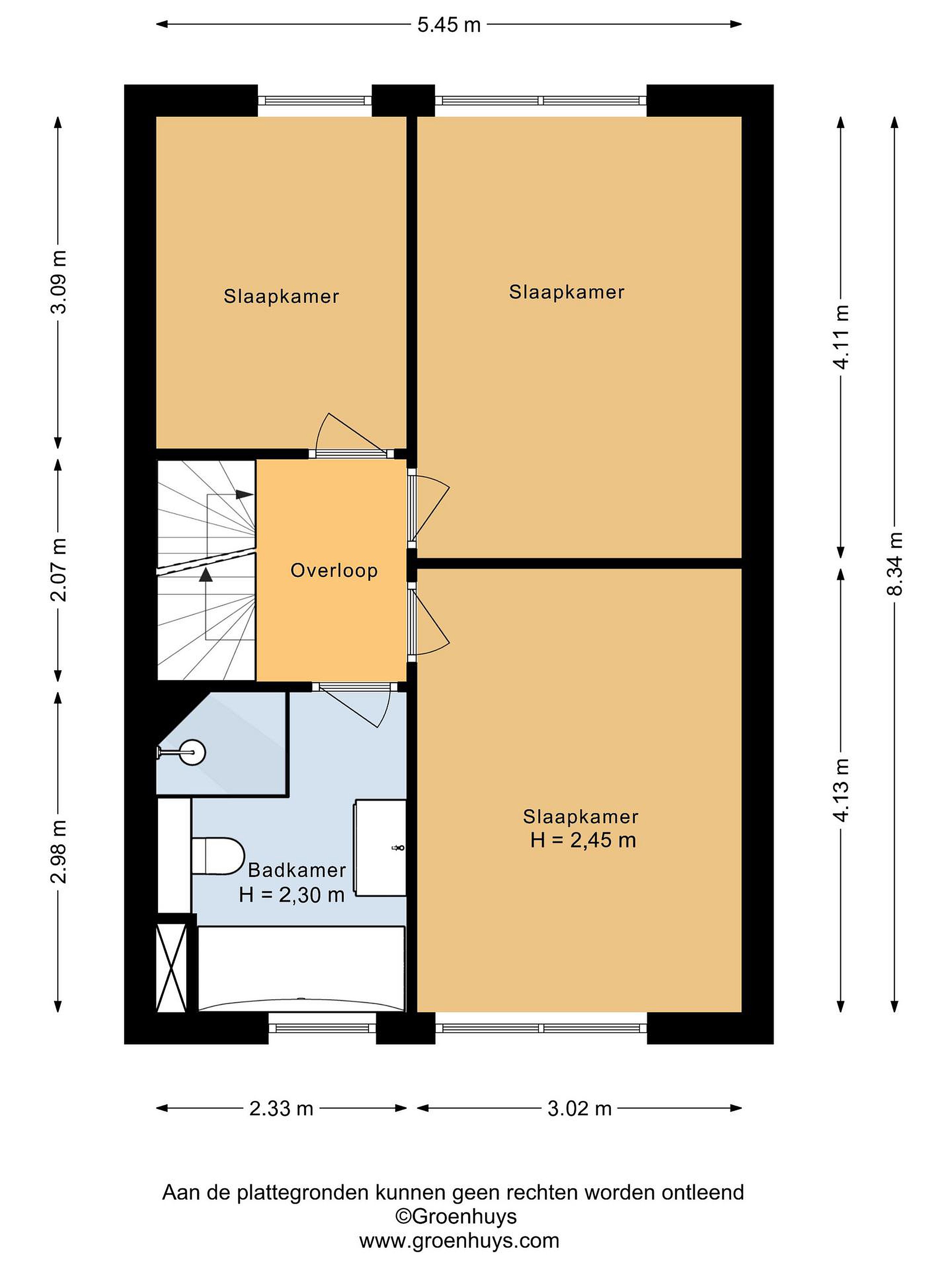
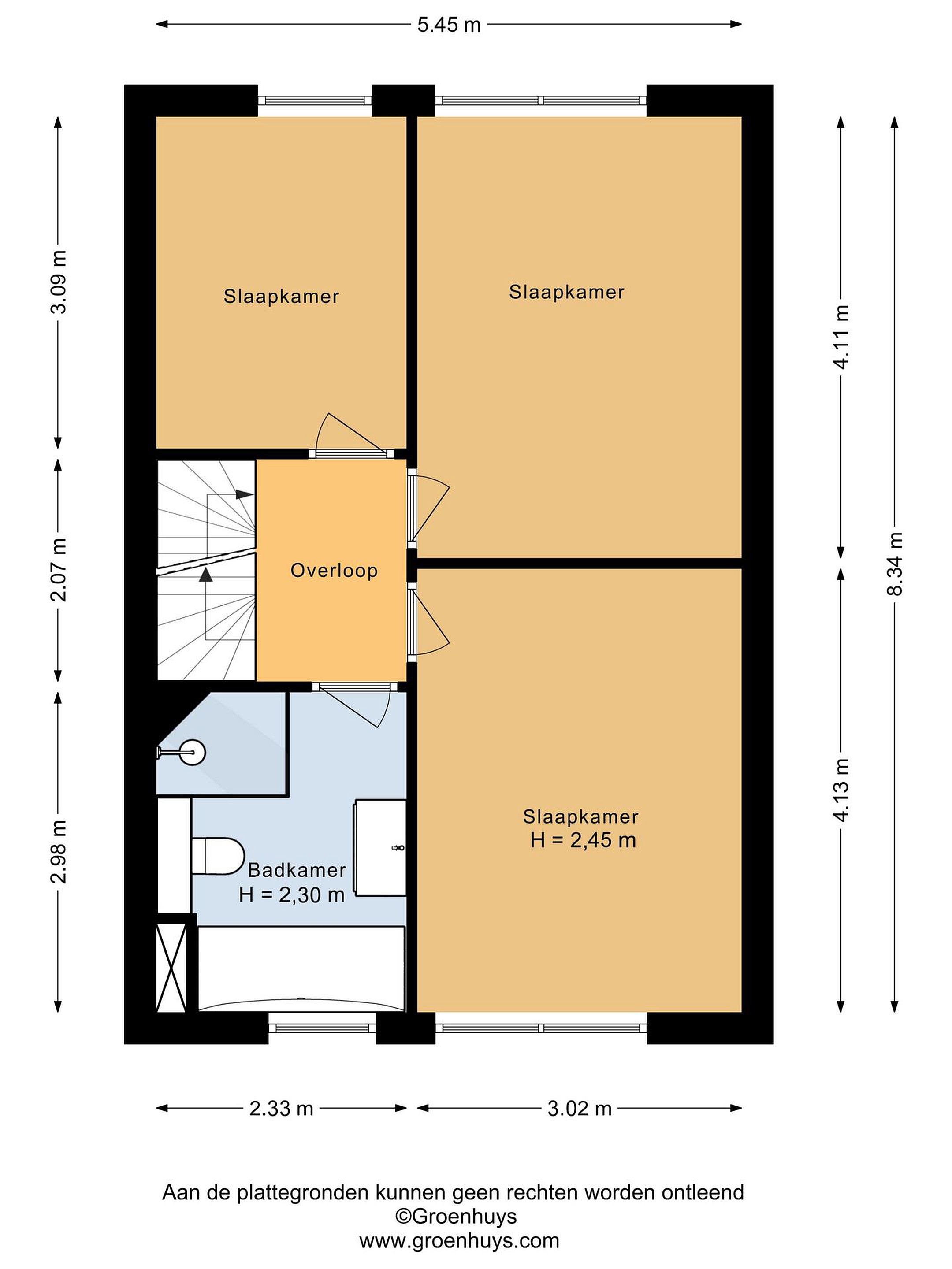
Eerste verdieping
De overloop biedt toegang tot drie ruime en lichte slaapkamers (ca. 7, 12,5 en 12,5m2), allen voorzien van een moderne laminaatvloer. Ook op de overloop is een airco aanwezig voor extra comfort.
De recent vernieuwde badkamer (ca. 6,5m2) is modern en luxe uitgevoerd met een extra brede wastafel met ladekast en spiegelkast, zwevend toilet, ligbad, inloopdouche met inbouwkraan en regendouche, designradiator, inbouwspots, een groot raam voor daglicht en mechanische ventilatie.

Tweede verdieping
Via een vaste trap is de zolderverdieping bereikbaar. Op de overloop (ca. 6,5m2) bevinden zich de omvormer voor de zonnepanelen, de mechanische ventilatie-unit en extra aansluitingen voor wasapparatuur. In een aparte bergruimte (ca. 2,5m2) zijn de cv-ketel (Remeha, 2017) en de hybride warmtepomp (2023) geplaatst.
De ruime vierde slaapkamer (ca. 15m2) is voorzien van dakramen aan beide zijden en praktische bergruimte achter de knieschotten. Deze kamer is desgewenst op te splitsen in twee kamers. De gehele verdieping is afgewerkt met een lichte laminaatvloer.

Tuin
De voortuin is verzorgd aangelegd met een grote border en een fraaie Japanse esdoorn. De oprit biedt parkeergelegenheid op eigen terrein.
De recent opnieuw aangelegde achtertuin is een heerlijke, onderhoudsvriendelijke buitenruimte. Over de volledige breedte ligt een terras met grote keramische tegels. Witte plantenbakken met siergrassen en diverse beplanting zorgen voor een moderne uitstraling. In de zomer is de tuin rijk begroeid met onder andere een appelboom, druif, eucalyptus en pampasgras. Achterin staat een ruim houten tuinhuis (ca.8m2) met pannendak en vliering, ideaal voor extra opslag. De tuin is professioneel aangelegd door een hoveniersbedrijf.

Algemeen:
Bouwjaar 1998, inhoud ca. 507m3, woonoppervlakte ca. 148m2, gebouw gebonden buitenruimte ca. 27m2, externe bergruimte ca. 8m2, perceeloppervlakte 244m2.

De woning heeft de volgende kenmerken:

- Volledig geïsoleerd
- Hardhouten kozijnen met HR-glas
- 8 zonnepanelen (2018)
- Hybride warmtepomp (2023)
- Airconditioning op begane grond en verdieping
- Energielabel B (opgesteld vóór plaatsing zonnepanelen en warmtepomp)
- Rustige en kindvriendelijke woonomgeving
- Voorzieningen, scholen en winkels op loopafstand
- Aanvaarding in overleg

Vraagprijs: € 469.000,- k.k.


Lees meer

Verkoopgeschiedenis

Aangeboden sinds
18 februari 2026
Verkoopdatum
12 maart 2026
Looptijd
22 dagen

Kenmerken

Overdracht

Prijs per m2
€ 3.169
Aangeboden sinds
18 februari 2026
Status
Verkocht
Aanvaarding
In overleg

Bouw

Soort woonhuis
Eengezinswoning, twee-onder-een-kap woning
Soort bouw
Bestaande bouw
Bouwjaar
1998
Soort dak
Zadeldak
Staat van onderhouden binnen
Uitstekend
Staat van onderhouden buiten
Uitstekend

Oppervlakte en inhoud

Perceeloppervlakte
244 m2
Inhoud van de woning
506 m3
Oppervlakte externe bergruimte
8 m2
Oppervlakte gebouwgebonden buitenruimten
27 m2

Indeling

Aantal kamers
5
Aantal slaapkamers
4
Aantal woonlagen
3
Voorzieningen
Tuin, schuur/berging, ventilatie, kabel-tv, buitenzonwering, airconditioning, schuifpui, dakraam

Buitenruimte

Balkon
Nee
Schuur/berging
Ja

Maandlasten berekenen

De maandlasten voor je woning bestaan uit meer dan alleen de hypotheeklasten. Hieronder vind je een overzicht van de bijkomende kosten en lasten. Zo weet je precies wat je huis per maand gaat kosten. En met de handige vergelijkers kun je ook nog eens snel de beste deals sluiten!

  • Kaart
  • Streetview