Langstraat 54 5912 PB Venlo

135m2
Wonen
5
Kamers
200m2
Perceel
1999
Bouwjaar
In een rustige, kindvriendelijke wijk van Venlo ligt deze uitstekend onderhouden tussenwoning uit 1999. De woning combineert stijl en praktische leefruimte met een moderne afwerking en veel lichtinval. De woning beschikt over een riante woonkamer van ca. 50 m2 met uitbouw en grote glazen pui, een moderne open keuken met kookeiland en hoogwaardige inbouwapparatuur, vier slaapkamers en een luxe badkamer (2021). De onderhoudsvriendelijke achtertuin op het zuidwesten is voorzien van een groot terras, een gezellige overkapping en een berging.
De woning is volledig geïsoleerd, voorzien van hardhouten kozijnen met HR-glas, 12 zonnepanelen (2021) en heeft energielabel B. Gelegen op loopafstand van basisschool De Koperwiek, speelgelegenheden en het Jaomerdal, met het centrum, uitvalswegen (A67/A73) en ziekenhuis VieCuri binnen enkele minuten.

Indeling:

Begane grond:
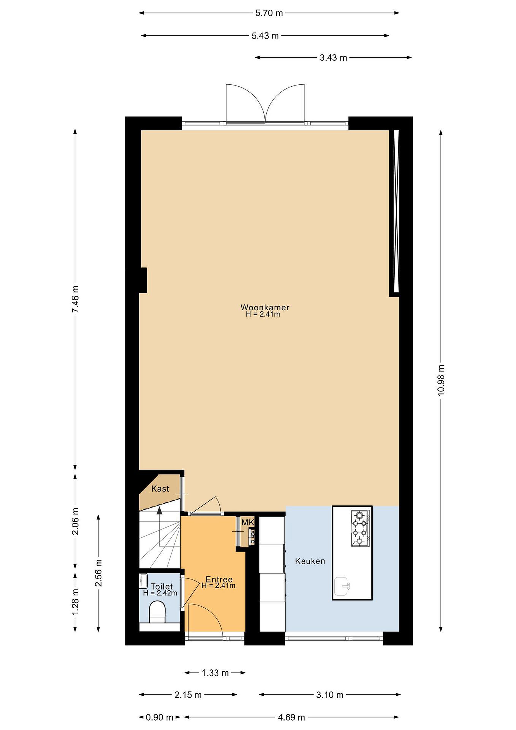
Vanuit de voortuin is de entree tot de woning te bereiken. De entree/ hal met garderobe geeft toegang tot de toiletruimte, de meterkast, de trapopgang naar de 1e verdieping en de woonkamer. De toiletruimte is geheel betegeld en voorzien van een zwevend closet en fonteintje. Middels een stalen glazen deur is er toegang tot de riante woonkamer. Aan de voorzijde van de woonkamer is de open keuken gesitueerd. De moderne open keuken heeft een kookeiland met een 5-pitsgasfornuis, afzuigkap, vaatwasser en een spoelbak. De vaste kastenwand is de oven, magnetron en koelkast gesitueerd. Aan de achterzijde is de woonkamer uitgebouwd en voorzien van een grote glazen pui met openslaande tuindeuren. De woonkamer is ca. 50m2 groot. De gehele begane grond is voorzien van een mooie eikenhouten vloer.

1e verdieping:
De overloop geeft toegang tot 2 slaapkamers, de badkamer, de aparte toiletruimte en een wasruimte. De overloop en de slaapkamers zijn voorzien van een laminaatvloer. De slaapkamers zijn ca. 10,5m2 en 15m2 groot. De moderne badkamer (2021) is ingericht met een inloopdouche en een dubbele wastafel met meubel. De aparte toiletruimte is voorzien van een zwevend closet. In de wasruimte (ca. 3m2) bevinden zich de aansluitingen voor wasmachine en droger.

2e verdieping:
Middels een vaste trap is de overloop van de 2e verdieping te bereiken. De overloop is ruim van opzet en biedt ruimte voor een thuiswerkplek. De overloop geeft toegang tot de 3e slaapkamer en de technische ruimte. De slaapkamer heeft een hoog plafond en is ca. 12m2 groot. In de technische ruimte is de combi CV-ketel en de omvormer van de zonnepanelen gesitueerd. Vanuit de technische ruimte is er toegang tot de 4e slaapkamer (ca. 8m2). Deze slaapkamer zou ook prima als studeerkamer/ werkruimte gebruikt kunnen worden. Achter knieschotten bevindt zich de nodige bergruimte. De gehele 2e verdieping is voorzien van een laminaatvloer.

Tuin:
De onderhoudsvriendelijke achtertuin heeft een groot beklinkerd terras met zonnescherm direct aan de woning. Verder heeft de tuin verschillende borders met beplanting en bomen. Achter in de tuin is er een gezellige overkapping (ca. 9m2) en een berging (ca. 9,5m2). De tuin is gelegen op het zuidwesten en is te bereiken middels een vrije achterom.
De voortuin is in 2021 opnieuw aangelegd.

Algemeen:
Bouwjaar 1999, inhoud ca. 457m3, gebruiksoppervlakte wonen ca. 135m2, perceelsoppervlakte 200m2. Onderhoudsstaat is zowel binnen als buiten zeer goed. De gehele woning is voorzien van hardhouten kozijnen met HR-glas. Combi CV-ketel 2015. 12 zonnepanelen (2021). Volledig geïsoleerd. Energielabel B.
In 2021 is de woning voorzien van nieuw sanitair, nieuwe laminaatvloer 2e verdieping, nieuwe binnendeurkozijnen en vernieuwd stuukwerk. Gelegen in een kindvriendelijke, rustige woonwijk op loopafstand van kindcentrum de Koperwiek, diverse speelgelegenheden en het Jaomerdal. De dagelijkse voorzieningen en het centrum van Venlo zijn gelegen op fietsafstand. De uitvalswegen A67/A73 en ziekenhuis VieCuri zijn op 5 autominuten gelegen.

Vraagprijs: € 409.000,- k.k.
Lees meer

Kenmerken

Overdracht

Prijs per m2
€ 3.030
Aangeboden sinds
20 oktober 2025
Status
Beschikbaar
Aanvaarding
In overleg

Bouw

Soort woonhuis
Eengezinswoning, tussen woning
Soort bouw
Bestaande bouw
Bouwjaar
1999
Soort dak
Samengesteld dak
Staat van onderhouden binnen
Uitstekend
Staat van onderhouden buiten
Uitstekend

Oppervlakte en inhoud

Perceeloppervlakte
200 m2
Inhoud van de woning
457 m3
Oppervlakte externe bergruimte
9 m2

Indeling

Aantal kamers
5
Aantal slaapkamers
4
Aantal woonlagen
3
Voorzieningen
Tuin, schuur/berging, ventilatie, dakraam

Buitenruimte

Balkon
Nee
Schuur/berging
Ja

Maandlasten berekenen

De maandlasten voor je woning bestaan uit meer dan alleen de hypotheeklasten. Hieronder vind je een overzicht van de bijkomende kosten en lasten. Zo weet je precies wat je huis per maand gaat kosten. En met de handige vergelijkers kun je ook nog eens snel de beste deals sluiten!

  • Kaart
  • Streetview