Julianastraat 12 5911 AX Venlo

192m2
Wonen
6
Kamers
220m2
Perceel
1930
Bouwjaar
Karaktervolle jaren ’30 woning (inclusief garage!!) met moderne luxe in het hart van Venlo

In het geliefde Rosarium, een van de meest karakteristieke en gewilde buurten van Venlo, staat deze charmante jaren ’30 stadswoning (1936) met garage! Een huis met een ziel, omringd door statige gevels en een fijne, hechte buurt waar kinderen veilig spelen ‍‍‍en buren elkaar kennen. Basisschool, middelbaar onderwijs én het bruisende centrum van Venlo bevinden zich op loopafstand . Hier woon je rustig, maar met alles binnen handbereik.

Authentiek karakter & toekomstbestendig comfort
Deze woning combineert het beste van twee werelden. Authentieke details zoals glas-in-loodramen en sfeervolle vloeren zorgen voor warmte en karakter, terwijl moderne voorzieningen het wooncomfort naar een hoog niveau tillen. Denk aan vloerverwarming, een hybride warmtepomp en maar liefst 30 zonnepanelen, wat resulteert in zeer lage energielasten (circa €100 per maand ). De stijlvolle Barbas wandhaard maakt de woonkamer extra behaaglijk tijdens koude dagen.

Licht, ruimte en ultiem buitenleven
De begane grond is heerlijk licht dankzij de serre. Via de grote glazen schuifdeur loopt de woonkamer naadloos over in de tuin, waardoor binnen en buiten één geheel vormen . De glazen overkapping met zonwering maken het mogelijk om in elk seizoen van het buitenleven te genieten.

De in 2018 aangelegde tuin is een volledig ommuurde, groene stadsoase met volwassen beplanting, bomen en robuuste cortenstalen wandpanelen. Geïntegreerde verlichting en een bewateringssysteem zorgen voor comfort en sfeer. Met aparte lounge- en eetgedeeltes is dit de perfecte plek om te ontspannen of gasten te ontvangen .

Duurzaam, verzorgd en instapklaar
De afgelopen jaren is fors geïnvesteerd in verduurzaming en modernisering, altijd met oog voor kwaliteit en rendement. Dit maakt de woning niet alleen comfortabel, maar ook klaar voor de toekomst.

**Highlights op een rij:
- Jaren ’30 woning (1936) in het populaire Rosarium
- Op loopafstand van scholen en centrum Venlo ️
- Garage aanwezig
- Vloerverwarming en moderne Barbas wandhaard
- Fraaie keuken met eiland en inbouwapparatuur
- 30 zonnepanelen + hybride warmtepomp
- Zeer lage energielasten (ca. €100 p/m)
- 2 Badkamers
- Serre en grote schuifpui naar de tuin
- Fraai aangelegde, onderhoudsvriendelijke tuin (2018)
- Overkappingen met zonwering
- Dak-, vloer- en spouwmuurisolatie.
- Energielabel C
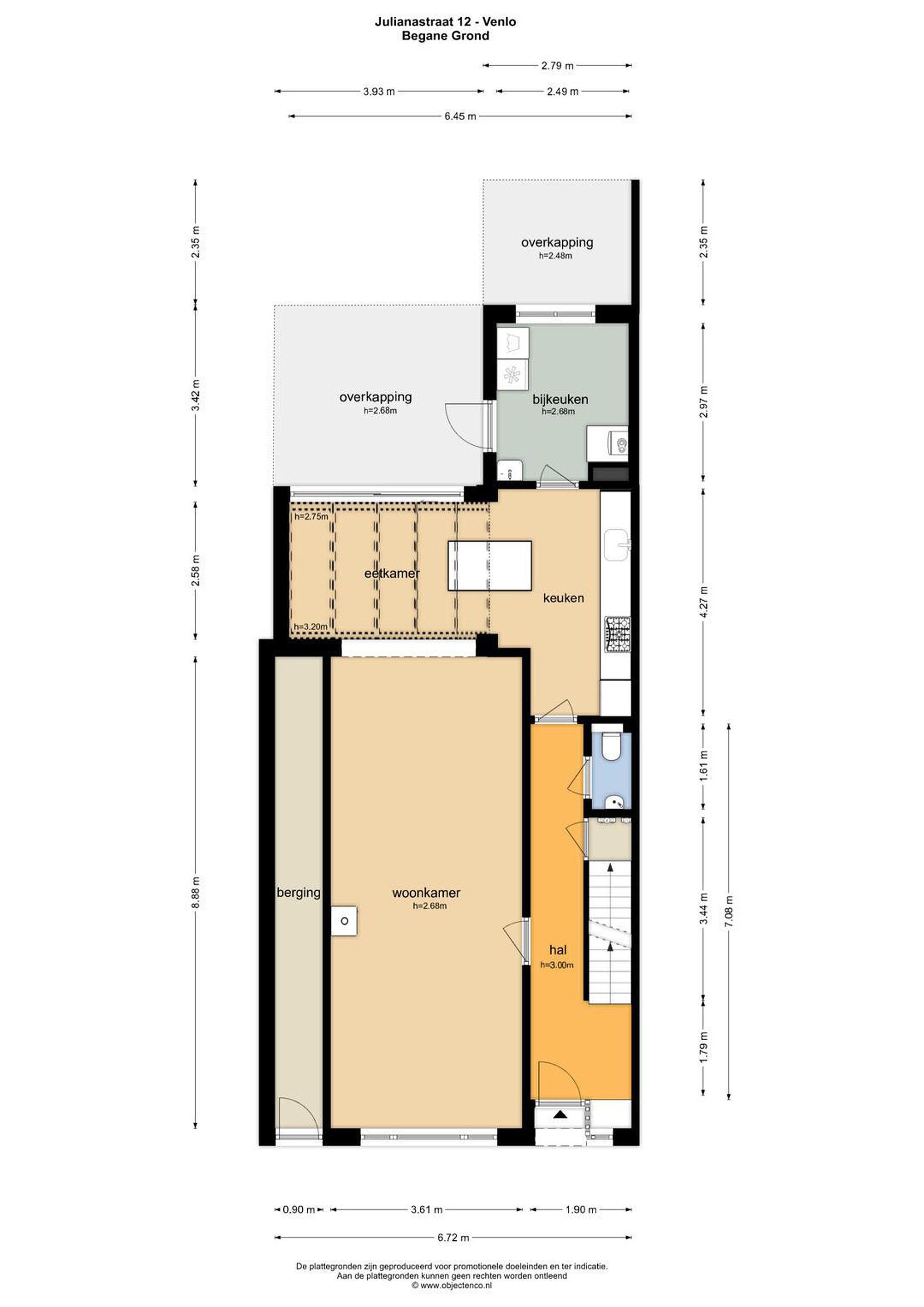
Begane grond
- Sfeervolle entree met originele tegelvloer en lambrisering.
- Kelder.
- Toilet met fonteintje.
- Woonkamer met vloerverwarming en Barbas wandhaard.
- Serre met aansluitend keuken met complete inbouwcombinatie met inbouwapparatuur: koelkast, 5 pits gaskookplaat, afzuigkap, vaatwasmachine en Boretti oven.
- Bijkeuken.

Eerste verdieping
- Overloop.
- Slaapkamer 1
- Slaapkamer 2
- Slaapkamer 3
- Badkamer met inloopdouche, toilet en dubbele wasatfel; vloerverwarming.
- Via badkamer toegang naar dakterras.

Tweede verdieping
- Overloop.
- Slaapkamer 4
- Slaapkamer 5
- Badkamet met ligbad (met douchewand), wastafelmeubel en toilet.

Tuin
- Fraai aangelegde groene en zonnige tuin gelegen op het westen. Voorzien van een fraaie terrasoverkapping met zonwering. Aan de voorzijde van de woning is de fietsenberging en aan de overkant van de weg is de garage gelegen.

Details
- Woonkamer met vloerverwarming en moderne Barbas wandhaard
- 30 zonnepanelen + hybride warmtepomp (Bouwjaar 2023)
- Zeer lage energielasten (ca. €100 p/m)
- Houten verdiepingsvloeren
- Glasvezel aansluiting
- Houten kozijnen met dubbele en enkele beglazing voorzien van diverse voorzetramen
- Dak-, vloer- en spouwmuurisolatie.
- Energielabel C
- Aanvaarding 1 juni 2026

Lees meer

Kenmerken

Overdracht

Prijs per m2
€ 3.776
Aangeboden sinds
3 februari 2026
Status
Beschikbaar
Aanvaarding
In overleg

Bouw

Soort woonhuis
Eengezinswoning, half vrijstaande woning
Soort bouw
Bestaande bouw
Bouwjaar
1930
Soort dak
Zadeldak
Staat van onderhouden binnen
Goed
Staat van onderhouden buiten
Goed

Oppervlakte en inhoud

Perceeloppervlakte
220 m2
Inhoud van de woning
883 m3
Oppervlakte externe bergruimte
21 m2
Oppervlakte gebouwgebonden buitenruimten
28 m2
Oppervlakte overige inpandige ruimten
45 m2

Indeling

Aantal kamers
6
Aantal slaapkamers
5
Aantal woonlagen
4
Voorzieningen
Tuin, dakraam

Buitenruimte

Balkon
Nee
Schuur/berging
Nee

Maandlasten berekenen

De maandlasten voor je woning bestaan uit meer dan alleen de hypotheeklasten. Hieronder vind je een overzicht van de bijkomende kosten en lasten. Zo weet je precies wat je huis per maand gaat kosten. En met de handige vergelijkers kun je ook nog eens snel de beste deals sluiten!

  • Kaart
  • Streetview