Verkocht

Helbeek 102 5911 CZ Venlo

150m2
Wonen
6
Kamers
146m2
Perceel
1964
Bouwjaar
Ruime gezinswoning met 5 slaapkamers, zonnepanelen en perfecte ligging nabij het centrum Venlo

Op een rustige en kindvriendelijke locatie, op loopafstand van het bruisende centrum van Venlo, ligt deze verrassend ruime eengezinswoning. Met maar liefst vijf slaapkamers, twee balkons, 2x airconditioning, 12 zonnepanelen en kunststof kozijnen met dubbele beglazing is dit een heerlijke, energiezuinige woning waar je zó in kunt trekken.

Indeling
Via de ruime entree stap je binnen in de lichte doorzonwoonkamer, voorzien van airconditioning en grote ramen aan zowel de voor- als achterzijde, wat zorgt voor een prettige lichtinval.
De gesloten keuken is netjes ingericht met een complete inbouwcombinatie inclusief diverse inbouwapparatuur. Vanuit de entree is tevens toegang tot de ruime kelder — ideaal als voorraadruimte of praktische berging.

Op de eerste verdieping bevinden zich drie slaapkamers en een fraai betegelde badkamer met inloopdouche, toilet en modern wastafelmeubel. De grootste slaapkamer beschikt over airconditioning en zowel aan de voorzijde als achterzijde is een balkon aanwezig.

De tweede verdieping biedt nog eens twee zeer ruime slaapkamers en een overloop met extra bergruimte.

De woning is volledig voorzien van kunststof kozijnen met dubbele beglazing, wat zorgt voor een uitstekend wooncomfort en lage onderhoudskosten. Dankzij de 12 zonnepanelen profiteer je bovendien van een lage energierekening.

Tuin
De achtertuin is gelegen op het zuidoosten en biedt daardoor volop zon gedurende de dag. De tuin beschikt over een vrije achterom en een houten berging,

Locatie
De Helbeek is een prettige woonstraat met een speeltuintje in de buurt en diverse scholen op korte afstand. Binnen enkele minuten wandel je naar het centrum van Venlo, het station, winkels en horeca. Ook uitvalswegen zijn snel bereikbaar.

✨ Kortom:
Een ruime, instapklare gezinswoning op een toplocatie nabij het centrum van Venlo, met volop comfort, energiezuinige voorzieningen en ruimte voor het hele gezin.
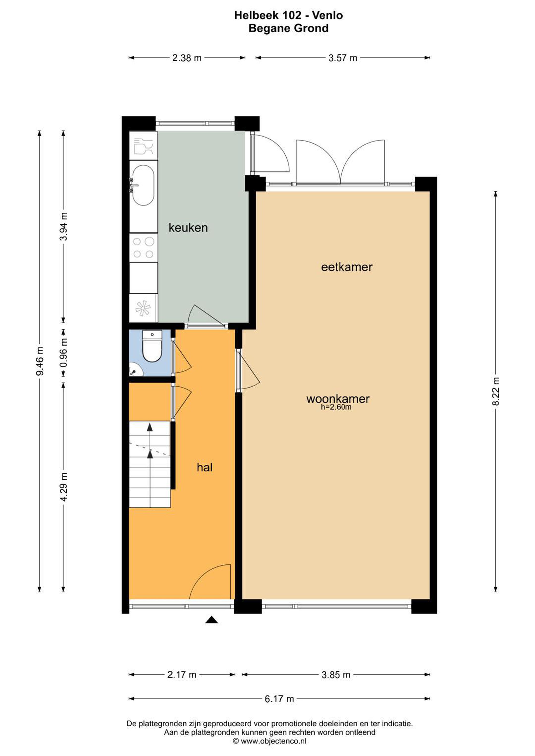
Begane grond
- Entree met tegelvloer.
- Toilet met fonteintje.
- Ruime kelder (9,61 x 2,45/2,17m) bestaande uit 2 ruimtes; toegang tevens via achtertuin.
- Woonkamer (8,22 x 3,85/3,57m) met houten vloer, airconditioning en tuindeuren naar deels overdekt terras.
- De gesloten keuken 3,94 x 2,38m) is voorzien van een witte inbouwcombinatie voorzien van diverse inbouwapparatuur: koelkast, 4 pits gaskookplaat, oven en afzuigkap. Tegelvloer aanwezig en deur naar terras.

Eerste verdieping
- Overloop
- Slaapkamer 1 (3,80 x 3,12m) met balkon.
- Slaapkamer 2 (3,99 x 2,45m)
- Slaapkamer 3 (3,75 x 3,42m) met balkon en airconditioning.
- Netjes betegelde badkamer (2,18 x 2,17m) met inloopdouche, (zwevend) toilet en wastafelmeubel; design radiator. Mechanische ventilatie aanwezig.

Tweede verdieping
- Ruime overloop.
- Slaapkamer 4 (3,85 x 4,50m)
- Slaapkamer 5 (3,85 x 3,64m)

*Slaapkamers beide voorzien van een dakkapel.

Tuin
De tuin is gelegen op het zuid-oosten en is voorzien van een houten berging (2,45 x 1,95m) en vrije achterom. Optioneel is een garage te koop gelegen aan de Oude Helbeek.

Details
- Gehele woning voorzien van kunststof kozijnen met dubbele beglazing.
- Woning voorzien van diverse rolluiken; raam keuken voorzien van een screen.
- 2 x Airconditioning aanwezig.
- Woning voorzien van betonnen verdiepingsvloeren.
- Bosch HR combi (bouwjaar 2010).
- 12 Zonnepanelen.
- Optioneel garagebox te koop gelegen aan de Oude Helbeek.
- Aanvaarding in overleg.
- Energielabel C.

Lees meer

Verkoopgeschiedenis

Aangeboden sinds
14 oktober 2025
Verkoopdatum
31 december 2025
Looptijd
3 maanden

Kenmerken

Overdracht

Prijs per m2
€ 2.500
Aangeboden sinds
14 oktober 2025
Status
Verkocht
Aanvaarding
In overleg

Bouw

Soort woonhuis
Eengezinswoning, tussen woning
Soort bouw
Bestaande bouw
Bouwjaar
1964
Soort dak
Zadeldak
Staat van onderhouden binnen
Goed
Staat van onderhouden buiten
Goed

Oppervlakte en inhoud

Perceeloppervlakte
146 m2
Inhoud van de woning
601 m3
Oppervlakte externe bergruimte
5 m2
Oppervlakte gebouwgebonden buitenruimten
9 m2
Oppervlakte overige inpandige ruimten
22 m2

Indeling

Aantal kamers
6
Aantal slaapkamers
5
Aantal woonlagen
4
Voorzieningen
Tuin, airconditioning

Buitenruimte

Balkon
Nee
Schuur/berging
Nee

Maandlasten berekenen

De maandlasten voor je woning bestaan uit meer dan alleen de hypotheeklasten. Hieronder vind je een overzicht van de bijkomende kosten en lasten. Zo weet je precies wat je huis per maand gaat kosten. En met de handige vergelijkers kun je ook nog eens snel de beste deals sluiten!

  • Kaart
  • Streetview