Verkocht OV

Haagbeuk 21 5925 HM Venlo

99m2
Wonen
5
Kamers
146m2
Perceel
1986
Bouwjaar
Op zoek naar een ruime, instapklare woning met energielabel A? Deze goed onderhouden gezinswoning in de Klingerberg heeft het allemaal! De uitgebouwde woonkamer van ca. 51 m2, moderne keuken en vier slaapkamers zorgen voor volop leefruimte. Dankzij de 11 zonnepanelen, airco’s en recente cv-ketel woon je hier energiezuinig én comfortabel. De onderhoudsvrije tuin met vrije achterom en berging maakt het geheel compleet. Gelegen aan een autovrije straat met speeltuin voor de deur, scholen op loopafstand en het centrum van Venlo en de uitvalswegen A67/A73 binnen enkele minuten bereikbaar.

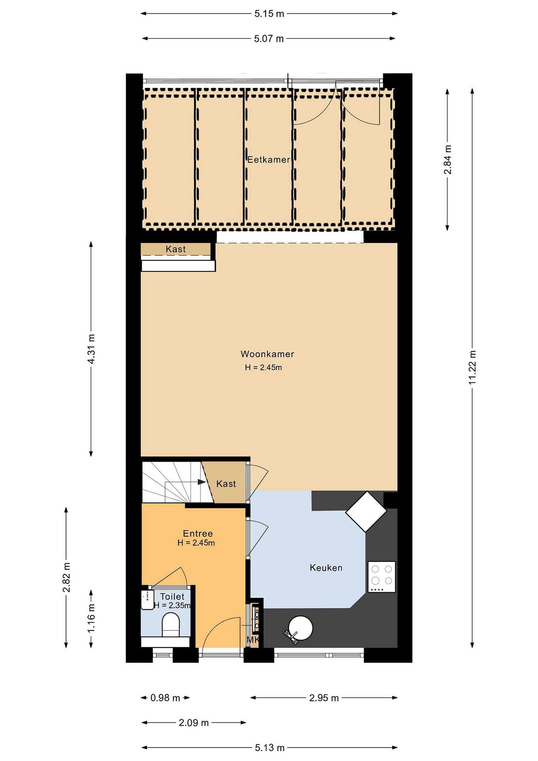
Indeling:

Begane grond:
De entree/ hal geeft toegang tot de toiletruimte, trapopgang naar de 1e verdieping, de meterkast en de woonkamer. De moderne toiletruimte is voorzien van een zwevend closet en fonteintje. Aan de voorzijde van de woonkamer is de open keuken gesitueerd. De keuken is ingericht met een keramische kookplaat, oven, afzuigkap, vaatwasser (2024), koelkast en granieten aanrechtblad. Vanuit de keuken is er uitzicht op het aan de voorzijde gelegen speeltuintje. Aan de keuken is een granieten bureaublad gemaakt. De woonkamer heeft een trapkast voor provisieopslag. Aan de achterzijde is de woonkamer uitgebouwd, waardoor de woonkamer een totaal oppervlakte heeft van ca. 51m2. De woonkamer is voorzien van een laminaatvloer en een airco. De aanbouw heeft een grote raampartij waardoor er optimaal tuincontact is. Middels een loopdeur is er toegang tot de tuin.

1e verdieping:
De overloop geeft toegang tot de 3 slaapkamers en de badkamer. De slaapkamers zijn ca. 7m2, 8,5m2 en 13,5m2 groot. De overloop en de slaapkamers zijn voorzien van een mooie, waterafstotende laminaatvloer. De masterbedroom is voorzien van een vaste kast. De 3e slaapkamer is ingericht als inloopkast. De badkamer heeft een ligbad met douchefaciliteit, 2e toilet en een wastafel met meubel. De 1e verdieping is voorzien van airco.

2e verdieping:
Middels een vaste trap is de 2e verdieping te bereiken. De 4e slaapkamer (ca. 21m2) is voorzien van een laminaatvloer, inbouwspots en een vaste kastenwand. In de kastenwand is de combi CV-ketel gesitueerd (Nefit 2021). Tevens bevinden zich hier de witgoedaansluitingen.

Tuin:
De onderhoudsvrije achtertuin is geheel bestraat en biedt veel privacy. De tuin is gelegen op het noordwesten en is voorzien van een stenen berging (ca. 8m2). Voor de containers is een aparte opstelplaats gecreëerd. De tuin is te bereiken middels een vrije achterom.

Algemeen:
Bouwjaar 1986, inhoud ca. 410m3, gebruiksoppervlakte wonen ca. 99m2, overig inpandig ca. 20m2, perceelsoppervlakte ca. 146m2. Onderhoudsstaat is zowel binnen als buiten goed. De woning is voorzien van 11 zonnepanelen (dec 2022), 2x airconditioning, 1e verdieping (Daikin 2021) en CV-ketel Nefit 2021. De woning is volledig geïsoleerd en heeft energielabel A. De gehele woning is voorzien van houten kozijnen met dubbelglas, nagenoeg geheel voorzien van rolluiken. De woning is gelegen aan een autovrije straat met aan de voorzijde een speeltuin. De basisschool is gelegen op loopafstand. De dorpskern van Blerick en het centrum van Venlo zijn gelegen op 10 minuten fietsafstand. De uitvalswegen A67/A73 zijn met 2-3 autominuten te bereiken.

Vraagprijs: € 325.000,- k.k.
Lees meer

Kenmerken

Overdracht

Prijs per m2
€ 3.283
Aangeboden sinds
26 september 2025
Status
Verkocht onder voorbehoud
Aanvaarding
In overleg

Bouw

Soort woonhuis
Eengezinswoning, tussen woning
Soort bouw
Bestaande bouw
Bouwjaar
1986
Soort dak
Samengesteld dak
Staat van onderhouden binnen
Goed
Staat van onderhouden buiten
Goed

Oppervlakte en inhoud

Perceeloppervlakte
146 m2
Inhoud van de woning
410 m3
Oppervlakte externe bergruimte
8 m2
Oppervlakte overige inpandige ruimten
20 m2

Indeling

Aantal kamers
5
Aantal slaapkamers
4
Aantal woonlagen
3
Voorzieningen
Tuin, schuur/berging, ventilatie, rolluiken, airconditioning, dakraam

Buitenruimte

Balkon
Nee
Schuur/berging
Ja

Maandlasten berekenen

De maandlasten voor je woning bestaan uit meer dan alleen de hypotheeklasten. Hieronder vind je een overzicht van de bijkomende kosten en lasten. Zo weet je precies wat je huis per maand gaat kosten. En met de handige vergelijkers kun je ook nog eens snel de beste deals sluiten!

  • Kaart
  • Streetview