Agaat 6 5912 SE Venlo

120m2
Wonen
5
Kamers
141m2
Perceel
1997
Bouwjaar
In de gewilde woonwijk ’t Hagerbroek ligt deze fraai uitgebouwde en uitstekend onderhouden tussenwoning met maar liefst 4 slaapkamers, een royale woonkamer met open keuken en een recent aangelegde zonnige tuin met volledig afsluitbare overkapping. De woning is keurig onderhouden, modern afgewerkt en direct instapklaar.
De ligging is ideaal: op loopafstand van scholen, winkels, speelgelegenheden en het centrum van Venlo. Het station en het VieCuri Medisch Centrum bevinden zich op korte fietsafstand en binnen enkele minuten bereik je de uitvalswegen A67 en A73.

Indeling

Begane grond
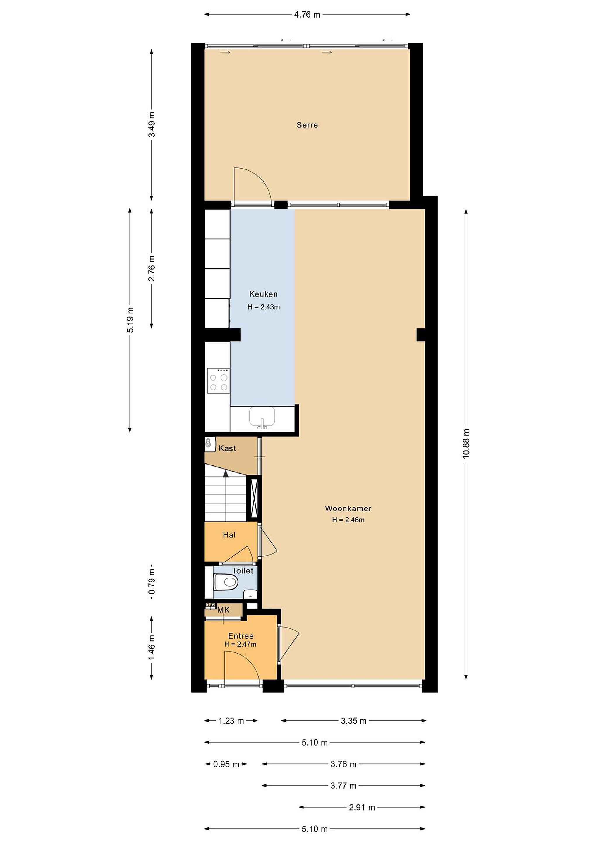
Via de onderhoudsvriendelijke voortuin bereik je de overdekte entree.
De lichte en ruime woonkamer (ca. 37 m2) beschikt over een speels ingedeelde zithoek met moderne cinema wall en elektrische haard. De open keuken (ca. 9 m2) is centraal gelegen en uitgevoerd in een moderne hoekopstelling met diverse inbouwapparatuur, waaronder een vaatwasser, 5-zone inductiekookplaat, combi oven/magnetron, koelkast en een koffiecorner in de vaste kastenwand.
Aan de achterzijde is de woning over de volle breedte uitgebouwd, wat zorgt voor extra leefruimte en veel lichtinval. Vanuit de woonkamer is er toegang tot een trapkast met extra opbergruimte en een portaal met toiletruimte (modern afgewerkt met zwevend closet en fontein) en de trap naar de verdieping.
De gehele begane grond is in 2022 vernieuwd en voorzien van een moderne tegelvloer met vloerverwarming en strak gestucte wanden en plafonds.
1e verdieping
Overloop met toegang tot 3 ruime slaapkamers (ca. 8, 9 en 14 m2), allen voorzien van rolluiken. De moderne badkamer is compleet uitgerust met een inloopdouche, wastafelmeubel, zwevend toilet, designradiator en een raam voor natuurlijke ventilatie en daglicht en mechanische afzuiging.
De verdieping is afgewerkt met een moderne PVC-houtlook vloer (2022).
2e verdieping
Via een vaste trap bereik je de overloop op de zolderverdieping met een ruime 4e slaapkamer (ca. 16,5 m2) en een aparte wasruimte (ca.7m2) met CV-opstelling.
Dankzij de brede dakkapel is er veel extra ruimte en licht. De verdieping is strak afgewerkt, voorzien van spots, bergruimte achter knieschotten en een airco (koelen en verwarmen). De dakkapel is voorzien van rolluiken. De verdieping is afgewerkt met een moderne PVC-houtlook vloer (2022).
Tuin en berging
De in 2022 nieuw aangelegde achtertuin is onderhoudsvriendelijk en beschikt over een ruim terras met keramische tegels, kunstgazon en een afsluitbare overkapping/serre (ca. 16,5 m2), waardoor je het hele jaar door van buiten kunt genieten.
De stenen berging (ca. 11 m2) is ruim, recent voorzien van een nieuw dak (2023) en ideaal voor fietsen en opslag. De tuin heeft een vrije achterom.

Algemeen
- Bouwjaar: 1998
- Woonoppervlakte: ca. 120 m2
- Perceel: 141 m2
- Inhoud: ca. 464 m3
- Energielabel B
- Volledig geïsoleerd (dak-, vloer- en spouwisolatie)
- Hardhouten kozijnen met HR-glas en rolluiken
- CV-ketel (Remeha, 2015, jaarlijks onderhouden)
- Mechanische ventilatie

Vraagprijs: € 429.000,- k.k.
Lees meer

Kenmerken

Overdracht

Prijs per m2
€ 3.575
Aangeboden sinds
26 maart 2026
Status
Beschikbaar
Aanvaarding
In overleg

Bouw

Soort woonhuis
Eengezinswoning, tussen woning
Soort bouw
Bestaande bouw
Bouwjaar
1997
Soort dak
Zadeldak
Staat van onderhouden binnen
Uitstekend
Staat van onderhouden buiten
Uitstekend

Oppervlakte en inhoud

Perceeloppervlakte
141 m2
Inhoud van de woning
464 m3
Oppervlakte externe bergruimte
27 m2

Indeling

Aantal kamers
5
Aantal slaapkamers
4
Aantal woonlagen
3
Voorzieningen
Tuin, schuur/berging, ventilatie, rolluiken, kabel-tv, buitenzonwering, airconditioning

Buitenruimte

Balkon
Nee
Schuur/berging
Ja

Maandlasten berekenen

De maandlasten voor je woning bestaan uit meer dan alleen de hypotheeklasten. Hieronder vind je een overzicht van de bijkomende kosten en lasten. Zo weet je precies wat je huis per maand gaat kosten. En met de handige vergelijkers kun je ook nog eens snel de beste deals sluiten!

  • Kaart
  • Streetview