State 26 5509 NX Veldhoven

117m2
Wonen
5
Kamers
146m2
Perceel
1997
Bouwjaar
Ruime uitgebouwde en praktisch ingedeelde tussenwoning met maar liefst 4 slaapkamers op de eerste verdieping. Deze woning is rustig gelegen in de wijk “De Polders” in de gemeente Veldhoven nabij diverse openbare voorzieningen zoals winkels, speeltuintjes, sportvoorzieningen en openbaar vervoer.

Algemeen
- Ruime uitgebouwde tussenwoning.
- Praktische indeling.
- 4 slaapkamers op de eerste verdieping.
- Diverse uitvalswegen op korte afstand.
- ASML op korte afstand bereikbaar.

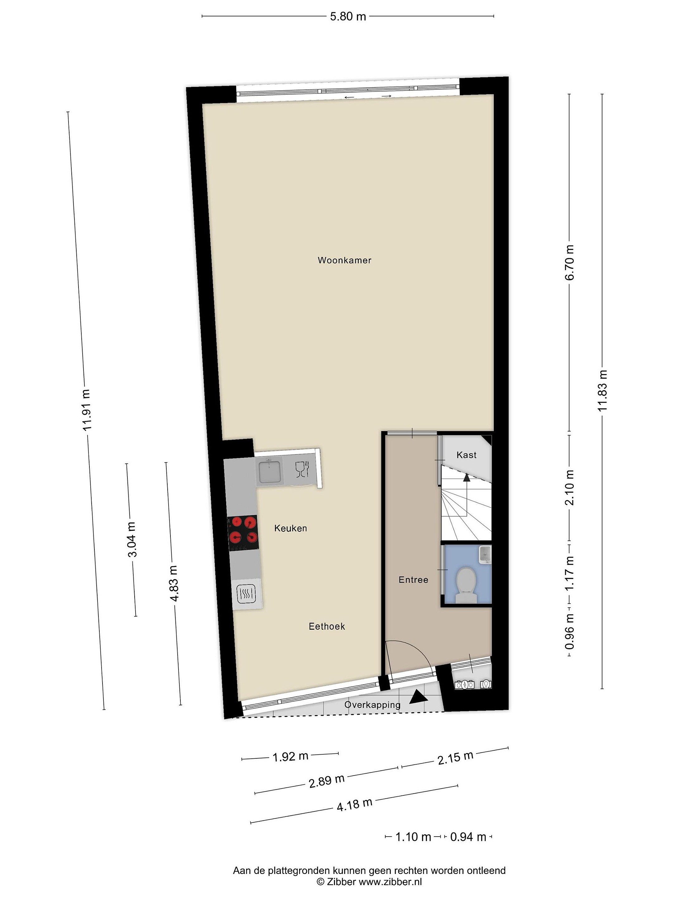
Begane grond
Vanuit de overdekte entree is er toegang tot de hal met meterkast, het toilet, de trapopgang (met trapkast) naar de eerste verdieping en de woonkamer met open keuken. De keuken, in L-vorm, is aan de voorzijde van de woning gelegen en is v.v. diverse kasten en lades, een kunststof werkblad met spoelbak en mengkraan, een inductiekookplaat, afzuigkap, combimagnetron, een koelkast en een vaatwasser.
Het woongedeelte is aan de achterzijde van de woning gelegen waardoor er een prettig zicht is op de achtertuin. Middels een schuifpui is er toegang tot de achtertuin. Door deze grote raampartijen is er veel lichtinval in de woonkamer. De vloer van de woonkamer en de keuken is v.v. laminaat, de vloer van de hal en het toilet is v.v. tegels. Het toilet is grotendeels betegeld en v.v. een staand toilet en fonteintje. De wanden van de begane grond zijn afgewerkt met stucwerk en structuurverf. De plafonds zijn afgewerkt met stucwerk en structuurverf. De kozijnen zijn aluminium en van hout en v.v. isolerende beglazing.

Eerste verdieping
Vanuit de ruime overloop, met lichtkoepel, zijn 4 slaapkamers, de badkamer en een bergkast bereikbaar. De badkamer is geheel betegeld en v.v. een ligbad met douche, een wastafel, een staand toilet en een bergkast waarin de aansluiting voor de wasmachine en de cv-ketel gesitueerd zijn. De vloer van de overloop en de slaapkamers is afgewerkt met laminaat. De wanden zijn afgewerkt met stucwerk en structuurverf. De plafonds zijn afgewerkt met stucwerk en structuurverf. De kozijnen zijn van hout en v.v. isolerende beglazing en deze zijn v.v. horren.

Buiten
Deze woning heeft een voor-en achtertuin. De achtertuin is bereikbaar middels een achterom. De achtertuin is gelegen op het noordoosten en is aangelegd met sierbestrating en borders met vaste beplanting. Achter in de tuin is een houten berging aanwezig. De voortuin is gelegen op het zuidwesten en is aangelegd met siergrind, sierbestrating en vaste beplanting.

Ligging
Deze woning is zeer centraal gelegen in de wijk de Polders, gemeente Veldhoven. Op korte afstand van het City Centrum en winkelcentrum Meerhoven en nabij diverse openbare voorzieningen. ASML en MMC zijn op korte afstand gelegen. Veldhoven grenst aan het stedelijke gebied van Eindhoven maar ook aan de natuur en landerijen van de Kempen regio. Door de centrale ligging zijn de uitvalswegen de N2, A2, A50, A58 en A67 zeer nabij. De bedrijvigheid in de regio is zeer goed te noemen. O.a. door grote bedrijven in de regio als ASML, Philips, Daf en High Tech Campus, staat de regio bekend door een bovengemiddelde werkgelegenheid.
Lees meer

Kenmerken

Overdracht

Prijs per m2
€ 4.256
Aangeboden sinds
23 januari 2026
Status
Beschikbaar
Aanvaarding
In overleg

Bouw

Soort woonhuis
Eengezinswoning, tussen woning
Soort bouw
Bestaande bouw
Bouwjaar
1997
Soort dak
Plat dak
Staat van onderhouden binnen
Goed
Staat van onderhouden buiten
Goed

Oppervlakte en inhoud

Perceeloppervlakte
146 m2
Inhoud van de woning
414 m3
Oppervlakte externe bergruimte
8 m2
Oppervlakte gebouwgebonden buitenruimten
1 m2

Indeling

Aantal kamers
5
Aantal slaapkamers
4
Aantal woonlagen
2
Voorzieningen
Tuin, schuur/berging

Buitenruimte

Balkon
Nee
Schuur/berging
Ja

Maandlasten berekenen

De maandlasten voor je woning bestaan uit meer dan alleen de hypotheeklasten. Hieronder vind je een overzicht van de bijkomende kosten en lasten. Zo weet je precies wat je huis per maand gaat kosten. En met de handige vergelijkers kun je ook nog eens snel de beste deals sluiten!

  • Kaart
  • Streetview