Verkocht OV

Egel 28 5509 RM Veldhoven

150m2
Wonen
5
Kamers
225m2
Perceel
2016
Bouwjaar
Moderne, keurig onderhouden en instapklare geschakelde twee onder één kapwoning gelegen in de populaire en kindvriendelijke wijk de Polders, gemeente Veldhoven. Deze woning is volledig geïsoleerd en beschikt over o.a. 4 slaapkamers, een hoogwaardig aangelegde tuin en een garage. Diverse openbare voorzieningen zoals basisscholen, sportvoorzieningen, openbaar vervoer en kinderopvang zijn op korte afstand bereikbaar.

Algemeen
- Keurig onderhouden en instap klaar.
- 4 Slaapkamers.
- Multifunctionele speel-/werkkamer op de begane grond.
- Hoogwaardig aangelegde tuin en een garage. 
- Volledig geïsoleerd en v.v. energielabel A.
- 15 zonnepanelen á 370 wp.
- Gunstig gelegen op een kindvriendelijke locatie.
- ASML en MMC zijn op korte afstand bereikbaar.

Begane grond
Vanuit de hal/entree met meterkast is er toegang tot het toilet en het middengedeelte van de woning. De keuken is aan de voorzijde van de woning gelegen. De woonkamer is aan de achterzijde gelegen en heeft een prettig zicht op de hoogwaardig aangelegde achtertuin welke bereikbaar is middels een schuifpui. Vanuit de woonkamer is een speel-/werkkamer bereikbaar. Vanuit deze kamer zijn de achtertuin en de garage bereikbaar. De rechte keuken (van Diessen) met kookeiland en wandopstelling is v.v. diverse kasten en lades, een modern glazen werkblad met spoelbak en kokend waterkraan (Quooker) en een mengkraan, inductiekookplaat met afzuiging (Bora), combimagnetron (Siemens), koelkast, vriezer (Liebherr) en een vaatwasser. De vloer van de benedenverdieping is v.v. een betonnen gietvloer. De wanden en plafonds zijn afgewerkt met stucwerk. De kozijnen zijn van hout met HR++ glas. Het toilet is deels betegeld en v.v. een hangend toilet en fonteintje. Vanuit het middengedeelte van de woning is een halletje met inbouwkast bereikbaar en de trapopgang naar de eerste verdieping.

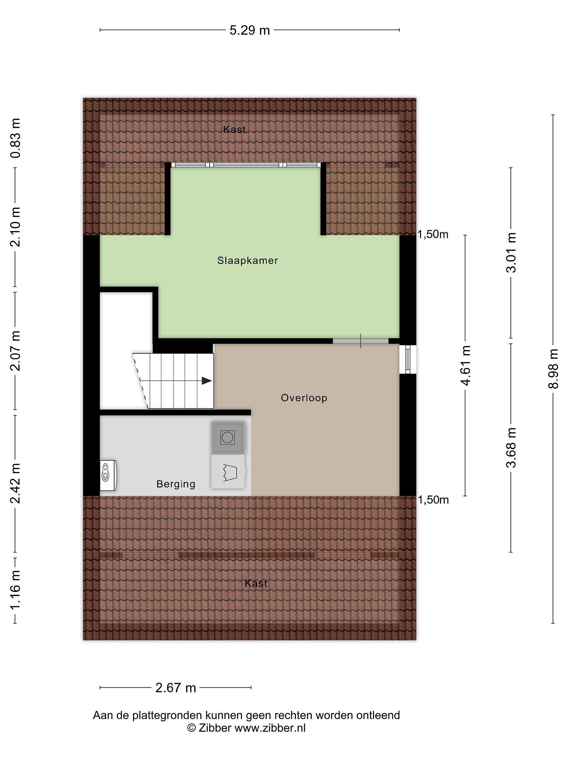
Eerste verdieping
Vanuit de overloop zijn 3 slaapkamers, waarvan 1 met inloopkast, de badkamer en de trapopgang naar de tweede verdieping bereikbaar. De badkamer is grotendeels betegeld en v.v. een dubbele wastafel met meubel, een hangend toilet, een ligbad, inloopdouche en een designradiator. De vloer van overloop en de slaapkamers is v.v. pvc. De wanden zijn afgewerkt met stucwerk en de plafonds met spuitwerk. De kozijnen zijn van hout met HR++ glas en v.v. houten luiken en rolhorren.

Tweede verdieping
Vanuit een ruime voorzolder met veel bergruimte, aansluiting voor de wasmachine en de cv-ketel is de vierde slaapkamer bereikbaar. De vloer van deze verdieping is v.v. pvc, de wanden en plafonds zijn afgewerkt met stucwerk. De kozijnen zijn van hout met HR++ glas.

Buiten
Deze woning beschikt over een aangebouwde garage en een voor-en achtertuin. Vanuit de inrit is de garage met elektrische roldeur bereikbaar. De garage is eveneens bereikbaar vanuit de speel-/werkkamer. De achtertuin is gelegen op het zuidoosten en is hoogwaardig aangelegd met sierbestrating, kunstgras, diverse borders met vaste beplanting en een terras met pergola en schaduwdoek. De voortuin is gelegen op het noordwesten en is aangelegd met siergrind, vaste beplanting en bloembakken met boompjes.

Ligging
Deze woning is gelegen in de zeer populaire en kindvriendelijke wijk de Polders in de gemeente Veldhoven. Diverse openbare voorzieningen zoals basisscholen, sportvoorzieningen, openbaar vervoer en kinderopvang zijn op korte afstand bereikbaar. Veldhoven grenst aan het stedelijke gebied van Eindhoven maar ook aan de natuur en landerijen van de Kempen regio. Door de centrale ligging zijn de uitvalswegen de N2, A2, A50, A58 en A67 zeer nabij. De bedrijvigheid in de regio is zeer goed te noemen. O.a. door grote bedrijven in de regio als ASML, Philips, Daf en High Tech Campus, staat de regio bekend door een bovengemiddelde werkgelegenheid.
Lees meer

Kenmerken

Overdracht

Prijs per m2
€ 5.460
Aangeboden sinds
5 september 2025
Status
Verkocht onder voorbehoud
Aanvaarding
In overleg

Bouw

Soort woonhuis
Eengezinswoning, geschakelde twee-onder-een-kap woning
Soort bouw
Bestaande bouw
Bouwjaar
2016
Soort dak
Zadeldak
Staat van onderhouden binnen
Uitstekend
Staat van onderhouden buiten
Uitstekend

Oppervlakte en inhoud

Perceeloppervlakte
225 m2
Inhoud van de woning
583 m3
Oppervlakte overige inpandige ruimten
14 m2

Indeling

Aantal kamers
5
Aantal slaapkamers
4
Aantal woonlagen
3
Voorzieningen
Tuin, buitenzonwering, airconditioning

Buitenruimte

Balkon
Nee
Schuur/berging
Nee

Maandlasten berekenen

De maandlasten voor je woning bestaan uit meer dan alleen de hypotheeklasten. Hieronder vind je een overzicht van de bijkomende kosten en lasten. Zo weet je precies wat je huis per maand gaat kosten. En met de handige vergelijkers kun je ook nog eens snel de beste deals sluiten!

  • Kaart
  • Streetview