Verkocht OV

Burgemeester van Deelensingel 86 5941 BD Velden

122m2
Wonen
5
Kamers
179m2
Perceel
1983
Bouwjaar
Ruime uitgebouwde hoekwoning op rustige locatie in Velden-Oost

In de geliefde en kindvriendelijke woonwijk Velden-Oost mogen wij deze goed onderhouden, uitgebouwde hoekwoning aanbieden. Dankzij de uitbouw beschikt de woning over een royale woonkamer, een ruime open keuken en extra bergruimte. De fraai aangelegde tuin biedt veel privacy en is voorzien van een grote fietsenberging.

De woning is gelegen op een mooie en rustige locatie, op korte afstand van een speeltuintje, diverse voorzieningen, het centrum van Velden en het prachtige natuur- en bosgebied Zwarte Water. Ook de aansluiting op het autosnelwegennet is snel en eenvoudig bereikbaar.

Indeling

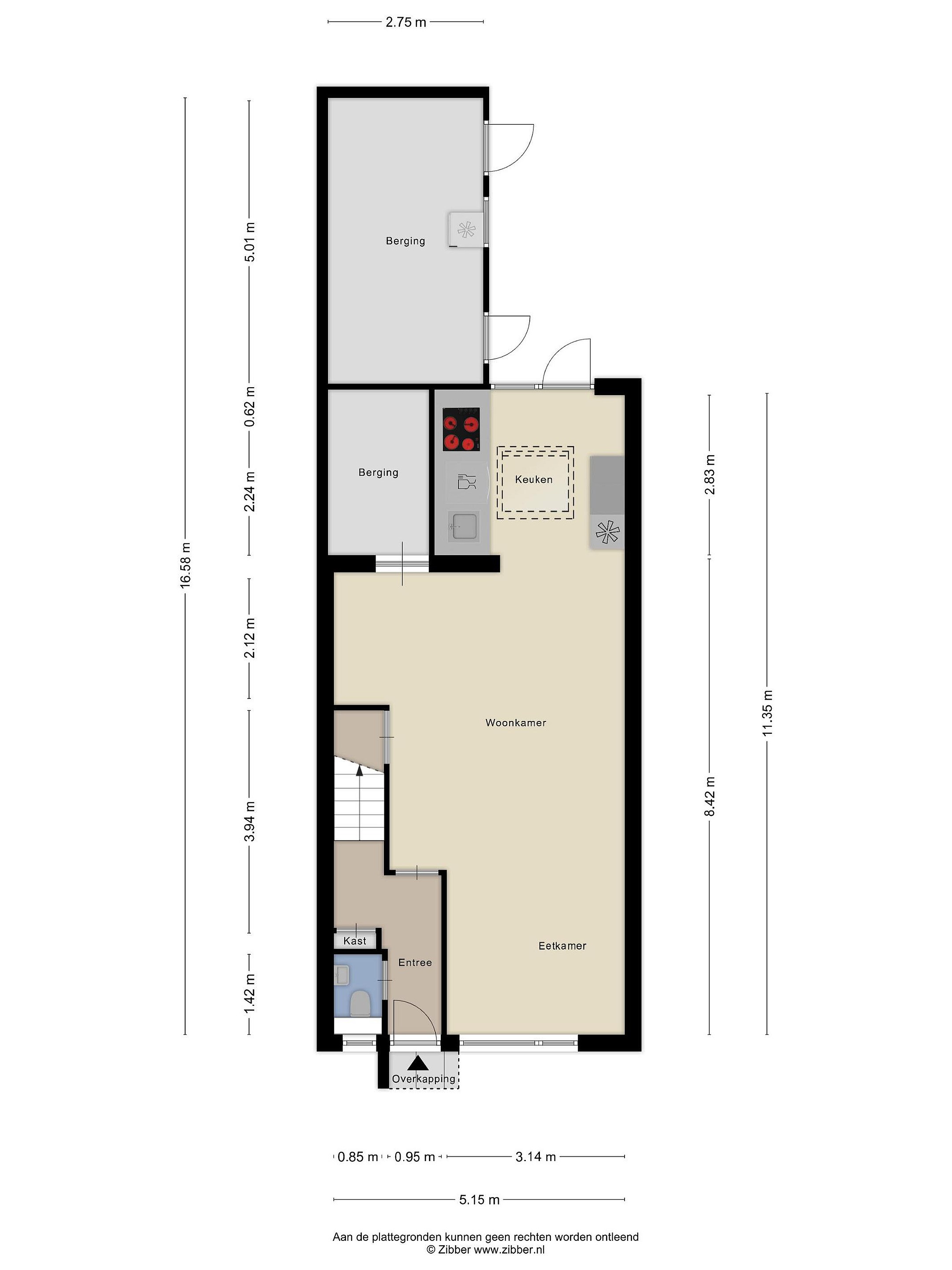
Begane grond
Via de hal met meterkast en een mooi gerenoveerd toilet kom je in de ruime woonkamer met PVC vloer met vloerverwarming. Door de uitbouw is hier een fijne leefruimte ontstaan met veel licht en comfort. De open keuken is voorzien van een moderne inbouwcombinatie (bouwjaar 2025) inclusief inbouwapparatuur.

Eerste verdieping
De overloop geeft toegang tot drie slaapkamers. De geheel betegelde badkamer is ingericht met een ligbad, separate douche, wastafel met meubel en een designradiator.

Tweede verdieping
Via een vaste trap is de tweede verdieping bereikbaar. De ruime zolder is voorzien van kastruimte en een dakraam; deze verdieping is prima te gebruiken als extra slaapkamer of als hobbykamer..

Tuin
De woning beschikt over zowel een voor- als achtertuin. De gezellige achtertuin is gelegen op het westen, biedt veel privacy en is bereikbaar via een achterom. Daarnaast is er een ruime berging aanwezig, ideaal voor fietsen en opslag.

De woning is voorzien van dak-, spouw- en vloerisolatie( Energielabel B), dubbele beglazing en kunststof kozijnen met rolluiken. De begane grond (muv entree) beschikt over vloerverwarming.

Een mooie, ruime hoekwoning op een rustige en gewilde locatie, met volop leefruimte en privacy – een ideaal gezinshuis in Velden-Oost.
Begane grond
- Hal voorzien van tegelvloer met meterkast
- Mooi gerenoveerd toilet met zwevend toilet.
- Ruime en zeer sfeervolle woonkamer voorzien van PVC vloer met vloerverwarming; de wanden zijn voorzien van glad stucwerk.
- Uitgebouwde keuken met in 2025 vernieuwde inbouwcombinatie inclusief inbouwapparatuur: inductie kookplaat, afzuigkap, vaatwasmachine, koelkast en combi magnetron.
- Bijkeuken.

Eerste verdieping
- Overloop geeft toegang tot drie slaapkamers.
- Slaapkamer 1
- Slaapkamer 2
- Slaapkamer 3
- De geheel betegelde badkamer is ingericht met een ligbad, separate douche, wastafel met meubel en een designradiator.

Tweede verdieping
- Via een vaste trap is de tweede verdieping bereikbaar. De ruime zolder is voorzien van kastruimte en een dakraam en is uitstekend te gebruiken als vierde slaapkamer, werk- of hobbyruimte. Op deze verdieping bevindt zich tevens de aansluiting voor de wasmachine.

Tuin
Betegelde achtertuin met vrije achterom gelegen op het westen. Ruime berging (5,01 x 2,75m) met dubbele deur.

Details
- Bouwjaar: 1983
- Perceeloppervlakte: 179 m2
- Woonoppervlakte: ca. 122 m2
- Inhoud: ca. 480 m3
- Intergas Hre CV (bouwjaar 2018)
- Woning voorzien van kunststof kozijnen en dubbele beglazing
- Rolluiken aanwezig
- Definitief energielabel: B
- Dak- en spouwmuurisolatie vanaf bouwjaar
- Aanvaarding 1 juli 2026

Lees meer

Kenmerken

Overdracht

Prijs per m2
€ 2.943
Aangeboden sinds
21 januari 2026
Status
Verkocht onder voorbehoud
Aanvaarding
In overleg

Bouw

Soort woonhuis
Eengezinswoning, half vrijstaande woning
Soort bouw
Bestaande bouw
Bouwjaar
1983
Soort dak
Zadeldak
Staat van onderhouden binnen
Goed
Staat van onderhouden buiten
Goed

Oppervlakte en inhoud

Perceeloppervlakte
179 m2
Inhoud van de woning
480 m3
Oppervlakte overige inpandige ruimten
14 m2

Indeling

Aantal kamers
5
Aantal slaapkamers
4
Aantal woonlagen
3
Voorzieningen
Tuin, schuur/berging, rolluiken, dakraam

Buitenruimte

Balkon
Nee
Schuur/berging
Ja

Maandlasten berekenen

De maandlasten voor je woning bestaan uit meer dan alleen de hypotheeklasten. Hieronder vind je een overzicht van de bijkomende kosten en lasten. Zo weet je precies wat je huis per maand gaat kosten. En met de handige vergelijkers kun je ook nog eens snel de beste deals sluiten!

  • Kaart
  • Streetview