Verkocht

Valleistraat 127 3902 ZB Veenendaal

154m2
Wonen
5
Kamers
385m2
Perceel
1992
Bouwjaar
Luxe wonen krijgt een nieuwe betekenis in deze vrijstaande woning aan het water

Sommige huizen verrassen u vanaf het eerste moment, en Valleistraat 127 hoort daar zonder twijfel bij. Deze vrijstaande woning combineert een modern design met een warme en huiselijke sfeer. Het resultaat is een woning waar u zich meteen thuis voelt. Met een woonoppervlak van 154 m2, verdeeld over drie verdiepingen, biedt dit huis meer dan genoeg plek voor een gezin, maar ook voor werken aan huis of het ontvangen van gasten. Het hart van de woning is zonder twijfel de leefkeuken, waar koken, tafelen en samenzijn naadloos samenkomen. Grote raampartijen, een fraaie visgraatvloer en een sfeervolle haard maken de woonkamer tot een plek waar u moeiteloos uren doorbrengt. De slaapkamers zijn royaal en strak afgewerkt, de badkamer is een toonbeeld van comfort en luxe. Buiten wacht een tuin die direct grenst aan het water: met meerdere terrassen, een overkapping én een sfeervol tuinhuis is dit een droomplek voor lange zomeravonden of winterse borrels.

De buurt
De woning ligt in een rustige en groene straat, op korte afstand van het centrum van Veenendaal. Alle dagelijkse voorzieningen zijn binnen handbereik: van supermarkten en scholen tot sportclubs en horecagelegenheden. Dankzij de nabijheid van de A12 bent u bovendien uitstekend verbonden met steden als Utrecht, Arnhem en de Randstad. Wie graag de natuur in gaat, kan terecht op de Utrechtse Heuvelrug of in de omliggende parken en bossen. En dan is er nog de unieke ligging aan het water, die een extra gevoel van ruimte en rust geeft, terwijl u toch midden in de dynamiek van Veenendaal woont.

Begane grond
De entree zet meteen de toon: strak, modern en uitnodigend. Via de hal met toilet en trapopgang komt u middels een fraaie taatsdeur in de woonkamer, waar de grote ramen en openslaande deuren zorgen voor een overvloed aan licht. De visgraatvloer loopt drempelloos door en geeft de ruimte een chique uitstraling. De gashaard zorgt voor warmte en sfeer, terwijl de indeling uitnodigt om een gezellige zithoek te creëren. Aangrenzend vindt u de leefkeuken, gescheiden middels een stijlvolle wand. Een keuken die werkelijk alles heeft wat u van een moderne keuken mag verwachten: een riant kookeiland met barfunctie, sfeervolle verlichting en hoogwaardige apparatuur, waaronder een combi-oven, koffiemachine, inductiekookplaat met geïntegreerde afzuiging, koel- en vrieskast, Quooker en zelfs een wijnklimaatkast. Ook de keuken is voorzien van een gezellige sfeerhaard en er is airconditioning aanwezig. Vanuit de eetkamer heeft u uitzicht op de tuin en directe toegang tot het overdekte terras middels een schuifpui. De inpandige garage is tevens bereikbaar vanuit de keuken, wat het geheel praktisch maakt.

Eerste verdieping
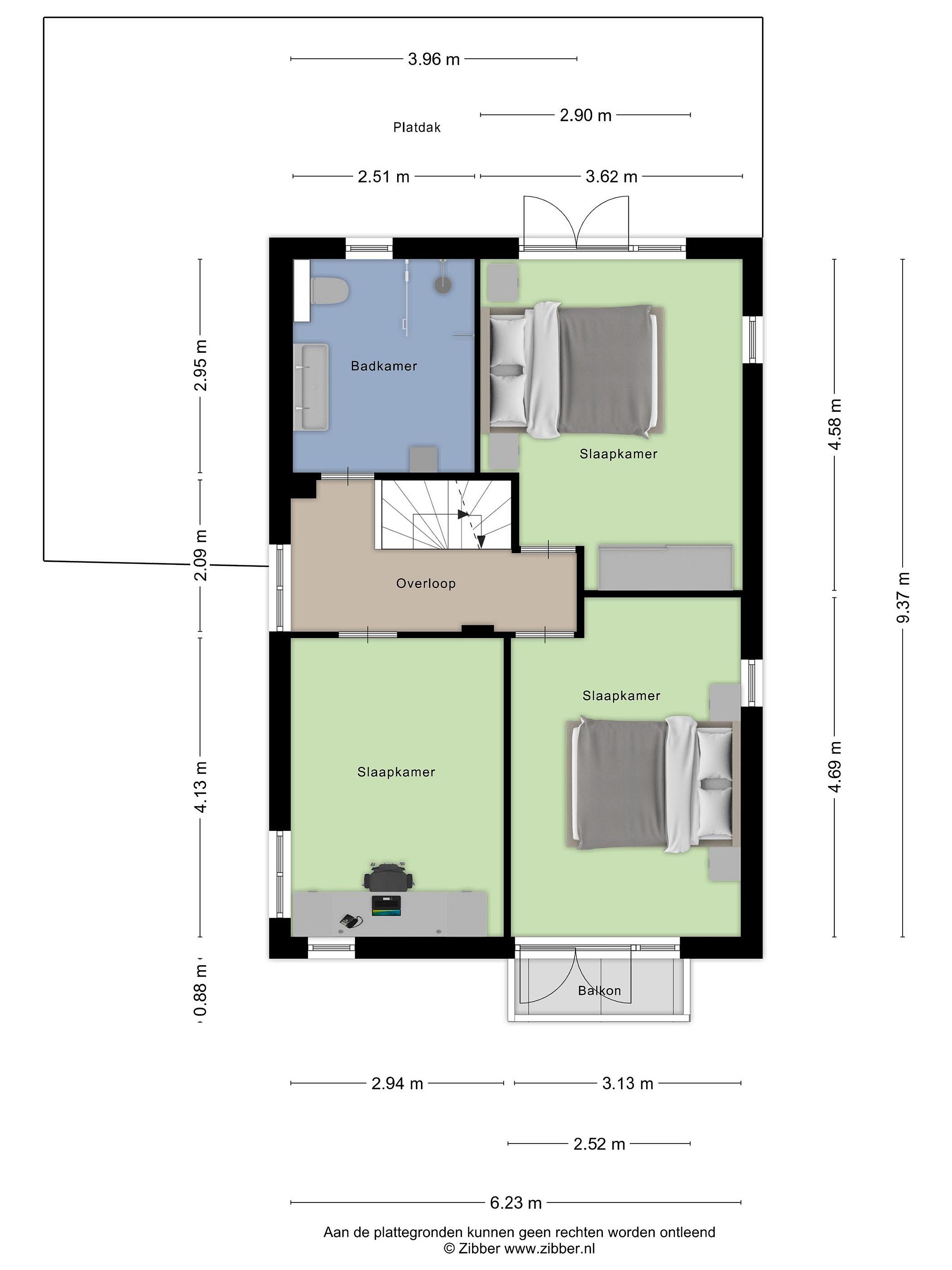
Op de eerste verdieping bevinden zich drie ruime slaapkamers. De kamer aan de achterzijde is voorzien van airconditioning en openslaande deuren richting het platte dak. Eén van de kamers aan de voorzijde is voorzien van openslaande deuren naar een balkon en is eveneens een heerlijke plek om u even terug te trekken. De badkamer is eigentijds en luxe: een ruime inloop regendouche, modern wastafelmeubel met dubbele kraan en een tweede toilet zorgen voor optimaal comfort. Alles is afgewerkt in zachte tinten en hoogwaardige materialen, wat de ruimte een serene uitstraling geeft.

Tweede verdieping
De tweede verdieping verrast met een grote kamer onder de kap, die veel mogelijkheden biedt. Hier kunt u een extra slaapkamer creëren, maar ook een sfeervolle werkruimte of hobbykamer. Dankzij de bergruimtes achter de knieschotten en de aparte berging is er ook voldoende plek om alles netjes op te bergen.

Buitenruimte
De achtertuin is zonder twijfel een van de grootste troeven van deze woning. Grenzend aan het water, met een prachtig groot terras en volop privacy, is dit een plek waar u het hele jaar door van geniet. Aan de waterkant kunt u heerlijk ontspannen in de zon, terwijl u dichter bij huis de beschutting vindt van het overdekte terras met lichtstraat. Het geweldige tuinhuis geeft de tuin een unieke extra dimensie: perfect voor lange avonden met vrienden of een knusse borrel in kleinere kring. De strakke bestrating, volwassen beplanting en sfeervolle details geven de tuin een luxe uitstraling, terwijl de palmbomen en hortensia’s zorgen voor een vleugje vakantiegevoel. Aan de voorzijde beschikt u over een carport, een ruime oprit en de inpandige garage.

Afsluiting
Valleistraat 127 is een woning die niet alleen indruk maakt, maar die u vooral laat voelen hoe fijn wonen kan zijn. Hier vindt u luxe, ruimte en comfort in een harmonieus geheel. Of u nu met vrienden aan het water zit, in de keuken uitgebreid kookt of juist de rust opzoekt in de slaapkamer: dit huis biedt het allemaal. Maak snel een afspraak voor een bezichtiging en ervaar zelf de bijzondere sfeer van deze woning. Uw nieuwe thuis wacht hier op u.

Algemene gegevens
- Type woning: Vrijstaand
- Bouwjaar: 1992
- Verbouwjaar: 2022
- Aantal kamers: 5
- Aantal slaapkamers: 4
- Aantal badkamers: 1
- Parkeerruimte: op eigen oprit
- Aanwezig: berging/garage/carport/balkon
- Ligging tuin: noordoost
- Tuin bereik: via garage en woning

Technische gegevens
- Warmwatervoorziening: Remeha Avanta(2006)
- Verwarmvoorziening: Remeha Avanta(2006)
- Vloerverwarming: op begane grond
- gashaard
- Voorzieningen: airco/alarminstallatie(ter overname)/Veranda/Taatsdeuren/Quooker
- Mechanische ventilatie: aanwezig
- Isolatie: dak/spouw/vloer geheel
- Dubbel glas: geheel HR++
- Glasvezel kabel, TV kabel aanwezig
- Kozijnen: hout

Voor meer informatie omtrent deze woning, kunt u contact opnemen met ons kantoor in Veenendaal.

U bent van harte welkom! De beste indruk van deze woning krijgt u natuurlijk tijdens een bezichtiging. Wij proberen onze bezichtigingen altijd in samenspraak met verkoper en koper te plannen en nemen ruim de tijd, zodat u op uw gemak de woning kan bekijken en ervaren.
N.B. Aan de samenstelling van deze gegevens is maximale zorg besteed. Aan onvolkomenheden in de vermelde gegevens en tekeningen kunnen geen rechten en aanspraken worden ontleend.
Lees meer

Verkoopgeschiedenis

Aangeboden sinds
14 oktober 2025
Verkoopdatum
28 november 2025
Looptijd
één maand

Kenmerken

Overdracht

Prijs per m2
€ 5.812
Aangeboden sinds
14 oktober 2025
Status
Verkocht
Aanvaarding
In overleg

Bouw

Soort woonhuis
Eengezinswoning, vrijstaande woning
Soort bouw
Bestaande bouw
Bouwjaar
1992
Soort dak
Samengesteld dak
Staat van onderhouden binnen
Uitstekend
Staat van onderhouden buiten
Uitstekend

Oppervlakte en inhoud

Perceeloppervlakte
385 m2
Inhoud van de woning
687 m3
Oppervlakte externe bergruimte
33 m2
Oppervlakte gebouwgebonden buitenruimten
38 m2
Oppervlakte overige inpandige ruimten
21 m2

Indeling

Aantal kamers
5
Aantal slaapkamers
4
Aantal woonlagen
3
Voorzieningen
Tuin, balkon, schuur/berging, ventilatie, glasvezel, airconditioning, schuifpui, dakraam

Buitenruimte

Balkon
Ja
Schuur/berging
Ja

Maandlasten berekenen

De maandlasten voor je woning bestaan uit meer dan alleen de hypotheeklasten. Hieronder vind je een overzicht van de bijkomende kosten en lasten. Zo weet je precies wat je huis per maand gaat kosten. En met de handige vergelijkers kun je ook nog eens snel de beste deals sluiten!

  • Kaart
  • Streetview