Gersteveld 44 3902 ES Veenendaal

137m2
Wonen
5
Kamers
157m2
Perceel
1975
Bouwjaar
We nemen u graag mee door deze ruime gezinswoning aan Gersteveld 44 in Veenendaal. Met een totale woonoppervlakte van maar liefst 136m2 biedt deze woning u alle ruimte die u zoekt. De lichte open woonkamer met moderne keuken, vier volwaardige slaapkamers, een instapklare badkamer en een multifunctionele zolder maken dit huis tot een compleet geheel. De zonnige achtertuin met berging vormt een goede plek om buiten te genieten. De woning wordt verwarmd door middel van airconditioning, in combinatie met de zonnepanelen zorgt dit voor extra wooncomfort én duurzaamheid. Ook is in 2019 de voor en achtergevel volledig vernieuwd en geïsoleerd. De woning is volledig voorzien van HR++ glas.

De woning bevindt zich in een rustige, kindvriendelijke woonwijk met alle voorzieningen binnen handbereik. Scholen en kinderopvang liggen op korte loop- of fietsafstand, net als diverse sportclubs zoals voetbal- en tennisverenigingen. Voor uw dagelijkse boodschappen vindt u meerdere supermarkten nabijgelegen en ook eetgelegenheden zijn eenvoudig bereikbaar. De wijk staat bekend om de groene omgeving en de goede bereikbaarheid: bushaltes bevinden zich op enkele minuten lopen en dankzij de gunstige ligging ten opzichte van uitvalswegen rijdt u snel richting Utrecht, Arnhem of de A12. Alles wat u nodig heeft, ligt hier binnen handbereik.

Entree
Via de voortuin bereikt u de entree van de woning. In de straat is voldoende parkeergelegenheid aanwezig, waardoor u altijd dichtbij uw eigen voordeur kunt parkeren. Eenmaal binnen komt u in de ruime hal. Vanuit hier heeft u toegang tot de lichte woonkamer, de moderne toiletruimte, de open keuken én de trap naar de eerste verdieping.

Woonkamer
Grenzend aan de hal betreedt u de royale woonkamer, die dankzij de grote raampartijen een lichte en open sfeer heeft. De open indeling maakt het eenvoudig om een comfortabele zithoek én een ruime eethoek te creëren, met aan de voorzijde een mooi uitzicht op de rustige straat. De woonkamer vormt hiermee een plek waar u heerlijk kunt ontspannen of samenkomt met vrienden of familie.

Keuken
Aan de achterzijde van de woning bevindt zich de moderne, open keuken met praktische U-opstelling. U beschikt hier over een inductiekookplaat met afzuigkap, een oven, een magnetron, een vaatwasser, een koelkast en een ruime spoelbak. De lades en kastjes bieden veel opbergruimte, waardoor alles netjes en overzichtelijk blijft. Het barretje vormt een gezellige plek om even koffie te drinken of aan te schuiven tijdens het koken. Bovendien kijkt u vanuit de keuken fijn uit over de achtertuin.

1e verdieping
Via de vaste trap in de hal bereikt u de eerste verdieping. Hier bevinden zich maar liefst vier slaapkamers én de badkamer, allemaal bereikbaar vanaf de centrale overloop. De verdieping is ruim opgezet en voelt dankzij de lichte afwerking direct prettig aan.

Slaapkamers
De vier slaapkamers zijn stuk voor stuk licht en ruim en bieden volop indelingsmogelijkheden. Dankzij de grote ramen valt er veel daglicht binnen, dit creëert een frisse sfeer. Of u de kamers nu gebruikt als kinderkamers, werkkamers, hobbyruimtes of logeerkamers: de veelzijdigheid van de ruimtes maakt de verdieping ideaal voor zowel gezinnen als thuiswerkers.

Sanitair
De moderne, volledig betegelde badkamer ligt eveneens aan de overloop. Deze is verzorgd afgewerkt en compleet uitgerust met een ruime douche met glazen deur, een zwevend toilet en een wastafel met spiegel. De badkamer is instapklaar en biedt alles wat u nodig heeft om de dag comfortabel te beginnen of ontspannen af te sluiten.

2e verdieping
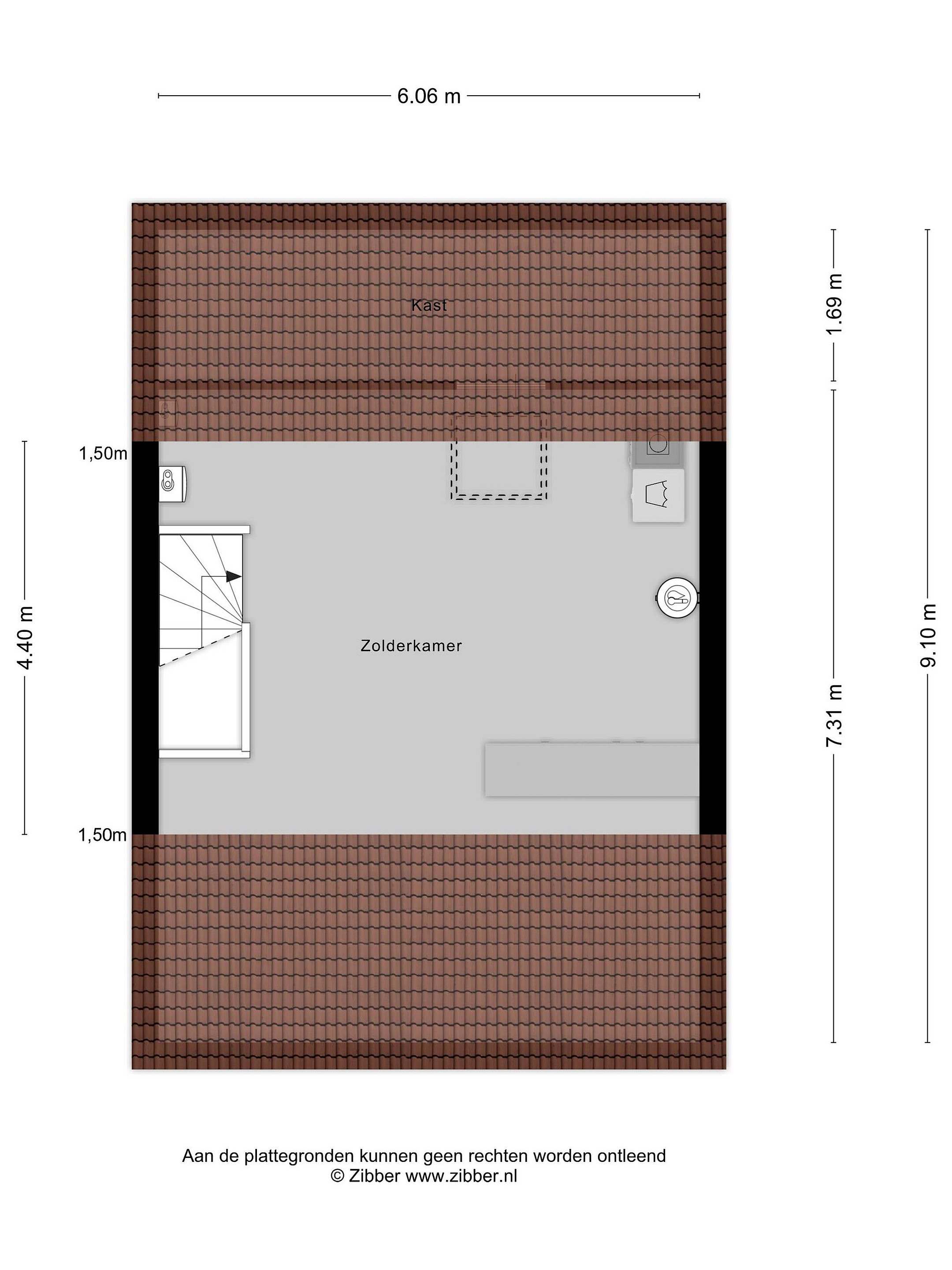
Een tweede vaste trap brengt u naar de ruime en multifunctionele zolderverdieping. Deze etage is ideaal om een 5e slaapkamer, logeerkamer, hobbyruimte of werkplek te realiseren en biedt voldoende ruimte voor het plaatsen van een bed, bureau of kast. Dankzij de aanwezige witgoedaansluitingen is de verdieping ook uitermate geschikt als wasruimte. De zolder vormt een waardevolle aanvulling op de woning en geeft u alle vrijheid om de ruimte naar eigen wensen in te delen.

Buitenruimte
De zonnige achtertuin is grotendeels bestraat, waardoor u meerdere plekken heeft om een lounge set, eettafel of speelruimte te creëren. Dankzij de gunstige ligging geniet u in de achtertuin en in de voortuin hier tot laat op de dag van de zon. Achterin de tuin vindt u een praktische, vrijstaande berging die perfect is voor het opbergen van fietsen, gereedschap of tuinmeubelen. Bovendien heeft de tuin een achterom, wat voor extra comfort zorgt.

Algemene gegevens
- Type woning: Tussenwoning
- Bouwjaar: 1974
- Verbouwjaar: 2019
- Aantal kamers: 6
- Aantal slaapkamers: 4 (5e slaapkamer op de nu open zolder)
- Aantal badkamers: 1
- Parkeerruimte: openbaar
- Aanwezig: berging
- Ligging tuin: oost
- Tuin bereik: achter/via de woning

Technische gegevens
- Warmwatervoorziening: Boiler Bosch 150 liter / Keukenboiler 10 liter (Iltho Daalderop)
- Verwarmvoorziening: Lucht lucht warmtepomp C&H 24 en C&H 12 serie
- Zonnepanelen: 32 stuks
- Voorzieningen: 2 airco's/buitenzonwering
- Mechanische ventilatie: aanwezig
- Isolatie: vloer extra geïsoleerd
- Dubbel glas: HR ++ (2018)
- Glasvezel kabel, TV kabel
- Kozijnen: kunststof (2019)

Zonnepanelen: toekomstproof (Zero Export): hardwarematig voorbereid op het einde van de salderingsregeling. De slimme SolarEdge-sturing kan terug levering aan het net automatisch beperken ('Zero Export'), zodat u geen onnodige terug leverkosten maakt.

WILT U EVEN BINNEN KIJKEN?
Voor meer informatie omtrent deze woning, kunt u contact opnemen met ons kantoor in Veenendaal op telefoonnummer 0318-559600.

U bent van harte welkom! De beste indruk van deze woning krijgt u natuurlijk tijdens een bezichtiging. Wij proberen onze bezichtigingen altijd in samenspraak met verkoper en koper te plannen en nemen ruim de tijd, zodat u op uw gemak de woning kan bekijken en ervaren.

N.B. Aan de samenstelling van deze gegevens is maximale zorg besteed. Aan onvolkomenheden in de vermelde gegevens en tekeningen kunnen geen rechten en aanspraken worden ontleend.
Lees meer

Kenmerken

Overdracht

Prijs per m2
€ 3.467
Aangeboden sinds
5 december 2025
Status
Beschikbaar
Aanvaarding
In overleg

Bouw

Soort woonhuis
Eengezinswoning, tussen woning
Soort bouw
Bestaande bouw
Bouwjaar
1975
Soort dak
Zadeldak
Staat van onderhouden binnen
Goed
Staat van onderhouden buiten
Goed

Oppervlakte en inhoud

Perceeloppervlakte
157 m2
Inhoud van de woning
485 m3
Oppervlakte externe bergruimte
8 m2

Indeling

Aantal kamers
5
Aantal slaapkamers
4
Aantal woonlagen
3
Voorzieningen
Tuin, ventilatie, glasvezel, buitenzonwering, airconditioning, dakraam

Buitenruimte

Balkon
Nee
Schuur/berging
Nee

Maandlasten berekenen

De maandlasten voor je woning bestaan uit meer dan alleen de hypotheeklasten. Hieronder vind je een overzicht van de bijkomende kosten en lasten. Zo weet je precies wat je huis per maand gaat kosten. En met de handige vergelijkers kun je ook nog eens snel de beste deals sluiten!

  • Kaart
  • Streetview