Bergweg 30 3904 HN Veenendaal

184m2
Wonen
6
Kamers
429m2
Perceel
1962
Bouwjaar
Aan de Bergweg 30 in Veenendaal treft u een verrassend ruime en goed verzorgde gezinswoning met een totale woonoppervlakte van 183 m2. Deze woning beschikt over maar liefst vier slaapkamers, een lichte open woon- en eetkamer, een apart gedeelte dat ideaal is als kantoorruimte, een garage, een moderne badkamer en een zonnige achtertuin. De woning biedt volop mogelijkheden en potentie, zeker na enkele kleine moderniseringen. Een ideale plek voor wie op zoek is naar ruimte, comfort én toekomstwaarde. Laat u verrassen door de veelzijdigheid die dit huis te bieden heeft.

Gelegen in een fijne en groene wijk van Veenendaal, Franse Gat, profiteert u van een uitstekende ligging nabij alle denkbare voorzieningen. Basisscholen en middelbare scholen bevinden zich op korte afstand, evenals diverse sportverenigingen en clubs. Ook vindt u supermarkten en winkels in de nabije omgeving, zodat u altijd snel uw dagelijkse boodschappen kunt doen. Openbaar vervoer is goed bereikbaar: busverbindingen liggen op loopafstand en het station Veenendaal-De Klomp is eenvoudig te bereiken. Daarnaast zorgen de uitvalswegen richting de A12 en de A30 voor een uitstekende verbinding met onder andere Utrecht, Ede en Arnhem.

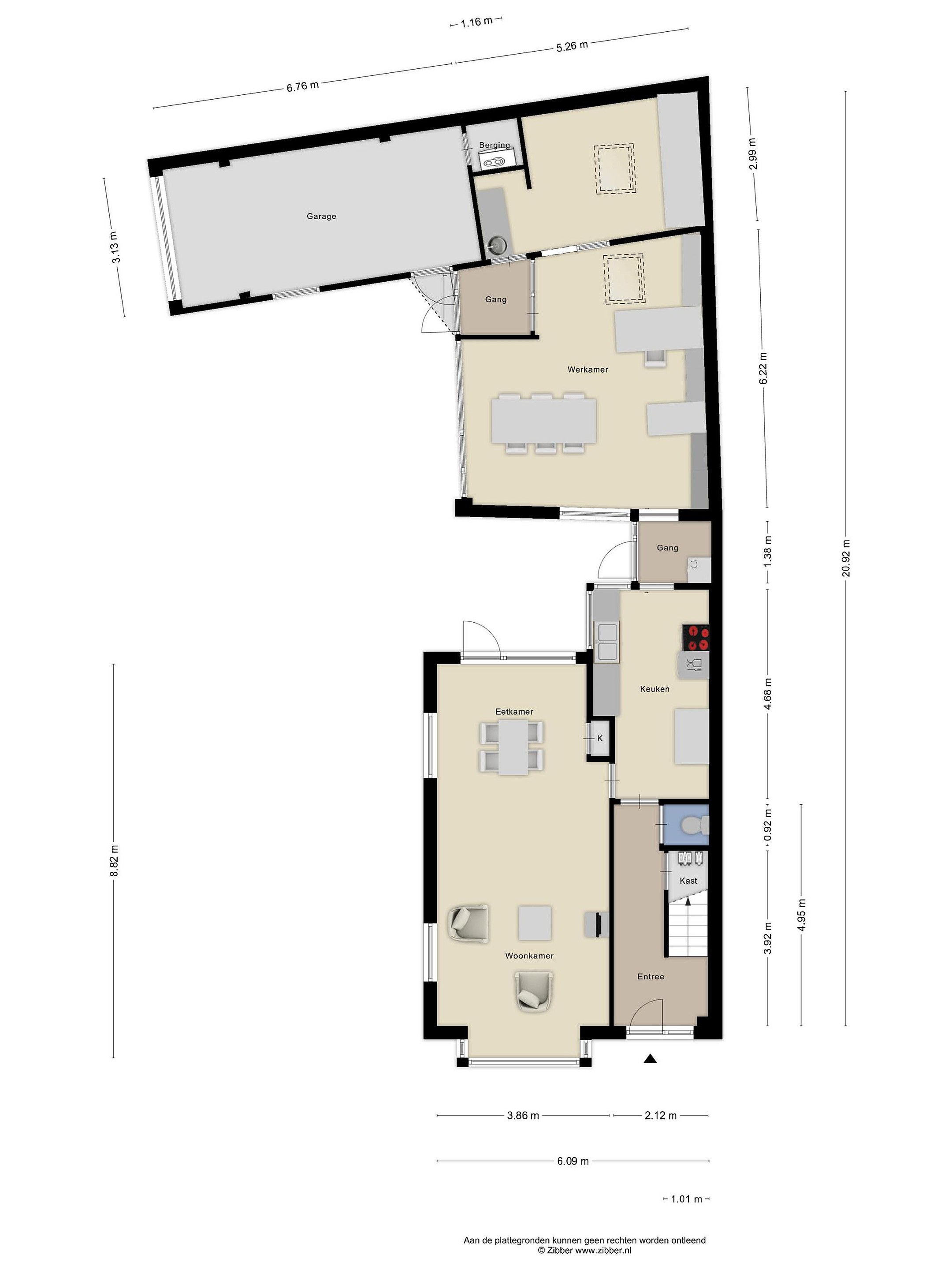
Entree:
Bij aankomst wordt u verwelkomd door een nette voortuin en voldoende parkeergelegenheid in de straat. Eenmaal binnen komt u terecht in de ruime hal, die toegang biedt tot de trap naar de eerste verdieping, de toiletruimte en de doorgang naar de woonkamer. Er is voldoende ruimte voor een kapstok of een praktisch opbergmeubel, waardoor deze entree niet alleen functioneel, maar ook uitnodigend aanvoelt.

Woonkamer:
Vervolgens betreedt u de open en lichte woonkamer, waar grote raampartijen zorgen voor een fijne inval van daglicht en een ruimtelijk gevoel. Dankzij de open indeling is er genoeg plaats om zowel een comfortabele zithoek als een sfeervolle eethoek te creëren. Via een deur bereikt u direct de achtertuin, waardoor binnen en buiten op een natuurlijke manier met elkaar verbonden zijn.

Keuken:
Aansluitend vindt u de keuken, die door zijn langwerpige indeling veel werk- en kastruimte biedt. De keuken is voorzien van diverse inbouwapparatuur en vormt een prettige plek om maaltijden te bereiden. Hoewel modernisering wenselijk kan zijn, biedt de basis volop mogelijkheden om de keuken geheel naar eigen smaak en stijl te vernieuwen. Vanuit de keuken heeft u toegang tot de tuin én tot de extra werkruimte aan de achterzijde van de woning.

Werkkamer:
Aan de achterzijde van het huis bevindt zich een royale werkruimte die voor meerdere doeleinden te gebruiken is. Of u nu een thuiskantoor, een atelier of een extra woonkamer wenst, deze ruimte kan volledig naar uw eigen wensen worden ingericht. Dankzij de open indeling en de hoeveelheid ruimte voelt de werkkamer aangenaam licht en veelzijdig aan.

Garage:
Grenzend aan de achterzijde van de woning ligt de garage, ideaal voor het stallen van een auto, fietsen of het opslaan van gereedschap en tuinmeubilair. Deze praktische ruimte maakt het geheel compleet en biedt extra gemak.

1e verdieping:
Via de vaste trap in de hal bereikt u de eerste verdieping, waar drie slaapkamers en de badkamer zijn gesitueerd. De overloop verbindt de verschillende ruimtes en vormt zo een logische indeling van deze woonlaag.

Slaapkamers:
De drie slaapkamers zijn ruim opgezet en profiteren van veel lichtinval. Twee van de kamers bieden directe toegang tot een balkon, zowel aan de voor- als achterzijde van de woning. Ook heeft een slaapkamer ingebouwde kastruimte, wat zorgt voor extra opbergruimte. De kamers zijn multifunctioneel in te delen: als slaapkamer, werkkamer of hobbyruimte.

Sanitair:
De badkamer is modern en volledig betegeld. Hier vindt u een inloopdouche, zwevend toilet en een dubbele wastafel, waardoor het geheel praktisch en comfortabel is ingedeeld. De nette afwerking zorgt ervoor dat de badkamer direct in gebruik genomen kan worden.

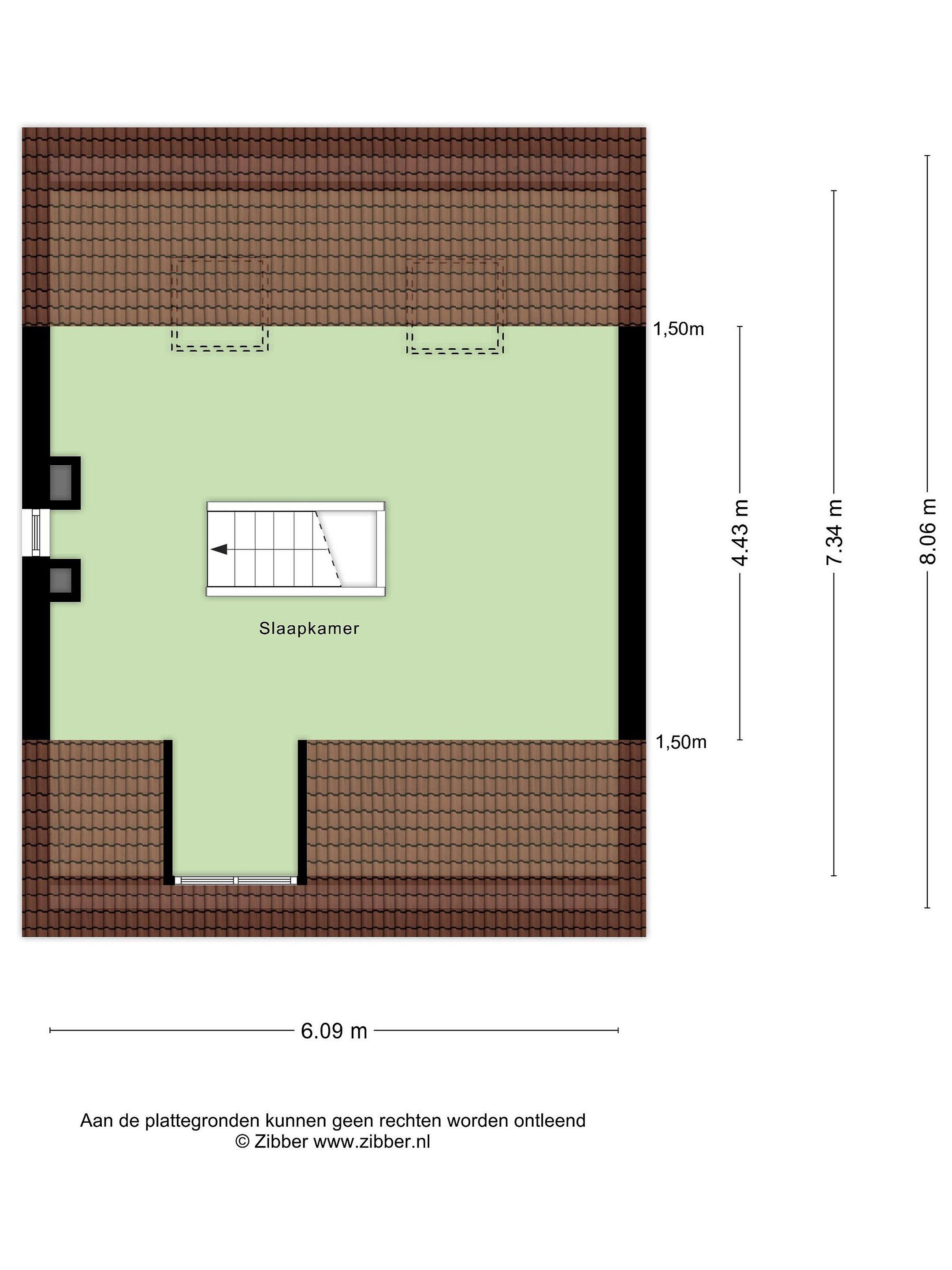
2e verdieping:
Een vaste trap leidt naar de tweede verdieping, waar een royale zolderruimte zich onder het dak bevindt. Dankzij de dakkapel en dakramen is er veel lichtinval, en de zichtbare houten draagbalken geven het geheel extra karakter. De ruimte is goed bruikbaar als vierde slaapkamer, maar kan ook dienen als hobbyruimte, fitnesskamer of extra werkplek. Ondanks de schuine kap is er voldoende stahoogte aanwezig, waardoor de zolder praktisch en veelzijdig is in te richten.

Buitenruimte:
De zonnige achtertuin vormt een heerlijke plek om te ontspannen. Een combinatie van groen en bestrating zorgt ervoor dat u er zowel een loungehoek als een eettafel kwijt kunt. Hier geniet u van lange zomerse dagen, terwijl er ook genoeg ruimte overblijft voor kinderen om te spelen of om een groene invulling te geven.

Algemene gegevens
- Type woning: twee-onder-een-kap
- Bouwjaar: 1964
- Verbouwjaar:
- Aantal kamers: 5
- Aantal slaapkamers: 3 ( meerdere na aanpassing mogelijk)
- Aantal badkamers: 1
- Parkeerruimte: op de oprit, in de garage en openbaar
- Aanwezig: dakkapel/garage/kantoorruimte
- Ligging tuin: west
- Tuin bereik: achterom en via de woning

Technische gegevens
- Warmwatervoorziening: Daalderop Mono 80 liter
- Verwarmvoorziening: Remeha Calenta Ace 35DS
- Voorzieningen: balkon/buitenzonwering/kelder/
- Mechanische ventilatie:
- Isolatie: dak/spouw/vloer
- Dubbel glas: grotendeels
- Glasvezel kabel, TV kabel
- Kozijnen: hout

WILT U EVEN BINNEN KIJKEN?

Voor meer informatie omtrent deze woning, kunt u contact opnemen met ons kantoor in Veenendaal.

U bent van harte welkom! De beste indruk van deze woning krijgt u natuurlijk tijdens een bezichtiging. Wij proberen onze bezichtigingen altijd in samenspraak met verkoper en koper te plannen en nemen ruim de tijd, zodat u op uw gemak de woning kan bekijken en ervaren.
N.B. Aan de samenstelling van deze gegevens is maximale zorg besteed. Aan onvolkomenheden in de vermelde gegevens en tekeningen kunnen geen rechten en aanspraken worden ontleend.
Lees meer

Kenmerken

Overdracht

Prijs per m2
€ 4.049
Aangeboden sinds
21 april 2026
Status
Beschikbaar
Aanvaarding
In overleg

Bouw

Soort woonhuis
Eengezinswoning, twee-onder-een-kap woning
Soort bouw
Bestaande bouw
Bouwjaar
1962
Soort dak
Zadeldak
Staat van onderhouden binnen
Goed
Staat van onderhouden buiten
Goed

Oppervlakte en inhoud

Perceeloppervlakte
429 m2
Inhoud van de woning
729 m3
Oppervlakte gebouwgebonden buitenruimten
7 m2
Oppervlakte overige inpandige ruimten
22 m2

Indeling

Aantal kamers
6
Aantal slaapkamers
3
Aantal woonlagen
4
Voorzieningen
Tuin, balkon, buitenzonwering, dakraam

Buitenruimte

Balkon
Ja
Schuur/berging
Nee

Maandlasten berekenen

De maandlasten voor je woning bestaan uit meer dan alleen de hypotheeklasten. Hieronder vind je een overzicht van de bijkomende kosten en lasten. Zo weet je precies wat je huis per maand gaat kosten. En met de handige vergelijkers kun je ook nog eens snel de beste deals sluiten!

  • Kaart
  • Streetview