Aaltenseweg 34 7051 CM Varsseveld

90m2
Wonen
6
Kamers
340m2
Perceel
1947
Bouwjaar
Aaltenseweg 34, 7051 CM VARSSEVELD

Ben je een starter en zoek je een aantrekkelijk geprijsde woning met tuin? Dan is wellicht deze woning iets voor jouw, gelegen aan de Aaltenseweg 34 in Varsseveld, de woning heeft een woonoppervlakte van bijna 90 m2 en bevindt zich op een perceel met een oppervlakte van 340 m2. De woning is gebouwd rond 1947 en heeft energielabel F.
De woning is gelegen aan een doorgaande weg, nabij het station.

Indeling:
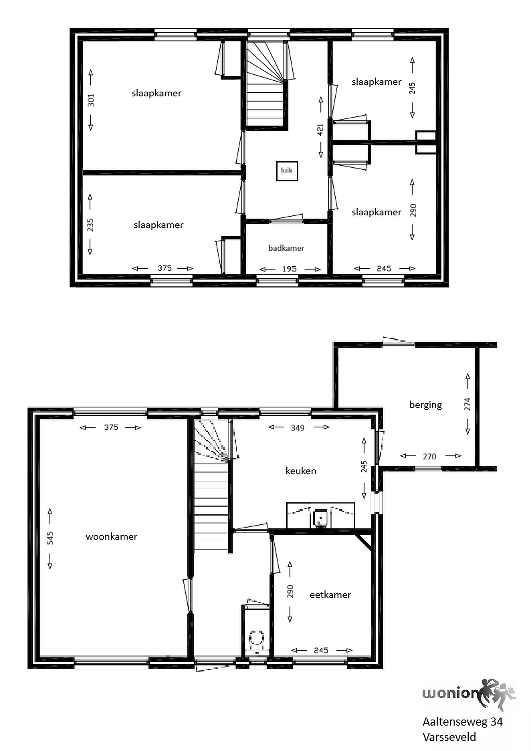
Begane grond
Entree, hal, toiletruimte, trapopgang, doorzon-woonkamer, eetkamer, keuken met kelder en een aangebouwde berging;

1e verdieping
Overloop, luik naar onbevloerde bergzolder, 4 slaapkamers elk met een vaste kast en een doucheruimte met wastafel en douchehoek.

Koopsom   € 315.000,- k.k.

Kenmerken:
Achtertuin  Zuid georiënteerd
Bouwjaar  1947
CV ketel  Nefit HR combiketel (bouwjaar 2006)
Opp kavel  340 m2

Woonkamer  20,44 m2
Eetkamer  6,60 m2
Keuken  8,55 m2
Slaapkamer 1 5,50 m2
Slaapkamer 2 6,60 m2
Slaapkamer 3 10,79 m2
Slaapkamer 4 8,31 m2

Achtertuin   15 x 13 mtr
Woonopp   90 m2

Bijzonderheden:
- Minimaal 6% van de koopsom wordt door koper aantoonbaar geïnvesteerd in verduurzamingsmaatregelen. Dit om de huidige lage energetische waarde (energielabel F) te verbeteren;

Er is geen inventarislijst aanwezig. De woning wordt conform de verkoopfoto’s opgeleverd.

Koper heeft een zelfbewoningsplicht van minimaal twee jaar.

Verkoper is niet de bewoner geweest.

Er is een bouwtechnisch rapport aanwezig.

Aanvaarding in overleg (op korte termijn mogelijk).


Zijn er meerdere kandidaten dan wordt er gegund door middel van loting.
Graag reageren via de contactknop op Funda.

Lees meer

Kenmerken

Overdracht

Prijs per m2
€ 3.500
Aangeboden sinds
26 januari 2026
Status
Beschikbaar
Aanvaarding
In overleg

Bouw

Soort woonhuis
Eengezinswoning, vrijstaande woning
Soort bouw
Bestaande bouw
Bouwjaar
1947
Soort dak
Zadeldak
Staat van onderhouden binnen
Goed
Staat van onderhouden buiten
Goed

Oppervlakte en inhoud

Perceeloppervlakte
340 m2
Inhoud van de woning
250 m3

Indeling

Aantal kamers
6
Aantal slaapkamers
5
Aantal woonlagen
4
Voorzieningen
Tuin

Buitenruimte

Balkon
Nee
Schuur/berging
Nee

Maandlasten berekenen

De maandlasten voor je woning bestaan uit meer dan alleen de hypotheeklasten. Hieronder vind je een overzicht van de bijkomende kosten en lasten. Zo weet je precies wat je huis per maand gaat kosten. En met de handige vergelijkers kun je ook nog eens snel de beste deals sluiten!

  • Kaart
  • Streetview