Verkocht

Katwijkerweg 40 2235 AC Valkenburg

82m2
Wonen
4
Kamers
100m2
Perceel
1944
Bouwjaar
Aan de rand van Valkenburg ligt deze keurig onderhouden eengezinswoning met een ruime voortuin en een heerlijk zonnige achtertuin op het zuidwesten met een aangebouwde schuur en een praktische achterom. De ligging is bijzonder gunstig: centraal ten opzichte van uitvalswegen en op korte afstand van het centrum van Leiden en het strand van Katwijk. Scholen, winkels en diverse andere voorzieningen bevinden zich in de directe omgeving.

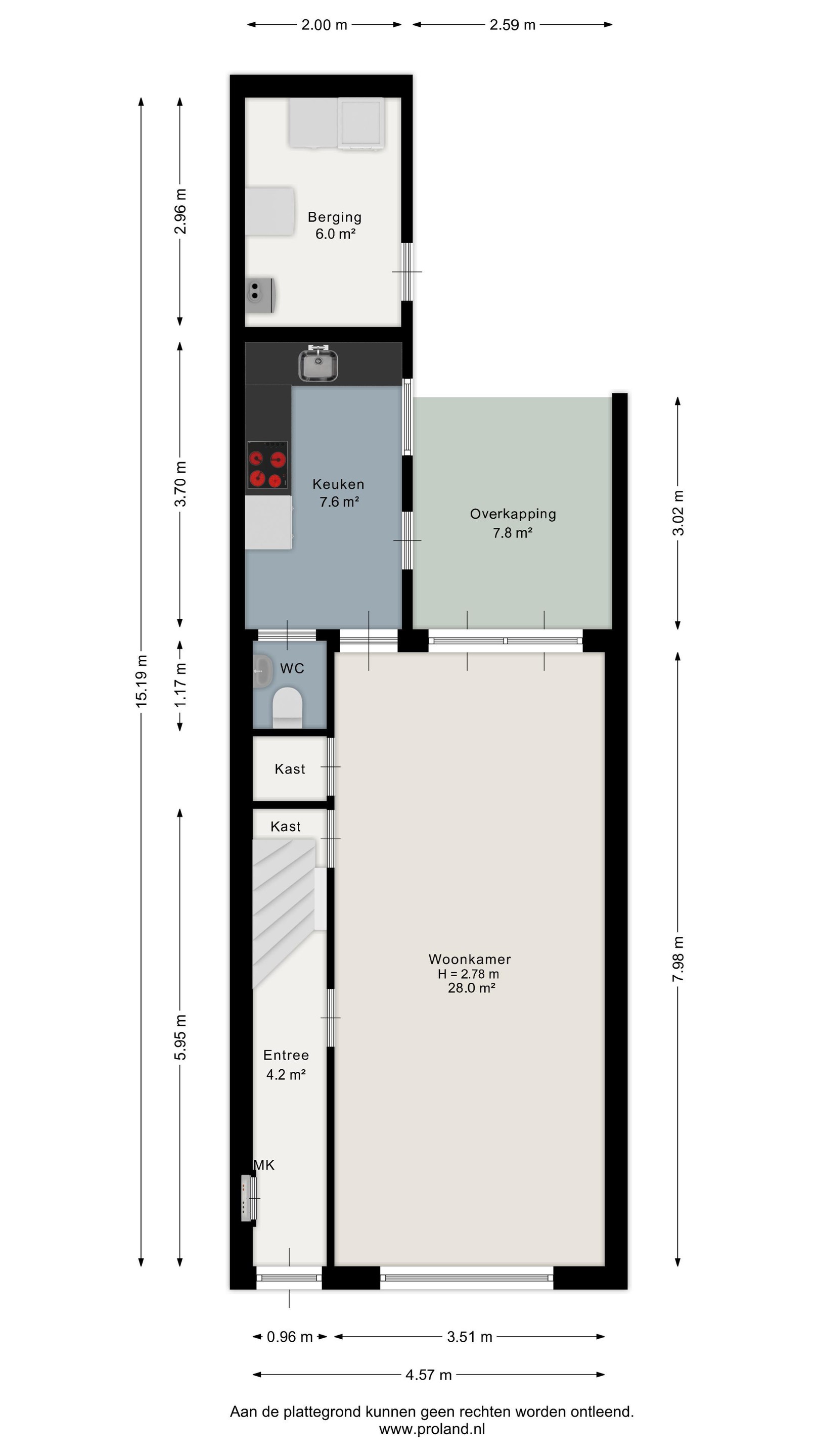
Indeling
Via de voortuin bereik je de entree van de woning. In de hal bevinden zich de meterkast en de trap naar de eerste verdieping. Dankzij de raampartij aan de voorzijde en de brede schuifpui aan de achterzijde heeft de woonkamer een fijne, natuurlijke lichtinval. Daarnaast zijn er twee handige inbouwkasten die zorgen voor extra bergruimte. Aangrenzend aan de woonkamer bevinden zich, via een tussendeur, het toilet en de keuken in de uitbouw. De moderne en hoekkeuken is voorzien van diverse inbouwapparatuur o.a. een koelkast, inductie kookplaat met afzuigkap en een vaatwasser. Zowel via de keuken als de woonkamer is er toegang tot de achtertuin.

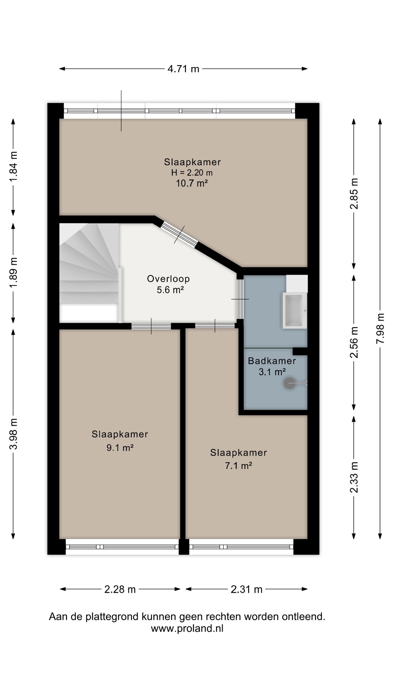
Eerste verdieping
Overloop met toegang tot drie volwaardige slaapkamers en de badkamer. De ouderslaapkamer ligt aan de achterzijde van de woning en biedt toegang tot het dak
boven de uitbouw. Aan de voorzijde bevinden zich twee slaapkamers. De volledig betegelde badkamer is uitgerust met een wastafelmeubel, design-radiator en een inloopdouche.

Via een uitschuifbare trap op de overloop is een praktische bergvliering bereikbaar.

De woning heeft zowel een voor- als achtertuin. De zonnige achtertuin ligt op het zuidwesten en is een fijne plek om tot rust te komen. In de tuin staat een ruime aangebouwde berging met aansluitingen voor wasmachine en droger, evenals de cv-ketel (2011).
Verder is de woning voorzien van maar liefst 10 zonnepanelen, gelegen op het zuidwesten.

Ben je op zoek naar een fijne tussenwoning op een uitstekende locatie?
Maak dan snel een afspraak voor een bezichtiging en wij heten je van harte welkom in wellicht jouw toekomstige woning.

Op de eigen website van dit huis vindt u extra informatie, foto’s, plattegronden en documenten.
Woningwebsite: Katwijkerweg40.nl

Deze verkoopinformatie is met zorg samengesteld. Er kunnen echter geen rechten aan worden ontleend. Ten aanzien van eventuele onjuistheden aanvaarden wij geen aansprakelijkheid.

Lees meer

Verkoopgeschiedenis

Aangeboden sinds
27 januari 2026
Verkoopdatum
7 april 2026
Looptijd
2 maanden

Kenmerken

Overdracht

Prijs per m2
€ 5.915
Aangeboden sinds
27 januari 2026
Status
Verkocht
Aanvaarding
In overleg

Bouw

Soort woonhuis
Eengezinswoning, tussen woning
Soort bouw
Bestaande bouw
Bouwjaar
1944
Soort dak
Zadeldak
Staat van onderhouden binnen
Goed
Staat van onderhouden buiten
Goed

Oppervlakte en inhoud

Perceeloppervlakte
100 m2
Inhoud van de woning
331 m3
Oppervlakte externe bergruimte
6 m2
Oppervlakte gebouwgebonden buitenruimten
7 m2

Indeling

Aantal kamers
4
Aantal slaapkamers
3
Aantal woonlagen
3
Voorzieningen
Tuin, schuur/berging, kabel-tv

Buitenruimte

Balkon
Nee
Schuur/berging
Ja

Maandlasten berekenen

De maandlasten voor je woning bestaan uit meer dan alleen de hypotheeklasten. Hieronder vind je een overzicht van de bijkomende kosten en lasten. Zo weet je precies wat je huis per maand gaat kosten. En met de handige vergelijkers kun je ook nog eens snel de beste deals sluiten!

  • Kaart
  • Streetview