Verkocht

Burgemeester Lotsystraat 21 2235 CX Valkenburg

114m2
Wonen
4
Kamers
246m2
Perceel
1948
Bouwjaar
Instapklare hoekwoning met zonnige tuin op het zuidwesten

Aan Burgemeester Lotsystraat 21 in Valkenburg (ZH) staat deze verrassend ruime en uitstekend onderhouden hoekwoning. Met een woonoppervlakte van ruim 114 m2, een zonnige tuin op het zuidwesten en een perceel van 246 m2 biedt deze woning volop leefruimte, zowel binnen als buiten. In 2019 is de woning grondig verbouwd, waardoor comfort, duurzaamheid en een moderne uitstraling perfect samenkomen. Gelegen in een fijne, rustige woonwijk is dit een ideale plek voor wie zorgeloos en prettig wil wonen.

De woning

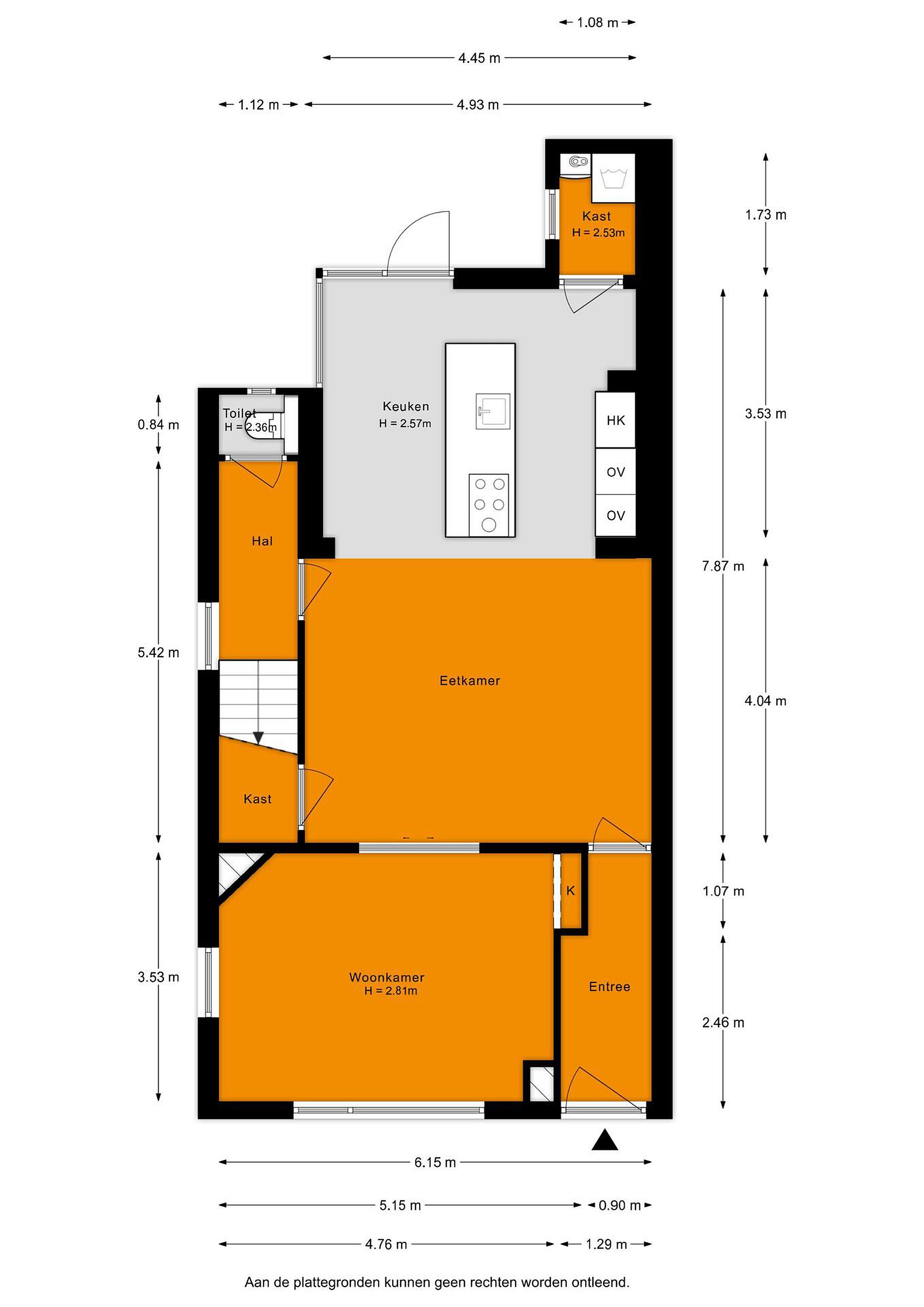
Deze charmante woning uit 1948 combineert karakter met het comfort van nu. In 2019 is de woning verbouwd met een uitbouw, een nieuwe keuken en badkamer, vernieuwde elektra, een 3-fase meterkast en een laadpunt voor een elektrische auto. Daarnaast is de woning verduurzaamd met dak- en vloerisolatie, HR++ beglazing, 9 zonnepanelen, een moderne cv-ketel en airco’s.

De woning beschikt over drie slaapkamers en is dankzij de hoekligging heerlijk licht. Parkeren kan op de eigen oprit. De zonnige achtertuin op het zuidwesten biedt veel privacy en is een fijne plek om van de zon te genieten.

Bijzonderheden:
Bouwjaar 1948
Hoekwoning
Woonoppervlakte 114 m2
Perceel 246 m2
3 slaapkamers
Gelegen in een prettige woonwijk
Zonnige achtertuin op het zuidwesten
Verbouwing 2019: Nieuwe keuken, nieuwe badkamer, uitbouw, gevels gereinigd en opnieuw gevoegd, dakisolatie, alle elektra vernieuwd, nieuwe meterkast (3-fase), laadpunt elektrische auto
verwarming via cv-ketel (2019) en airco’s (2019)
9 zonnepanelen (2020)
Vloerisolatie (2021)
Houten kozijnen met HR++ beglazing

Waarom wonen in Valkenburg (ZH)?

Valkenburg (ZH) is een charmant dorp met een fijne, rustige sfeer en een sterk gemeenschapsgevoel. Je woont hier groen en comfortabel, met scholen, winkels en openbaar vervoer in de buurt. Tegelijk zijn plaatsen als Leiden, Katwijk en de kust snel bereikbaar. Een ideale combinatie van dorps wonen met stedelijke voorzieningen dichtbij.
Lees meer

Verkoopgeschiedenis

Aangeboden sinds
10 februari 2026
Verkoopdatum
3 maart 2026
Looptijd
21 dagen

Kenmerken

Overdracht

Prijs per m2
€ 5.219
Aangeboden sinds
10 februari 2026
Status
Verkocht
Aanvaarding
In overleg

Bouw

Soort woonhuis
Eengezinswoning, hoek woning
Soort bouw
Bestaande bouw
Bouwjaar
1948
Soort dak
Zadeldak
Staat van onderhouden binnen
Goed
Staat van onderhouden buiten
Goed

Oppervlakte en inhoud

Perceeloppervlakte
246 m2
Inhoud van de woning
460 m3
Oppervlakte overige inpandige ruimten
10 m2

Indeling

Aantal kamers
4
Aantal slaapkamers
3
Aantal woonlagen
3
Voorzieningen
Tuin, schuur/berging, glasvezel, airconditioning

Buitenruimte

Balkon
Nee
Schuur/berging
Ja

Maandlasten berekenen

De maandlasten voor je woning bestaan uit meer dan alleen de hypotheeklasten. Hieronder vind je een overzicht van de bijkomende kosten en lasten. Zo weet je precies wat je huis per maand gaat kosten. En met de handige vergelijkers kun je ook nog eens snel de beste deals sluiten!

  • Kaart
  • Streetview