Mezenpad 64 7071 JR Ulft

115m2
Wonen
5
Kamers
138m2
Perceel
1972
Bouwjaar
Ben je op zoek naar een ruime gezinswoning woning met tuin op een fijne locatie ? Dan is wellicht deze tussenwoning iets voor jouw, gelegen aan het Mezenpad 64 in Ulft. De woning heeft een woonoppervlakte van ongeveer 115 m2 en bevindt zich op een perceel met een oppervlakte van 138 m2. De woning is gebouwd rond 1972 en heeft energielabel A en in voorzien van 10 zonnepanelen.

De ligging is ideaal direct aan de rand van het dorp. Er zijn speeltuintjes in de buurt, ideaal voor jonge gezinnen. De voortuin en achtertuin zijn onderhoudsvriendelijk aangelegd.

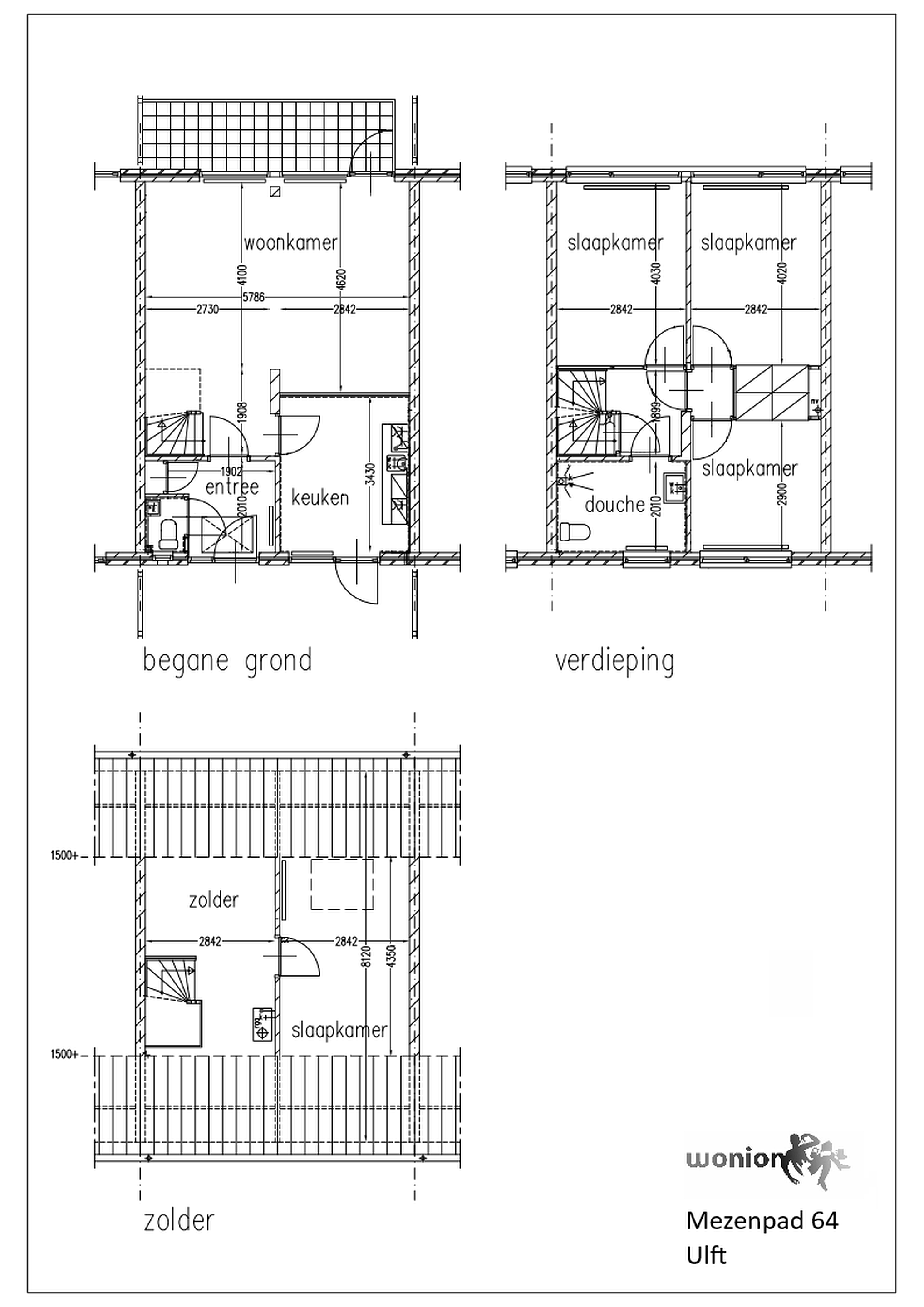
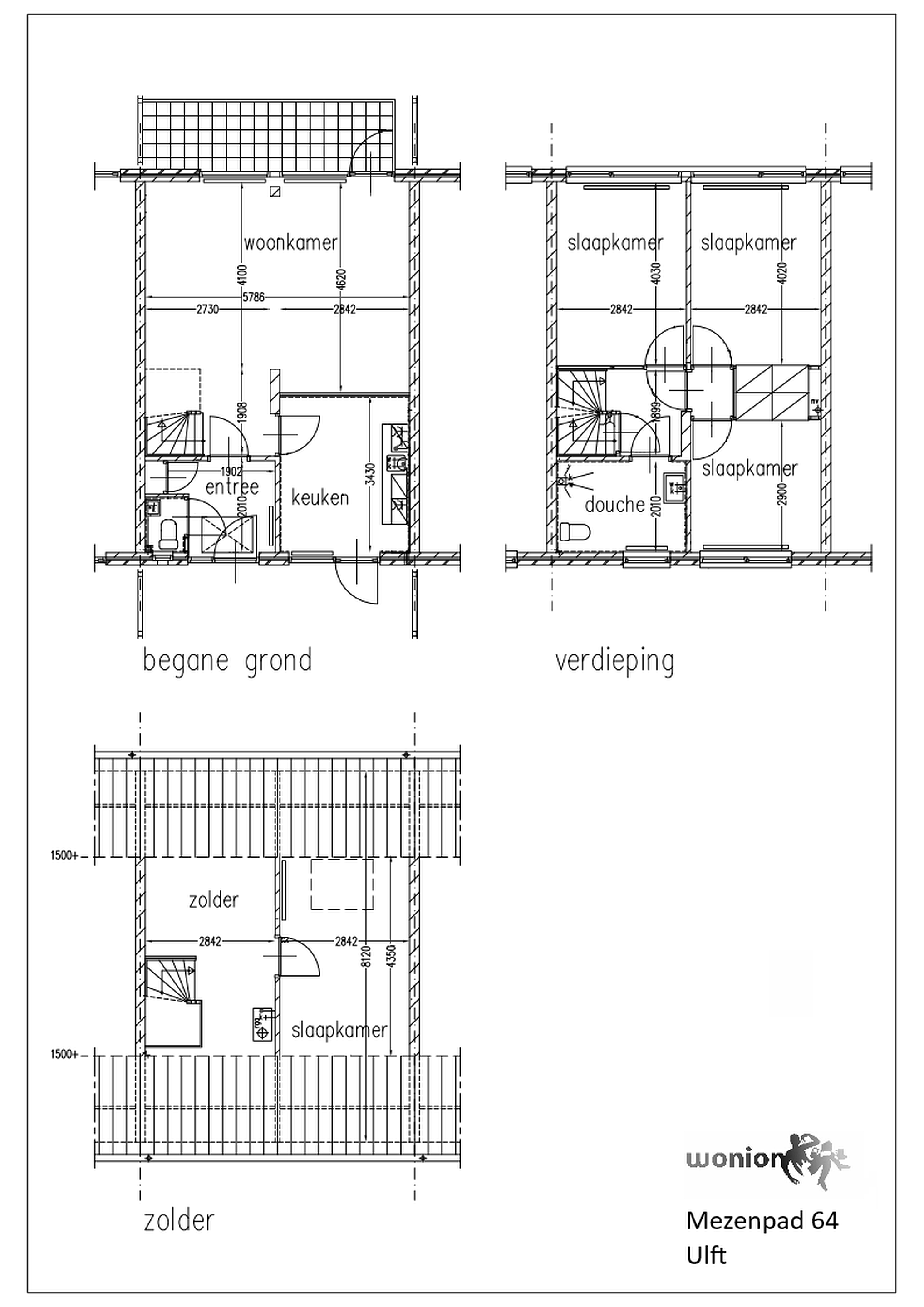
Indeling:
Begane grond
Entree, hal, toilet, keuken, woonkamer met trapopgang;
1e verdieping
Overloop, trapopgang 3 slaapkamers (waarvan 2 slaapkamer met vaste kasten) doucheruimte met wastafel, douchehoek en 2e toilet
2e verdieping
Overloop met CV-opstelplaats en een 4e slaapkamer

Koopsom   € 295.000,- k.k.

Kenmerken:
Achtertuin  West georiënteerd
Bouwjaar  1972
CV ketel  ATAG HR combiketel (bouwjaar 2024)
Opp kavel  138 m2

Woonkamer  28,52 m2
Keuken  9,75 m2
Slaapkamer 1 11,45 
Slaapkamer 2 11,45 
Slaapkamer 3 8,24
Slaapkamer 4 12,36


Achtertuin  6 x 7,5 mtr
Woonopp  115 m2

Bijzonderheden:

Er is geen inventarislijst aanwezig. De woning wordt conform de verkoopfoto’s opgeleverd.

Koper heeft een zelfbewoningsplicht van minimaal twee jaar.

Verkoper is niet de bewoner geweest.

Aanvaarding in overleg (op korte termijn mogelijk).

Om bepaalde groepen een betere kans te geven op een koopwoning hanteren we hiervoor bepaalde voorwaarden. De voorwaarden voor het zoeken naar geschikte kandidaten bij verkoop zijn (in deze volgorde):
1. Huurders van sociale huurwoningen in de gemeente Oude IJsselstreek;
2. Starters op de koopmarkt;
3. Overig.
Zijn er meerdere kandidaten die voldoen aan één bovenstaande voorwaarden, dan wordt er gegund door middel van loting.
Heeft u interesse in de woning dan dient u te reageren voor 18 mei 12:00 uur. U kunt reageren via Funda zelf zodat we het in Fundadesk kunnen zien. Toont u na deze datum en tijd interesse, dan komt u op een reservelijst te staan
Lees meer

Kenmerken

Overdracht

Prijs per m2
€ 2.565
Aangeboden sinds
20 april 2026
Status
Beschikbaar
Aanvaarding
In overleg

Bouw

Soort woonhuis
Eengezinswoning, tussen woning
Soort bouw
Bestaande bouw
Bouwjaar
1972
Soort dak
Zadeldak
Staat van onderhouden binnen
Goed
Staat van onderhouden buiten
Goed

Oppervlakte en inhoud

Perceeloppervlakte
138 m2
Inhoud van de woning
300 m3

Indeling

Aantal kamers
5
Aantal slaapkamers
4
Aantal woonlagen
3
Voorzieningen
Tuin, schuur/berging

Buitenruimte

Balkon
Nee
Schuur/berging
Ja

Maandlasten berekenen

De maandlasten voor je woning bestaan uit meer dan alleen de hypotheeklasten. Hieronder vind je een overzicht van de bijkomende kosten en lasten. Zo weet je precies wat je huis per maand gaat kosten. En met de handige vergelijkers kun je ook nog eens snel de beste deals sluiten!

  • Kaart
  • Streetview