Deken Nijkampstraat 4A 7071 BP Ulft

135m2
Wonen
4
Kamers
82m2
Perceel
2010
Bouwjaar
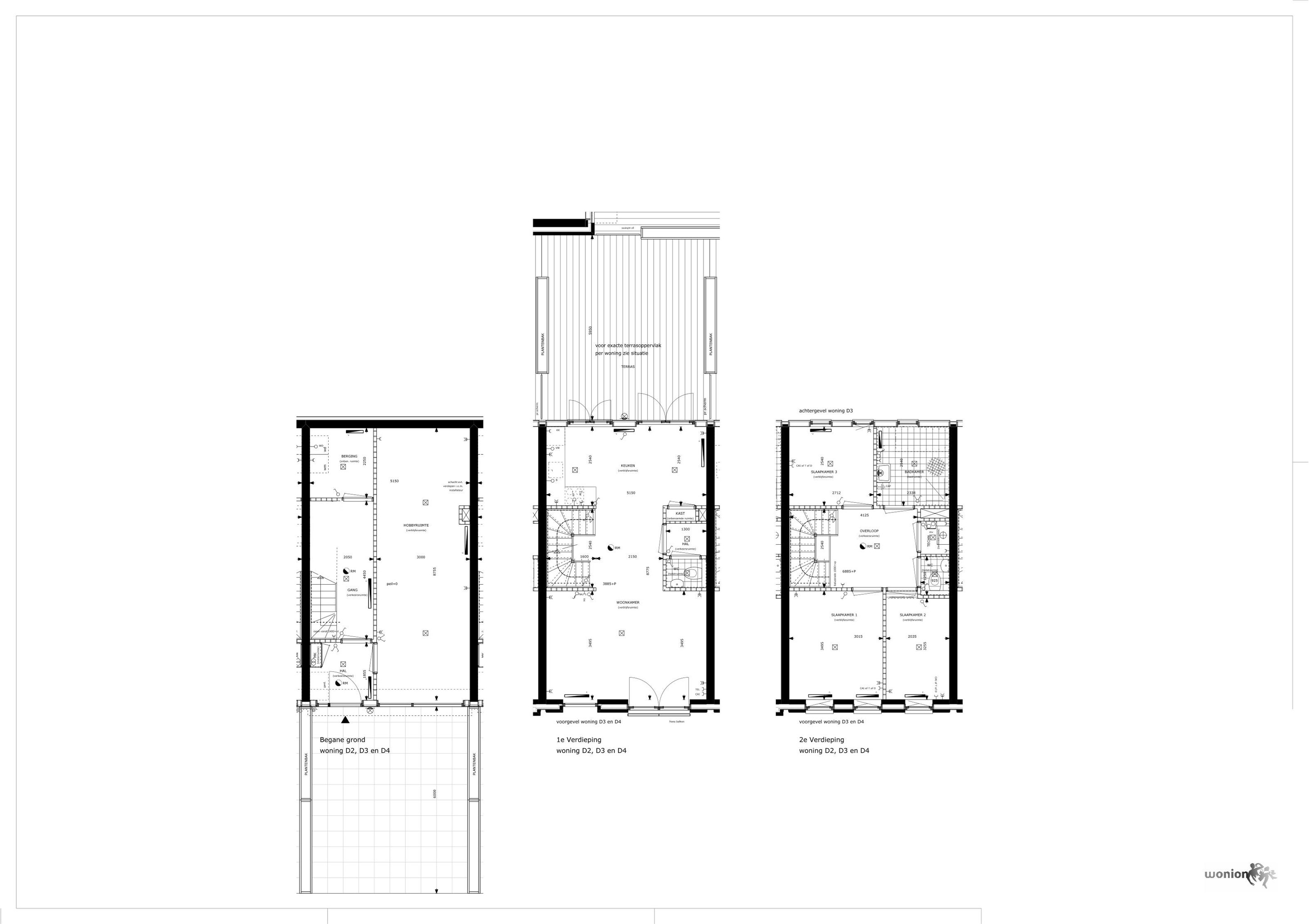
In het hartje van Ulft bieden wij u aan deze ruime gezinswoning met hobby/praktijkruimte op de begane grond. Bij uitstek geschikt voor een kleine ondernemer die willen wonen en werken ineen. Maar voor een gezin is deze woning ook bijzonder geschikt. De woning biedt een woonoppervlak 135 m2!

Indeling
Begane grond
Entree, meterkast, praktijk/hobbyruimte, berging en trapopgang.

Eerste verdieping
Hier bevindt zich een ruime woonkamer, toilet en keuken, met openslaande deuren naar je eigen dakterras.

Tweede verdieping vindt u de badkamer met douchehoek, wastafel, 3 ruime slaapkamers, technische ruimte en een separaat toilet.

Er is geen inventarislijst aanwezig. De woning wordt conform de verkoopfoto’s opgeleverd.

Koper heeft een zelfbewoningsplicht van minimaal twee jaar.

Verkoper is niet de bewoner geweest.

Aanvaarding in overleg (op korte termijn mogelijk).

Om bepaalde groepen een betere kans te geven op een koopwoning, hanteren we bepaalde voorwaarden. De voorwaarden voor het zoeken naar geschikte kandidaten bij verkoop zijn (in deze volgorde):
1. Huurders van sociale huurwoningen in de gemeente Oude IJsselstreek;
2. Starters op de koopmarkt;
3. Overig.
Zijn er meerdere kandidaten die voldoen aan één van bovenstaande voorwaarden, dan wordt er gegund door middel van loting.
Heeft u interesse in de woning dan dient u te reageren voor 25 maart 2026 12:00 uur. U kunt reageren door te reageren via Funda zelf. Toont u na deze datum en tijd interesse, dan komt u op een reservelijst te staan.



Lees meer

Kenmerken

Overdracht

Prijs per m2
€ 2.741
Aangeboden sinds
24 februari 2026
Status
Beschikbaar
Aanvaarding
In overleg

Bouw

Soort woonhuis
Eengezinswoning, tussen woning
Soort bouw
Bestaande bouw
Bouwjaar
2010
Soort dak
Plat dak
Staat van onderhouden binnen
Goed
Staat van onderhouden buiten
Goed

Oppervlakte en inhoud

Perceeloppervlakte
82 m2
Inhoud van de woning
475 m3
Oppervlakte gebouwgebonden buitenruimten
30 m2

Indeling

Aantal kamers
4
Aantal slaapkamers
3
Aantal woonlagen
3
Voorzieningen
Ventilatie, fransbalkon

Buitenruimte

Balkon
Nee
Schuur/berging
Nee

Maandlasten berekenen

De maandlasten voor je woning bestaan uit meer dan alleen de hypotheeklasten. Hieronder vind je een overzicht van de bijkomende kosten en lasten. Zo weet je precies wat je huis per maand gaat kosten. En met de handige vergelijkers kun je ook nog eens snel de beste deals sluiten!

  • Kaart
  • Streetview