Pater Nottenstraat 4 6235 AR Ulestraten

164m2
Wonen
5
Kamers
341m2
Perceel
1972
Bouwjaar
DEZE WONING WORDT AANGEBODEN DOOR POOTERS MAKELAARDIJ
In een rustige woonomgeving in het gezellige Ulestraten ligt deze ruime (ca.164m2), vrijstaande gemoderniseerde eengezinswoning uit 1972. Een huis met karakter, volop leefruimte en verrassend veel extra's, ideaal voor gezinnen. De woning beschikt over 4 volwaardige slaapkamers, een badkamer, een royale living met veel lichtinval en een separate keuken. Dankzij de praktische indeling en ruime afmetingen voelt het huis licht, open en comfortabel aan. Buiten gaat het woonplezier moeiteloos verder. Aan de voorzijde bevindt zich een oprit met overkapping en een royale garage, ideaal voor parkeren of opslag. De achtertuin is fraai ingericht met een pergola en een grote overkapping naast de woning, waar zich een sfeervolle mancave bevindt, de plek voor ontspanning en gezellige avonden met vrienden.

Indeling:
Begane grond:

Via de inkomhal (ca. 6m2) betreedt u de woning. Hier bevinden zich de garderobe, de meterkast en de trapopgang naar de eerste verdieping. Vanuit de hal heeft u toegang tot de sfeervolle living. De ruime living (ca.42m2) is voorzien van een gezellige open haard, airco en een schuifpui naar de achtertuin, waardoor binnen en buiten op een prettige manier in elkaar overlopen en u geniet van veel lichtinval. Vanuit de living bereikt u een tussenhal waar zich het toilet bevindt, uitgerust met een staand toilet en een fonteintje. Vanuit deze hal heeft u tevens toegang tot zowel de oprit als de achtertuin, wat zorgt voor extra praktisch gebruiksgemak. Aan de achterzijde van de woning ligt de gesloten keuken. De keuken (ca.11m2) is uitgevoerd met een keukenblok in wandopstelling met onderkasten en een kunststof werkblad. De volgende inbouwapparatuur is aanwezig: een Atag 4-pits inductiekookplaat met Atag rvs afzuigkap, vaatwasser, hoge koelkast, magnetron en oven. De gehele begane grond, met uitzondering van het toilet, is voorzien van een stijlvolle pvc-vloer in Hongaarse punt, wat zorgt voor een luxe en warme uitstraling. Zowel de living als de keuken zijn afgewerkt met een strak spanplafond, wat het geheel een moderne en verzorgde uitstraling geeft.

Eerste verdieping:

De eerste verdieping is praktisch en comfortabel ingedeeld en biedt volop ruimte voor het hele gezin. Vanaf de overloop zijn drie ruime slaapkamers, de moderne badkamer en de vaste trap naar de tweede verdieping bereikbaar. Aan de achterzijde bevindt zich Slaapkamer I (ca.16m2), die is samengevoegd met de voormalige vierde slaapkamer. Hierdoor is een royale ruimte ontstaan met aangrenzend een kleedkamer of studeerkamer, ideaal voor wie extra ruimte wenst voor werk of hobby. De geheel betegelde badkamer (ca.6m2) is modern uitgevoerd en voorzien van een douche, een zwevend toilet en een stijlvol wastafelmeubel met waskom. Slaapkamer II (ca.13m2) en III (ca.10m2) zijn aan de voorzijde van de woning gelegen. Alle slaapkamers zijn netjes behangen en de gehele verdieping is voorzien van een laminaatvloer, wat zorgt voor een warme en verzorgde uitstraling.

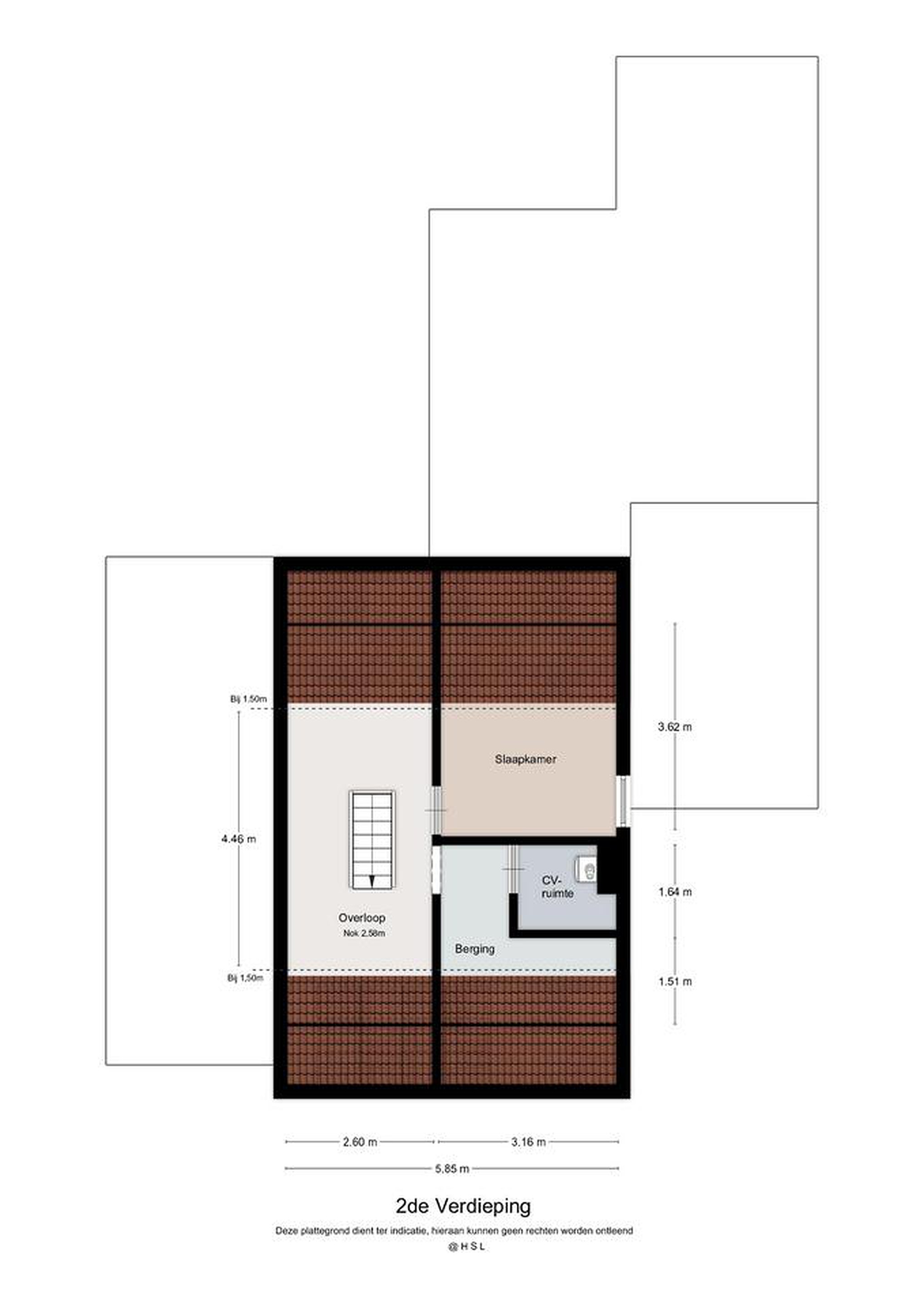
Tweede verdieping:
Via de vaste trap bereikt u de ruime tweede verdieping, die verrassend veel extra leefruimte biedt. De royale overloop is multifunctioneel te gebruiken, bijvoorbeeld als werkplek, hobbyruimte of extra bergruimte. Daarnaast is er praktische bergruimte en een aparte cv-ruimte. Op deze verdieping bevindt zich slaapkamer IV (ca.11m2), een volwaardige en lichte kamer die uitstekend geschikt is als extra slaapkamer, logeerkamer of thuiskantoor. Zowel de overloop als de slaapkamer zijn afgewerkt met een laminaatvloer.

Tuin en Terras:
De voortuin is verzorgd aangelegd met een combinatie van grind en een stijlvolle bloembak, beplant met siergras en twee prachtige olijfbomen.
De op het westen gelegen achtertuin is volledig betegeld en onderhoudsvriendelijk aangelegd. Hier geniet u volop van de middag- en avondzon. De tuin is voorzien van een sfeervolle pergola en een ruime overkapping, waaronder zich een gezellige mancave bevindt , de perfecte plek om te ontspannen. Vanuit de achtertuin heeft u tevens directe toegang tot de garage, wat zorgt voor extra gemak en praktische bergruimte.

Extra informatie:
- Definitief energielabel D, geldig tot 04-02-1935;
- Verwarming en warm water verkregen door cv-ketel, Remha Calenta c40, bouwjaar 2017, huur- en onderhoudscontract, bedrag €37,10;
- Kunststofkozijnen voorzien van HR++ beglazing;
- Twee houten kozijnen met glas-in-lood en een met enkel glas;
- Meterkast vernieuwd in 2020;
- 12 zonnepanelen geplaatst in 2022, deze zijn eigendom;
- Twee airco's, verwarmen en koelen, geplaatst in 2020 en 2023;
- Rolluiken, screens en zonneschermen geplaatst;
- Aluminium pergola geplaatst met elektrisch bedienbaar lamellenplafond;
- Oprit vernieuwd met een gepolijste betonvloer;


Algemene informatie:
Ulestraten (Limburgs: Ulesjtraote) is een dorp in de gemeente Meerssen dat ligt in het zuiden van de Nederlandse provincie Limburg. Het dorp ligt aan de rand van het Watervalderbeekdal (zijdal van het Geuldal) en het Centraal Plateau. In het zuiden van het dorp ligt de Wijngaardsberg.

Ter bescherming van de belangen van zowel koper als verkoper, wordt uitdrukkelijk gesteld dat een koopovereenkomst met betrekking tot deze onroerende zaak eerst dan tot stand komt nadat koper en verkoper de koopovereenkomst hebben getekend ("schriftelijkheidsvereiste").De termijn die wordt opgenomen voor eventuele (overeengekomen) ontbindende voorwaarden (bv. Financiering) is in de regel 4 tot 6 weken na het sluiten van de mondelinge wilsovereenkomst.

De waarborgsom/bankgarantie is 10% van de koopsom. De koper dient deze 2 weken ná het vervallen van de ontbindende voorwaarden bij de desbetreffende notaris te deponeren.

Koper is te allen tijde gerechtigd voor eigen rekening een bouwkundige keuring te (laten) verrichten dan wel andere adviseurs te raadplegen teneinde een goed inzicht te verkrijgen over de staat van onderhoud.

Bovenstaande vrijblijvende informatie is door Pooters Makelaardij met de nodige zorgvuldigheid samengesteld. Echter aanvaardt Pooters Makelaardij geen enkele aansprakelijkheid voor enige onvolledigheid, onjuistheid of anderszins, dan wel de gevolgen daarvan. Oppervlakten en maten zijn indicatief.
Lees meer

Kenmerken

Overdracht

Prijs per m2
€ 3.201
Aangeboden sinds
13 februari 2026
Status
Beschikbaar
Aanvaarding
In overleg

Bouw

Soort woonhuis
Eengezinswoning, geschakelde woning
Soort bouw
Bestaande bouw
Bouwjaar
1972
Soort dak
Zadeldak
Staat van onderhouden binnen
Goed
Staat van onderhouden buiten
Goed

Oppervlakte en inhoud

Perceeloppervlakte
341 m2
Inhoud van de woning
515 m3
Oppervlakte gebouwgebonden buitenruimten
47 m2
Oppervlakte overige inpandige ruimten
25 m2

Indeling

Aantal kamers
5
Aantal slaapkamers
4
Aantal woonlagen
3
Voorzieningen
Tuin, kabel-tv, airconditioning, schuifpui

Buitenruimte

Balkon
Nee
Schuur/berging
Nee

Maandlasten berekenen

De maandlasten voor je woning bestaan uit meer dan alleen de hypotheeklasten. Hieronder vind je een overzicht van de bijkomende kosten en lasten. Zo weet je precies wat je huis per maand gaat kosten. En met de handige vergelijkers kun je ook nog eens snel de beste deals sluiten!

  • Kaart
  • Streetview