Ganzenroer 3A 8309 DA Tollebeek

182m2
Wonen
7
Kamers
270m2
Perceel
2012
Bouwjaar
Ganzenroer 3a – Tollebeek
Richtprijs: € 495.000 k.k.

Hier wil je wonen!
Op een prachtige locatie in het gezellige Tollebeek staat deze royale, instapklare twee-onder-één-kapwoning met maar liefst 6 slaapkamers, een luxe leefkeuken, slaap- en badkamer op de begane grond en een zonnige, recent aangelegde tuin mét overkapping en berging. Deze moderne woning uit 2012 is met zorg onderhouden en voorzien van alle comfort om direct te betrekken.

De woning staat op een perceel van 270 m2 eigen grond en biedt u niet alleen veel ruimte, maar ook een levensloopbestendig woonconcept dankzij de in 2018 aangebouwde slaapkamer en badkamer op de begane grond. Met energielabel A, 14 zonnepanelen en luxe afwerking is dit een woning waar u jarenlang met
plezier kunt wonen.

Pluspunten van deze woning:
- Levensloopbestendig: slaapkamer en badkamer op de begane grond (rolstoelvriendelijk)
- Royale uitbouw aan de achterzijde met prachtige leefkeuken
- Luxe keuken (2022) voorzien van o.a. Quooker kraan, inductiekookplaat, combi-oven, koel-vriescombinatie en vaatwasser
- 6 volwaardige slaapkamers
- 14 zonnepanelen (okt 2021, 400 WP per stuk)
- Recent aangelegde tuin (2025) met stijlvolle overkapping en berging
- Elektrisch bedienbare (met afstandsbediening) voordeur en deur naar slaap- en woonkamer
- Energielabel A+

Indeling
Begane grond
Entree/hal, kantoor- praktijk-, slaap-, of speelkamer met schuifdeur naar aangepaste badkamer met o.a. design radiator, wastafel, verlengd toilet, douche (aanwezig een elektrische douchebrancard). Separaat toilet met fontein, meterkast en trapopgang.
Straatgerichte, lichte L-vormige woonkamer met uitzicht over groenvoorziening; royale uitgebouwde leefkeuken met openslaande deuren naar de tuin (uitvalscherm aanwezig). De luxe keuken (2022) beschikt over hoogwaardige inbouwapparatuur en volop bergruimte. Aansluitend bevindt zich de bijkeuken met witgoedaansluitingen, veel opbergmogelijkheden en toegang tot de tuin.
De fraai aangelegde achtertuin op het zuidoosten biedt een sfeervolle overkapping met berging (afmeting 6,05 x 3,37 meter), sierbestrating, bordes, zonwering en volop privacy. Aan de voorzijde vindt u een verzorgde tuin met oprit voor de auto.

Eerste verdieping
Overloop met veel daglicht, ruime badkamer met ligbad, inloopdouche, toilet, design radiator en wastafel en badmeubel. Verder een riante ouderslaapkamer met kleedruimte en twee ruime slaapkamers.

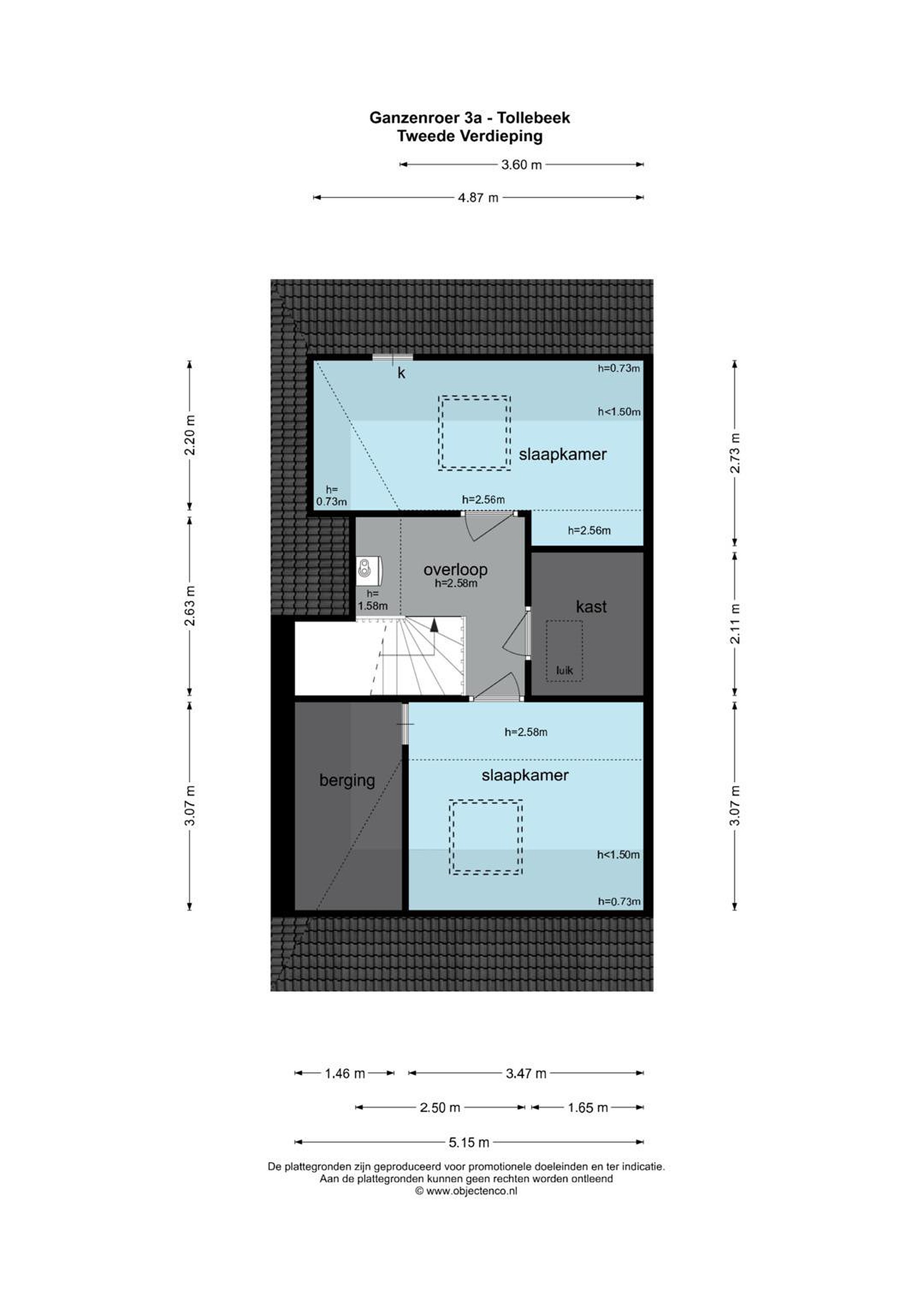
Tweede verdieping
Vaste trap naar voorzolder met CV-ketel (Intergas, 2012), omvormer en praktische riante inloopkast met toegang tot kleine bergzolder. Twee slaapkamers met dakramen en volop bergruimte o.a. achter de knieschotten.

Kenmerken
- Perceel: 270 m2 eigen grond
- Bouwjaar: 2012
- Woonoppervlakte: 182 m2
- Externe bergruimte: 8 m2
- Inhoud: 660,58 m3
- Energielabel: A+
- Slaap- en badkamer op de begane grond
- 6 slaapkamers
- Voorzien van zonnepanelen en luxe afwerking

Locatie
Tollebeek is een vriendelijk en groen dorp, gunstig gelegen tussen Emmeloord en Urk. Het dorp biedt een rijk verenigingsleven, twee basisscholen, supermarkt, snackbar, Chinees afhaalrestaurant en een gezellig eetcafé/restaurant. Ook de natuur en het uitgestrekte polderlandschap liggen binnen handbereik. Vanuit de woning loopt u zo naar diverse wandelpaden om bijvoorbeeld uw hond uit te laten.

Kortom: een heerlijk, modern en duurzaam woonhuis met enorm veel ruimte en comfort. Een woning die u écht gezien moet hebben!
Bent u benieuwd of dit uw nieuwe thuis kan worden? Neem vandaag nog contact op voor meer informatie of een bezichtiging.
Lees meer

Kenmerken

Overdracht

Prijs per m2
€ 2.720
Aangeboden sinds
9 september 2025
Status
Beschikbaar
Aanvaarding
In overleg

Bouw

Soort woonhuis
Eengezinswoning, twee-onder-een-kap woning
Soort bouw
Bestaande bouw
Bouwjaar
2012
Staat van onderhouden binnen
Goed
Staat van onderhouden buiten
Goed

Oppervlakte en inhoud

Perceeloppervlakte
270 m2
Inhoud van de woning
660 m3
Oppervlakte externe bergruimte
8 m2

Indeling

Aantal kamers
7
Aantal slaapkamers
6
Aantal woonlagen
3
Voorzieningen
Tuin

Buitenruimte

Balkon
Nee
Schuur/berging
Nee

Maandlasten berekenen

De maandlasten voor je woning bestaan uit meer dan alleen de hypotheeklasten. Hieronder vind je een overzicht van de bijkomende kosten en lasten. Zo weet je precies wat je huis per maand gaat kosten. En met de handige vergelijkers kun je ook nog eens snel de beste deals sluiten!

  • Kaart
  • Streetview