Verkocht

't Oelbred 6 9356 ED Tolbert

115m2
Wonen
5
Kamers
400m2
Perceel
1983
Bouwjaar
Instapklare hoekwoning met zeer royale tuin, luxe tuinhuis en eigen oprit.

Op zoek naar een ruime, goed onderhouden hoekwoning met volop comfort en buitenruimte? Dan is deze woning aan T’ Oelbred 6 in Tolbert met een perceel van maar liefst 400m2 iets voor u. Met onder andere 13 zonnepanelen (2023), een luxe tuinhuis, vier slaapkamer én een eigen oprit, is dit een ideale gezinswoning.

Indeling:
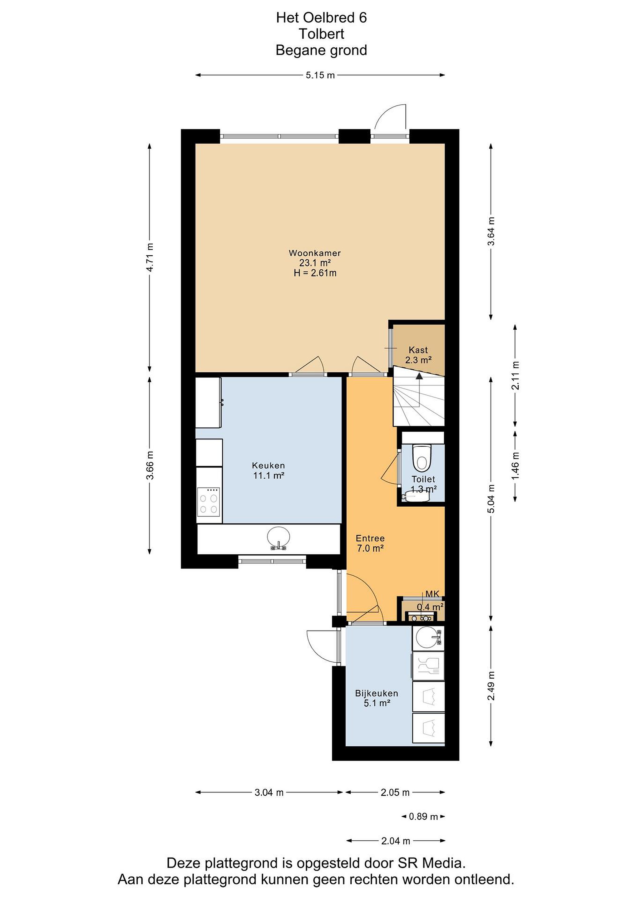
Via de eigen oprit bereikt u zowel de hoofdingang als de handige bijkeuken met witgoedaansluiting en wasbak. De entree aan de voorzijde biedt toegang tot het toilet, meterkast (vernieuwd), de bijkeuken en de woonkamer.

De tuingerichte woonkamer is een fijne, lichte leefruimte met directe toegang tot de zonnige achtertuin. Aangrenzend bevindt zich de gesloten keuken, voorzien van een houten keukenopstelling en een gloednieuwe inductiekookplaat (2024). De woonkamer beschikt daarnaast over een praktische voorraadkast.

Op de eerste verdieping bevinden zich drie slaapkamers en een nette badkamer met inloopdouche, wastafel en toilet.

De tweede verdieping is ingericht met een vierde slaapkamer, een inloopberging, een extra wasbakje en de opstelling van de cv-ketel. Ideaal als slaapkamer, werkkamer of hobbyruimte.

Dankzij de dakkapel (2008) is er extra ruimte en licht gecreëerd.

Buitenleven:
De woning beschikt over een grote, zonnige tuin met toegang via een afsluitbare poort aan de zijkant van de woning. In de tuin vindt u een berging en een luxe tuinhuis. Dit fraaie tuinhuis is volledig uitgerust met glazen wanden, wifi, elektra, koud water. Grenzend aan het tuinhuis ligt een stijlvol betegeld terras, een heerlijke plek om te ontspannen of gasten te ontvangen.

Bijzonderheden:
- Energielabel: A
- Grote kavel: 400m2
- Cv-verwarming (2023)
- 13 zonnepanelen (2023)
- Volledig dubbele beglazing
- Ruime bijkeuken en aparte voorraadkast

De woning is gelegen in het dorp Tolbert. Tolbert is een dorp gelegen in de gemeente Westerkwartier en ligt tegen het levendige dorp Leek aan. Vanaf Tolbert is de A7 dichtbij. Het is vanaf de woning dan ook maar 15 minuten rijden naar de stad Groningen en vlak bij de woning is een bushalte waar elk half uur een bus naar de stad Groningen vertrekt.

Een ideale gezinswoning met verassend veel ruimte binnen én buiten. Neem contract met ons op voor een bezichtiging en ervaar het comfort en de mogelijkheden van deze unieke woning!
Lees meer

Verkoopgeschiedenis

Aangeboden sinds
17 juli 2025
Verkoopdatum
9 oktober 2025
Looptijd
3 maanden

Kenmerken

Overdracht

Prijs per m2
€ 3.025
Aangeboden sinds
17 juli 2025
Status
Verkocht
Aanvaarding
In overleg

Bouw

Soort woonhuis
Eengezinswoning, hoek woning
Soort bouw
Bestaande bouw
Bouwjaar
1983
Soort dak
Zadeldak
Staat van onderhouden binnen
Uitstekend
Staat van onderhouden buiten
Uitstekend

Oppervlakte en inhoud

Perceeloppervlakte
400 m2
Inhoud van de woning
412 m3
Oppervlakte externe bergruimte
40 m2

Indeling

Aantal kamers
5
Aantal slaapkamers
4
Aantal woonlagen
3
Voorzieningen
Tuin, schuur/berging

Buitenruimte

Balkon
Nee
Schuur/berging
Ja

Maandlasten berekenen

De maandlasten voor je woning bestaan uit meer dan alleen de hypotheeklasten. Hieronder vind je een overzicht van de bijkomende kosten en lasten. Zo weet je precies wat je huis per maand gaat kosten. En met de handige vergelijkers kun je ook nog eens snel de beste deals sluiten!

  • Kaart
  • Streetview