Verkocht OV

Kastanjestraat 29A 5038 PS Tilburg

199m2
Wonen
7
Kamers
112m2
Perceel
2006
Bouwjaar
Stads wonen op niveau — ruimte, design en comfort in perfecte balans.

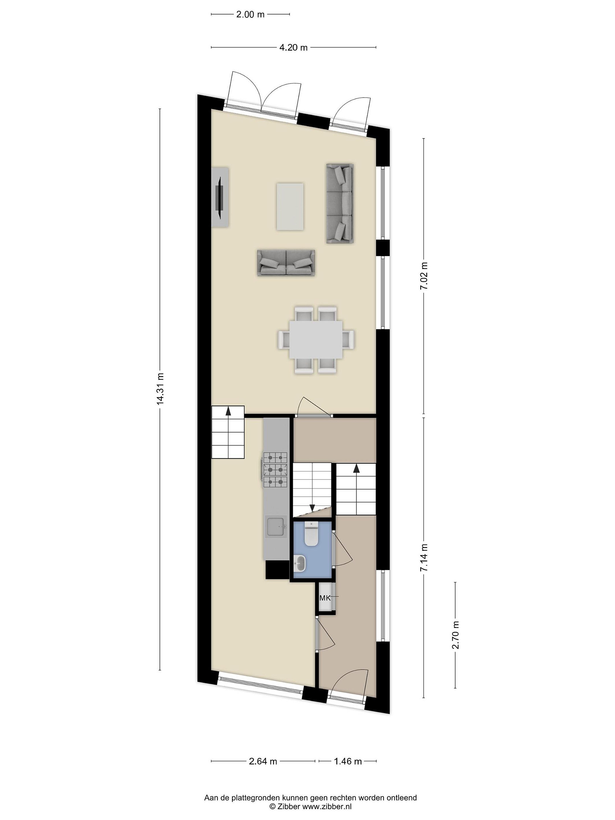
Soms stap je een woning binnen en weet je: dit is anders. Dit royale, onder architectuur gebouwde herenhuis van maar liefst 199 m2 combineert design, ruimte en een verrassende split-level indeling op een manier die je zelden ziet in het centrum. Met zes volwaardige slaapkamers, luxe afwerking en een privéparkeerplaats is dit een huis voor wie groots wil wonen zonder de stad los te laten.

Leefruimte met karakter
De entree zet direct de toon: een lange hal, strakke lijnen en een gevoel van ruimte. De Siematic-keuken vormt het hart van de woning en is uitgerust met hoogwaardige apparatuur van Miele en een professioneel Solitaire-fornuis en afzuigsysteem — klaar voor uitgebreide diners of snelle doordeweekse avonden.
Een speels niveauverschil brengt je naar de royale woonkamer, waar openslaande deuren het terras als vanzelf onderdeel maken van het interieur. Grote raampartijen, notenhouten Parador laminaatvloer (ca 100m2), geschikt voor de vloerverwarming die eronder ligt. vloeren en vloerverwarming zorgen voor comfort en sfeer, het hele jaar door.

Slim verdeeld over meerdere niveaus
De split-level opzet geeft iedere verdieping zijn eigen karakter en privacy.
- 6 ruime slaapkamers verdeeld over meerdere etages
- Moderne designbadkamer van Philippe Starck met ligbad, inloopdouche en luxe materialen
- Voorbereiding aanwezig voor een tweede badkamer
- Praktische was- en bergruimte op de bovenste verdieping

Of je nu een groot gezin hebt, thuis werkt of gewoon graag extra ruimte om je heen wilt: hier kan het allemaal.
Buiten genieten, midden in de stad

De verhoogde stadstuin (ca. 28 m2) biedt verrassend veel privacy en voelt als een rustige stadsoase. Onderhoudsarm, stijlvol aangelegd en perfect voor lange zomeravonden.

Parkeren zonder zoeken
Een ruime privéparkeerplaats in de afgesloten ondergrondse garage maakt het plaatje compleet. Een tweede auto? Een vergunning voor de deur is mogelijk.

Locatie: de geliefde Bomenbuurt
Rustig wonen, maar alles dichtbij. Binnen enkele minuten loop je naar winkels, scholen, horeca en het bruisende centrum. Het Spoorpark, station, theater en bioscoop liggen letterlijk op wandelafstand. Hier woon je stedelijk, maar zonder de drukte op je stoep.

Architectuur met een verhaal
Als grootste woning binnen het project Monastery Village is dit huis ontworpen door architect Marco Aertsen.
De opvallende dieprode bakstenen, Franse stalen balkons, het imposante trappenhuis en de speelse geometrie maken deze woning onderscheidend — stijlvol zonder overdreven te zijn.

Highlights
- 199 m2 woonoppervlakte
- 6 volwaardige slaapkamers
- Unieke split-level indeling
- Luxe Siematic-keuken & designbadkamer
- Privéparkeerplaats in afgesloten garage
- Uitstekende isolatie
- Voorbereiding voor tweede badkamer
- Vloerverwarming en hoogwaardige vloerafwerking

Een huis waar ruimte, architectuur en stadsleven samenkomen — instapklaar en klaar voor de volgende bewoners.

Lees meer

Kenmerken

Overdracht

Prijs per m2
€ 2.990
Aangeboden sinds
20 februari 2026
Status
Verkocht onder voorbehoud
Aanvaarding
In overleg

Bouw

Soort woonhuis
Eengezinswoning, geschakelde woning
Soort bouw
Bestaande bouw
Bouwjaar
2006
Soort dak
Plat dak
Staat van onderhouden binnen
Uitstekend
Staat van onderhouden buiten
Uitstekend

Oppervlakte en inhoud

Perceeloppervlakte
112 m2
Inhoud van de woning
736 m3
Oppervlakte externe bergruimte
5 m2

Indeling

Aantal kamers
7
Aantal slaapkamers
6
Aantal woonlagen
5
Voorzieningen
Tuin, ventilatie, fransbalkon

Buitenruimte

Balkon
Nee
Schuur/berging
Nee

Maandlasten berekenen

De maandlasten voor je woning bestaan uit meer dan alleen de hypotheeklasten. Hieronder vind je een overzicht van de bijkomende kosten en lasten. Zo weet je precies wat je huis per maand gaat kosten. En met de handige vergelijkers kun je ook nog eens snel de beste deals sluiten!

  • Kaart
  • Streetview