Jacob Roggeveenstraat 5 5021 SH Tilburg

96m2
Wonen
4
Kamers
119m2
Perceel
1931
Bouwjaar
Instapklare en verrassende woning met energielabel A++!

Ben je op zoek naar een woning waar je zó in kunt? Dan is dit jouw kans. Deze volledig gerenoveerde woning combineert modern wooncomfort met een verrassende indeling en een hoog afwerkingsniveau.

Bij binnenkomst valt direct de ruime en frisse uitstraling op. Deze uitgebouwde woning is met zorg en oog voor detail vernieuwd, waardoor je geniet van een eigentijdse sfeer en optimaal wooncomfort. Dankzij de complete renovatie hoef je hier niets meer te doen: verhuizen en wonen maar!

Na binnenkomst in de gezellige huiskamer valt je oog gelijk op de luxe keuken met kookeiland, volledig uitgerust en een echte eyecatcher voor kookliefhebbers en gezellige avonden. Daarnaast is er beneden een ruime en luxe badkamer gerealiseerd, afgewerkt met moderne materialen en voorzien van alle comfort. Het aparte toilet zorgt voor extra gemak in het dagelijks gebruik.

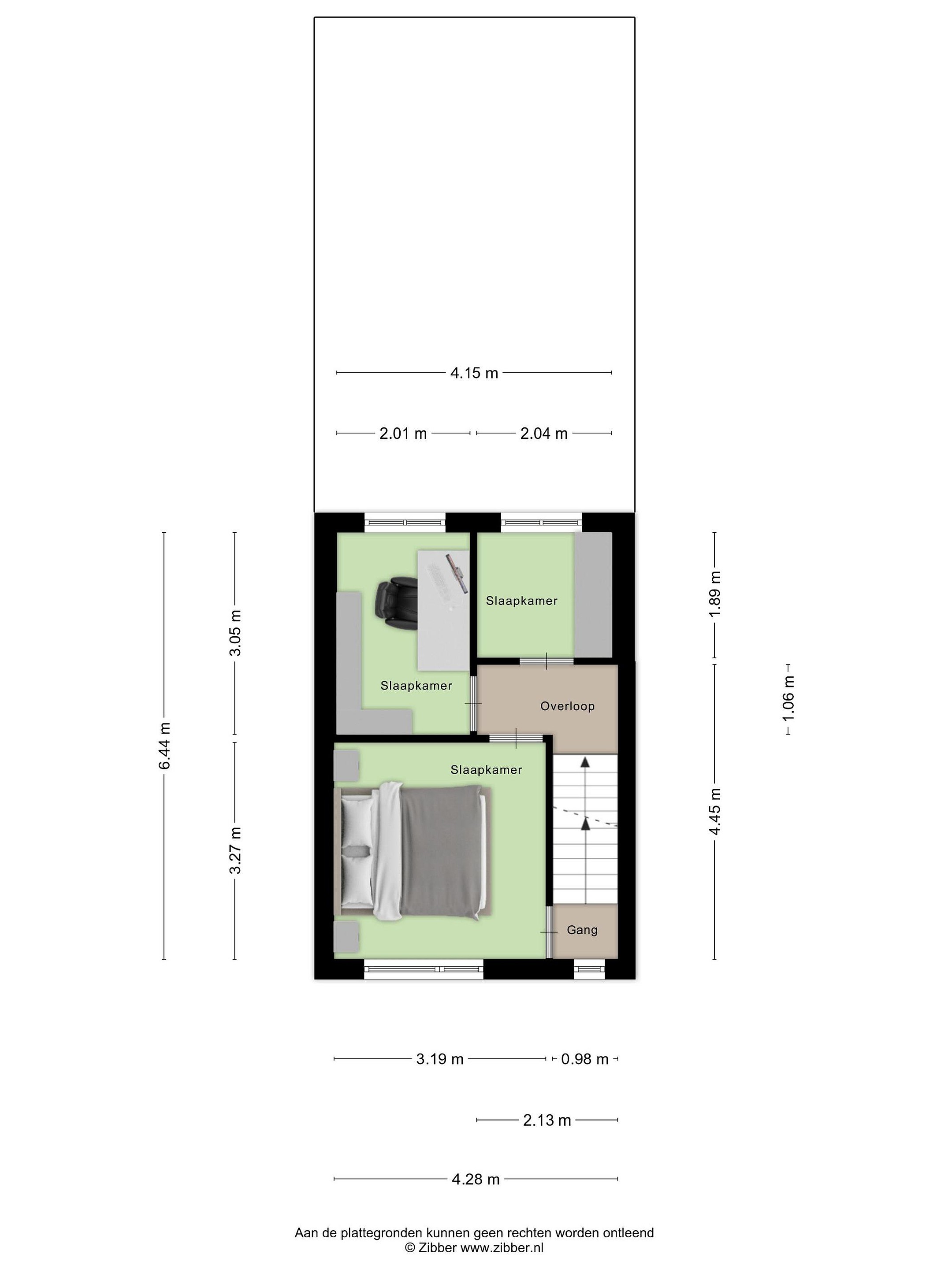
Met drie slaapkamers biedt de woning volop ruimte voor een gezin, thuiswerkplek of hobbyruimte. Daarnaast is er een zolder met de mogelijkheid tot het realiseren van een extra kamer, ideaal voor wie nog meer ruimte wenst.

De indeling is verrassend en praktisch, met comfortabele leefruimtes en een moderne afwerking die direct een gevoel van thuis geeft.

Met een energielabel A++ is de woning bovendien helemaal klaar voor de toekomst. De aanwezigheid van maar liefst 13 zonnepanelen, een warmtepomp en vloerverwarming zorgen voor een duurzame en energiezuinige leefomgeving met lage maandlasten en optimaal comfort.
Kortom: een instapklare, volledig gerenoveerde en verrassende woning waar je je direct thuis zult voelen.

Pluspunten:
- Volledig gerenoveerd
- Instapklaar
- Energielabel A++
- Luxe keuken met kookeiland
- Ruime luxe badkamer
- Apart toilet
- 3 slaapkamers
- Mogelijkheid tot extra kamer op zolder
- 13 zonnepanelen
- Warmtepomp en vloerverwarming
- Verrassende indeling
- Moderne afwerking
- Duurzaam en toekomstbestendig

Plan snel een bezichtiging en laat je verrassen door deze unieke woning!
Lees meer

Kenmerken

Overdracht

Prijs per m2
€ 4.271
Aangeboden sinds
24 april 2026
Status
Beschikbaar
Aanvaarding
In overleg

Bouw

Soort woonhuis
Eengezinswoning
Soort bouw
Bestaande bouw
Bouwjaar
1931
Staat van onderhouden binnen
Uitstekend
Staat van onderhouden buiten
Uitstekend

Oppervlakte en inhoud

Perceeloppervlakte
119 m2
Inhoud van de woning
341 m3
Oppervlakte externe bergruimte
9 m2

Indeling

Aantal kamers
4
Aantal slaapkamers
3
Aantal woonlagen
3
Voorzieningen
Tuin

Buitenruimte

Balkon
Nee
Schuur/berging
Nee

Maandlasten berekenen

De maandlasten voor je woning bestaan uit meer dan alleen de hypotheeklasten. Hieronder vind je een overzicht van de bijkomende kosten en lasten. Zo weet je precies wat je huis per maand gaat kosten. En met de handige vergelijkers kun je ook nog eens snel de beste deals sluiten!

  • Kaart
  • Streetview