Waterlanden 55 4533 JT Terneuzen

121m2
Wonen
5
Kamers
134m2
Perceel
2020
Bouwjaar
Bieden vanaf 405.000 euro: Waterlanden 55 – instapklaar, energiezuinig en tot in detail afgewerkt.

In de populaire wijk Othene ligt deze moderne eengezinswoning uit 2020. Een woning die rust en eenheid uitstraalt, met oog voor detail gebouwd en volledig klaar voor de toekomst. Hier woon je comfortabel, duurzaam en zonder zorgen.

De woning heeft energielabel A, is aardgasvrij en voorzien van een warmtepomp, vloerverwarming en zonnepanelen. Er zijn vier slaapkamers verdeeld over drie verdiepingen.
Begane grond
De woonkamer is ruim en licht met een open keuken aan de voorzijde, uitgevoerd met een inductiekookplaat, oven, afzuigkap, vaatwasser en koelkast. De begane grond is volledig voorzien van vloerverwarming. Aan de achterzijde stap je via dubbele tuindeuren de serre in: een fijne verlenging van de woonkamer met glazen schuifdeuren en elektrisch zonnescherm. De serre is recent voorzien van een nieuwe keramische tegelvloer die volledig doorloopt vanuit de woonkamer — een hoogwaardige afwerking die rust en eenheid creëert.

Eerste verdieping

Op de eerste verdieping bevinden zich twee ruime slaapkamers, een moderne badkamer met inloopdouche, tweede toilet en vloerverwarming, en een praktische wasruimte.

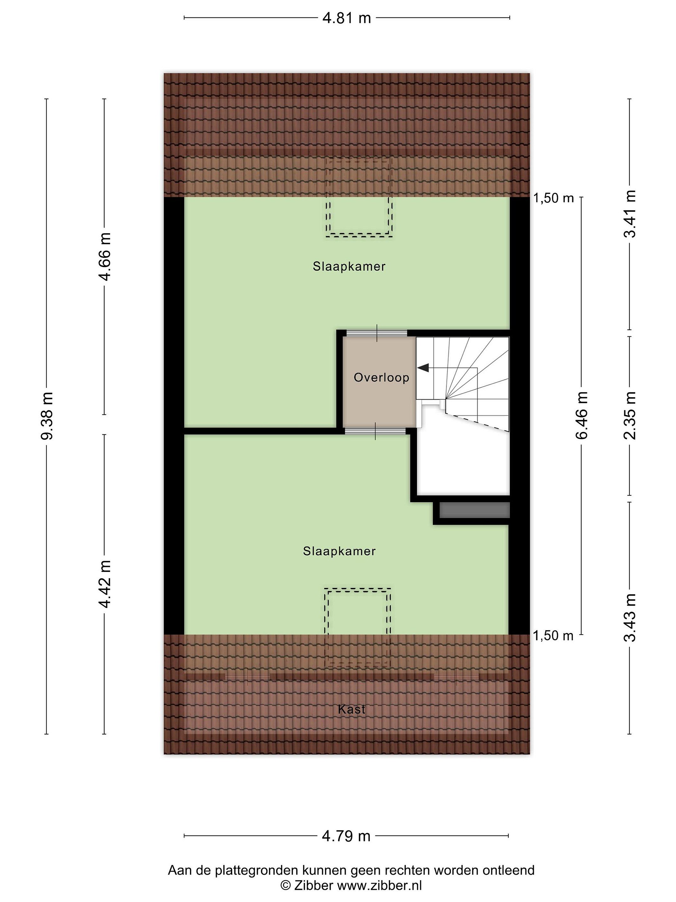
Tweede verdieping
De tweede verdieping biedt nog eens twee kamers die ideaal zijn als werkruimte, hobbykamer of logeerkamer.

Tuin
De tuin is onderhoudsarm aangelegd en ligt gunstig op het westen, waardoor je tot laat van de zon kunt genieten. De huidige bewoners hebben hier een grote buitenkeuken met bar gerealiseerd – een heerlijke plek om te koken, borrelen en samen te komen.


Details
Waterlanden 55 ligt in Othene, de jongste wijk van Terneuzen. Een kindvriendelijke omgeving met basisschool, supermarkt, sportfaciliteiten en het Scheldestrandje op korte afstand. Het centrum van Terneuzen en de uitvalswegen richting Hulst, Goes en België zijn uitstekend bereikbaar.
Deze woning is volledig geïsoleerd, aardgasvrij en voorzien van duurzame installaties. Een ideale keuze voor wie comfort wil combineren met lage energielasten en toekomstbestendig wonen.

Bij Harpe Makelaardij draait het om meer dan alleen stenen. We presenteren elke woning met zorg, aandacht en een aanpak die resultaat oplevert. Van huis naar thuis – dát is Harpe Makelaardij.

Lees meer

Kenmerken

Overdracht

Prijs per m2
€ 3.344
Aangeboden sinds
13 oktober 2025
Status
Beschikbaar
Aanvaarding
In overleg

Bouw

Soort woonhuis
Eengezinswoning, tussen woning
Soort bouw
Bestaande bouw
Bouwjaar
2020
Soort dak
Zadeldak
Staat van onderhouden binnen
Uitstekend
Staat van onderhouden buiten
Uitstekend

Oppervlakte en inhoud

Perceeloppervlakte
134 m2
Inhoud van de woning
455 m3
Oppervlakte externe bergruimte
5 m2
Oppervlakte gebouwgebonden buitenruimten
14 m2

Indeling

Aantal kamers
5
Aantal slaapkamers
4
Aantal woonlagen
3
Voorzieningen
Tuin, ventilatie, rolluiken, kabel-tv, schuifpui, dakraam

Buitenruimte

Balkon
Nee
Schuur/berging
Nee

Maandlasten berekenen

De maandlasten voor je woning bestaan uit meer dan alleen de hypotheeklasten. Hieronder vind je een overzicht van de bijkomende kosten en lasten. Zo weet je precies wat je huis per maand gaat kosten. En met de handige vergelijkers kun je ook nog eens snel de beste deals sluiten!

  • Kaart
  • Streetview