Margrietstraat 27 4532 BJ Terneuzen

85m2
Wonen
4
Kamers
165m2
Perceel
1948
Bouwjaar
Welkom in het geliefde Oranjekwartier! Deze fijne gezinswoning ligt op een toplocatie in Terneuzen, op loopafstand van de Prins Willem van Oranjeschool en direct bij speeltuin Het Oranjekwartier. Een rustige, kindvriendelijke buurt waar buren elkaar nog kennen en kinderen veilig buiten spelen.

Wat maakt deze woning interessant?

- Gelegen in de populairste woonwijk van Terneuzen
- Recent al deels verduurzaamd
- Strakke prijsstelling
- Ideale gezinswoning met volop potentie

De huidige eigenaar heeft al mooie stappen gezet richting verduurzaming. Zo is de woning voorzien van:

- Cv-ketel (2020)
- Dakisolatie
- Overal dubbel glas
- Kunststof kozijnen op de eerste verdieping
- In april wordt er nog spouwmuurisolatie aangebracht
Het energielabel wordt opgesteld nadat de spouwmuurisolatie is uitgevoerd – een mooie extra upgrade dus.

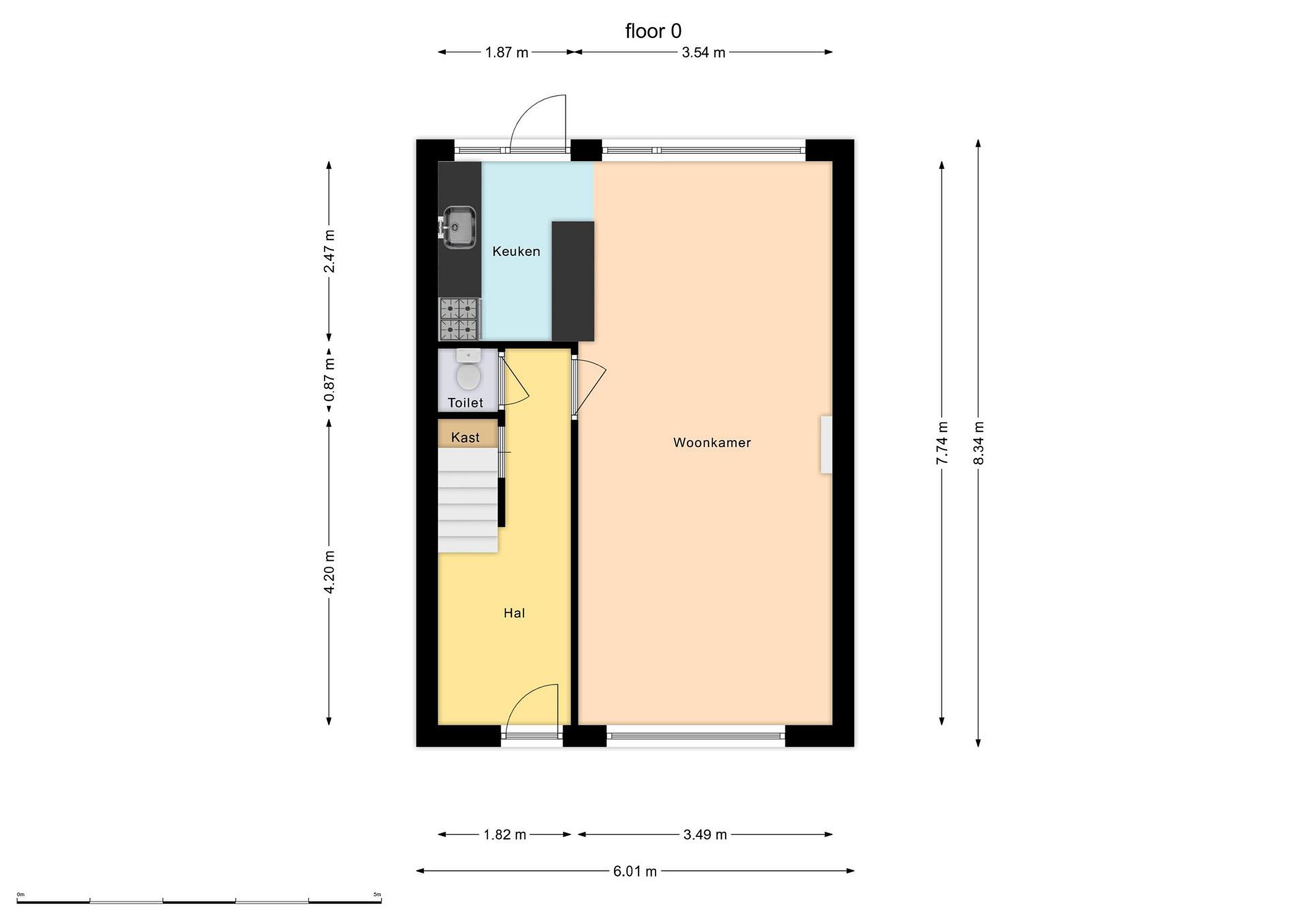
Binnen tref je een keurige, eenvoudige keuken die netjes onderhouden is, de woonkamer is ruim. De badkamer en het toilet zijn gedateerd, maar functioneel – een mooie kans om dit naar eigen smaak te moderniseren. De slaapkamers op de eerste verdieping zijn recent opnieuw gestuct en ogen fris en strak.

Wonen in Terneuzen

Terneuzen is dé centrumstad van Zeeuws-Vlaanderen: met een goede horeca, sportvoorzieningen, scholen en een uitstekende bereikbaarheid richting de Westerscheldetunnel, België en de kust. Hier woon je rustig, maar met alles binnen handbereik.

De Margrietstraat ligt in een wijk die al jaren populair is – en dat is niet voor niets. Rust, ruimte, voorzieningen én een fijne sfeer komen hier samen.

Voor wie is dit dé kans?

Voor starters, jonge gezinnen of handige kopers die hun eigen stempel willen drukken. De basis is goed, de locatie is top en de prijs is aantrekkelijk.

Zoek je een woning in een gewilde buurt van Terneuzen waar je direct in kunt én nog kunt verbeteren naar eigen smaak? Dan is Margrietstraat 27 absoluut een bezichtiging waard.

Dit soort woningen in deze buurt zijn altijd snel weg.

De WoonClub
De Makelaar van Zeeuws Vlaanderen

Lees meer

Kenmerken

Overdracht

Prijs per m2
€ 2.929
Aangeboden sinds
16 februari 2026
Status
Beschikbaar
Aanvaarding
In overleg

Bouw

Soort woonhuis
Eengezinswoning, tussen woning
Soort bouw
Bestaande bouw
Bouwjaar
1948
Soort dak
Zadeldak
Staat van onderhouden binnen
Goed
Staat van onderhouden buiten
Goed

Oppervlakte en inhoud

Perceeloppervlakte
165 m2
Inhoud van de woning
340 m3
Oppervlakte externe bergruimte
7 m2

Indeling

Aantal kamers
4
Aantal slaapkamers
3
Aantal woonlagen
3
Voorzieningen
Tuin, schuur/berging

Buitenruimte

Balkon
Nee
Schuur/berging
Ja

Maandlasten berekenen

De maandlasten voor je woning bestaan uit meer dan alleen de hypotheeklasten. Hieronder vind je een overzicht van de bijkomende kosten en lasten. Zo weet je precies wat je huis per maand gaat kosten. En met de handige vergelijkers kun je ook nog eens snel de beste deals sluiten!

  • Kaart
  • Streetview