Verkocht OV

Axelsestraat 131 4537 AG Terneuzen

79m2
Wonen
4
Kamers
156m2
Perceel
1932
Bouwjaar
Charmante jaren ’30 woning met erker, groot souterrain en garage – dak vernieuwd in 2023

Zoek je karakter, praktische ruimte én een degelijk vernieuwd dak? Dan is Axelsestraat 131 absoluut een bezichtiging waard.
Deze charmante jaren ’30 woning beschikt over 79 m2 woonoppervlakte en biedt daarnaast circa 35 m2 extra ruimte in het souterrain.

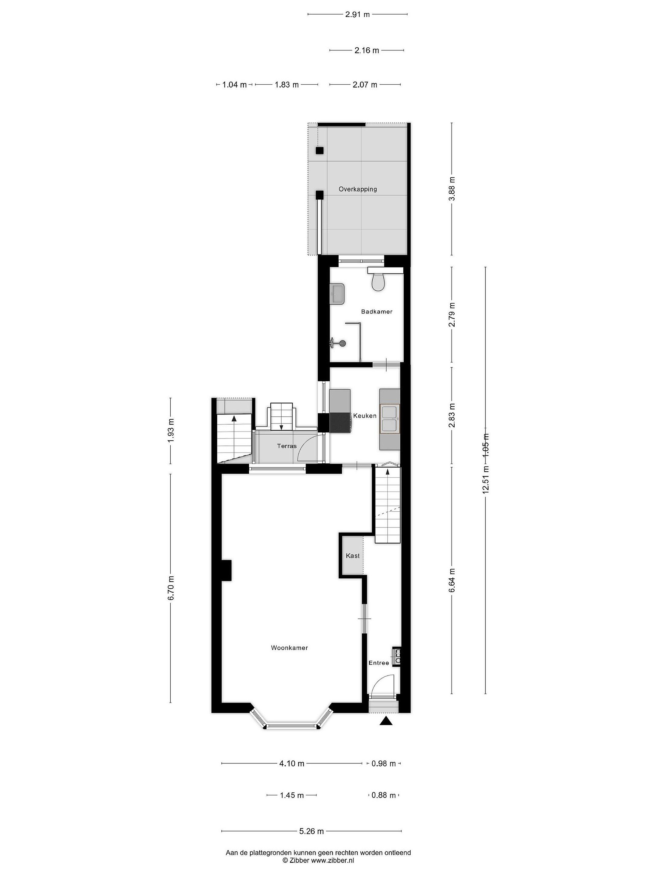
Begane grond
Binnenkomst in de hal met trapopgang. De woonkamer heeft een prachtige, karakteristieke erker aan de voorzijde die direct sfeer geeft. Veel lichtinval en die typische jaren ’30 uitstraling.
De keuken sluit direct aan op de woonkamer, wat zorgt voor een prettige, open verbinding tussen koken en leven. Aansluitend bevindt zich de badkamer met douche, toilet en wastafel.

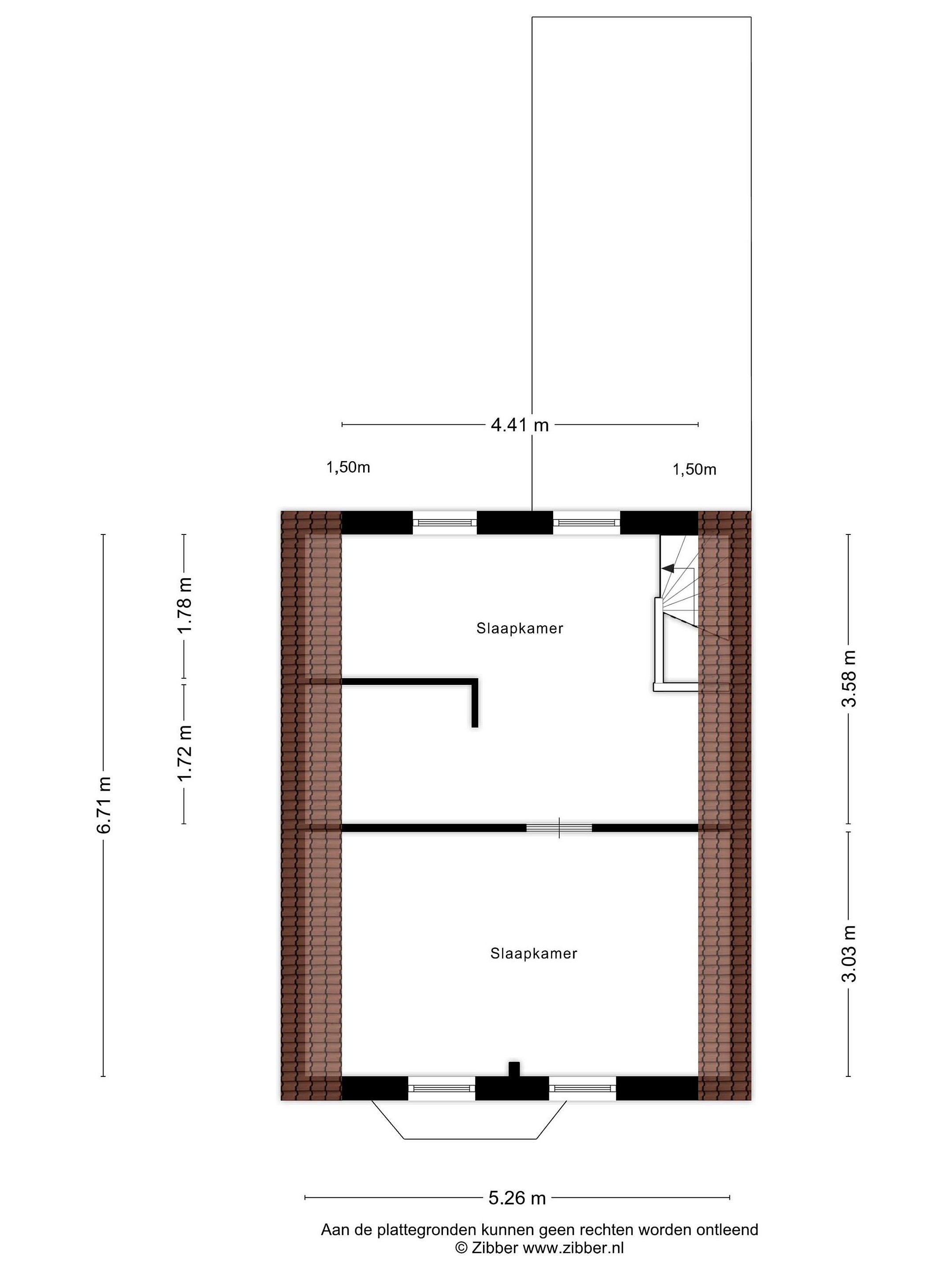
Eerste verdieping
Op de eerste verdieping zijn twee slaapkamers aanwezig. Praktisch ingedeeld en goed te gebruiken als slaap-, werk- of kinderkamer.

Tuin
De tuin ligt op het zuidwesten, waardoor je hier volop van de middag- en avondzon kunt genieten. Er is een overkapping aanwezig, zodat je ook bij minder weer comfortabel buiten zit.
Achterin de tuin staat een garage van circa 2,90 meter breed en 3 meter diep. Deze is bereikbaar via de brandgang, welke ook toegankelijk is voor een auto. Dat maakt parkeren of het stallen van bijvoorbeeld een motor of fietsen extra praktisch.

Details
– Per direct beschikbaar
– Dak volledig vernieuwd in 2023
– Alle documentatie van de dakrenovatie aanwezig
– 79 m2 woonoppervlakte
– Circa 35 m2 extra ruimte in het souterrain
– Perceel 156 m2
– Tuin op het zuidwesten
– Karakteristieke erker (jaren ’30 stijl)
– Garage bereikbaar via auto-toegankelijke brandgang
– Overkapping in de tuin

Een woning met karakter, veel praktische ruimte en een belangrijke investering die al is gedaan: het dak. Dat maakt dit een interessante kans voor wie sfeer zoekt en verder naar eigen smaak wil moderniseren.

Nieuwsgierig? Ik laat je de woning graag persoonlijk zien.

Lees meer

Kenmerken

Overdracht

Prijs per m2
€ 2.519
Aangeboden sinds
4 maart 2026
Status
Verkocht onder voorbehoud
Aanvaarding
In overleg

Bouw

Soort woonhuis
Eengezinswoning, tussen woning
Soort bouw
Bestaande bouw
Bouwjaar
1932
Soort dak
Zadeldak
Staat van onderhouden binnen
Goed
Staat van onderhouden buiten
Goed

Oppervlakte en inhoud

Perceeloppervlakte
156 m2
Inhoud van de woning
404 m3
Oppervlakte externe bergruimte
8 m2
Oppervlakte gebouwgebonden buitenruimten
15 m2
Oppervlakte overige inpandige ruimten
35 m2

Indeling

Aantal kamers
4
Aantal slaapkamers
3
Aantal woonlagen
3
Voorzieningen
Tuin, kabel-tv

Buitenruimte

Balkon
Nee
Schuur/berging
Nee

Maandlasten berekenen

De maandlasten voor je woning bestaan uit meer dan alleen de hypotheeklasten. Hieronder vind je een overzicht van de bijkomende kosten en lasten. Zo weet je precies wat je huis per maand gaat kosten. En met de handige vergelijkers kun je ook nog eens snel de beste deals sluiten!

  • Kaart
  • Streetview