Verkocht OV

Vlasweel 64 4844 TH Terheijden

162m2
Wonen
6
Kamers
299m2
Perceel
1980
Bouwjaar
Ruime gezinswoning met garage, vijf slaapkamers, balkon en paradijselijke tuin. Zeer rustige gelegen aan het dorpspark op een perceel van 299 m2 grond en een woonoppervlakte van maar liefst 162 m2.

WELKOM THUIS!
Sommige huizen voelen meteen goed.
Zodra je binnenkomt in de Vlasweel 64 in Terheijden merk je het: licht, ruimte, rust. Dit huis combineert het allemaal. Een ruime woonkamer met sfeervolle details, een keuken waar je met plezier kookt, vijf slaapkamers, een balkon met uitzicht dat nooit verveelt en een tuin die voelt als je eigen privépark.
Hier leef je binnen én buiten even prettig.

HEB JE INTERESSE IN DEZE WONING?
Aarzel niet langer en maak een afspraak voor een bezichtiging. Dit is een unieke kans om je droom waar te maken!
Bel voor een vrijblijvende afspraak 076-593 3134. We geven graag de mogelijkheden door.
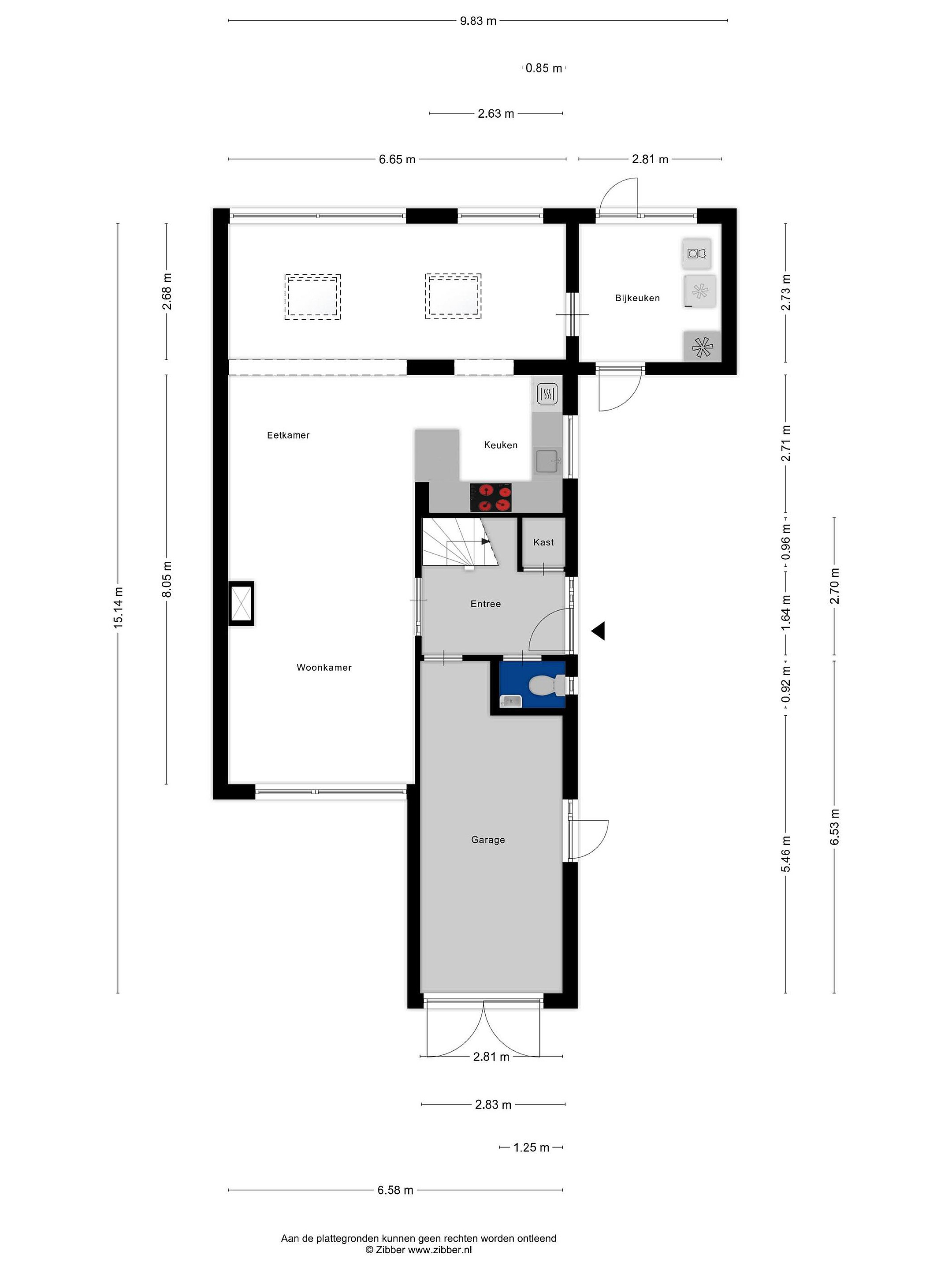
Begane grond
ENTREE EN HAL
Je stapt binnen in een brede, lichte hal. De houten trap trekt meteen de aandacht. Links de meterkast met veel bergruimte, recht vooruit het toilet:
TOILET: deze is volledig betegeld, met hoekfontein en planchet.
Onder de trap een praktische garderobehoek.
Vanuit de hal heb je ook toegang tot de garage.
WOONKAMER EN EETGEDEELTE
De woonkamer is royaal en voelt warm aan door de tegelvloer, voorzien van vloerverwarming, het balkenplafond en de gashaard in de zithoek. Grote ramen laten zorgen voor veel daglicht en een fijne woonbeleving.
De aanbouw geeft extra leefruimte: een plek voor een werkhoek of leeshoek, met twee schuine dakramen waardoor het licht mooi verspreid binnenvalt. Ingebouwde spots zorgen ’s avonds voor sfeervolle verlichting.
Vanuit de eethoek loop je via de schuifpui zo de tuin in.
KEUKEN
De keuken is nog maar vijf jaar oud en heeft een warme houtlook met een strak composiet werkblad. Hier vind je alles wat je nodig hebt: een inductiekookplaat met geïntegreerde afzuiging (Bora), combimagnetron, heteluchtoven, koelkast, vaatwasser en Quooker. Er is een inbouwboiler voor direct warm water. Het werkblad is ruim, de kastruimte royaal, en het grote raam geeft fijn uitzicht tijdens het koken.
BIJKEUKEN
Aangrenzend aan de woonkamer ligt de bijkeuken. Met een deur naar de oprit en een deur naar de achtertuin. Er zijn aansluitingen voor wasmachine en droger, en ruimte voor een extra koelkast.

Eerste verdieping
EERSTE VERDIEPING
De overloop is ruim en licht mede dankzij een raam.
Er zijn drie slaapkamers:
SLAAPKAMER 1 (achterzijde): knus en rustig, vloerbedekking, deels behang en deels sierpleister.
SLAAPKAMER 2 (achterzijde): met laminaatvloer, deels behang, deels sierpleister, en een balkondeur naar een beschut balkon. Hier geniet je in alle rust van het uitzicht over groen, vijver en natuur – in de zomer omsloten door bladeren, in de winter open tot aan het water.
SLAAPKAMER 3 (voorzijde): royale kamer met laminaatvloer, vaste wastafel, uitzicht op een rustige straat met slootje en bomen.
BADKAMER: volledig betegeld, groot Velux dakraam, douche, ligbad, wastafelmeubel, hangtoilet en handdoekradiator. Elektrische vloerverwarming aanwezig (nu afgekoppeld, maar eenvoudig weer aan te sluiten).

Tweede verdieping
TWEEDE VERDIEPING
Via een vaste trap kom je op de tweede verdieping.
OVERLOOP: Op de overloop vind je bergruimte, de cv-ketel (Intergas HR Eco 2024) en de omvormer voor de 6 zonnepanelen.
Een diepe bergkast zorgt voor extra opbergruimte.
Er zijn twee slaapkamers:
SLAAPKAMER 4 heeft een dakkapel en uitzicht op de voorzijde van de woning
SLAAPKAMER 5 heeft (ook) een dakkapel met uitzicht op de achterzijde van de woning.
Achter de knieschotten is extra bergruimte.

Tuin
ACHTERTUIN
De achtertuin is een bloemrijk paradijs. Meerdere zitplekken in zon en schaduw, altijd beschut en privé.
Perfect onderhouden, vol kleur en groen, een plek waar je ’s morgens met een kop koffie begint en ’s avonds met een glas wijn eindigt.

Details
PLUSPUNTEN OP EEN RIJ
5 slaapkamers
Balkon met uitzicht op groen en water
Vloerverwarming in de woonkamer
Elektrische vloerverwarming in de badkamer (eenvoudig te herstellen)
6 zonnepanelen
Garage met bergzolder
Cv-ketel Intergas HR Eco (2024)
Geïsoleerd
Beschutte, groene achtertuin

TERHEIJDEN EN OMGEVING
Naast deze bijzonderheden en fantastische ligging van deze gezellige woning vind je in Terheijden, voor zowel jong als oud, goede winkel- en verzorgingsfaciliteiten, drie basisscholen, het openlucht zwembad, horecagelegenheden, een jachthaven (met fietspontje), meerdere sport- en recreatiemogelijkheden en wandel- en fietsmogelijkheden langs de Mark, de Schans, door het polderlandschap of de nabij gelegen bossen.
Bovendien zijn zowel de bourgondische stad Breda als Oosterhout binnen ‘handbereik’, waardoor je kunt genieten van het beste van twee werelden: rustig en comfortabel wonen in een landelijke omgeving met alle gemakken van de stad binnen handbereik. Wil je het verderop zoeken dan liggen de A59, A16 en de A27 slecht op enkele autominuten afstand van de woning.

HEB JE INTERESSE IN DEZE WONING?
Aarzel niet langer en maak een afspraak voor een bezichtiging. Dit is een unieke kans om je droom waar te maken!
Bel voor een vrijblijvende afspraak 076-593 3134. We geven graag de mogelijkheden door.

ALGEMEEN
- Bij een verkoop wordt als basis gebruik gemaakt van het model van de VBO koopovereenkomst, vastgesteld door de Nederlandse brancheorganisatie voor makelaars, de NVM en Vereniging Eigen Huis.
- In deze koopovereenkomst wordt standaard de verplichting tot het storten van een waarborgsom of het stellen van een bankgarantie door de koper ter grootte van 10% van de koopsom opgenomen.
- Een koopovereenkomst komt uitsluitend tot stand onder de opschortende voorwaarde dat zowel verkoper als koper de koopovereenkomst ondertekenen. Partijen kunnen derhalve noch aan een mondelinge overeenkomst, noch aan een schriftelijke bevestiging daarvan, rechten ontlenen.
- Deze vrijblijvende informatie is door Reimus Makelaardij met de nodige zorgvuldigheid samengesteld. Alle opgegeven maten en oppervlakten zijn indicatief en kunnen desgewenst door koper worden gecontroleerd.
- Afhankelijk van het bouwjaar wordt een koopovereenkomst, welke gehanteerd wordt door Reimus Makelaardij, standaard voorzien van een asbestclausule en ouderdomsclausule c.q. ‘as is where is’ clausule.
- Reimus Makelaardij wijst hiermee koper, in het kader van zijn onderzoeksplicht, op de mogelijkheid van het laten uitvoeren van een bouwkundige keuring en/of het inschakelen van een aankoopmakelaar.
- Door Reimus Makelaardij wordt geen enkele aansprakelijkheid aanvaard voor enige onvolledigheid, onjuistheid w.o. tekeningen, jaartallen, schaalaanduidingen oppervlaktematen of anderszins, dan wel de gevolgen daarvan.


Lees meer

Kenmerken

Overdracht

Prijs per m2
€ 3.796
Aangeboden sinds
31 augustus 2025
Status
Verkocht onder voorbehoud
Aanvaarding
In overleg

Bouw

Soort woonhuis
Eengezinswoning, twee-onder-een-kap woning
Soort bouw
Bestaande bouw
Bouwjaar
1980
Soort dak
Zadeldak
Staat van onderhouden binnen
Uitstekend
Staat van onderhouden buiten
Uitstekend

Oppervlakte en inhoud

Perceeloppervlakte
299 m2
Inhoud van de woning
634 m3
Oppervlakte externe bergruimte
7 m2
Oppervlakte gebouwgebonden buitenruimten
3 m2
Oppervlakte overige inpandige ruimten
16 m2

Indeling

Aantal kamers
6
Aantal slaapkamers
5
Aantal woonlagen
3
Voorzieningen
Tuin, ventilatie

Buitenruimte

Balkon
Nee
Schuur/berging
Nee

Maandlasten berekenen

De maandlasten voor je woning bestaan uit meer dan alleen de hypotheeklasten. Hieronder vind je een overzicht van de bijkomende kosten en lasten. Zo weet je precies wat je huis per maand gaat kosten. En met de handige vergelijkers kun je ook nog eens snel de beste deals sluiten!

  • Kaart
  • Streetview