Verkocht

Markstraat 27 4844 CN Terheijden

95m2
Wonen
3
Kamers
150m2
Perceel
1880
Bouwjaar
Karakter, sfeer en comfort op loopafstand van het centrum.
Op een prachtige locatie, vlak bij het centrum van Terheijden, staat deze uitgebouwde, halfvrijstaande woning uit 1880. Het huis ademt karakter dankzij authentieke details zoals een klokgevel met daklijst, muurankers, een levensboom in het bovenlicht van de voordeur, originele mozaïektegels in de hal, paneeldeuren, balkenplafonds en glas-in-loodramen. Een sfeervol geheel dat klassieke charme combineert met hedendaags wooncomfort.
De woning heeft een woonoppervlakte van circa 75 m2 en staat op een perceel van 150 m2.

VOLDOET DEZE WONING AAN JOUW WOONWENSEN?
Bel dan voor een vrijblijvende afspraak 06-51379713. We geven graag de mogelijkheden door.
Begane grond
HAL/ENTREE
Via de voordeur kom je in de hal met originele mozaïektegelvloer, meterkast, radiatorombouw en trapopgang naar de eerste verdieping. Vanuit de hal bereik je de woon- en eetkamer.
WOONKAMER
De woonkamer bestaat uit een voor- en achterkamer, gescheiden door een gemetselde boog met vaste kast. De voorkamer is in gebruik als zitgedeelte en de achterkamer als eetkamer. Beide ruimtes hebben een laminaatvloer, spachtelputz wandafwerking en een sfeervol balkenplafond. De eetkamer beschikt bovendien over een gezellige houtkachel en biedt uitzicht op de achtertuin. Vanuit hier is de keuken bereikbaar.
KEUKEN
De nostalgisch ingerichte keuken in rechte opstelling is voorzien van onder-, bovenkasten en lades, een keramische spoelbak, vaatwasser, inductiekookplaat, combi-oven en geïntegreerde afzuigkap. Vanuit de keuken is er toegang tot een portaal.
PORTAAL
Het portaal geeft toegang tot de tuin en de badkamer.
BADKAMER
De badkamer is geheel betegeld en uitgerust met een douchecabine, wastafelmeubel, spiegelkast, wandcloset, handdoekradiator, mechanische ventilatie en een raam voor daglicht en natuurlijke ventilatie.

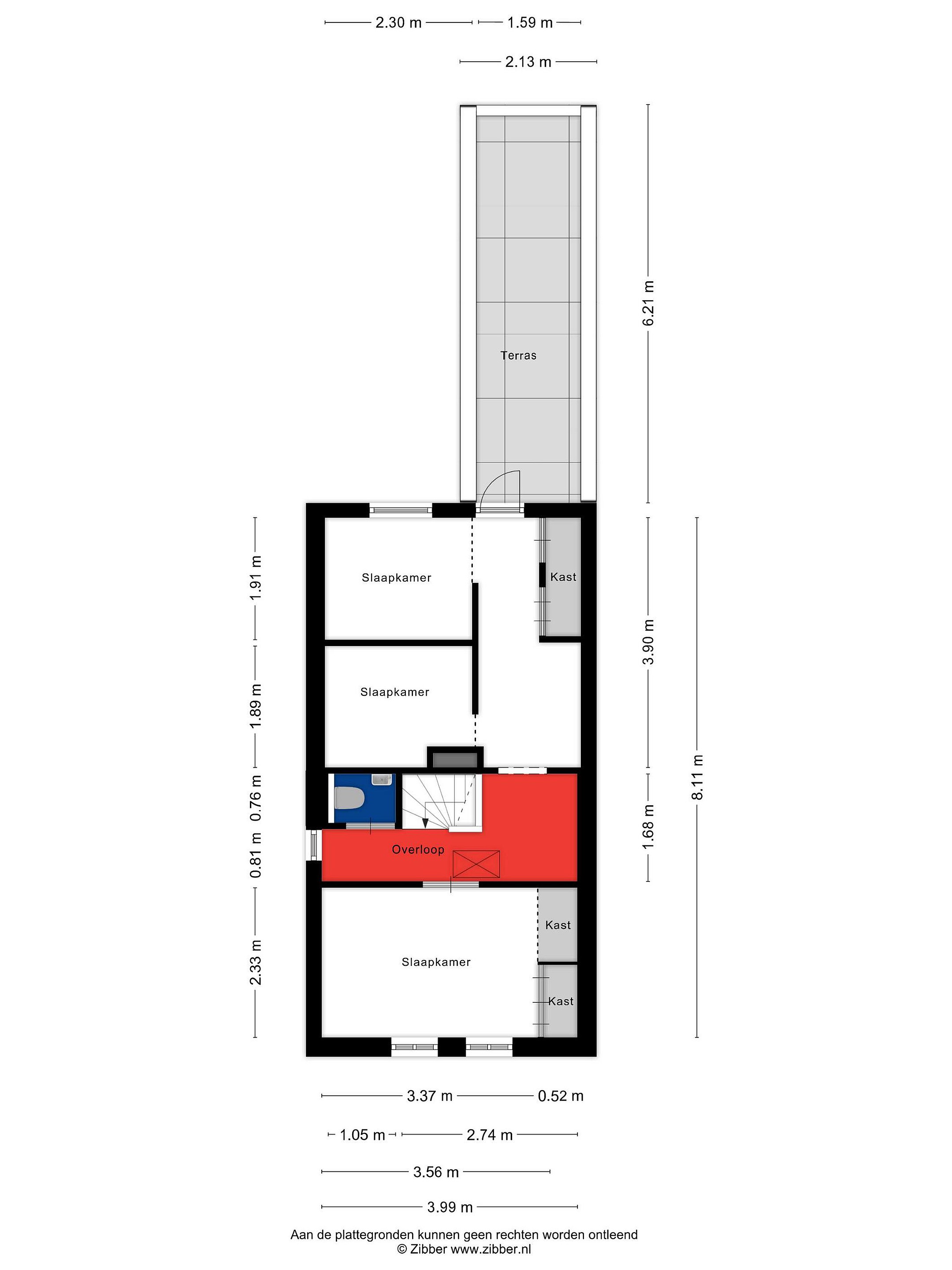
Eerste verdieping
De verdieping is voorzien van vloerbedekking en biedt via de overloop toegang tot twee slaapkamers, een toiletruimte en het dakterras.
Op de overloop bevindt zich tevens een vaste kast en een luik naar de bergzolder.
- SLAAPKAMER 1 (voorzijde): ruime ouderslaapkamer met vaste kast.
- SLAAPKAMER 2 (achterzijde): heeft momenteel een tussenwand en biedt uitzicht op de achtertuin.
TOILETRUIMTE: modern, deels betegeld, met wandcloset en fonteintje.
DAKTERRAS: bereikbaar via de overloop, een fijne plek om in privacy van de zon te genieten.

Tweede verdieping
De bergzolder is bereikbaar via een luik met losse trap en biedt extra opbergruimte.

Tuin
De woning beschikt over een sfeervolle achtertuin, bereikbaar via een poort naast de woning of via het portaal. De tuin is compact en onderhoudsvriendelijk, met een terras, gazon en gemetselde borders met vaste beplanting. Vanuit het terras bereik je via een houten luik een handige kelderruimte.
Achter in de tuin staan een stenen berging en een overkapping met houten balken, golfplaten dak en elektra; ideaal voor opslag of een gezellige zitplek.
De berging is voorzien van aansluitingen voor wasapparatuur, een uitstortgootsteen en een vaste kast aan de buitenzijde. Achter in de tuin bevindt zich tevens een houtopslag.

Details
WAAROM MARKSTRAAT 27?
Markstraat 27 is een charmante, goed onderhouden woning met karakter, sfeer en een verrassend praktische indeling. Een ideale plek voor wie houdt van authentieke details en een warme, dorpse woonomgeving, mét alle voorzieningen op loopafstand.

HIGHLIGHTS OP EEN RIJ:
- Karakteristieke half vrijstaande woning uit 1880
- Diverse authentieke details
- Woonoppervlak: circa 75 m2 | perceel 150 m2
- Woonkamer en eetkamer met laminaatvloer en houtkachel
- Keuken met nostalgische keukeninrichting en inbouwapparatuur
- Complete badkamer
- 2 slaapkamers
- Extra toilet op eerste verdieping
- Dakterras
- Bergzolder
- Tuin met berging, overkapping, houtopslag en achterom
- Ideaal gelegen op loopafstand van alle voorzieningen van Terheijden

BEZICHTIGING INPLANNEN?
Zie jij jezelf al wonen aan de Markstraat 27?
Bel of app ons gerust voor een afspraak via 06-5137 9713 of stuur een e-mail naar info@reimus-makelaardij.nl. We leiden je met plezier rond in deze gezellige en karakteristieke woning.

TERHEIJDEN EN OMGEVING
Terheijden is een levendig dorp met alle voorzieningen binnen handbereik: winkels, horecagelegenheden, basisscholen, een openluchtzwembad, sportverenigingen, wandel- en fietsroutes langs de Mark en de Schans en een jachthaven met fietspontje.
Daarnaast liggen Breda en Oosterhout op korte afstand, waardoor je profiteert van het beste van twee werelden: rustig en landelijk wonen met de stad binnen bereik.
De snelwegen A16, A27 en A59 zijn binnen enkele minuten bereikbaar, wat de locatie ook ideaal maakt voor forenzen.

ALGEMEEN
- Bij een verkoop wordt als basis gebruik gemaakt van het model van de Vastgoed Nederland koopovereenkomst mede vastgesteld door de Nederlandse brancheorganisatie Voor makelaars, de NVM en Vereniging Eigen Huis.
- In deze koopovereenkomst wordt standaard de verplichting tot het storten van een waarborgsom of het stellen van een bankgarantie door de koper ter grootte van 10% van de koopsom opgenomen.
- Een koopovereenkomst komt uitsluitend tot stand onder de opschortende voorwaarde dat zowel verkoper als koper de koopovereenkomst ondertekenen. Partijen kunnen derhalve noch aan een mondelinge overeenkomst, noch aan een schriftelijke bevestiging daarvan, rechten ontlenen.
- Deze vrijblijvende informatie is door Reimus Makelaardij met de nodige zorgvuldigheid samengesteld. Alle opgegeven maten en oppervlakten zijn indicatief en kunnen desgewenst door koper worden gecontroleerd.
- Afhankelijk van het bouwjaar wordt een koopovereenkomst, welke gehanteerd wordt door Reimus Makelaardij, standaard voorzien van een asbestclausule en ouderdomsclausule c.q. ‘as is where is’ clausule.
- Reimus Makelaardij wijst hiermee koper, in het kader van zijn onderzoeksplicht, op de mogelijkheid van het laten uitvoeren van een bouwkundige keuring en/of het inschakelen van een aankoopmakelaar.
- Door Reimus Makelaardij wordt geen enkele aansprakelijkheid aanvaard voor enige onvolledigheid, onjuistheid w.o. tekeningen, jaartallen, schaalaanduidingen oppervlaktematen of anderszins, dan wel de gevolgen daarvan.






Lees meer

Verkoopgeschiedenis

Aangeboden sinds
28 november 2025
Verkoopdatum
28 november 2025
Looptijd
één uur

Kenmerken

Overdracht

Prijs per m2
€ 3.421
Aangeboden sinds
28 november 2025
Status
Verkocht
Aanvaarding
In overleg

Bouw

Soort woonhuis
Eengezinswoning, half vrijstaande woning
Soort bouw
Bestaande bouw
Bouwjaar
1880
Soort dak
Zadeldak
Staat van onderhouden binnen
Uitstekend
Staat van onderhouden buiten
Uitstekend

Oppervlakte en inhoud

Perceeloppervlakte
150 m2
Inhoud van de woning
350 m3
Oppervlakte externe bergruimte
10 m2
Oppervlakte gebouwgebonden buitenruimten
8 m2

Indeling

Aantal kamers
3
Aantal slaapkamers
2
Aantal woonlagen
2
Voorzieningen
Tuin, schuur/berging

Buitenruimte

Balkon
Nee
Schuur/berging
Ja

Maandlasten berekenen

De maandlasten voor je woning bestaan uit meer dan alleen de hypotheeklasten. Hieronder vind je een overzicht van de bijkomende kosten en lasten. Zo weet je precies wat je huis per maand gaat kosten. En met de handige vergelijkers kun je ook nog eens snel de beste deals sluiten!

  • Kaart
  • Streetview