Verkocht

Lageweg 14 4844 AH Terheijden

103m2
Wonen
4
Kamers
143m2
Perceel
1934
Bouwjaar
In deze instapklare en karakteristieke twee-onder-een-kapwoning uit 1934 voel je direct de fijne sfeer bij binnenkomst. De gang ademt de charme van de jaren ’30, met een zwart-wit tegelvloer, lambrisering en originele paneeldeuren. De lichte en gezellige woonkamer is voorzien van een eikenhouten vloer en dubbele tuindeuren. Via de woonkamer kom je in de moderne keuken en daarna in de bijkeuken. Op de eerste verdieping zijn drie fraaie slaapkamers en een grote badkamer. Via een vaste trap kom je op de zolder. Alles past perfect bij de stijl van het huis. De woning heeft een woonoppervlakte van 103 m2 en staat op een perceel van143 m2.
Begane grond
WOONKAMER
De woonkamer voelt warm en knus aan met een houten vloer en een gezellige gashaard. Openslaande deuren met glas-in-loodstijl paneeltjes zorgen voor extra sfeer en leiden naar de tuin. Alle kozijnen zijn van hout en voorzien van dubbel glas. Vanuit de woonkamer is er toegang tot een ruime kelder op stahoogte, ideaal als voorraad- of bergruimte.
KEUKEN EN BIJKEUKEN
Achter de woonkamer ligt de aanbouw met de keuken en bijkeuken. De keuken heeft een zwarte tegelvloer, een mooi afgewerkt werkblad en een groot raam dat voor veel licht zorgt. In de bijkeuken zijn de aansluitingen voor wasmachine en droger en volop bergruimte. Ook vind je hier het toilet: modern, betegeld en voorzien van een fonteintje. Vanuit de bijkeuken stap je zo de tuin in.

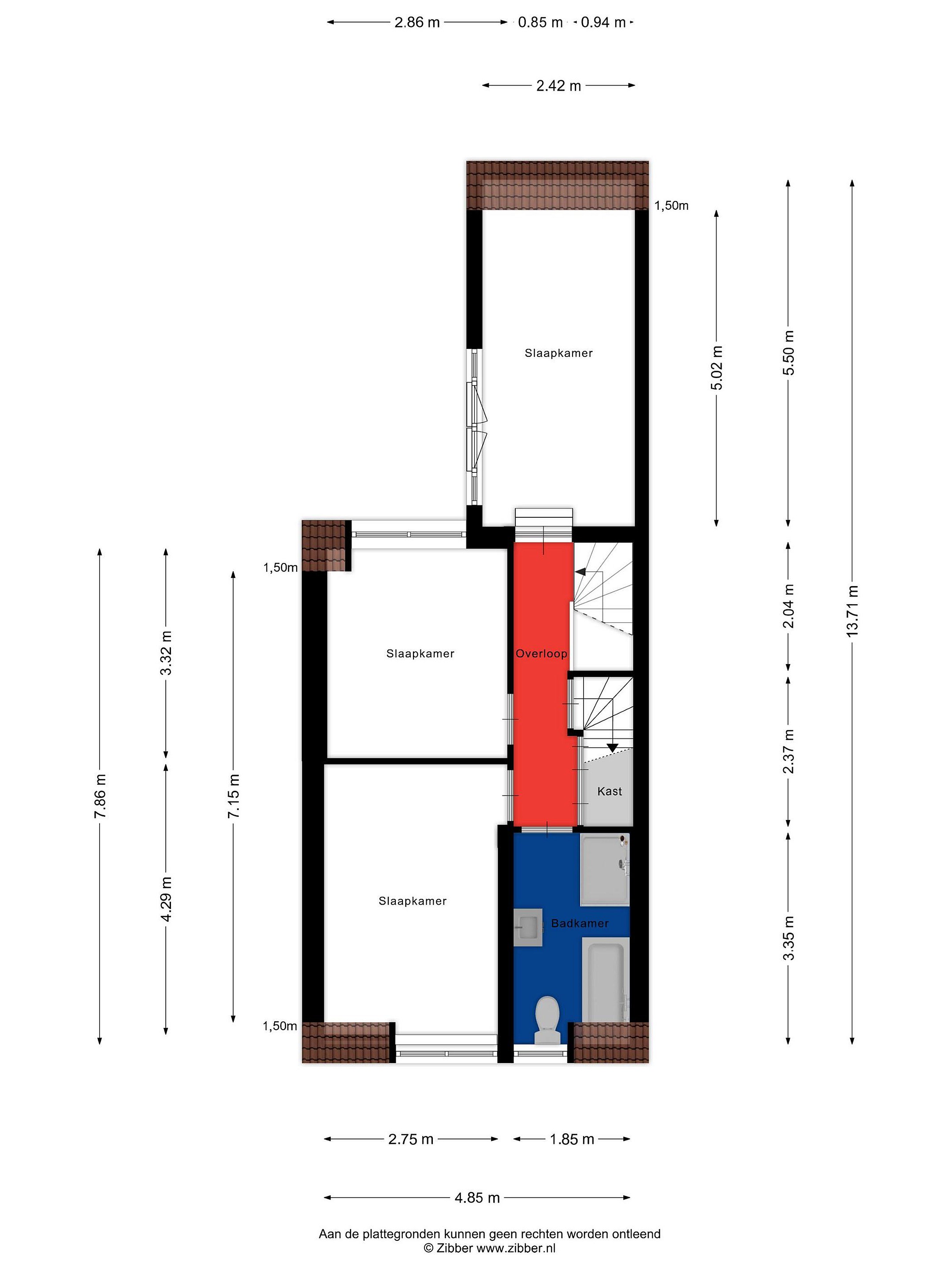
Eerste verdieping
Op de eerste verdieping ligt overal laminaat, behalve in de badkamer. Vanaf de overloop bereik je 3 slaapkamers, de badkamer en de zolderverdieping.
- SLAAPKAMER 1 (uitbouw, achterzijde): via een klein trapje ga je naar beneden en stap je de kamer met gestuukte wanden en plafondspots in. Hier zijn openslaande deuren naar binnen toe met een stijlvol hekwerk ervoor. Dit geeft het gevoel van een Frans balkon. Vanuit deze kamer kijk je uit over de tuin.
- SLAAPKAMER 2 (achterzijde): ruime kamer met houten kozijnen en draaikiepramen en uitzicht op de tuin.
- SLAAPKAMER 3 (voorzijde): grote slaapkamer met twee draaikiepramen, eveneens houten kozijnen.
- BADKAMER: modern, volledig betegeld in zwart-wit en voorzien van een ligbad, regendouche, wastafelmeubel, handdoekradiator en spots in het plafond.

De overloop heeft extra bergruimte, waaronder ingebouwde kledingkasten met onder andere een hangkast.

Tweede verdieping
ZOLDER
De zolder is bereikbaar via een vaste trap en doet nu dienst als bergzolder. Er ligt laminaat en er is een raam aanwezig. In het midden is er stahoogte van ongeveer 1,80 meter. Hier hangt een gloednieuwe cv-ketel uit september 2025. De zolder is geïsoleerd, maar nog niet afgewerkt.

Tuin
TUIN
- De tuin is in mei 2025 opnieuw aangelegd en beplant. Het is een gezellige, groene plek die perfect past bij de woning. Vanuit de openslaande deuren stap je zo de tuin in, die iets weg heeft van een stadstuin: compact, sfeervol en met veel aandacht ontworpen. Achterin is een zithoek en leilinden zorgen voor privacy. Verder is er een buitenkraan, een slim weggewerkte plek voor de kliko’s en een schuur voor fietsen en opslag. Aan de zijkant van de tuin is een poort met een pad naar de voorkant.
- Aan de voorkant van de woning ligt nog een klein tuintje met beplanting en ruimte voor een gezellig bankje. Zo geniet je ook aan de straatzijde van dit sfeervolle huis.

Details
Highlights
- Karakteristieke twee-onder-een-kapwoning uit 1934
- Woonoppervlak: 103 m2 | Perceeloppervlakte: 143 m2
- Woonkamer met houten vloer, gashaard en openslaande deuren
- Grote kelder op stahoogte
- Keuken met veel licht en praktische bijkeuken
- Modern betegeld toilet met fonteintje
- Drie ruime slaapkamers en een moderne badkamer
- Ingebouwde kledingkasten op de overloop, waaronder een hangkast
- Nieuwe cv-ketel (september 2025)
- Mogelijkheid tot extra kamer door dakkapel op de zolder
- Tuin opnieuw aangelegd in 2025, met stadstuin-sfeer, zithoek, schuur en poort
- Klein voortuintje met beplanting en ruimte voor een bankje
- Gelegen in een karakteristiek straatje in Terheijden

TERHEIJDEN EN OMGEVING
Naast deze bijzonderheden en fantastische ligging van deze gezellige woning vind je in Terheijden, voor zowel jong als oud, goede winkel- en verzorgingsfaciliteiten, drie basisscholen, het openlucht zwembad, horecagelegenheden, een jachthaven (met fietspontje), meerdere sport- en recreatiemogelijkheden en wandel- en fietsmogelijkheden langs de Mark, de Schans, door het polderlandschap of de nabij gelegen bossen.
Bovendien zijn zowel de bourgondische stad Breda als Oosterhout binnen ‘handbereik’, waardoor je kunt genieten van het beste van twee werelden: rustig en comfortabel wonen in een landelijke omgeving met alle gemakken van de stad binnen handbereik. Wil je het verderop zoeken dan liggen de A59, A16 en de A27 slecht op enkele autominuten afstand van de woning.

HEB JE INTERESSE IN DEZE WONING?
Aarzel niet langer en maak een afspraak voor een bezichtiging. Dit is een unieke kans om je droom waar te maken!
Bel voor een vrijblijvende afspraak 076-593 3134. We geven graag de mogelijkheden door.

ALGEMEEN
- Bij een verkoop wordt als basis gebruik gemaakt van het model van de Vastgoed Nederland koopovereenkomst mede vastgesteld door de Nederlandse brancheorganisatie Voor makelaars, de NVM en Vereniging Eigen Huis.
- In deze koopovereenkomst wordt standaard de verplichting tot het storten van een waarborgsom of het stellen van een bankgarantie door de koper ter grootte van 10% van de koopsom opgenomen.
- Een koopovereenkomst komt uitsluitend tot stand onder de opschortende voorwaarde dat zowel verkoper als koper de koopovereenkomst ondertekenen. Partijen kunnen derhalve noch aan een mondelinge overeenkomst, noch aan een schriftelijke bevestiging daarvan, rechten ontlenen.
- Deze vrijblijvende informatie is door Reimus Makelaardij met de nodige zorgvuldigheid samengesteld. Alle opgegeven maten en oppervlakten zijn indicatief en kunnen desgewenst door koper worden gecontroleerd.
- Afhankelijk van het bouwjaar wordt een koopovereenkomst, welke gehanteerd wordt door Reimus Makelaardij, standaard voorzien van een asbestclausule en ouderdomsclausule c.q. ‘as is where is’ clausule.
- Reimus Makelaardij wijst hiermee koper, in het kader van zijn onderzoeksplicht, op de mogelijkheid van het laten uitvoeren van een bouwkundige keuring en/of het inschakelen van een aankoopmakelaar.
- Door Reimus Makelaardij wordt geen enkele aansprakelijkheid aanvaard voor enige onvolledigheid, onjuistheid w.o. tekeningen, jaartallen, schaalaanduidingen oppervlaktematen of anderszins, dan wel de gevolgen daarvan.


Lees meer

Verkoopgeschiedenis

Aangeboden sinds
5 oktober 2025
Verkoopdatum
5 december 2025
Looptijd
2 maanden

Kenmerken

Overdracht

Prijs per m2
€ 4.345
Aangeboden sinds
5 oktober 2025
Status
Verkocht
Aanvaarding
In overleg

Bouw

Soort woonhuis
Eengezinswoning, twee-onder-een-kap woning
Soort bouw
Bestaande bouw
Bouwjaar
1934
Soort dak
Mansardedak
Staat van onderhouden binnen
Uitstekend
Staat van onderhouden buiten
Uitstekend

Oppervlakte en inhoud

Perceeloppervlakte
143 m2
Inhoud van de woning
443 m3
Oppervlakte gebouwgebonden buitenruimten
0 m2
Oppervlakte overige inpandige ruimten
22 m2

Indeling

Aantal kamers
4
Aantal slaapkamers
3
Aantal woonlagen
3
Voorzieningen
Tuin, kabel-tv, rookkanaal, fransbalkon

Buitenruimte

Balkon
Nee
Schuur/berging
Nee

Maandlasten berekenen

De maandlasten voor je woning bestaan uit meer dan alleen de hypotheeklasten. Hieronder vind je een overzicht van de bijkomende kosten en lasten. Zo weet je precies wat je huis per maand gaat kosten. En met de handige vergelijkers kun je ook nog eens snel de beste deals sluiten!

  • Kaart
  • Streetview