Verkocht

Buntlaar 24 4844 TL Terheijden

127m2
Wonen
5
Kamers
222m2
Perceel
1984
Bouwjaar
Ruime en solide twee-onder-een-kapwoning in een rustige straat aan de rand van het dorp, met een zonnige tuin op het zuiden, vier slaapkamers, een moderne badkamer, een grote inpandige garage en een eigen parkeerplaats aan huis. De tuingerichte woonkamer met openslaande deuren brengt veel licht binnen en geeft een directe verbinding met de achtertuin. De dichte keuken ligt aan de voorzijde van de woning en biedt een praktische opstelling met zicht op de straat.
De woning heeft een prettige indeling met drie slaapkamers op de eerste verdieping en een lichte zolderkamer die ook goed als werkruimte kan dienen. De badkamer is in 2024 vernieuwd en is ruim en modern, met een comfortabele inloopdouche en een verzorgde afwerking.
De basis van de woning is stevig en functioneel, het geheel vraagt op sommige punten om wat liefde om weer volledig aan de moderne woonwensen te voldoen. De ruime inpandige garage met vliering biedt daarbij extra mogelijkheden. Met vijf zonnepanelen op het achterdak is de woning bovendien energiezuiniger en klaar voor de toekomst.
Alles bij elkaar is dit een woning met veel ruimte, licht en potentie, waar je stap voor stap jouw eigen draai aan kunt geven.
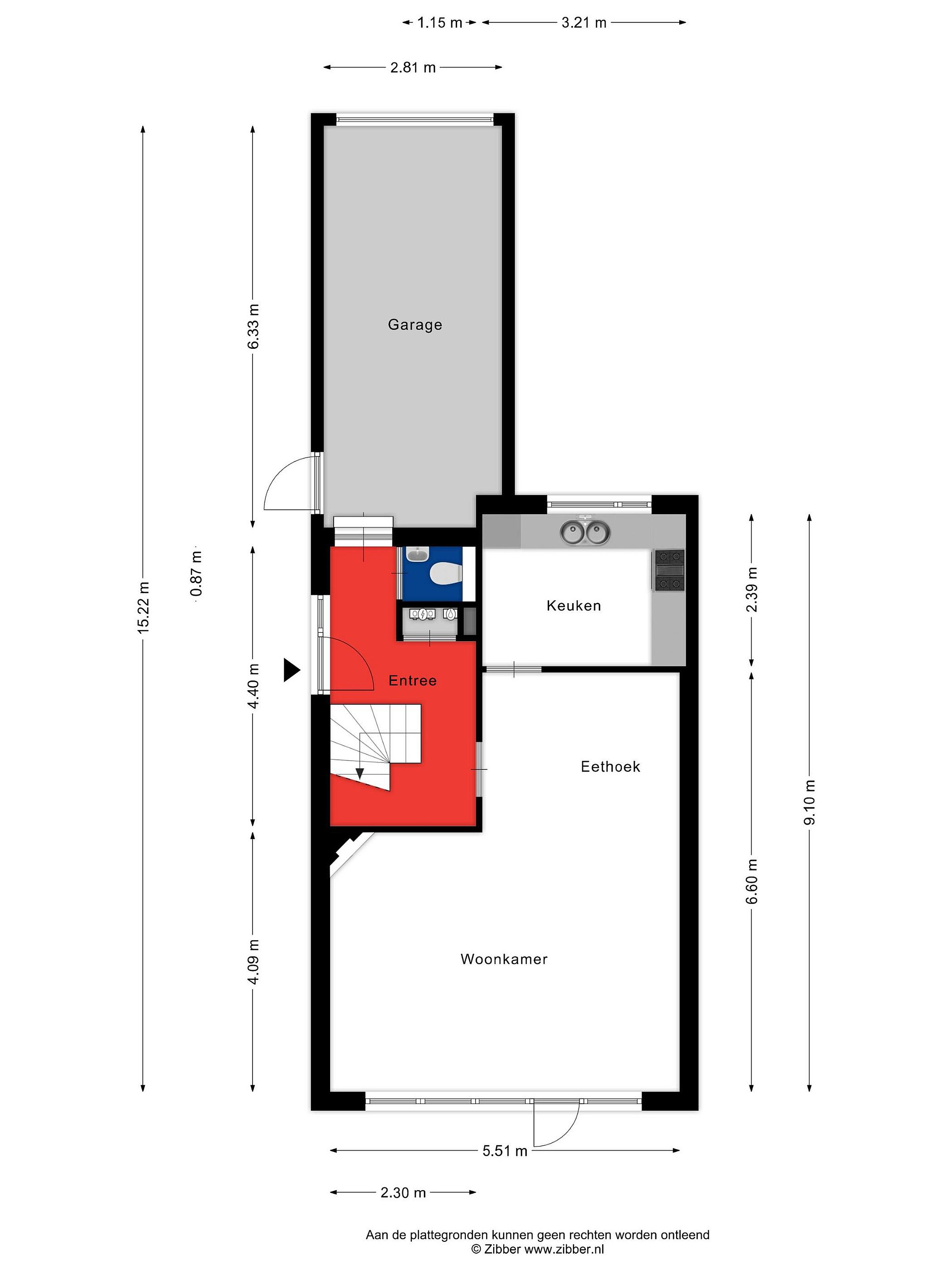
Begane grond
Via de voordeur kom je binnen in een ruime hal met de trap naar boven, het toilet, de meterkast en de doorgang naar de garage en de woonkamer.
WOONKAMER:
De woonkamer ligt in een L-vorm en heeft een tuingericht zitgedeelte met hoekhaard. De ruimte is licht en open, met een tegelvloer en deels met steen strips afgewerkte wanden. Aan de achterzijde openen dubbele tuindeuren naar de zonnige tuin, waar een houten berging, meerdere terrassen en twee mooie bomen voor een prettige sfeer zorgen.
KEUKEN:
De dichte keuken sluit aan op de woonkamer. De hoekopstelling is praktisch en heeft een raam aan de voorzijde, waardoor je uitkijkt op de straat.
* Hal, woonkamer en keuken zijn voorzien van vloerverwarming
GARAGE:
De inpandige garage (6,30 x 2,80 m.) waar de wasmachine en de droger staan wordt op dit moment vooral gebruikt voor fietsen en als praktische bergruimte. Dankzij de royale afmetingen en de vliering is het een ideale plek voor opslag, een kleine werkplaats of een toekomstig kantoor aan huis. Hierdoor biedt deze ruimte extra mogelijkheden om de woning naar eigen wensen te benutten.

Eerste verdieping
Op de overloop bevinden zich drie slaapkamers en de badkamer.
DRIE SLAAPKAMERS:
Twee slaapkamers liggen aan de achterzijde en bieden uitzicht op het groen van de tuin. De derde slaapkamer ligt aan de straatzijde. Op de overloop en in een kamer ligt vloerbedekking.
BADKAMER:
De badkamer is in 2024 volledig vernieuwd en modern uitgevoerd. De ruimte is royaal en voorzien van een dubbel wastafelmeubel met verlichting, een hangtoilet, een handdoekenradiator en een grote inloopdouche. De afwerking is fris en luxe.

Tweede verdieping
De vaste trap leidt naar de voorzolder, waar de ATAG-cv ketel hangt (2022). Dankzij twee ramen komt er veel licht binnen en de ruimte is goed bruikbaar als werkhoek. De wasmachine en droger staan nu in de garage, maar er zijn ook aansluitingen op de voorzolder aanwezig.
ZOLDER(SLAAP)KAMER:
Daarachter ligt de zolderslaapkamer. Deze kamer voelt ruim en licht door de grote dakkapel aan de achterzijde en drie ramen aan de voorkant. Door de verhoging bij de dakkapel is er plaats voor een bureau met zicht op de tuin en plaats voor een kast.

Tuin
EXTERIEUR
PARKEERGELEGENHEID:
Aan de voorzijde van de woning is een gelegenheid om je eigen auto te parkeren (ca. 2,95 x 6,5 m.)
ACHTERTUIN:
De achtertuin (ca. 14 x 7,45 m.) ligt op het zuidoosten, is goed onderhouden en er is een houten tuinhuis geplaatst. Aan de zijkant van de woning is de ‘achterom’ van de tuin.

Details
Highlights
- Zonnige tuin op het zuiden
- Vijf zonnepanelen aan de achterzijde
- Grote inpandige garage met vliering
- Vier slaapkamers, inclusief lichte zolderkamer
- Moderne badkamer (2024), luxe en ruim
- Openslaande tuindeuren naar de tuin
- ATAG cv-ketel (2022)
- Veel licht in huis
- Rustige straat met uitsluitend bestemmingsverkeer
- Eigen parkeerplaats voor de deur
- In een paar stappen ben je in het buitengebied
# afmetingen vindt u terug op de plattegronden

TERHEIJDEN EN OMGEVING
Terheijden is een charmant en gastvrij dorp waar rust, ruimte en gemak harmonieus samenkomen. Met alle dagelijkse voorzieningen zoals winkels, scholen, horeca en openbaar vervoer op loopafstand leef je hier in het hart van een hechte gemeenschap.
De groene omgeving nodigt uit tot wandel- en fietstochten langs de Mark, de historische Schans, het polderlandschap en de nabijgelegen bossen, terwijl de jachthaven met fietspontje extra recreatiemogelijkheden biedt. Bovendien beschikt Terheijden, zowel in het dorp zelf als in de nabije omgeving, over diverse binnen- en buitensportfaciliteiten, van teamsporten tot individuele sport- en wellnessmogelijkheden.
Dankzij de uitstekende verbindingen naar de A59, A16 en A27 én de korte afstand tot Breda en Oosterhout geniet je hier van het beste van twee werelden: landelijk en ontspannen wonen met de stad altijd binnen handbereik.
Kortom, Terheijden biedt alles voor wie zoekt naar een complete, levendige en fijne woonomgeving.

INTERESSE IN DEZE WONING?
Aarzel niet langer en maak een afspraak voor een bezichtiging. Dit is een unieke kans om je droom waar te maken!
Bel voor een vrijblijvende afspraak 076-593 3134. We geven graag de mogelijkheden door.

ALGEMEEN
- Biedingen worden uitsluitend in behandeling genomen ná een bezichtiging.
- Bij een verkoop wordt als basis gebruik gemaakt van het model van de Vastgoed Nederland koopovereenkomst mede vastgesteld door de Nederlandse brancheorganisatie Voor makelaars, de NVM en Vereniging Eigen Huis.
- Een koopovereenkomst (tussen natuurlijke personen) komt uitsluitend tot stand onder de opschortende voorwaarde dat zowel verkoper als koper de koopovereenkomst ondertekenen. Partijen kunnen derhalve noch aan een mondelinge overeenkomst, noch aan een schriftelijke bevestiging daarvan, rechten ontlenen.
- In deze koopovereenkomst wordt standaard de verplichting tot het storten van een waarborgsom of het stellen van een bankgarantie door de koper ter grootte van 10% van de koopsom opgenomen.
- Afhankelijk van het bouwjaar wordt een koopovereenkomst, welke gehanteerd wordt door Reimus Makelaardij, standaard voorzien van een asbestclausule en ouderdomsclausule c.q. ‘as is where is’ clausule.
- Reimus Makelaardij wijst hiermee koper, in het kader van zijn onderzoeksplicht, op de mogelijkheid van het laten uitvoeren van o.m. een bouwkundige keuring en/of het inschakelen van een aankoopmakelaar of anderszins.
- Deze vrijblijvende informatie is door Reimus Makelaardij met de nodige zorgvuldigheid samengesteld. Alle opgegeven maten en oppervlakten zijn indicatief en kunnen desgewenst door koper worden gecontroleerd c.q. nagemeten.
- Door Reimus Makelaardij wordt geen enkele aansprakelijkheid aanvaard voor enige onvolledigheid, onjuistheid w.o. tekeningen, jaartallen, schaalaanduidingen oppervlaktematen of anderszins, dan wel de gevolgen daarvan.

Lees meer

Verkoopgeschiedenis

Aangeboden sinds
15 december 2025
Verkoopdatum
10 april 2026
Looptijd
4 maanden

Kenmerken

Overdracht

Prijs per m2
€ 3.819
Aangeboden sinds
15 december 2025
Status
Verkocht
Aanvaarding
In overleg

Bouw

Soort woonhuis
Eengezinswoning, tussen woning
Soort bouw
Bestaande bouw
Bouwjaar
1984
Soort dak
Zadeldak
Staat van onderhouden binnen
Goed
Staat van onderhouden buiten
Goed

Oppervlakte en inhoud

Perceeloppervlakte
222 m2
Inhoud van de woning
570 m3
Oppervlakte overige inpandige ruimten
18 m2

Indeling

Aantal kamers
5
Aantal slaapkamers
4
Aantal woonlagen
3
Voorzieningen
Tuin, open haard, kabel-tv, rookkanaal

Buitenruimte

Balkon
Nee
Schuur/berging
Nee

Maandlasten berekenen

De maandlasten voor je woning bestaan uit meer dan alleen de hypotheeklasten. Hieronder vind je een overzicht van de bijkomende kosten en lasten. Zo weet je precies wat je huis per maand gaat kosten. En met de handige vergelijkers kun je ook nog eens snel de beste deals sluiten!

  • Kaart
  • Streetview